ᐅ Grundriss: Doppelhaushälfte 8x12m Meinungen und kreative Ideen erwünscht :-)
Erstellt am: 28.04.20 13:37
J
JucruzloS
saralina8701.05.20 13:23Gut, im Endeffekt sind das natürlich alles persönliche Vorlieben - wenn du sagst das passt für euch so dann wird das so sein! Ich sage nur wie es auf mich wirkt. Ich sehe in eurem Schlafzimmer tatsächlich keinen Platz zum Bügeln. Die Wand hat 3,85m, euer Bett hat vermutlich mindestens 1,80m. Das gibt auf jeder Seite noch einen Meter Platz. Dafür muss dort dann immer das Bügeleisen reingefädelt werden (wo soll das eigentlich untergebracht werden? In eurem begehbaren Kleiderschrank?). Das wäre doch unten viel komfortabler. Waschmaschine und Trockner kann man ja auch übereinander zusammen nach unten verfrachten. Aber du hast natürlich Recht, darunter leidet der Technikraum.
Ich würde also, wenn die Waschmaschine unbedingt nach oben muss, auf jeden Fall einen der Kleiderschränke streichen und da einen ordentlichen Hauswirtschaftsraum machen.
Das Kinderbad mag ja reichen, aber für den täglichen Gebrauch von zwei Kindern... Ja gut, das müsst ihr wissen. Mir wäre diese "Notlösung" den Platz und die Mehrkosten nicht wert, weil ich befürchten würde dass das Bad innerhalb kürzester Zeit auch nur noch im Notfall genutzt wird. Aber ja, das ist auch nur eine persönliche Meinung.
Ich würde also, wenn die Waschmaschine unbedingt nach oben muss, auf jeden Fall einen der Kleiderschränke streichen und da einen ordentlichen Hauswirtschaftsraum machen.
Das Kinderbad mag ja reichen, aber für den täglichen Gebrauch von zwei Kindern... Ja gut, das müsst ihr wissen. Mir wäre diese "Notlösung" den Platz und die Mehrkosten nicht wert, weil ich befürchten würde dass das Bad innerhalb kürzester Zeit auch nur noch im Notfall genutzt wird. Aber ja, das ist auch nur eine persönliche Meinung.
Jucruzlo schrieb:
Oder besser: kannst du eine App empfehlen?Ich habe Dir doch eben gerade eine App empfohlen: die analoge Kritzelselberapp in der stets aktuellen Version 1.0 https://www.instagram.com/11antgmxde/
https://www.linkedin.com/company/bauen-jetzt/
Jucruzlo schrieb:
Wir hatten das (für uns) perfekte EG geplant, aber im OG klappt das nicht ganz so perfekt ... das wird wohl auf abstriche hinauslaufen Nein, siehe https://www.hausbau-forum.de/threads/Grundriss-efh-schmaler-möglich-erste-Ideen.34803/page-4#post-402521sehe ich begründete Hoffnung am Horizont, oben anzufangen.
Bin ich eigentlich wieder in Deinem Spamordner gelandet ? - ich hatte Dir vor dem Maifeiertag gemailt.
https://www.instagram.com/11antgmxde/
https://www.linkedin.com/company/bauen-jetzt/
11ant schrieb:
Bin ich eigentlich wieder in Deinem Spamordner gelandet ? - ich hatte Dir vor dem Maifeiertag gemailt.oh warte ja da schau ich gleich mal.
11ant schrieb:
Nein, siehe https://www.hausbau-forum.de/threads/Grundriss-efh-schmaler-möglich-erste-Ideen.34803/page-4#post-402521
sehe ich begründete Hoffnung am Horizont, oben anzufangen.ich bin ja echt so unfassbar zufrieden mit dem Schnitt und Flair vom EG ... im OG bin ich ja auch super zufrieden so - der einzige (aber dafür echt große) Kritikpunkt ist das die Kids halt im (Nord)Osten sind und Bad/Eltern im (Süd)West. Der Rest ist klasse so.
Die aktuelle OG Version muss ich auch mal hochladen die letzte war ja ziemlich verwinkelt
So Ihr lieben Hab mal bisschen was angepasst.
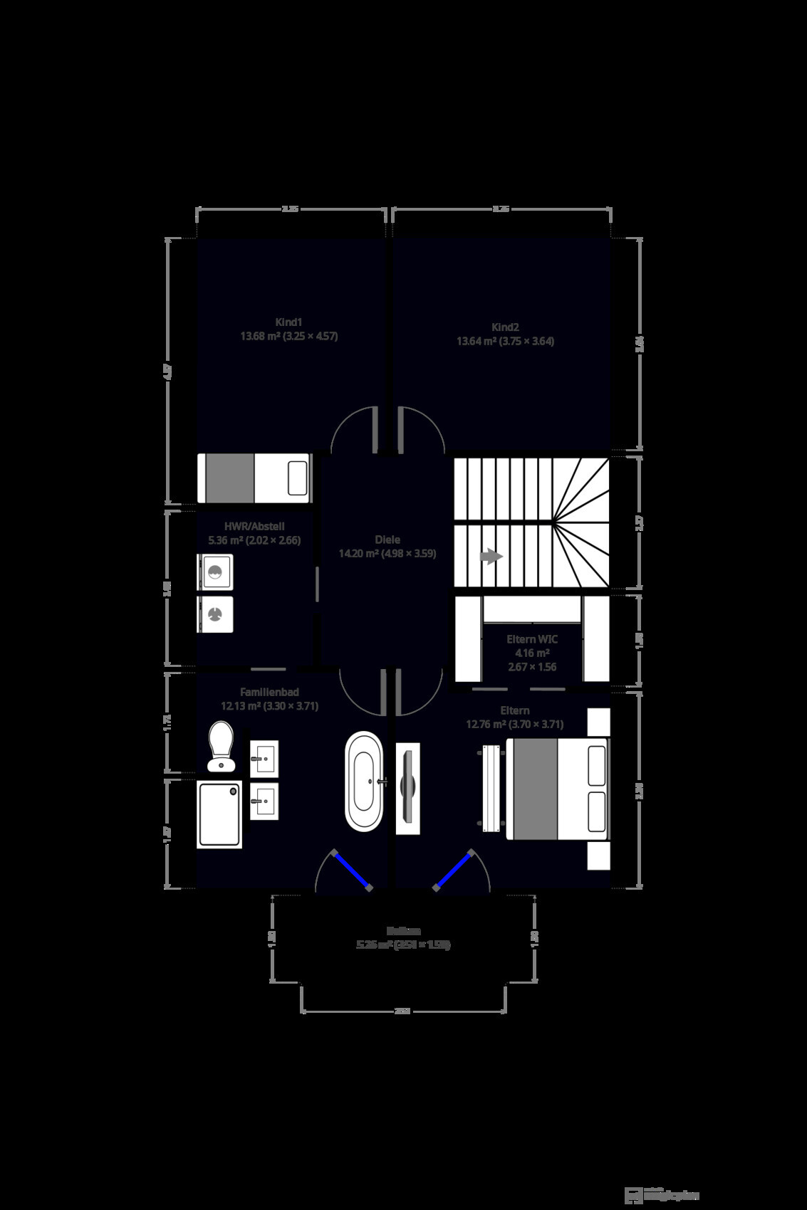
@saralina87 hat mir zu denken gegeben und wir haben noch mal drüber gesprochen... Das Kinderbad wird auf jeden Fall vorerst gestrichen. Es sollen aber Leitungen etc vorbereitet werden. Aber wer weiß ob wir noch ein zweites Kind bekommen und selbst wenn, die ersten (mind. 10 Jahre) wird das eigene Bad wohl noch nicht gebraucht werden. Das wäre wirklich zu schade um 1) den Platz 2) muss es ja geputzt werden und 3) wird es in 10 Jahren dann eh schon wieder altmodisch und wir können den Kids ne Freude damit machen und es dann umbauen wenn es wirklich gebraucht wird. Der Spareffekt ist natürlich erst mal auch gegeben . Und ich hab meine Traum Waschküche in der ich tatsächlich auch Wäsche aufhängen kann und im Fall der Fälle auch bügeln .
Jetzt zu der Frage "Warum sind die Kids im Osten bzw teil Nordosten" - ja das ist halt jetzt die Frage . Das ist das EINZIGE -wirklich das absolut einzige was mich an dem Grundriss noch "stört".
Die Probleme warum die Kids nicht auf die andere Seite könnten sind:
1) wir (Männlein ) wollen unbedingt den Balkon am Schlafzimmer und den natürlich ausgerichtet zum Feldrand der im SW liegt... Balkon sollte auch vom Bad begehbar sein, damit auch die Kids Ihn später nutzen können aber ich will ungern ständig durch deren Zimmer auf den Balkon gehen -das wird Sie als Teenies sehr nerven.
2) wir wollen mit dem Schlafzimmer absolut nicht an die Kinderzimmer grenzen.
3) Selbst wenn wir sagen würden ein Kind kommt neben uns statt das Bad, dann wäre trotzdem noch das andere im Osten. Und ausserdem möchten die Kids bestimmt irgendwann möglichst weit weg von uns
4) Wenn wir Besuch haben im Sommer sitzen wir meist draußen, das bedeutet das die Kids beim schlafen extrem diese Geräusche hätten, sollte auch bedacht werden.
5) es kann ja ziemlich heiss werden besonders im Sommer, je nach Jahreszeit freut man sich evtl sogar über kühlere Zimmer.
Und zurzeit ist das Kinderzimmer im NW. Das ist wirklich aber Hell trotz das das eine Fenster nicht ganz so gross ist. Wenn ich mir da jetzt vorstelle da kommt noch ne Gaube oder sowas rein, dann wäre es glaub echt super. (ja ich Reds mir etwas schön... )
Naja wie gesagt, der Rest passt FÜR UNSERE Zwecke wirklich super und uns stört daran sonst nichts mehr.. wenn jetzt noch die Außenansicht passt - Fenster sind wie gesagt oben noch nicht gesetzt - wären wir mehr als glücklich.
Ach so und bzgl der Ankleide: ggf könnte man die Öffnung noch durch die Ankleide machen aber wenn wir das durchspielen, dann muss ich sagen das wir uns da zurzeit wirklich nicht stören und lieber mehr Platz haben als die Tür von dort zu begehen. Wäre jetzt aber keine große Änderung sollten wir uns da Umentscheiden


@saralina87 hat mir zu denken gegeben und wir haben noch mal drüber gesprochen... Das Kinderbad wird auf jeden Fall vorerst gestrichen. Es sollen aber Leitungen etc vorbereitet werden. Aber wer weiß ob wir noch ein zweites Kind bekommen und selbst wenn, die ersten (mind. 10 Jahre) wird das eigene Bad wohl noch nicht gebraucht werden. Das wäre wirklich zu schade um 1) den Platz 2) muss es ja geputzt werden und 3) wird es in 10 Jahren dann eh schon wieder altmodisch und wir können den Kids ne Freude damit machen und es dann umbauen wenn es wirklich gebraucht wird. Der Spareffekt ist natürlich erst mal auch gegeben . Und ich hab meine Traum Waschküche in der ich tatsächlich auch Wäsche aufhängen kann und im Fall der Fälle auch bügeln .
Jetzt zu der Frage "Warum sind die Kids im Osten bzw teil Nordosten" - ja das ist halt jetzt die Frage . Das ist das EINZIGE -wirklich das absolut einzige was mich an dem Grundriss noch "stört".
Die Probleme warum die Kids nicht auf die andere Seite könnten sind:
1) wir (Männlein ) wollen unbedingt den Balkon am Schlafzimmer und den natürlich ausgerichtet zum Feldrand der im SW liegt... Balkon sollte auch vom Bad begehbar sein, damit auch die Kids Ihn später nutzen können aber ich will ungern ständig durch deren Zimmer auf den Balkon gehen -das wird Sie als Teenies sehr nerven.
2) wir wollen mit dem Schlafzimmer absolut nicht an die Kinderzimmer grenzen.
3) Selbst wenn wir sagen würden ein Kind kommt neben uns statt das Bad, dann wäre trotzdem noch das andere im Osten. Und ausserdem möchten die Kids bestimmt irgendwann möglichst weit weg von uns
4) Wenn wir Besuch haben im Sommer sitzen wir meist draußen, das bedeutet das die Kids beim schlafen extrem diese Geräusche hätten, sollte auch bedacht werden.
5) es kann ja ziemlich heiss werden besonders im Sommer, je nach Jahreszeit freut man sich evtl sogar über kühlere Zimmer.
Und zurzeit ist das Kinderzimmer im NW. Das ist wirklich aber Hell trotz das das eine Fenster nicht ganz so gross ist. Wenn ich mir da jetzt vorstelle da kommt noch ne Gaube oder sowas rein, dann wäre es glaub echt super. (ja ich Reds mir etwas schön... )
Naja wie gesagt, der Rest passt FÜR UNSERE Zwecke wirklich super und uns stört daran sonst nichts mehr.. wenn jetzt noch die Außenansicht passt - Fenster sind wie gesagt oben noch nicht gesetzt - wären wir mehr als glücklich.
Ach so und bzgl der Ankleide: ggf könnte man die Öffnung noch durch die Ankleide machen aber wenn wir das durchspielen, dann muss ich sagen das wir uns da zurzeit wirklich nicht stören und lieber mehr Platz haben als die Tür von dort zu begehen. Wäre jetzt aber keine große Änderung sollten wir uns da Umentscheiden
S
saralina8712.05.20 19:43Ich find ihn jetzt ziemlich toll
Die Küche habt ihr ja mal so durchgeplant und geschaut ob sie so klappt, oder?
Wobei man das ja im Detail ja auch später noch machen könnte.
Die Kinderzimmer im Norden finde ich persönlich nicht tragisch. Mein Kinderzimmer war auch im Norden, hat mich nie gestört. Klar, optimalerweise wären sie im Süden, aber meine erste Prio wäre es auch nicht gewesen.
Die Küche habt ihr ja mal so durchgeplant und geschaut ob sie so klappt, oder?
Wobei man das ja im Detail ja auch später noch machen könnte.
Die Kinderzimmer im Norden finde ich persönlich nicht tragisch. Mein Kinderzimmer war auch im Norden, hat mich nie gestört. Klar, optimalerweise wären sie im Süden, aber meine erste Prio wäre es auch nicht gewesen.
Ähnliche Themen