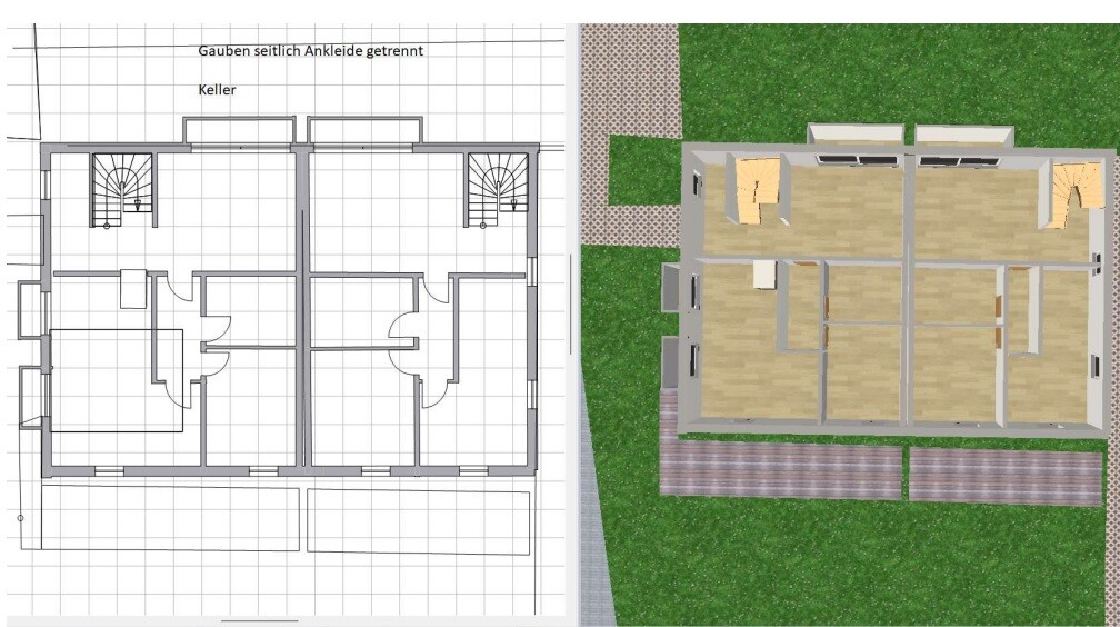
ᐅ Grundriss Doppehaus mit ca. 165m2 und 150m2 / mit Satteldach / Gauben
Erstellt am: 11.04.22 10:15
Bebauungsplan/Einschränkungen
Größe des Grundstücks 715 m2
Hang 1m
Grundflächenzahl 45
Geschossflächenzahl 30
Baufenster, Baulinie und -grenze 12x 18 meter
Randbebauung
Anzahl Stellplatz 4x
Geschossigkeit /durch Traufe (4 Meter) und First (9,5 Meter) geregelt
Dachform Sattel
Stilrichtung modern
Ausrichtung
Maximale Höhen/Begrenzungen 9,5 Meter
weitere Vorgaben
Anforderungen der Bauherren
Stilrichtung, Dachform, Gebäudetyp
Keller, Geschosse Vollkeller
Anzahl der Personen, Alter : 2 Erwachsene und 2 Kinder 6-8 Jahre
Raumbedarf im EG, OG offen soweit möglich
Büro: Familiennutzung oder Homeoffice? Familie
Schlafgäste pro Jahr weniger
offene oder geschlossene Architektur´offen
konservativ oder moderne Bauweise modern
offene Küche, Kochinsel
Anzahl Essplätze
Kamin ja
Musik/Stereowand
Balkon, Dachterrasse : Dachgeschoss mit Balkon
Garage, Carport 2 x Garagen (mit gefangenem Stellplatz davor
Nutzgarten, Treibhaus
weitere Wünsche/Besonderheiten/Tagesablauf, gern auch Begründungen, warum dieses oder das nicht sein soll
Hausentwurf
Von wem stammt die Planung: Architekten und Bauherren
-Planer eines Bauunternehmens
-Architekt Ja
-Do-it-Yourself
Was gefällt besonders? Warum? in der Optimierungsphase
Was gefällt nicht? Warum?
Preisschätzung lt Architekt/Planer:
Persönliches Preislimit fürs Haus, inkl Ausstattung:
favorisierte Heiztechnik: Photovoltaik + Erdwärme
Wenn Ihr verzichten müsst, auf welche Details/Ausbauten
-könnt Ihr verzichten:
-könnt Ihr nicht verzichten:
Warum ist der Entwurf so geworden, wie er jetzt ist? ZB
Standardentwurf vom Planer? nein
Entsprechende/Welche Wünsche wurden vom Architekten umgesetzt? ja
Ein Gemisch aus vielen Beispielen aus div. Magazinen...
Was macht ihn in Euren Augen besonders gut oder schlecht?
Was ist die wichtigste/grundlegende Frage zum Grundriss in 130 Zeichen zusammengefasst
Habe viele Beiträge gelesen und bin sehr froh über so ein Forum.
Wir sind noch in der Optimierungsphase, optimale Ausnutzung der Fläche.
Auch die Hanglage wollen wir nutzen.
Es wird ein Doppelhaus, unsere Hälfte ist ca 80 cm breiter.
Sockelhöhe 25 cm über Bezugshöhe geplant, dadruch kann die lichte Höhe im Erdgechoss auf 2,80 Meter erhöht werden, erstes Og 265 cm.
Die komischen Balken dienen der Übersicht bezüglich Hanglage.
Bin gespannt auf Rückmeldungen.
Beste Grüße
Mex








Größe des Grundstücks 715 m2
Hang 1m
Grundflächenzahl 45
Geschossflächenzahl 30
Baufenster, Baulinie und -grenze 12x 18 meter
Randbebauung
Anzahl Stellplatz 4x
Geschossigkeit /durch Traufe (4 Meter) und First (9,5 Meter) geregelt
Dachform Sattel
Stilrichtung modern
Ausrichtung
Maximale Höhen/Begrenzungen 9,5 Meter
weitere Vorgaben
Anforderungen der Bauherren
Stilrichtung, Dachform, Gebäudetyp
Keller, Geschosse Vollkeller
Anzahl der Personen, Alter : 2 Erwachsene und 2 Kinder 6-8 Jahre
Raumbedarf im EG, OG offen soweit möglich
Büro: Familiennutzung oder Homeoffice? Familie
Schlafgäste pro Jahr weniger
offene oder geschlossene Architektur´offen
konservativ oder moderne Bauweise modern
offene Küche, Kochinsel
Anzahl Essplätze
Kamin ja
Musik/Stereowand
Balkon, Dachterrasse : Dachgeschoss mit Balkon
Garage, Carport 2 x Garagen (mit gefangenem Stellplatz davor
Nutzgarten, Treibhaus
weitere Wünsche/Besonderheiten/Tagesablauf, gern auch Begründungen, warum dieses oder das nicht sein soll
Hausentwurf
Von wem stammt die Planung: Architekten und Bauherren
-Planer eines Bauunternehmens
-Architekt Ja
-Do-it-Yourself
Was gefällt besonders? Warum? in der Optimierungsphase
Was gefällt nicht? Warum?
Preisschätzung lt Architekt/Planer:
Persönliches Preislimit fürs Haus, inkl Ausstattung:
favorisierte Heiztechnik: Photovoltaik + Erdwärme
Wenn Ihr verzichten müsst, auf welche Details/Ausbauten
-könnt Ihr verzichten:
-könnt Ihr nicht verzichten:
Warum ist der Entwurf so geworden, wie er jetzt ist? ZB
Standardentwurf vom Planer? nein
Entsprechende/Welche Wünsche wurden vom Architekten umgesetzt? ja
Ein Gemisch aus vielen Beispielen aus div. Magazinen...
Was macht ihn in Euren Augen besonders gut oder schlecht?
Was ist die wichtigste/grundlegende Frage zum Grundriss in 130 Zeichen zusammengefasst
Habe viele Beiträge gelesen und bin sehr froh über so ein Forum.
Wir sind noch in der Optimierungsphase, optimale Ausnutzung der Fläche.
Auch die Hanglage wollen wir nutzen.
Es wird ein Doppelhaus, unsere Hälfte ist ca 80 cm breiter.
Sockelhöhe 25 cm über Bezugshöhe geplant, dadruch kann die lichte Höhe im Erdgechoss auf 2,80 Meter erhöht werden, erstes Og 265 cm.
Die komischen Balken dienen der Übersicht bezüglich Hanglage.
Bin gespannt auf Rückmeldungen.
Beste Grüße
Mex
K
K a t j a11.04.22 10:33Verstehe noch nicht ganz: Das Grundstück ist insgesamt 715qm groß oder nur Euer Teil?
Wieso plant Ihr den Teil Eures Paupartners mit? Wie kommt der Partner eigentlich hinter sein Haus?
Wieso plant Ihr den Teil Eures Paupartners mit? Wie kommt der Partner eigentlich hinter sein Haus?
Mexx110 schrieb:
Hang 1mDeine Balken funktionieren für uns nicht. Vielleicht solltest Du mal einen händischen Grundstücksplan mit dem Hangverlauf einstellen.Mexx110 schrieb:
Grundflächenzahl 45
Geschossflächenzahl 30Auch das erklärt sich mir nicht: Grundflächenzahl und Geschossflächenzahl werden mit 0.x angegeben.Oder gibt es neuzeitliche Reformen, die ich nicht mitbekommen habe?
Mexx110 schrieb:
Anzahl Stellplatz 4xDie Hausseite planrechts hat nur einen reellen Stellplatz. Zuparken, noch dazu mit einer ellenlangen Auffahrt funktioniert nicht für die Behörde und auch praktisch nicht.Mexx110 schrieb:
Es wird ein Doppelhaus, unsere Hälfte ist ca 80 cm breiter.Welche ist denn Euer?Ich finde die Pläne recht unübersichtlich. Maße fehlen.
Und was ist mit dem Hang bezüglich des Kellers?
Dachboden: der geht (ohne jetzt Kästchen zu zählen) von wo ab? Und über beide Haushälften?
Ob die seitlichen Gauben nicht die Traufhöhe brechen? Ich kenne es so, dass Gauben ein Mindestmaß zum Giebel haben müssen, ansonsten sind es keine Gauben.
Jetzt habe ich auch das OG gefunden 🙂
Also: der Dachboden mit über beide Parteien funktioniert wegen der Brandwand nicht. Oder es wird ein 2-Familienhaus. Bei einem DH jedenfalls funktioniert der Traum vom Paradies unter Dach nicht.
zum Entwurf selbst:
-Die Garagenplanung bzw Außenanlagen ist schrecklich.
-viele „Anfängerträume“ entweder nicht umsetzbar oder nicht funktionell. So ist zb das eine Kinderzimmer ohne Ausblick (nur Doppelflügelfenster), während das Schlafzimmer volle Breitseite im Süden bekommt, was man nun ja gar nicht zum Nächtigen braucht.
-EG ist im Groben erstmal ok, wenn der Keller mitspielt
-Statik wurde gar nicht bedacht.
- Kostenfaktor ist nicht bedacht
Also: der Dachboden mit über beide Parteien funktioniert wegen der Brandwand nicht. Oder es wird ein 2-Familienhaus. Bei einem DH jedenfalls funktioniert der Traum vom Paradies unter Dach nicht.
zum Entwurf selbst:
-Die Garagenplanung bzw Außenanlagen ist schrecklich.
-viele „Anfängerträume“ entweder nicht umsetzbar oder nicht funktionell. So ist zb das eine Kinderzimmer ohne Ausblick (nur Doppelflügelfenster), während das Schlafzimmer volle Breitseite im Süden bekommt, was man nun ja gar nicht zum Nächtigen braucht.
-EG ist im Groben erstmal ok, wenn der Keller mitspielt
-Statik wurde gar nicht bedacht.
- Kostenfaktor ist nicht bedacht
Mexx110 schrieb:
Grundflächenzahl 45
Geschossflächenzahl 30Das verstehe ich nicht - zeige mal die Original Nutzungsschablone.Mexx110 schrieb:
Habe viele Beiträge gelesenNa ja, offenbar zumindest meine ewige Gebetsmühle, daß man keine halben Doppelhäuser planen soll, weil aus Summen ...Mexx110 schrieb:
Auch die Hanglage wollen wir nutzen.
Es wird ein Doppelhaus, unsere Hälfte ist ca 80 cm breiter.
Sockelhöhe 25 cm über Bezugshöhe geplant, dadruch kann die lichte Höhe im Erdgechoss auf 2,80 Meter erhöht werden, erstes Og 265 cm.
Die komischen Balken dienen der Übersicht bezüglich Hanglage.Die komischen Balken "dienen" der Übersicht für uns freundlich gesagt "nicht" - und wenn die Schnittzeichnungen korrekt sind, frage ich mich, wo Du da eine nutzbare Hanglage siehst. Weshalb es für die lichte Höhe des EG ein Gewinn sein soll, es oberhalb der Bezugshöhe zu beginnen, ist mir schleierhaft - erwartungsgemäß ist die Wirkung umgekehrt.Die "Gauben" sind hier zum einen Zwerchhäuser, und zum anderen auch von der Breite her jenseits dessen, was zeitgenössische Babauungspläne vorzuschreiben pflegen. Daß zusätzlich auch noch ihre Lage an den Giebeln befreiungsschädlich sein dürfte, wurde ja bereits angemerkt.
https://www.instagram.com/11antgmxde/
https://www.linkedin.com/company/bauen-jetzt/
Ähnliche Themen