Bebauungsplan/Einschränkungen
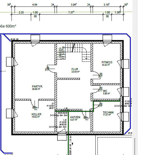
Größe des Grundstücks; 600 m²
Hang --> Nein
Grundflächenzahl --> Kein Bebauungsplang
Geschossflächenzahl --> Kein Bebauungsplang
Baufenster, Baulinie und -grenze --> k.A.
Randbebauung --> k.A.
Anzahl Stellplatz --> 2 Stellplätze
Geschossigkeit --> 2 Vollgeschosse
Dachform --> Flachdach
Stilrichtung --> modern
Ausrichtung --> Südwest
Maximale Höhen/Begrenzungen
weitere Vorgaben
Anforderungen der Bauherren
Stilrichtung, Dachform, Gebäudetyp --> Flachdach, modern
Keller, Geschosse --> Keller mit zwei Vollgeschossen
Anzahl der Personen, Alter --> 3
Raumbedarf im EG, OG
Büro: Familiennutzung oder Homeoffice? --> Homeoffice
Schlafgäste pro Jahr --> KEine
offene oder geschlossene Architektur --> ?
konservativ oder moderne Bauweise --> massiv Bauweise
offene Küche, Kochinsel --> Kochinsel
Anzahl Essplätze --> 6
Kamin --> Keine
Musik/Stereowand --> keine
Balkon, Dachterrasse --> Balkon
Garage, Carport --> Doppelgarage
Nutzgarten, Treibhaus --> nein
weitere Wünsche/Besonderheiten/Tagesablauf, gern auch Begründungen, warum dieses oder das nicht sein soll
Hausentwurf
Von wem stammt die Planung:
-Planer eines Bauunternehmens --> eigene Grundlage - Zeichnung von Bautechniker
-Architekt
-Do-it-Yourself
Was gefällt besonders? Warum? --> grundsätzlich alles bis auf Ausnahme
Was gefällt nicht? Warum? --> Wohnbereich meiner Meinung nach zu klein, Treppenhaus zu groß, Kinderzimmer grundsätzlich auch größer gedacht
Preisschätzung laut Architekt/Planer: 800.000
Persönliches Preislimit fürs Haus, inkl. Ausstattung: keine
favorisierte Heiztechnik: Wärmepumpe
Wenn Ihr verzichten müsst, auf welche Details/Ausbauten
-könnt Ihr verzichten:
-könnt Ihr nicht verzichten:
Warum ist der Entwurf so geworden, wie er jetzt ist? ZB
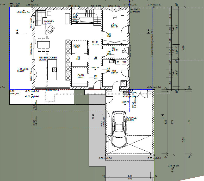
Voraussetzung für uns war, dass der Elternbereich als auch der Wohn- und Essbereich auf der geplanten Seite liegt weil wir dort einen wunderschönen Blick auf ein Kloster auf einem BErg haben.
Wir wollten das Gäste-WC nicht neben der Eingangstüre haben.
Außerdem ist uns der Eingang durch die Garage enorm wichtig.
Die Lage der eingezeichneten Möbel spiegelt nur eine groben Rahmen da.
Das Katzenzimmer im Keller ist lediglich als zusätzlicher Rückzugsort gedacht. Die Katzen dürfen selbstverständlich im Wohnbereich leben.




Größe des Grundstücks; 600 m²
Hang --> Nein
Grundflächenzahl --> Kein Bebauungsplang
Geschossflächenzahl --> Kein Bebauungsplang
Baufenster, Baulinie und -grenze --> k.A.
Randbebauung --> k.A.
Anzahl Stellplatz --> 2 Stellplätze
Geschossigkeit --> 2 Vollgeschosse
Dachform --> Flachdach
Stilrichtung --> modern
Ausrichtung --> Südwest
Maximale Höhen/Begrenzungen
weitere Vorgaben
Anforderungen der Bauherren
Stilrichtung, Dachform, Gebäudetyp --> Flachdach, modern
Keller, Geschosse --> Keller mit zwei Vollgeschossen
Anzahl der Personen, Alter --> 3
Raumbedarf im EG, OG
Büro: Familiennutzung oder Homeoffice? --> Homeoffice
Schlafgäste pro Jahr --> KEine
offene oder geschlossene Architektur --> ?
konservativ oder moderne Bauweise --> massiv Bauweise
offene Küche, Kochinsel --> Kochinsel
Anzahl Essplätze --> 6
Kamin --> Keine
Musik/Stereowand --> keine
Balkon, Dachterrasse --> Balkon
Garage, Carport --> Doppelgarage
Nutzgarten, Treibhaus --> nein
weitere Wünsche/Besonderheiten/Tagesablauf, gern auch Begründungen, warum dieses oder das nicht sein soll
Hausentwurf
Von wem stammt die Planung:
-Planer eines Bauunternehmens --> eigene Grundlage - Zeichnung von Bautechniker
-Architekt
-Do-it-Yourself
Was gefällt besonders? Warum? --> grundsätzlich alles bis auf Ausnahme
Was gefällt nicht? Warum? --> Wohnbereich meiner Meinung nach zu klein, Treppenhaus zu groß, Kinderzimmer grundsätzlich auch größer gedacht
Preisschätzung laut Architekt/Planer: 800.000
Persönliches Preislimit fürs Haus, inkl. Ausstattung: keine
favorisierte Heiztechnik: Wärmepumpe
Wenn Ihr verzichten müsst, auf welche Details/Ausbauten
-könnt Ihr verzichten:
-könnt Ihr nicht verzichten:
Warum ist der Entwurf so geworden, wie er jetzt ist? ZB
Voraussetzung für uns war, dass der Elternbereich als auch der Wohn- und Essbereich auf der geplanten Seite liegt weil wir dort einen wunderschönen Blick auf ein Kloster auf einem BErg haben.
Wir wollten das Gäste-WC nicht neben der Eingangstüre haben.
Außerdem ist uns der Eingang durch die Garage enorm wichtig.
Die Lage der eingezeichneten Möbel spiegelt nur eine groben Rahmen da.
Das Katzenzimmer im Keller ist lediglich als zusätzlicher Rückzugsort gedacht. Die Katzen dürfen selbstverständlich im Wohnbereich leben.
eiti1992 schrieb:
Voraussetzung für uns war, dass der Elternbereich als auch der Wohn- und Essbereich auf der geplanten Seite liegt weil wir dort einen wunderschönen Blick auf ein Kloster auf einem BErg haben.Planlinks oder wo? Wenn der Blick so wunderschön und Euch wichtig ist, warum wird denn der Sitzbereich nicht mit Blick so geplant? Auch wenn man das Sofa anders einrichten würde - an der Treppenwand wird’s ja recht ungemütlich, zum einen weil die Wand recht kurz ist, um ein familiengerechtes Sofa zu stellen, zum anderen hat man im Rücken viel Verkehrsfläche, was nicht behaglich ist. Insgesamt würde ich sagen, dass Essen und Wohnen im Verhältnis etwas zu klein geraten sind. Da hat man im Flair 134 gefühlt mehr Wohnkomfort.
Ich finde nicht, dass Eure „Voraussetzung“ hier gelungen ist. Auch die Eingangssituation zieht sich hin, bis man einen schönen Ausblick erahnen kann. Nutzräume trennen den Aufenthaltsraum falsch ab, in dem sie vorgesetzt mittig des Hauses angelegt werden.
Bad ist größer als die Kinderzimmer, das kommt ja nicht durch eine Planung zustande, sondern durch einfaches Aneinandersetzen von Räumen, wie es gerade mal so auf dem Papier passt.
Die Treppe ist zu sehr an eine Wand-Seite gepresst, sodass eine vernünftige Raumplanung schlecht umsetzbar ist und sich diese Tanzsäle ergeben.
Der Durchgang von Garage ins Haus ist zwar gelungen, aber warum landet man in dem Hauswirtschaftsraum, wo Wäsche gewaschen wird? Sinniger ist doch, dort die Garderobe einzuplanen?! Schmutziges Schuhwerk und saubere Wäsche harmonieren schlecht zusammen.
Lichtschächte sollte man auch auf einer Terrasse vermeiden.
Wie ist denn das restliche Grundstück? Lageplan? Ist es eine Par 34 Bebauung? Müssen da nicht dennoch Regeln eingehalten werden? Die Informationen sind sehr dürftig.
H
hanghaus202307.07.25 15:53Gibt es auch einen Plan vom Grundstück am besten mit Umgebung und Nordpfeil? Ist die Aussicht unverbaubar? Ist da ein Bestandshaus vorhanden? Kein Preislimit hört man ja gern.
D
derdietmar07.07.25 16:35Hallo,
der verfügbare Platz für Wohnzimmer und Esszimmer ist zu klein, mir kommen die Möbel auch nicht maßstäblich vor.
Besonders gemütlich ist das Wohnzimmer zudem nicht, wenn man nur in den Flur blickt bzw. vom Flur aus direkt im Sichtfeld sitzt.
Der obige Flur wird recht dunkel, daher sollte da ein Dachfenster hin. Überhaupt ist die Anordnung der Treppe und Flure wenig attraktiv.
Der geschätzte Preis ist knapp und nur mit Basisausstattung realistisch.
Viele Grüße
der verfügbare Platz für Wohnzimmer und Esszimmer ist zu klein, mir kommen die Möbel auch nicht maßstäblich vor.
Besonders gemütlich ist das Wohnzimmer zudem nicht, wenn man nur in den Flur blickt bzw. vom Flur aus direkt im Sichtfeld sitzt.
Der obige Flur wird recht dunkel, daher sollte da ein Dachfenster hin. Überhaupt ist die Anordnung der Treppe und Flure wenig attraktiv.
Der geschätzte Preis ist knapp und nur mit Basisausstattung realistisch.
Viele Grüße
Was sind das für Sternchenlinien: das abzubrechende Bestandsgebäude; ist dieses im Budget berücksichtigt ?
Ich erkenne im übrigen keinen Geländegrund für den Fastleerkeller.
https://www.instagram.com/11antgmxde/
https://www.linkedin.com/company/bauen-jetzt/
eiti1992 schrieb:Nur um es mich verstehen zu lassen: wenn man sich das Haus selber ausdenkt und einem der das beruflich macht nur zum abzeichnen gibt, wie stellen sich dann solche konzeptionellen Abweichungen überhaupt ein ?
Was gefällt nicht? Warum? --> Wohnbereich meiner Meinung nach zu klein, Treppenhaus zu groß, Kinderzimmer grundsätzlich auch größer gedacht
eiti1992 schrieb:Ein modernes Haus wird ja auch grundsätzlich um diesen Durchgang herum gebaut, außer mir macht das jeder so, klar. Wer will schon grüßenden Nachbarn begegnen, bloß weil man sein Eigenheim nicht drive-in betritt.
Außerdem ist uns der Eingang durch die Garage enorm wichtig.
eiti1992 schrieb:Wie sicher bist Du, den miauten Wunsch richtig verstanden zu haben ?
Das Katzenzimmer im Keller ist lediglich als zusätzlicher Rückzugsort gedacht. Die Katzen dürfen selbstverständlich im Wohnbereich leben.
Ich erkenne im übrigen keinen Geländegrund für den Fastleerkeller.
https://www.instagram.com/11antgmxde/
https://www.linkedin.com/company/bauen-jetzt/
P
Papierturm07.07.25 18:49Hm. Mir kommen die Raumproportionen sehr ungewöhnlich vor. Unsortierte Gedanken und Anmerkungen:
- Das Hauptbad ist riesig. Per Hebeschiebetür (soweit ich das richtig gesehen habe?) an der Badewanne vorbei auf den Balkon ist auch innovativ. Besser gesagt: Gewagt. Das würde ich sehr überlegen, ob ich die Räume oben so, wie sie sind, anordnen würde.
- Insbesondere finde ich keine wirklich gute Lösung in meinem Kopf mit der Treppe und (ich vermute) Galerie da. Es erzeugt einen riesigen, quasi ungenutzten Flur (16,6m²!) oben, größer als die einzelnen Kinderzimmer. Riesiges Hauptbad, immer noch recht großes Kinderbad. Beide Badezimmer zusammen sind nur knapp kleiner als die beiden Kinderzimmer. Kein direkter Zugang zum Balkon. Ich würde da echt überlegen, ob ich die Treppe nicht ändern würde um die Träume oben besser gestalten zu können. Das riesige Badezimmer kann zwar toll sein, wenn man so etwas mag und als Highlight betrachtet. Aber der Flur oben wird echt schwierig vernünftig zu nutzen. (Ich würde eine Podesttreppe nehmen, die Treppe somit insgesamt schmaler anlegen. Hierdurch sowohl den Wohnbereich größer ziehen als auch die Kinderzimmer. Dafür wenn möglich den Flur oben bis zu einer Balkontür durchziehen und auch die anderen Räume entsprechend anpassen. Hierdurch könnte man auch unten Änderungen einbauen, um den langen Tunnel etwas zu entschärfen.)
- Der Eingangsbereich über die Haupthaustür ist ein langer, schmaler Flur. Irgendwie gefällt mir das nicht, so tunnelartig. Mir fällt da aber so spontan auch keine Lösung ein.
- Die Idee, die Speisekammer von zwei Seiten begehbar zu machen, kommt mir erstmal gut vor. Gleichzeitig kostet dies auch Wandfläche. Auch hier frage ich mich, ob die Anordnung der Nutzräume in Hausmitte so wirklich gelungen ist. (Ich glaube, das ist, was mich unbewusst stört - das Verhältnis von Lebeflächen zu Nutz- und Verkehrsflächen kommt mir unausgewogen vor.)
- Mir wird diese beschriebene tolle Sicht aufs Bergkloster irgendwie zu wenig in Szene gesetzt. Insbesondere im Wohnbereich selbst ließe sich das mit etwas anderer Raumaufteilung und anderen Fenstern mehr in Szene setzen.
- Das Hauptbad ist riesig. Per Hebeschiebetür (soweit ich das richtig gesehen habe?) an der Badewanne vorbei auf den Balkon ist auch innovativ. Besser gesagt: Gewagt. Das würde ich sehr überlegen, ob ich die Räume oben so, wie sie sind, anordnen würde.
- Insbesondere finde ich keine wirklich gute Lösung in meinem Kopf mit der Treppe und (ich vermute) Galerie da. Es erzeugt einen riesigen, quasi ungenutzten Flur (16,6m²!) oben, größer als die einzelnen Kinderzimmer. Riesiges Hauptbad, immer noch recht großes Kinderbad. Beide Badezimmer zusammen sind nur knapp kleiner als die beiden Kinderzimmer. Kein direkter Zugang zum Balkon. Ich würde da echt überlegen, ob ich die Treppe nicht ändern würde um die Träume oben besser gestalten zu können. Das riesige Badezimmer kann zwar toll sein, wenn man so etwas mag und als Highlight betrachtet. Aber der Flur oben wird echt schwierig vernünftig zu nutzen. (Ich würde eine Podesttreppe nehmen, die Treppe somit insgesamt schmaler anlegen. Hierdurch sowohl den Wohnbereich größer ziehen als auch die Kinderzimmer. Dafür wenn möglich den Flur oben bis zu einer Balkontür durchziehen und auch die anderen Räume entsprechend anpassen. Hierdurch könnte man auch unten Änderungen einbauen, um den langen Tunnel etwas zu entschärfen.)
- Der Eingangsbereich über die Haupthaustür ist ein langer, schmaler Flur. Irgendwie gefällt mir das nicht, so tunnelartig. Mir fällt da aber so spontan auch keine Lösung ein.
- Die Idee, die Speisekammer von zwei Seiten begehbar zu machen, kommt mir erstmal gut vor. Gleichzeitig kostet dies auch Wandfläche. Auch hier frage ich mich, ob die Anordnung der Nutzräume in Hausmitte so wirklich gelungen ist. (Ich glaube, das ist, was mich unbewusst stört - das Verhältnis von Lebeflächen zu Nutz- und Verkehrsflächen kommt mir unausgewogen vor.)
- Mir wird diese beschriebene tolle Sicht aufs Bergkloster irgendwie zu wenig in Szene gesetzt. Insbesondere im Wohnbereich selbst ließe sich das mit etwas anderer Raumaufteilung und anderen Fenstern mehr in Szene setzen.
Ähnliche Themen