ᐅ Grundrissbewertung Einfamilienhaus ca. 175m² Satteldach
Erstellt am: 12.07.22 11:08
Bebauungsplan/Einschränkungen
Größe des Grundstücks: 744m²
Hang: -
Grundflächenzahl: 0,3
Geschossflächenzahl: -
Baufenster, Baulinie und -grenze: auf Lageplan abgebildet
Randbebauung: -
Anzahl Stellplatz: 2
Geschossigkeit: 1,5
Dachform: frei wählbar
Stilrichtung: frei wählbar
Ausrichtung: frei wählbar
Maximale Höhen/Begrenzungen: First 9m, Traufe 4,50m
weitere Vorgaben
Anforderungen der Bauherren
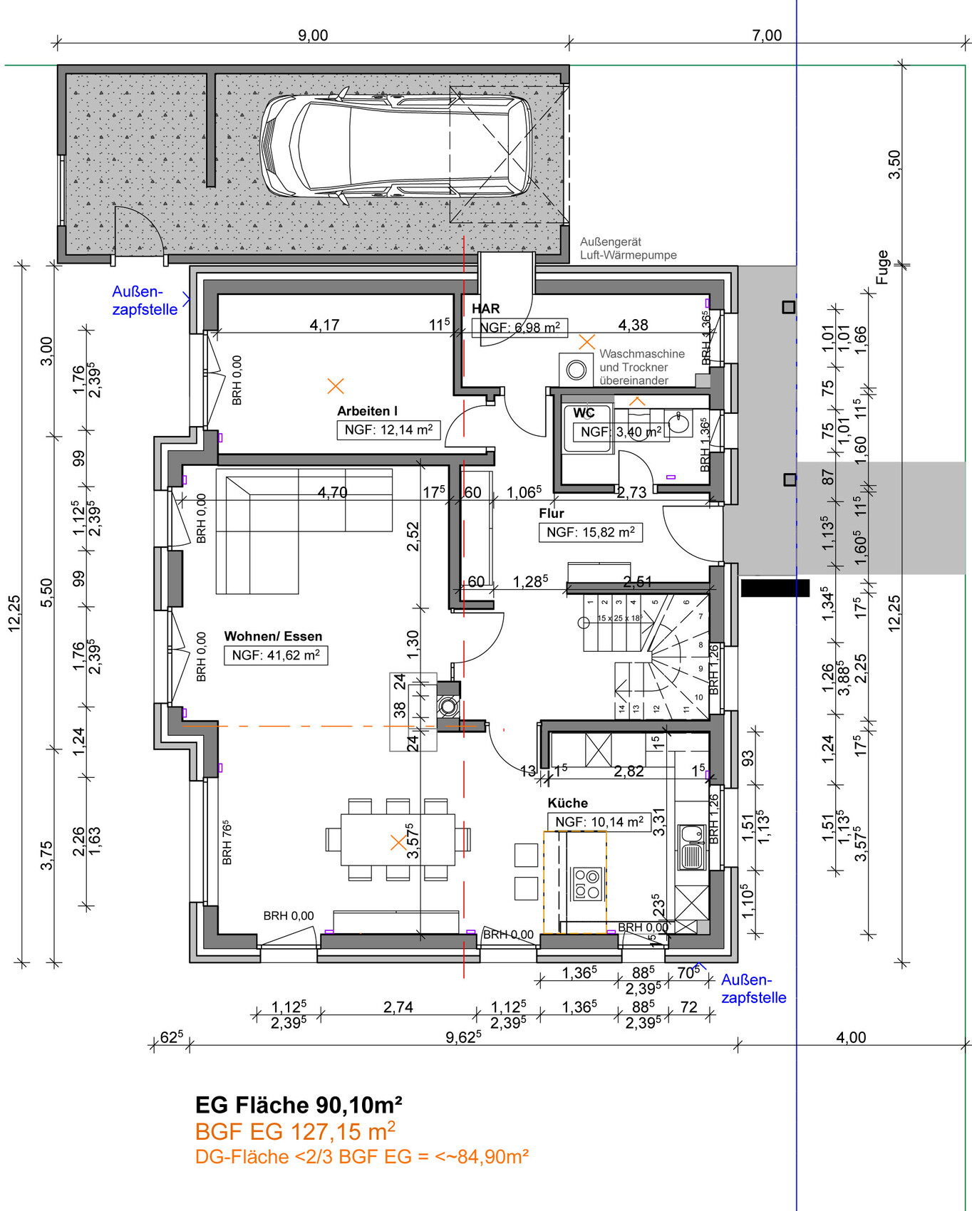
Stilrichtung, Dachform, Gebäudetyp: Einfamilienhaus mit Satteldach und Verblendklinker
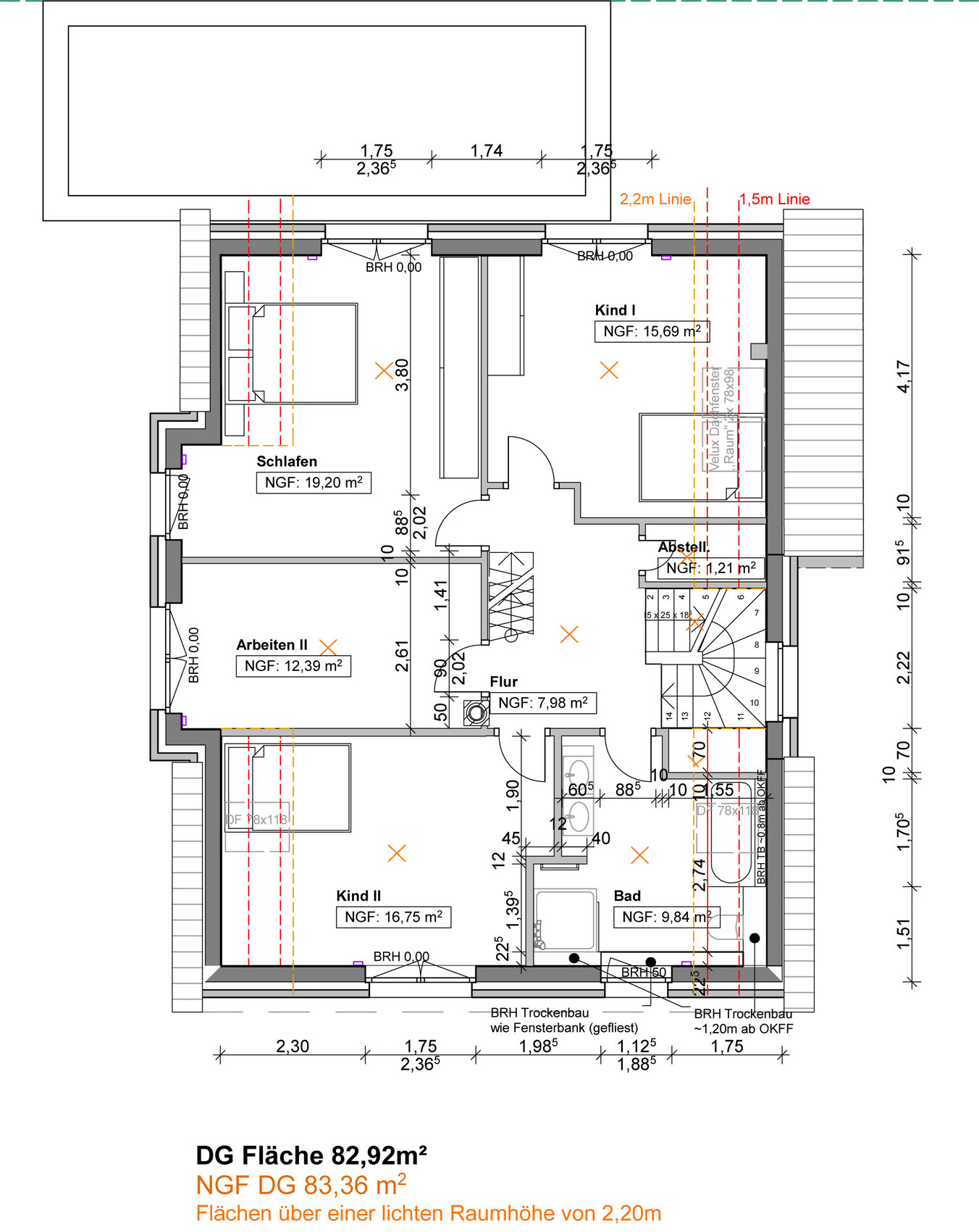
Keller, Geschosse: 1,5 Geschosse, kein Keller, ausgebauter Dachboden
Anzahl der Personen, Alter: 2 Erwachsene, 2 Kinder
Raumbedarf im EG, OG: EG ca.90m², OG ca. 80m²
Büro: Familiennutzung oder Homeoffice?: 2x Homeoffice
Schlafgäste pro Jahr: ca. 40
offene oder geschlossene Architektur: -
konservativ oder moderne Bauweise: einfache Bauweise
offene Küche, Kochinsel: ja
Anzahl Essplätze: mind. 6
Kamin: ja
Musik/Stereowand: -
Balkon, Dachterrasse: nicht gebraucht
Garage, Carport: Garage mit Zugang zum Haus
Nutzgarten, Treibhaus: -
weitere Wünsche/Besonderheiten/Tagesablauf, gern auch Begründungen, warum dieses oder das nicht sein soll:
Wichtig war uns, dass wir zwei Arbeitspläte haben, da wir diese zeitweise brauchen. Wir bekommen aber auch oft Gäste über Nacht, d.h. das Arbeits-/Gästezimmer im EG muss getrennt (über Flur) erreichbar und in der Nähe des Gäste-WC-sein.
Hausentwurf
Von wem stammt die Planung:
Von uns über Wochen entwickelt durch Ausrichtung auf dem Grundstück und Tagesablauf bzw. Nutzungswunsch.
Was gefällt besonders? Warum?
Großer Wohnbereich zum Garten, heller Treppenaufgang mit Ostausrichtung und in Verbindung mit dem Wohnbereich (Aufgang nicht neben Haustür), große Kinderzimmer, Zugang Garage zum Haus.
Was gefällt nicht? Warum?
Zu viel Verkehrsfläche, Waschmaschine und Trockner im HAR EG
Preisschätzung lt Architekt/Planer: ca. 550.000€
Persönliches Preislimit fürs Haus, inkl Ausstattung: 550.000€
favorisierte Heiztechnik: Luft-Wasser Wärmepumpe
Wenn Ihr verzichten müsst, auf welche Details/Ausbauten
-könnt Ihr verzichten: bisher auf keine
-könnt Ihr nicht verzichten: Kamin, offene Küche
Warum ist der Entwurf so geworden, wie er jetzt ist?
Durch Überlegung der eingenen Nutzungswünsche. Angefangen mit der Himmelsausrichtung des Hauses.
Was ist die wichtigste/grundlegende Frage zum Grundriss in 130 Zeichen zusammengefasst?
Der Entwurf ist eigentlich so wie wir es uns Wünschen, bis auf die Flurfläche und auch, dass es im OG keinen Platz für einen kleinen Raum für Waschmaschine und Trockner ist. Alle Wünsche sind wohl auch nicht erfüllbar, aber vielleicht habt Ihr ja Vorschläge und Tipps für uns. Wir freuen uns über alle Antworten!





Größe des Grundstücks: 744m²
Hang: -
Grundflächenzahl: 0,3
Geschossflächenzahl: -
Baufenster, Baulinie und -grenze: auf Lageplan abgebildet
Randbebauung: -
Anzahl Stellplatz: 2
Geschossigkeit: 1,5
Dachform: frei wählbar
Stilrichtung: frei wählbar
Ausrichtung: frei wählbar
Maximale Höhen/Begrenzungen: First 9m, Traufe 4,50m
weitere Vorgaben
Anforderungen der Bauherren
Stilrichtung, Dachform, Gebäudetyp: Einfamilienhaus mit Satteldach und Verblendklinker
Keller, Geschosse: 1,5 Geschosse, kein Keller, ausgebauter Dachboden
Anzahl der Personen, Alter: 2 Erwachsene, 2 Kinder
Raumbedarf im EG, OG: EG ca.90m², OG ca. 80m²
Büro: Familiennutzung oder Homeoffice?: 2x Homeoffice
Schlafgäste pro Jahr: ca. 40
offene oder geschlossene Architektur: -
konservativ oder moderne Bauweise: einfache Bauweise
offene Küche, Kochinsel: ja
Anzahl Essplätze: mind. 6
Kamin: ja
Musik/Stereowand: -
Balkon, Dachterrasse: nicht gebraucht
Garage, Carport: Garage mit Zugang zum Haus
Nutzgarten, Treibhaus: -
weitere Wünsche/Besonderheiten/Tagesablauf, gern auch Begründungen, warum dieses oder das nicht sein soll:
Wichtig war uns, dass wir zwei Arbeitspläte haben, da wir diese zeitweise brauchen. Wir bekommen aber auch oft Gäste über Nacht, d.h. das Arbeits-/Gästezimmer im EG muss getrennt (über Flur) erreichbar und in der Nähe des Gäste-WC-sein.
Hausentwurf
Von wem stammt die Planung:
Von uns über Wochen entwickelt durch Ausrichtung auf dem Grundstück und Tagesablauf bzw. Nutzungswunsch.
Was gefällt besonders? Warum?
Großer Wohnbereich zum Garten, heller Treppenaufgang mit Ostausrichtung und in Verbindung mit dem Wohnbereich (Aufgang nicht neben Haustür), große Kinderzimmer, Zugang Garage zum Haus.
Was gefällt nicht? Warum?
Zu viel Verkehrsfläche, Waschmaschine und Trockner im HAR EG
Preisschätzung lt Architekt/Planer: ca. 550.000€
Persönliches Preislimit fürs Haus, inkl Ausstattung: 550.000€
favorisierte Heiztechnik: Luft-Wasser Wärmepumpe
Wenn Ihr verzichten müsst, auf welche Details/Ausbauten
-könnt Ihr verzichten: bisher auf keine
-könnt Ihr nicht verzichten: Kamin, offene Küche
Warum ist der Entwurf so geworden, wie er jetzt ist?
Durch Überlegung der eingenen Nutzungswünsche. Angefangen mit der Himmelsausrichtung des Hauses.
Was ist die wichtigste/grundlegende Frage zum Grundriss in 130 Zeichen zusammengefasst?
Der Entwurf ist eigentlich so wie wir es uns Wünschen, bis auf die Flurfläche und auch, dass es im OG keinen Platz für einen kleinen Raum für Waschmaschine und Trockner ist. Alle Wünsche sind wohl auch nicht erfüllbar, aber vielleicht habt Ihr ja Vorschläge und Tipps für uns. Wir freuen uns über alle Antworten!
K
K a t j a12.07.22 13:44Kurze Frage: Ist auf dem Lageplan das ganze Grundstück sichtbar oder nur ein Teil?
_Nadine_ schrieb:
Angefangen mit der Himmelsausrichtung des Hauses.Da würde ich zusehen, dass das Kind 1 auch Südlage bekommt.Da Bad im OG eh über Hauswirtschaftsraum und WC besser aufgehoben ist, wäre ein Tausch sehr gut möglich. Im gleichen Zug würde ich Flur und Treppe tauschen. Zugang zum WC dann ggü der Gästezimmertür. Ich verspreche mir dadurch saubere Ecken (ist ja doch irgendwie ein Gefrickel mit der Garderobe und Zugang Gästezimmer zur Zeit. Das bekommt man sauberer hin.
Allerdings habt ihr durch die Haustiefe irgendwie einen Überschuss in der Mitte, deren Qm eventuell besser genutzt werden könnten. Schlafzimmer zb ist schon sehr groß… Flur weit, aber beim Eingang eng. Ich glaube, ihr kommt besser mit den Qm und Wünschen zurecht, wenn man die Hausbreite/Tiefe etwas einkürzt und dafür etwas breiter macht. Ein (halber bis) ein Meter könnte helfen. Dann ergibt sich sicherlich auch ein kleiner Hauswirtschaftsraum im OG. TK-Raum ist recht klein, mM zu klein für Gerödel bei 4 Personen. Treppenverschiebung (s.o), dann könnte man diese ggf auch drehen und ihr etwas mehr Raum geben.
Müsste man alles mal ausprobieren, ob das ein oder andere einen Mehrwert ergibt.
Hallo ypg, lieben Dank fürs Reindenken und die Vorschläge. Gute Idee zu den Hausproportionen, leider sind die Außenmaße mit der Hausbaufirma schon vertraglich geregelt, da können wir nichts mehr machen. Ich glaube darum kommt es nun zum gefrickel innen... aber wir möchten gern schauen was an Optimierung so noch geht...
Die Treppe drehen ist eine interessante Idee und guter Anstoß. Beim Tausch mit dem Flur hängt die Gaube und die Überdachung außen mit dran. Das versuche ich aber trotzdem mal. Vielleicht schafft das ja wieder neue eindrücke, ich bin gespannt.
Das Bad im OG würden wir auch gern mit dem Kinderzimmer tauschen. Leider werden dann die KZ zu klein...
Die Treppe drehen ist eine interessante Idee und guter Anstoß. Beim Tausch mit dem Flur hängt die Gaube und die Überdachung außen mit dran. Das versuche ich aber trotzdem mal. Vielleicht schafft das ja wieder neue eindrücke, ich bin gespannt.
Das Bad im OG würden wir auch gern mit dem Kinderzimmer tauschen. Leider werden dann die KZ zu klein...
_Nadine_ schrieb:
Gute Idee zu den Hausproportionen, leider sind die Außenmaße mit der Hausbaufirma schon vertraglich geregelt, da können wir nichts mehr machen.Ah, ok. Seid ihr sicher, dass man nichts ändern kann, wenn die QM gleich bleiben?Ich würde da nochmal nachfragen.
Ansonsten muss man/wir das dann als gesetzt hinnehmen. Gaube/Erker könnte man ja noch versetzen beim Eingang…?
Im Dachboden, wird da auch Wohnfläche generiert? Unabhängig davon soll er bestimmt praktisch begehbar werden? Da könnte man mit einer festen Treppe arbeiten, allerdings bedeutet das noch mehr Veränderung. Ich versuche mich mal die nächsten Tage am Rechner, Handy-Arbeit funktioniert nicht so gut 😀
Ähnliche Themen