Grundriss Bungalow ca. 160m2 Wohnfläche

4,40 Stern(e) 5 Votes
Zuletzt aktualisiert 19.11.2025
Sie befinden sich auf der Seite 4 der Diskussion zum Thema: Grundriss Bungalow ca. 160m2 Wohnfläche
>> Zum 1. Beitrag <<

E

Eifel87

Bei Süd West habt ihr keine Morgensonne.

Was ist das für ein Grünstreifen?
Währe es nicht gut den Grundriss zu spiegeln? Garage zum Nachbarn

Garage breiter. Wenigstens auf einer Seite sollten die Türen aufgehen und ein ein- und aussteigen ohne Schuhlöffel möglich sein

Euer Budget und die Eigenleistung ist sportlich.

Warum wollt ihr so eine starke Trennung Eltern Kind?
So, jetzt komme ich endlich zum Antworten...
Hatte mich natürlich verschrieben, Schlafzimmer hat Fenster Richtung Süd-Süd-West und Süd-Süd-Ost.
Ich habe jetzt den genordeten Lageplan sowie eine genordete Version des Entwurfes und einen Ausschnitt des Bebauungsplan beigefügt .

Der Grünstreifen ist öffentlich und wird mit Sträuchern / Bäumen bepflanzt.

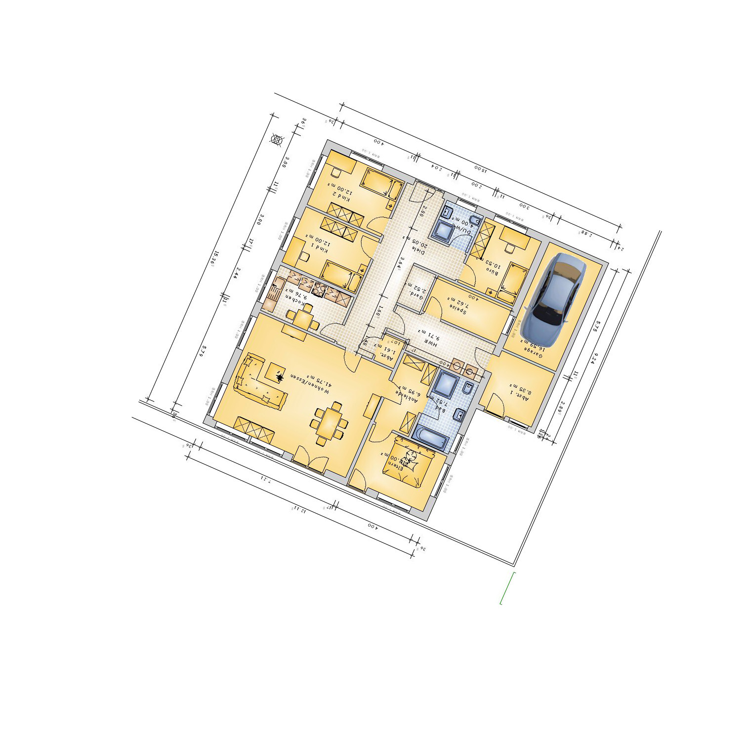
Die Garage hatte ich an der dem Grünstreifen zugewandten Seite aus zwei unterschiedlichen Gründen eingeplant. Zum einen ist vor der Garage eine Abstandsfläche von 5 m zum öffentlichen Verkehrsraum einzuplanen, weshalb es an dieser Seite auf Grund der spitzen Seite des Grundstückes mehr Sinn macht. Ansonsten müsste man die Garage nach hinten versetzen und hätte keine gleichmäßige Hausfront. Zum anderen ist sie dort verplant um sicher zu gehen, dass diese frei steht und keine Garage des Nachbarn direkt daran gebaut wird. Damit haben wir hier bereits negative Erfahrungen gemacht (Unsachgemäße Abdichtung der Nachbargarage, Wasser in der Zwischenwand welches zur Abplatzung von Farbe/ Putz etc. führte und einfach nur eine negative Grundstimmung mit den Nachbarn schuf).

Die Trennung Eltern-Kind war sowohl mir als auch meiner Partnerin in den Sinn gekommen. Ist zwar in den Anfangsjahren sicherlich nicht so dass Problem, aber wenn man dann mal Teenies hat, die da rummachen oder laute Musik hören, ist diese Trennung nicht verkehrt.

Ich weiß nicht, warum Du das Rad des Bungalows neu erfinden willst. Es gibt ja gute Pläne, die man mit wenigen Details super für sich verändern kann. Hier sehe ich das ehrlich gesagt nicht.
Wir haben nach Plänen gesucht, sind aber bezüglich der Vorgaben 2 Kinderzimmer, 1 Büro und 2 Bäder nicht fündig geworden :-(

Ist das auf dem Plan nicht Grünfläche im Norden?
Wird das Grundstück nicht von der „An den Eichen“ erschlossen? Wie kommt man bei Eingangsseite NNO in die Garage?
Nein, das lag noch daran, dass tapatalk die Bilder gedreht hat... Grünstreifen liegt eher im Osten. Erschließung natürlich von "An den Eichen". Die Garage sollte davor eine Einfahrt haben die mit einem Carport überdacht wird.

Da wäre also die Frage nach der Bezugsebene für diese Höhenangaben
Hierzu steht folgendes in den textlichen Festsetzungen:
Höhe der baulichen Anlagen
Hauptgebäude
Die OK FB (Oberkante Fertigfußboden) des Erdgeschosses, gemessen in der
Mitte der Fassade, darf nicht mehr als 0,5 m über Bezugspunkt liegen.
Die maximale Gebäudehöhe der Hauptgebäude über OK FB wird gemäß
Nutzungsschablone wie folgt begrenzt:
• im Gebiet WA 4 maximal 5,5 m bei einer Dachneigung von 0-20°

Hier hatte ich bedenken wegen der 20 ° (glaube die Normpfannen fangen bei min. 22° Dachneigung an) und habe überlegt ob die Realisierung der Geschossdecke mittels Spannbetonelementen und Isolation nicht kostengünstiger ist als ein kompletter Dachstuhl mit Ziegeln etc.. Das werde ich aber auf jeden Fall noch mal genauer gegenüberstellen.

Ich schließe mich @haydee an und rate, alles neu zu planen
Ich werde mir eure vielen Ratschläge jetzt mal zu Herzen nehmen, mich bezüglich der Wärmeverteilung genauer einlesen und auch die Raumanordnung/-Aufteilung noch mal überdenken.

Beraten wird uns letztendlich noch ein Architekt, daher wird es sicherlich noch mal ganz anders werden.

Die weiteren Entwürfe werde ich hier selbstverständlich auch posten.

Gruß
Christian

Plotplan mit nummerierten Grundstücken, Grenzlinien und Straßennamen.


Grundriss eines Hauses mit gelben Räumen, Bad, Küche, Wohnzimmer und Garage mit Auto.


Lageplan mit Grundstücksgrenzen, Legende und farblich markierten Bereichen.
 
H

haydee

Würde Küche und Schlafen von der Ausrichtung tauschen. Terrasse zum Grünstreifen, blickgeschützt durch die Garage.

Garage evtl etwas nach hinten schieben. Keine einheitliche Front mehr. Jedoch Eingang von der Seite
- Schlauchgang entfällt
- Türe in den Hauswirtschaftsraum kann entfallen

Eltern-Kinderbereich muss nicht so extrem Getrennt werden. Ist soviel Krach im Kinderzimmer das ihr trotz Bad und Ankleide dazwischen was hört nutzt die jetzige Trennung auch nichts. Was macht ihr wenn die Kinder äh jungen Erwachsene das Wohnzimmer entern?

Zur Türe Hauswirtschaftsraum Garage
Solange die Garage so schmal ist nutzt niemand die Türe solange ein Auto drinnen steht. Man kommt mit einem Korb etc nicht dran vorbei
 
11ant

11ant

Zum einen ist vor der Garage eine Abstandsfläche von 5 m zum öffentlichen Verkehrsraum einzuplanen, [...] Die Garage sollte davor eine Einfahrt haben die mit einem Carport überdacht wird.
Zuweilen gilt diese Abstandsfläche dann auch für den Carport, und kann insofen nicht mit einem solchen "genutzt" werden.

Ansonsten müsste man die Garage nach hinten versetzen und hätte keine gleichmäßige Hausfront.
Inwiefern ist das ein Wert an sich ?

Die OK FB (Oberkante Fertigfußboden) des Erdgeschosses, gemessen in der
Mitte der Fassade, darf nicht mehr als 0,5 m über Bezugspunkt liegen.
Und welcher ist das: die Straßenhöhe an dieser Stelle, ein bestimmter Messpunkt in diesem Bereich, ein Kanaldeckel etc. ?

Hier hatte ich bedenken wegen der 20 ° (glaube die Normpfannen fangen bei min. 22° Dachneigung an)
Da würde ich vermutlich eher eine Ausnahme auf 22° anstreben als auf ein anderes Bedachungskonzept auszuweichen.

Solange die Garage so schmal ist nutzt niemand die Türe solange ein Auto drinnen steht.
Da kommt schon mangels eines Tores garkein Auto hinein, man müßte es ja einmauern
 
Zuletzt aktualisiert 19.11.2025
Im Forum Grundrissplanung / Grundstücksplanung gibt es 2536 Themen mit insgesamt 87979 Beiträgen


Ähnliche Themen zu Grundriss Bungalow ca. 160m2 Wohnfläche
Nr.ErgebnisBeiträge
1Grundriss: 150qm Einfamilienhaus+Einliegerwohnung - Carport / Garage + Schuppen / Werkstatt - Seite 245
2 2 Vollgeschosse, Durchgang Garage, Hauswirtschaftsraum unter Treppe - Seite 325
3Bebaute Fläche: Gehören Garage / Carport zur bebauten Fläche? 19
4Haus, Garage / Carport auf dem Grundstück platzieren - Seite 493
5Carport/Garage Breite - Reichen 2.50m oder ist das eher zu schmal 29
6Bauen ohne Keller - Carport, Garage? - Seite 318
7Garage im Haus oder Carport daneben 10
8Garage, Carport oder beides? 12
9Zugang von der Garage in den Hauswirtschaftsraum 49
10Carport oder Garage, was macht mehr Sinn? - Seite 244
11Nebeneingangstür Garage / Haus, Hauswirtschaftsraum Garagenverordnung Niedersachsen - Seite 314
12Haus und Garage, Carport Platzierung auf Hinterliegergrundstück 12
13Garage, Carport mit Fahrradschuppen - Grundstücksplanung - Seite 222
14Garage genehmigt, aber Carport gebaut 23
15Grundrissentwurf eines Passivhauses 170m² mit Garage - Seite 218
16Grundriss, längliches Einfamilienhaus, integrierte Garage kein Keller 16
17Einfamilienhaus ~190qm, drei Kinderzimmer, ohne Keller - Feedback wäre mega 19
18Strom vom Haus in die Garage legen 11
19Hanghaus 235 qm mit Garage im Keller auf 3600 qm Grundstück 15
20Grundriss Einfamilienhaus ohne Keller, 3 Kinderzimmer und Büro 18

Oben