Grundriss, Bauen mit Baum, Einliegerwohnung und Altbestand

4,60 Stern(e) 7 Votes
Zuletzt aktualisiert 22.12.2025
Sie befinden sich auf der Seite 3 der Diskussion zum Thema: Grundriss, Bauen mit Baum, Einliegerwohnung und Altbestand
>> Zum 1. Beitrag <<

H

haydee

Du planst mit Flur um Zugang ohne Wettereinflüsse zu haben bei Pflegebedarf und zeitgleich reduzierst du die baulichen Anforderungen in dem Zimmer deines Vaters.
Bei Allkauf Haus mit Mehrgenerationen gibt es auch Beispiele von Einliegerwohnung die keine komplette Geschossfläche haben. Aber es sind Wohnungen und kein Zimmer mit Bad. Ihr wohnt jetzt sehr beengt wenn die 61 qm stimmen. Ich finde die Aufteilung der Wohnfläche unausgewogen. Ihr gesteht deinem Vater 1 Zimmer für Schlafen/Essen/Kochen/Wohnen zu das ungefähr so groß wie die Kinderzimmer sind. Ein paar QM mehr wären auch für einen fitten gesunden Menschen kein Luxus.
 
X

xMisterDx

Es gibt keinen Hamburg-Bonus. Dieser "Bonus" versteckt sich in den Grundstückspreisen, das Grundstück ist aber vorhanden. Hamburg ist vom Hauspreis selbst sogar günstiger als BaWü.

Aber selbst wenn man mit 3.500 EUR rechnet, wofür man auf jeden Fall ein Haus mit gehobener Ausstattung bekommt, landet man für 180m² "nur" bei 630.000 EUR. Bleiben 170.000 EUR übrig für Abriss, Nebenkosten, auf einen Keller kann man bei 180m² sicherlich verzichten.

450.000 EUR Eigenkapital sind vorhanden, plus Grundstück. Ich sehe da kein Problem ehrlich gesagt und frage mich, wo das eng werden sollte.
Hausanschlüsse sind ja auch vorhanden, das teure aufreißen der Straße entfällt.
 
B

BucheOnBoard

Also die Planung sieht vor, dass wir uns weiter schlau machen - letzte Woche ein paar Termine mit Baumpflegern gehabt, unisono war der Tenor, dass man den Baum maximal 2 Meter beschneiden darf, aber nicht in der Höhe. Aber alle meinten auch, das es in Hamburg "gut ankommt" wenn man da im Bauantrag schon in diversen Aspekten drauf Rücksicht nimmt und sich nicht später überrascht stellt. Daher denken wir an, wie auch von @kbt09 vorgeschlagen, das Haus an der westlichen Baugrenze beginnen zu lassen. Aktuelle Idee sind 8,5m Breite und 12,5-13m Tiefe, ich skizziere da gerade dran herum und wenn meine Idee fertig ist, werde ich sie hier gern kritisch zur Schau stellen ;) Wir suchen aber auch noch nach einem Architekten...

Parallel fangen wir an Abrissangebote einzuholen, um da auch einen Preis zu bekommen und klären weiter unser Budget - Eigenkapital ist zwar solide, das monatliche Einkommen aber "nur" normal. Das neue KFW-Programm dürfte uns daher ganz gut bekommen, da wir eh KFW40 und Holzbau ohne fossile Heizung vorhatten.
Die Einliegerwohnung wird am Ende wohl ca 30m² haben, da habe ich mich noch weiter mit @haydees Links beschäftigt - daher aber auch weiterhin Keller...
 
B

BucheOnBoard

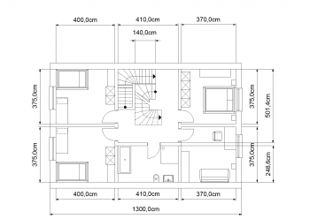
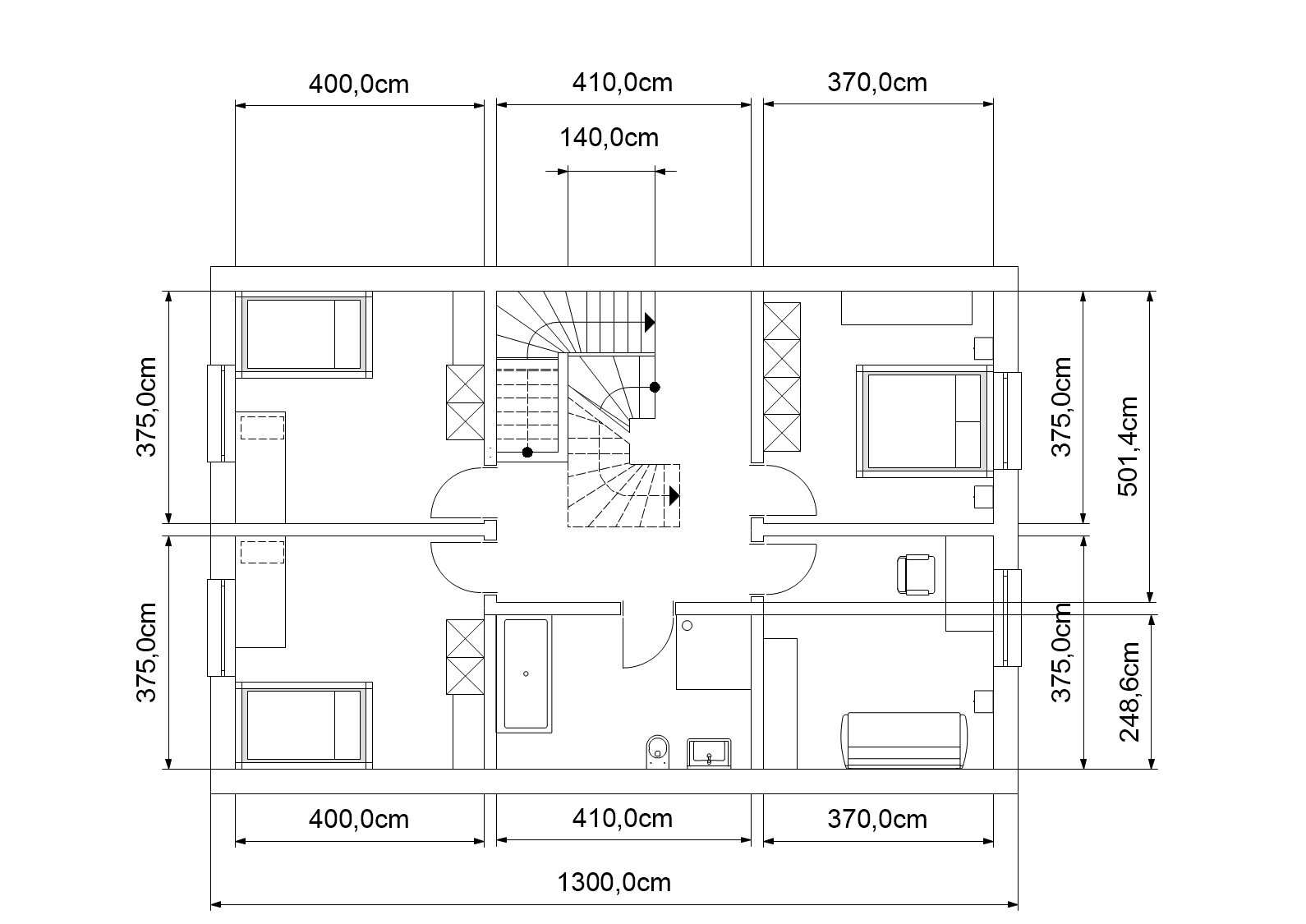
Also, ich habe mal etwas skizziert, mit allem im Kopf, was ich hier in den letzten Jahren so gelesen habe. Und mir hoffentlich gemerkt habe. Lageplan und Luftbild sind noch im ersten Beitrag des Threads zu finden, den Keller habe ich noch nicht skizziert, Speisekammer ist schon gestrichen.

"Bauchweh" macht mir noch der Platzverbrauch von Treppenhaus+Fluren, aber ich habe keine andere Lösung gefunden, die einen gemeinsamen Eingangsbereich mit Kellerabgang ermöglicht, von dem dann die Einliegerwohnung und die Hauptwohnung zu erreichen sind und wo das Treppenhaus in das OG dann nicht direkt hinter der Wohnungstür ist. Außerdem soll man ja auch mit einer recht normalen Treppe in den ausgebauten Dachboden kommen.

Und jetzt bin ich gespannt, was ich wohl alles vergessen habe ;)
2D-Grundriss eines Hauses mit Treppenhaus, Eingangsbereich, Küche, Wohnzimmer und Bad.

Grundriss eines Hauses: zentrale Treppe, Räume mit Möbeln, Maßangaben in cm
 
K a t j a

K a t j a

Tatsächlich hatte ich ähnlich angefangen, aber dachte, ich warte mal Deinen Plan ab.
Jetzt muss ich aber doch mal fragen, wie hoch ist Dein Kniestock? Unter 2m kommst Du ja schlecht bei der Treppe raus. Bei Bebauungsplan "ein Vollgeschoss" wird das so eher nix.
 
Zuletzt aktualisiert 22.12.2025
Im Forum Grundrissplanung / Grundstücksplanung gibt es 2554 Themen mit insgesamt 88554 Beiträgen


Ähnliche Themen zu Grundriss, Bauen mit Baum, Einliegerwohnung und Altbestand
Nr.ErgebnisBeiträge
1Machbarkeit Finanzierung Neubau (Grundstück+REH bzw. Doppelhaushälfte) 93
2Allkauf Haus bietet Vollkeller für 9999€?! - Seite 318
3Allkauf Haus Finanzierungsvorbehalt 50
4Ein 180qm Haus für 300.000 EUR machbar? 76
5Allkauf Haus Erfahrungen - Wer kann über die Firma berichten? 10
6Absage des Montagetermins bei Allkauf Haus - Kosten oder Schadenersatz? 36
7Allkauf Haus. Erfahrung zum Thema Rücktritte 18
8Erfahrungen mit Allkauf Haus im Raum BaWü - Seite 317
9Grundrissoptimierung Einfamilienhaus mit Keller auf kleinem Grundstück - Seite 14178
10Finanzierung / Eigenkapital / Einliegerwohnung - Grundsätzliche Gedanken - Seite 248
11Grundriss für Einfamilienhaus mit 200m² mit Einliegerwohnung 75 +Keller 140m² +Garage 56m² 59
12Grundriss, Hausanordnung EFW 150m2, Keller + Einliegerwohnung - Feedback erwünscht - Seite 667
13Grundstück als Eigenkapital? Lebenshaltungskosten mit Kindern? 19
14Eigenheim Bauen? Grundstück in Aussicht - Seite 219
15Grundstück geeignet für Schmales Haus für 5 Personen? 43
16Kosten für ein Einfamilienhaus Neubau, 2 Vollgeschosse, ohne Keller 18
17Fertighausbau - Raum Ingolstadt - Seite 542
18Fertighaus / Ausbauhaus 86
19Allkauf Haus Fertighaus-Werkvertrag nicht änderbar - Rechtlich ok? 11
203D Hausmodell vom Architekten von Allkauf Haus 20

Oben