ᐅ Perfekter Grundriss für unser Einfamilienhaus gesucht - Danke für Ideen
Erstellt am: 11.09.18 09:10
G
Golfi90Hallo Zusammen!
Wir sind auf der Suche nach einem passenden Grundriss für unser, hoffentlich bald, zukünftiges Eigenheim.
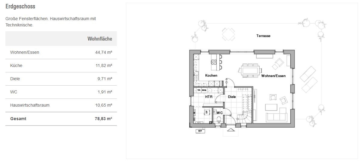
Wir waren in verschiedenen Musterhausparks und dabei ist uns das Maxime 300 von Viebrockhaus in´s Auge gestoßen.
Ich habe euch mal die passenden Grundrisse angehangen.
Der Grundriss gefällt uns so sehr sehr gut! Wir waren sofort begeistert.
Das Einzige was geändert werden müsste ist, das wir das Obergeschoss komplett spiegeln wollen würden! Sprich, das wir mit dem Hauptbadezimmer und dem Elternschlafzimmer über der Küche und dem Essbereich sind.
Das ganze ist dem schönen Ausblick zuzuschreiben den wir dann hätten. So würden wir über ein freies Feld schauen und dem schönen Wiehengebirge entgegen.
Was haltet Ihr im großen und ganzen von dem Grundriss und ist eine Spiegelung des Dachgeschosses überhaupt möglich, aufgrund von Wasserleitungen etc.?
Habt ihr konkrete Verbesserungsvorschläge?
Über ein paar Meinungen und Anregungen würde ich mich sehr freuen.
Viele Grüße!



Wir sind auf der Suche nach einem passenden Grundriss für unser, hoffentlich bald, zukünftiges Eigenheim.
Wir waren in verschiedenen Musterhausparks und dabei ist uns das Maxime 300 von Viebrockhaus in´s Auge gestoßen.
Ich habe euch mal die passenden Grundrisse angehangen.
Der Grundriss gefällt uns so sehr sehr gut! Wir waren sofort begeistert.
Das Einzige was geändert werden müsste ist, das wir das Obergeschoss komplett spiegeln wollen würden! Sprich, das wir mit dem Hauptbadezimmer und dem Elternschlafzimmer über der Küche und dem Essbereich sind.
Das ganze ist dem schönen Ausblick zuzuschreiben den wir dann hätten. So würden wir über ein freies Feld schauen und dem schönen Wiehengebirge entgegen.
Was haltet Ihr im großen und ganzen von dem Grundriss und ist eine Spiegelung des Dachgeschosses überhaupt möglich, aufgrund von Wasserleitungen etc.?
Habt ihr konkrete Verbesserungsvorschläge?
Über ein paar Meinungen und Anregungen würde ich mich sehr freuen.
Viele Grüße!
Sind denn schon Kinder da?
Falls nicht, könnt Ihr ja das Bett so lange ins Kinderzimmer stellen. Falls ja, würde ich mal überlegen, ob Euer Kind tagsüber mehr von der schönen Aussicht hat, als Ihr nachts beim schlafen?
Einfach mal schnell spiegeln geht immer nur, wenn man das EG mitspiegelt. Das kann man erst beurteilen, wenn das ganze Grundstück bekannt ist. Ansonsten muss das OG neu, da die Treppe ja nicht mal eben zur Seite hüpfen kann.
Falls nicht, könnt Ihr ja das Bett so lange ins Kinderzimmer stellen. Falls ja, würde ich mal überlegen, ob Euer Kind tagsüber mehr von der schönen Aussicht hat, als Ihr nachts beim schlafen?
Einfach mal schnell spiegeln geht immer nur, wenn man das EG mitspiegelt. Das kann man erst beurteilen, wenn das ganze Grundstück bekannt ist. Ansonsten muss das OG neu, da die Treppe ja nicht mal eben zur Seite hüpfen kann.
kaho674 schrieb:
Sind denn schon Kinder da?
Falls nicht, könnt Ihr ja das Bett so lange ins Kinderzimmer stellen. Falls ja, würde ich mal überlegen, ob Euer Kind tagsüber mehr von der schönen Aussicht hat, als Ihr nachts beim schlafen?Es sind keine Kinder da. Und es ist ungewiss ob 1 oder 2 Kinder kommen "sollen" oder ob überhaupt...
Der Ausblick der Kinderzimmer wäre auch so keinesfalls schlecht! Bitte nicht falsch verstehen. Das Haus wäre komplett freistehend ohne direkte Nachbarn.
Climbee schrieb:
Was mir direkt aufgefallen ist: Schlafzimmer über Ankleide begehbar machen, dann kann auch diese schepse schiefe Tür wegfallen und die Mauer gerade gezogen Warden.Ist es denn schöner durch den Kleiderschrank in´s Schlafzimmer zu gehen?
Climbee schrieb:
Absolut. Zumindest, wenn ihr nicht immer gleichzeitig aufsteht oder ins Bett geht. Dann stört der, der später kommt oder früher geht den anderen nicht.
Und allein schon um diese grausige 45°-Tür weg zu bekommen, wäre es schöner Ja, da magst du recht haben. Die 45° Tür finde ich auch nicht berauschend. Hätten wir uns aber mit abgefunden.
Ähnliche Themen