Hallo zusammen,
wir haben ein altes Haus (Baujahr 65) gekauft und möchten nun unseren Anbau planen. Im OG wird sich nichts ändern, dort haben wir schon saniert. Der Bereich soll später nur für (mögliche) Kinder und unser Büro innehalten.
Keller ist ebenso vorhanden, dementsprechend auch der Technikraum im Keller.
Ich habe mal versucht den aktuellen Grundriss so gut wie möglich zu visualisieren und haben einen ersten Entwurf zu unserem neuen Anbau etc. erstellt.
Wir können ca. 3 Meter zur Straßenseite und gut 5 Meter zum Nachbarn anbauen. Den Eingang möchten wir gerne vorne haben. Den alten Eingang können wir als Nebeneingang (Zugang vom Carport) nutzen.
Unsere Küche ist aktuell groß genug, jedoch möchten wir eine Backup-Küche mit verstecktem Eingang durch die Schranktüre haben. Von diesem Raum soll man ebenfalls durch eine Außentür auf die Terrasse gelangen
Im Esszimmerbereich soll eine große Schiebetüre hin, sodass ein einheitliches Bild mit der Terrasse entsteht.
Die Treppe soll erhalten bleiben, da wir Sie sehr schön finden und den Bereich wirklich nur zum Aufgang (OG) und Abgang (Keller) benutzen.
Weitere Fragen:
1. Ankleideraum zu schmal?
2. Badezimmer T-Lösung oder habt ihr Alternativen für mich?
3. Sonstige Dinge unpassend/unsinnig?
4. Weitere Anmerkungen? Ich freue mich über Erfahrungen
Ich freue mich sehr auf eure Anregungen, Kommentare, Kritiken etc.!
Danke!


wir haben ein altes Haus (Baujahr 65) gekauft und möchten nun unseren Anbau planen. Im OG wird sich nichts ändern, dort haben wir schon saniert. Der Bereich soll später nur für (mögliche) Kinder und unser Büro innehalten.
Keller ist ebenso vorhanden, dementsprechend auch der Technikraum im Keller.
Ich habe mal versucht den aktuellen Grundriss so gut wie möglich zu visualisieren und haben einen ersten Entwurf zu unserem neuen Anbau etc. erstellt.
Wir können ca. 3 Meter zur Straßenseite und gut 5 Meter zum Nachbarn anbauen. Den Eingang möchten wir gerne vorne haben. Den alten Eingang können wir als Nebeneingang (Zugang vom Carport) nutzen.
Unsere Küche ist aktuell groß genug, jedoch möchten wir eine Backup-Küche mit verstecktem Eingang durch die Schranktüre haben. Von diesem Raum soll man ebenfalls durch eine Außentür auf die Terrasse gelangen
Im Esszimmerbereich soll eine große Schiebetüre hin, sodass ein einheitliches Bild mit der Terrasse entsteht.
Die Treppe soll erhalten bleiben, da wir Sie sehr schön finden und den Bereich wirklich nur zum Aufgang (OG) und Abgang (Keller) benutzen.
Weitere Fragen:
1. Ankleideraum zu schmal?
2. Badezimmer T-Lösung oder habt ihr Alternativen für mich?
3. Sonstige Dinge unpassend/unsinnig?
4. Weitere Anmerkungen? Ich freue mich über Erfahrungen
Ich freue mich sehr auf eure Anregungen, Kommentare, Kritiken etc.!
Danke!
zizou89 schrieb:
Ich habe mal versucht den aktuellen Grundriss so gut wie möglich zu visualisieren und haben einen ersten Entwurf zu unserem neuen Anbau etc. erstellt.Das hast Du in https://www.hausbau-forum.de/threads/statikfrage-ist-diese-wand-tragend.43347/ zumindest etwas besser geschafft, und in https://www.hausbau-forum.de/threads/einfamilienhaus-vergroessern-kernsanieren-oder-abreissen-und-neubauen.42074/page-5#post-547011 sieht man es nochmals deutlich klarer. Deine zweite Zeichnung hier enthält wieder den Fehler, auf den ich Dich bereits hinwies: Du stellst hier durch den Anbau zu Innenwänden gewordene Außenwände so dar, als ob sie tatsächlich dünne Wändchen wären (was sie nicht sind, sondern hier praktisch nicht wesentlich änderbar).zizou89 schrieb:
1. Ankleideraum zu schmal?Nun ja, zumindest schlauchig. Die Backup-Küche ist im Plan so dargestellt, als diene sie nur als Sommerküche für die Terrasse. Ich vermute jedoch eher, sie wäre günstiger von der Hauptküche erreichbar vorgesehen und eigentlich auch so geplant. Weshalb vertraust Du nicht einfach einem Architekten ?https://www.instagram.com/11antgmxde/
https://www.linkedin.com/company/bauen-jetzt/
Vielleicht solltest Du beim Altbewährten bleiben und den Grundriss im Istzustand zeigen und dort dann die Änderungen, farblich markiert, einzeichnen. Rot für Wände, die abgetragen werden sollen, gelb für neue Wände.
Ich wüsste beim Switchen der beiden Bilder jetzt nämlich nicht, was der Anbau großartig bewirken soll.
Wollt Ihr das WZ als Durchgangszimmer für alles nehmen? Vom Eingang zur Treppe? Das würde ich auf keinen Fall machen.
Ich habe ehrlich gesagt anfangs gedacht, dass ihr den Eingang, dort wo er jetzt ist, nur vergrößern wollt. Mir ist da jetzt tatsächlich einiges schleierhaft.
Liegt es nicht eher nahe, dass ihr das WZ dreht und den Zugang zum Elternbereich dort macht, wo Bad und Couch aufeinandertreffen? Dann ist das Schlafzimmer kein ruheloser Durchgangsraum und man kann dort über eine bessere Raumordnung eine adäquatere Ankleide verfügen. Denn: ja, die Ankleide ist so jetzt sehr schmal, dass zwei schränke nicht passen, dafür hat das Bad einen Bereich, der ungenutzt daherkommt.
Edit: jetzt sehe ich: Du meinst die Diele, die dort eingezeichnet ist?
Zeige einfach mal das Vorher und das Nachher
Ich wüsste beim Switchen der beiden Bilder jetzt nämlich nicht, was der Anbau großartig bewirken soll.
zizou89 schrieb:Dann mache ihn doch bitte mal kenntlich.
Den Eingang möchten wir gerne vorne haben.
Wollt Ihr das WZ als Durchgangszimmer für alles nehmen? Vom Eingang zur Treppe? Das würde ich auf keinen Fall machen.
Ich habe ehrlich gesagt anfangs gedacht, dass ihr den Eingang, dort wo er jetzt ist, nur vergrößern wollt. Mir ist da jetzt tatsächlich einiges schleierhaft.
Liegt es nicht eher nahe, dass ihr das WZ dreht und den Zugang zum Elternbereich dort macht, wo Bad und Couch aufeinandertreffen? Dann ist das Schlafzimmer kein ruheloser Durchgangsraum und man kann dort über eine bessere Raumordnung eine adäquatere Ankleide verfügen. Denn: ja, die Ankleide ist so jetzt sehr schmal, dass zwei schränke nicht passen, dafür hat das Bad einen Bereich, der ungenutzt daherkommt.
Edit: jetzt sehe ich: Du meinst die Diele, die dort eingezeichnet ist?
Zeige einfach mal das Vorher und das Nachher
@ypg ... da ist eigentlich ein Vorher und ein Nachher-Plan. Der 380 cm? Streifen rechts und der knapp 500 cm Streifen oben quer ist das Neue, deshalb ja die Äußerung von @11ant, dass der NEUPlan nicht zeigt, wo die alten Außenmauern stehen.
Ich frage mich, ob die Grundflächenzahl diese sehr große Vergrößerung überhaupt hergibt.
Und leider sind die Zahlen mal wieder in hellgrau und kaum lesbar.
Was auch fehlt, die Einordnung der Planung auf dem Grundstück ... ist der Grundriss genordet?
Ich frage mich, ob die Grundflächenzahl diese sehr große Vergrößerung überhaupt hergibt.
Und leider sind die Zahlen mal wieder in hellgrau und kaum lesbar.
Was auch fehlt, die Einordnung der Planung auf dem Grundstück ... ist der Grundriss genordet?
kbt09 schrieb:
da ist eigentlich ein Vorher und ein Nachher-Plan.Sorry, ich sehe und verstehe es nicht. Er fragt doch auch nach Ankleide. Das wird doch dann neu sein?! Wie war es denn vorher?
Dann soll ursprünglich der Eingang wohl seitlich gewesen sein. Was war denn vorher Diele? Usw.
ypg schrieb:
Vielleicht solltest Du beim Altbewährten bleiben und den Grundriss im Istzustand zeigen und dort dann die Änderungen, farblich markiert, einzeichnen. Rot für Wände, die abgetragen werden sollen, gelb für neue Wände.
Ich wüsste beim Switchen der beiden Bilder jetzt nämlich nicht, was der Anbau großartig bewirken soll.
Dann mache ihn doch bitte mal kenntlich.
Wollt Ihr das WZ als Durchgangszimmer für alles nehmen? Vom Eingang zur Treppe? Das würde ich auf keinen Fall machen.
Ich habe ehrlich gesagt anfangs gedacht, dass ihr den Eingang, dort wo er jetzt ist, nur vergrößern wollt. Mir ist da jetzt tatsächlich einiges schleierhaft.
Liegt es nicht eher nahe, dass ihr das WZ dreht und den Zugang zum Elternbereich dort macht, wo Bad und Couch aufeinandertreffen? Dann ist das Schlafzimmer kein ruheloser Durchgangsraum und man kann dort über eine bessere Raumordnung eine adäquatere Ankleide verfügen. Denn: ja, die Ankleide ist so jetzt sehr schmal, dass zwei Schränke nicht passen, dafür hat das Bad einen Bereich, der ungenutzt daherkommt.
Edit: jetzt sehe ich: Du meinst die Diele, die dort eingezeichnet ist?
Zeige einfach mal das Vorher und das NachherHey,
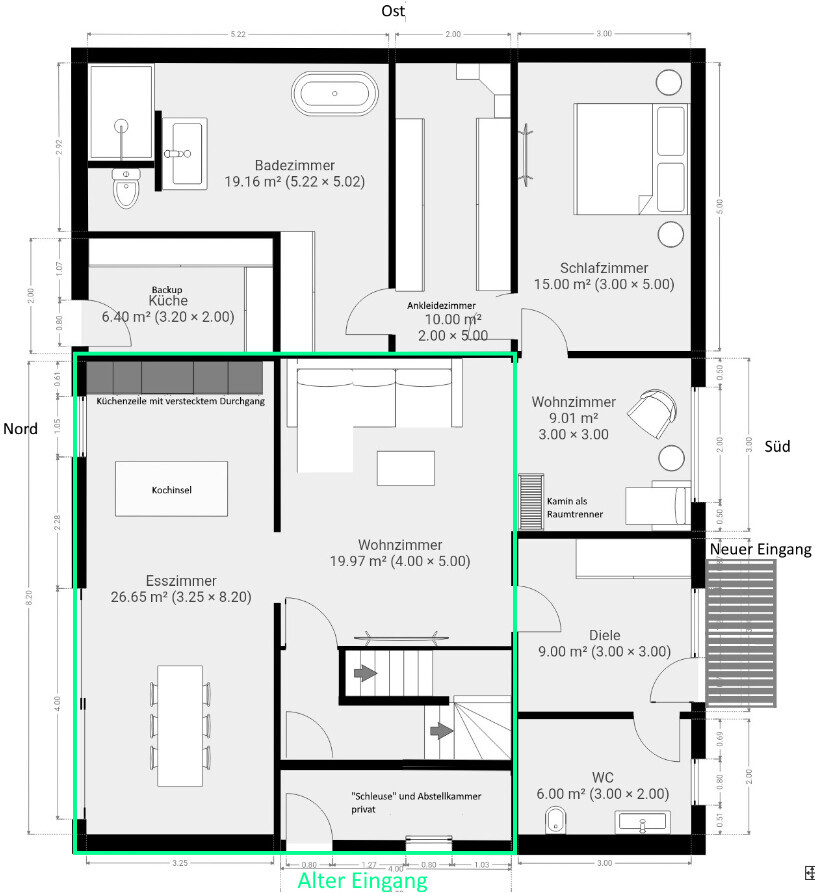
anbei in dem grünen Kasten der IST-Zustand mit altem Eingang. Das aktuelle Gäste-WC haben wir in den Anbau gelegt, da unser aktuelles Gäste-WC viel zu klein ist (2 qm2).
Unser aktuellen Haupteingang möchten wir in Zukunft als Nebeneingang nutzen, den aber nur wir privat nutzen (direkt vom Carport aus).
Der Punkt mit dem Durchgangsverkehr macht Sinn, ist für uns aber nicht so wild da wird den aktuellen Grundriss nicht vollends über den Haufen werfen wollen (dann könnten wir auch direkt neubauen 😉 )
@kbt09 Die Grundflächenzahl ist kein Problem, das haben wir schon mit der Stadt geklärt!
Danke schonmal vorab für euer Feedback.
Bis jetzt habe ich mitgenommen, dass die Ankleide zu schmal ist. Wie würdet ihr es in dem Bereich des Hauses anordnen. Aktuell ist das Bad ja auch sehr groß, das ist ja nicht unbedingt nötig.
Ähnliche Themen