ᐅ Fertighaus über alten Bestandskeller bauen?
Erstellt am: 07.05.17 23:02
B
BartJSimpson09.05.17 11:23@11ant:
Vielen Dank für deine Mühe und deine guten Vorschläge.
Leider hat der Keller aber eine Tiefe von nur 8,58m. Multipliziert mit der Breite des neuen Fertighauses (12,35m) ergibt das eine Grundfläche von 105,96qm. Im Vergleich dazu hat das Fertighaus eigentlich folgende Maße: 12,35m x 9,10m + 4,61m x 1,20m = 117,92 qm und somit bereits 12 qm mehr Grundfläche. Aber ich kann mal beim Fertighausanbioeter nachfragen, ob das Haus auch breiter sein kann.
Eventuell kann man noch vorne zur Straßenseite auf die Kellerfenster verzichten und somit mit zusätzlichem Fundament weitere Quadratmeter gewinnen.
Hat eigentlich irgendjemand hier Erfahrungen gemacht, wie flexibel sich bei Fertighäusern Grundrisse ändern lassen und was das an Mehrkosten in etwa bedeuten kann?
Vielen Dank für deine Mühe und deine guten Vorschläge.
Leider hat der Keller aber eine Tiefe von nur 8,58m. Multipliziert mit der Breite des neuen Fertighauses (12,35m) ergibt das eine Grundfläche von 105,96qm. Im Vergleich dazu hat das Fertighaus eigentlich folgende Maße: 12,35m x 9,10m + 4,61m x 1,20m = 117,92 qm und somit bereits 12 qm mehr Grundfläche. Aber ich kann mal beim Fertighausanbioeter nachfragen, ob das Haus auch breiter sein kann.
Eventuell kann man noch vorne zur Straßenseite auf die Kellerfenster verzichten und somit mit zusätzlichem Fundament weitere Quadratmeter gewinnen.
Hat eigentlich irgendjemand hier Erfahrungen gemacht, wie flexibel sich bei Fertighäusern Grundrisse ändern lassen und was das an Mehrkosten in etwa bedeuten kann?
Fertighäuser sind heute nicht mehr wie zur Zeit des Vorgängerbaus, wo der Keller unter das Haus passend gemacht werden mußte, und auch innen alles nur in Rastersprüngen (von meist fünf Achtelmetern) änderbar war. Sondern sie sind heute zentimeterweise änderbar. Individualplanungen sind heutzutage am dritthäufigsten, auf Platz zwei stehen Typenentwürfe mit geringen Änderungen, und auf Platz eins Typenentwürfe mit Änderungen in Breite und Tiefe, Dachneigung, Raumwidmungen, Treppenposition und Innenwandverläufen. Der unveränderte Typenentwurf bildet das Schlußlicht.
Mit Kosten verbindet sich das abhängig vom Anbieter. Billiganbieter - zu denen Gussek Haus nicht zählt - kalkulieren gerne verlockende Grundpreise und fette Aufpreise.
Bis der Aufwand einer Umplanung den "geschenkten" Keller kompensiert, müßte man allerdings mehr als vier Seiten ändern müssen
Ich sehe Ist und Soll allerdings sehr viel leichter zusammenfinden als Du. Routine halt.
Die Erweiterung in einer Dimension ist ein sehr geringer Aufwand.
Deine Ängste einer Raumreduzierung teile ich nicht, mehr als Blinddärme wird man dem Grundriss nicht entnehmen müssen und man kann auch in einer Dimension viel kompensieren.
Wie gesagt: Stell mal das Grundstück und den Bebauungsplan-Ausschnitt ein, dann sieht man genauer.
Nur so aus Jux: welcher Hersteller hat denn das bestehende Haus gebaut ? - zeig mal Außenaufnahmen davon.
https://www.instagram.com/11antgmxde/
https://www.linkedin.com/company/bauen-jetzt/
Mit Kosten verbindet sich das abhängig vom Anbieter. Billiganbieter - zu denen Gussek Haus nicht zählt - kalkulieren gerne verlockende Grundpreise und fette Aufpreise.
Bis der Aufwand einer Umplanung den "geschenkten" Keller kompensiert, müßte man allerdings mehr als vier Seiten ändern müssen
Ich sehe Ist und Soll allerdings sehr viel leichter zusammenfinden als Du. Routine halt.
Die Erweiterung in einer Dimension ist ein sehr geringer Aufwand.
Deine Ängste einer Raumreduzierung teile ich nicht, mehr als Blinddärme wird man dem Grundriss nicht entnehmen müssen und man kann auch in einer Dimension viel kompensieren.
Wie gesagt: Stell mal das Grundstück und den Bebauungsplan-Ausschnitt ein, dann sieht man genauer.
Nur so aus Jux: welcher Hersteller hat denn das bestehende Haus gebaut ? - zeig mal Außenaufnahmen davon.
https://www.instagram.com/11antgmxde/
https://www.linkedin.com/company/bauen-jetzt/
B
BartJSimpson09.05.17 23:39BartJSimpson schrieb:
Ich habe jetzt auch mal eine Variante mit neuen Fundamenten an zwei Seiten ausprobiert.Die Abweichung von meinem Vorschlag ist, daß die Ausklinkung planuntenlinks überbügelt wird, was Änderungen betreffend des Waschkellers und des Tankkellers und ihrer Lichtschächte mit sich bringt.
Wenn Du das so machen willst, würde ich deren beide Vorderwände einreißen und das Fundament hier durchgängig erweitern; und dann nur planlinks die Kellerwand belassen und außen "ansetzen".
Die Abweichung vom Ur-Grundriss des "Kiefernallee/V1" wird bei Deiner Variante geringer.
BartJSimpson schrieb:
So etwas sollte hoffentlich vom Fertighausanbieter auch noch akzeptiert werden.Du wirst Dich wundern, wie wenig Kopfzerbrechen dem Hersteller diese Änderungen bereiten werden. Ihre Grundtypen zu variieren ist deren tägliches Brot.
Da kommst Du und meinst, Du wolltest etwas schwieriges, und in Wirklichkeit haben die das schon in der Schublade. Das ist ja schließlich kein selten verlangtes Grundmodell - so oder ähnlich wurde das schon´mal für jemanden geändert.
BartJSimpson schrieb:
Allerdings müsste man die Dachneigung wohl stark anpassen, da der Hausteil links vom Erker statt 9,10m jetzt 9,80m Tiefe hat.Das mag sein (und wäre auch kein großes Problem), kann sich im Zuge der Umplanung des DG aber auch noch "versenden". Stark anpassen eher nicht. das läßt sich vermutlich allein beim Kniestock wegbügeln. Wir werden es sehen, während die Umplanung weiter gedeiht.
https://www.instagram.com/11antgmxde/
https://www.linkedin.com/company/bauen-jetzt/
B
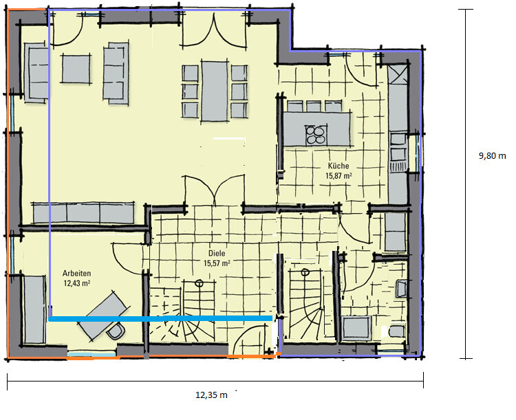
BartJSimpson10.05.17 22:43Hier noch eine neue Variante mit Verschiebung des Badezimmers, um die Treppe in den Keller zu "retten". Mit vernünftiger Eisentür Richtung Keller sollte doch auch noch eine thermische Trennung möglich sein, oder?
Der Technikraum fällt dabei weg, aber im Keller ist eh genug Platz. Die im EG noch eingezeichnete Waschmaschine + Trockner werden wahrscheinlich auch noch im Keller landen.
Beim Grundstück ist nach links und nach hinten raus noch sehr viel Platz. Man könnte den Grundriss also in die beiden Richtungen noch variieren. Nach rechts ist hingegen kein Platz mehr, da wird wohl so gerade eben der korrekte Abstand zum Nachbargrundstück (ca. 3 m; muß mich da noch genau informieren) eingehalten.
Das alte Fertighaus kommt übrigens von der Gebrüder Steger AG. Die existiert aber wohl schon lange nicht mehr, im Internet läßt sich jedenfalls nichts mehr finden.

Der Technikraum fällt dabei weg, aber im Keller ist eh genug Platz. Die im EG noch eingezeichnete Waschmaschine + Trockner werden wahrscheinlich auch noch im Keller landen.
Beim Grundstück ist nach links und nach hinten raus noch sehr viel Platz. Man könnte den Grundriss also in die beiden Richtungen noch variieren. Nach rechts ist hingegen kein Platz mehr, da wird wohl so gerade eben der korrekte Abstand zum Nachbargrundstück (ca. 3 m; muß mich da noch genau informieren) eingehalten.
Das alte Fertighaus kommt übrigens von der Gebrüder Steger AG. Die existiert aber wohl schon lange nicht mehr, im Internet läßt sich jedenfalls nichts mehr finden.
Ob der Trockner in den Keller kommt, hängt natürlich mit dem inhäusigen Abgang zusammen. Wäsche ums Haus herum tragen wird man nicht mögen.
Wie gesagt, Stell das Grundstück mal ein, auch den Bebauungsplan. Platz auf dem Grundstück und Platz im Baufenster muß nicht dasselbe sein. Gibt es eigentlich im Bestand (und im Plan) noch Nebengebäude (Garage) ?
Tatsächlich nie gehört. Wo sollen die denn her gewesen sein, selbst bei den gelöschten Firmen finde ich sie nicht registriert (?) - ist aber auch nicht so wichtig.
https://www.instagram.com/11antgmxde/
https://www.linkedin.com/company/bauen-jetzt/
BartJSimpson schrieb:
Beim Grundstück ist nach links und nach hinten raus noch sehr viel Platz. Man könnte den Grundriss also in die beiden Richtungen noch variieren.
Wie gesagt, Stell das Grundstück mal ein, auch den Bebauungsplan. Platz auf dem Grundstück und Platz im Baufenster muß nicht dasselbe sein. Gibt es eigentlich im Bestand (und im Plan) noch Nebengebäude (Garage) ?
BartJSimpson schrieb:
Das alte Fertighaus kommt übrigens von der Gebrüder Steger AG.
Tatsächlich nie gehört. Wo sollen die denn her gewesen sein, selbst bei den gelöschten Firmen finde ich sie nicht registriert (?) - ist aber auch nicht so wichtig.
https://www.instagram.com/11antgmxde/
https://www.linkedin.com/company/bauen-jetzt/
Ähnliche Themen