ᐅ Fehler beim zweiten Haus vermeiden: Hausbaufirma oder Architekt?
Erstellt am: 13.02.24 11:39
R
RotesDachOdyssee77 schrieb:
Du fängst am falschen Ende an zu suchen.Genau so ist es!kbt09 schrieb:
grundsätzlich richtet sich eine Hausgestaltung auch immer nach dem zur Verfügung stehendem Grundstück.So ist es!Fehler Nr. 1: Grundriss festlegen, Dinge präorisieren und dann such wundern, warum (wieder) nichts auf das neu gefundene Grundstück passt.
RotesDach schrieb:
Was übrigens die Garage im Westen angeht, hat sich rausgestellt, dass uns das keine Probleme mit der "Besonnung" (besseres Wort?) der Terrasse macht. Dort ist es im Sommer sehr heiß und ab ca. 14 Uhr sehr sonnig. Licht kommt in den Wohnraum auch durch das Westfenster in der Küche und die Verglasung der Haustür (auch im Westen).Das hast Du auch nicht verstanden! Wenn man die Garage auf die andere Seite legt, legt man automatisch auch die Gartenseite wie auch die Hausausrichtung auf eine andere Seite. Logisch, oder?RotesDach schrieb:
Multifunktions-RäumeWas Du bei Deinem Schlafzimmer hast, ist _kein_ Multifunktionsraum. Man kann sich auch vieles schön reden.kbt09 schrieb:
maßstabsgerecht als "Papierschnipsel" anzulegen.Ehrlich? Es wurde damals vieles nicht verstanden, es wird jetzt vieles nicht verstanden, Bilder können nicht hochgeladen werden, und irgendwie führt ein roter Faden beim roten Dach sich durch damals und heute. Jede Wette, dass Papierschnipsel auch zu dem Nichtkönnen dazugehören.@Tolentino mit 3 Kindern in einer (fake) Stadtvilla hat vor einiger Zeit mal ein Resume geschrieben zu seinem Hausbau 18 Monate nach Einzug unter anderem auch, dass diese Hausbau keinen Wohnraum unterm Dach erlaubt. https://www.hausbau-forum.de/threads/grundriss-3-kinderzimmer-einfamilienhaus-potenziale.46428/#post-646710
unter anderem schreibt er
- was ich tatsächlich heute anders machen würde: Im OG alle Wände mit großzügigem Trockenbau.
1. wegen Schallschutz (11,5cm Poroton ist wie ein Schallverstärker, fast schon)...
2. wegen der Flexibilität. Später eine Wand versetzen/rausschmeißen wäre so noch verhältnismäßig leicht möglich. Insbesondere Stromleitungen wären noch leichter nachträglich zu erweitern.
unter anderem schreibt er
- was ich tatsächlich heute anders machen würde: Im OG alle Wände mit großzügigem Trockenbau.
1. wegen Schallschutz (11,5cm Poroton ist wie ein Schallverstärker, fast schon)...
2. wegen der Flexibilität. Später eine Wand versetzen/rausschmeißen wäre so noch verhältnismäßig leicht möglich. Insbesondere Stromleitungen wären noch leichter nachträglich zu erweitern.
R
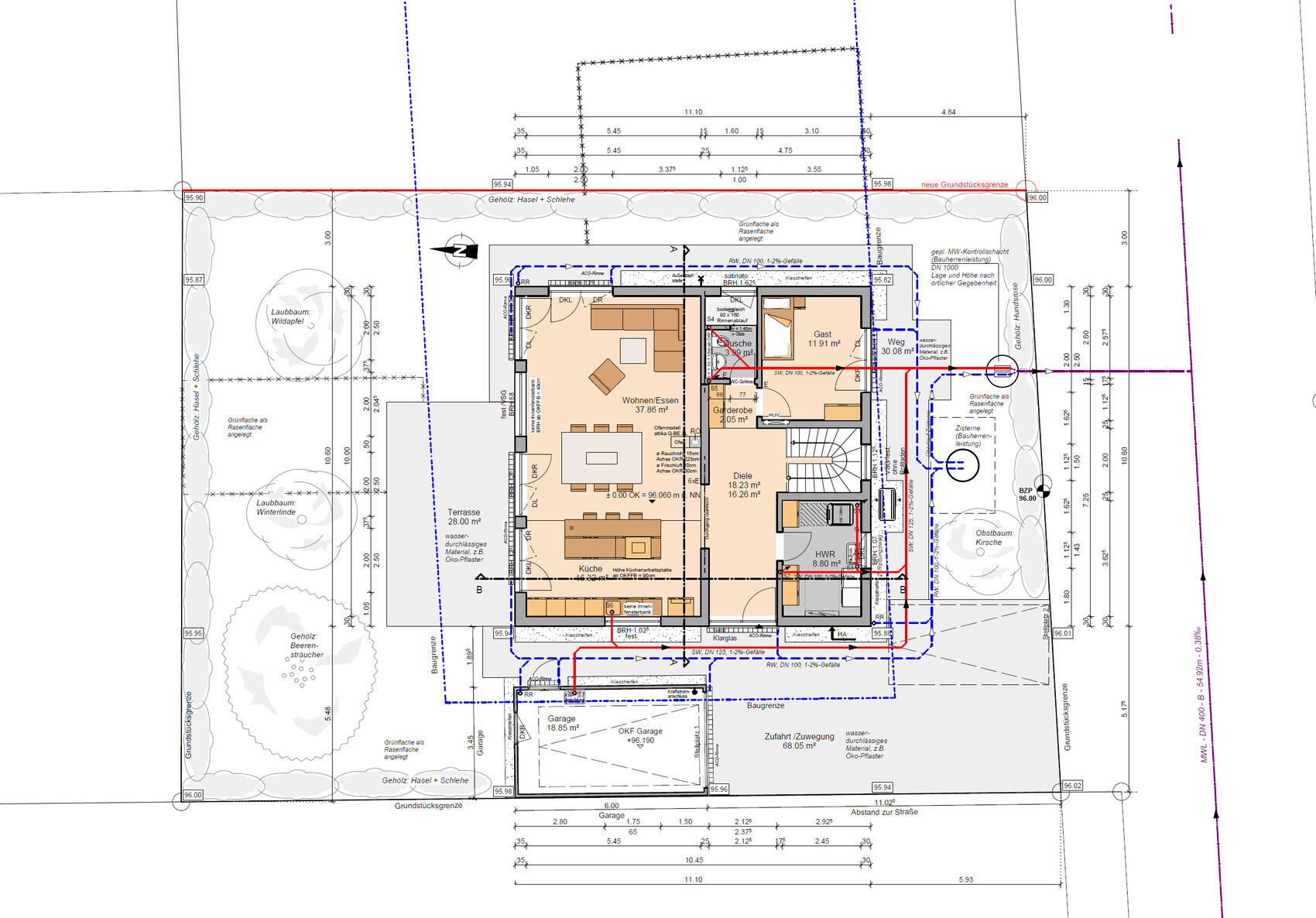
RotesDach19.02.24 00:08Ich habe mal den Grundriss unseres Hauses zur Verdeutlichung, welche Punkte uns dort nicht gefallen (planlinks ist Norden). Sorry, wenn das gedauert hat, aber mit drei Kleinen bin ich nicht früher dazu gekommen, Yvonne:
- Den Allraum würde ich in einer nächsten Planung eher l-förmig oder c-förmig gestalten (etwa wie im Plan von @kbt09), um das Wohnzimmer auch etwas mehr abzutrennen. Unserem jetzigen fehlt es an Gemütlichkeit.
- Auf dem Plan wirkt es so als wäre die ganze Nordseite und auch der Osten voller Fenster. Ich dachte damals, dass so am besten die von mir gewünschte Panoramafensterfront kostengünstig umgesetzt werden könnte. Im Alltag stören mich aber die Drehtüren (sie stehen geöffnet immer 1 m in den Raum hinein; besser wären Schiebetüren gewesen) sowie der Türrahmen. Ich kann z.B. den Servierwagen nicht von der Küche auf die Terrasse schieben. Das hätte ich mir barrierefrei gewünscht. Die Hausbauarchitektin beriet uns aber so, dass diese Planung im Verhältnis zwischen unserem Wunsch (viel Glas und barrierefrei) und den Kosten eine gute Pareto-Balance ergäbe. So ist es leider nicht. Bei Schiebetüren hätten wir auch 2m breite Glaselemente und nicht die Verstrebung schon nach 1m.
- Den Allraum habe ich blöderweise in der Breite der großen Küchenzeile angepasst. Da würde ich beim nächsten Mal eher auf die große Kochinsel verzichten und keine so lange Hochschrank- und Arbeitsplattenzeile planen, mit deren Breite der gesamte Allraum in unserem jetzigen Haus mitgewachsen ist. Vielleicht eher den Esstisch näher an die Küche heranrücken und eine C-Küche mit kleiner Theke. 120x300 für die Kochinsel ist zu groß. Den Stauraum brauche ich jedoch; die Schränke müssten entsprend anders in die küche integriert werden. Aber Küchenplanung steht erst beim nächsten Haus wieder an. Sollte es ein Architekt werden, soll er/ sie direkt auch die Küchenplanung mit bedenken.
- Wir hätten im Nachhinein das Baufenster komplett bis nach Norden ausreizen sollen. Dann wäre das Haus länglicher und wir hätten mehr Platz im Westen. Dann hätten wir Platz für die gewünschte Doppelgarage gehabt, sodass diese weiter zur Straße hätte rücken können und dann hätte auch ein Stellplatz in der Länge vor der Garage ausgereicht. Wie ich im Plan jetzt übrigens sehe, hat das Baufenster zum rechten Nachbarn hin gar nicht das 3m breite Abstandsgebot. Das liegt daran, dass das Grundstück geteilt wurde und ursprünglich in der Mitte zwischen seinem und unserem heutigen Haus das alte Abrisshaus stand. Insofern hätten wir wahrscheinlich unser Haus sogar noch weiter zum östlichen Nachbarn setzen können und noch mehr Platz im Westen gehabt. Das gilt natürlich alles nicht für ein zukünftiges Grundstück, aber es wird uns heute erst bewusst bezogen auf unser jetziges Grundstück.
- Die Diele würde ich weniger länglich sondern mehr breit bzw. wie einen Raum gestalten (wieder gefällt mir dein Vorschlag gut, kbt09). Wie es jetzt ist geht es, aber wir haben auch viele Garderobenschränke drin bei 5 Leuten. Ich hätte gerne links und rechts der Haustür eine Festverglasung. So war nur Platz für eine Seite, bedingt durch den quadartischen Grundriss. Mir ist einfach wichtig, nach allen Himmelsrichtungen gut raussehen zu können.
- Der Gast (12qm) ist okay, kann so bleiben.
- Die zwei Büros (je 8-10qm) kämen wahrscheinlich am ehesten noch ins EG.
- Last but not least der Hauswirtschaftsraum: Er ist eng, ja, aber durch Einbauschränke nutzen wir den Platz ganz okay. Beim nächsten Entwurf lagere ich die Wäsche, weil sie oben anfällt, ins OG aus und dann reichen die Dimensionen im EG für den ganzen Rest.
- Wir wollten lieber eine gerade Treppe haben. Da hieß es immer, die passt nicht in den Grundriss rein, hoffentlich ja dann in einen künftigen länglicheren Grundriss.
- Das Bad im EG dürfte gerne ca. 30 länger oder anders aufgeteilt sein. Wenn man auf dem stillen Örtchen sitzt, ist es arg eng.
- Das Bad im OG finde ich unsinnig aufgeteilt, wo sogar ich sage, dass da viel ungenutzter Raum in der Mitte ist. Ich hätte gerne so eine T-Lösung gehabt. Aber eine Badberatung hat es intern durch Hausbaufirma nicht gegeben und sie haben sich sehr gesträubt, dass wir zu einem externen Anbieter geben.
- Ein Kinderbad würde bei 4 Kidnern definitiv Sinn ergeben. Bei 2 Kindern haben wir gesagt, die kriegen ein Waschbecken in ihre Kinderzimmer, was den Morgen entlastet.
- Es wäre schön, ein ausgebautes Satteldach mit den Kinderzimmer irgendwie zu verbinden. Ich meine das so im Sinne einer zweiten Etage innerhalb des Kinderzimmers wie ein Rückzugsort zum Lesen. Dachschrägen können ruhig mit dabei sein, aber erst ab einer Höhe von ca. 2 m, um noch Platz für Schränke zu haben. Wir wollten ja zwei Vollgeschosse, aber eben darüber auch Dachschrägen, weil die einfach gemütlich sind. Gemütlichkeit fehlt mir bei uns im Haus etwas. Bei vier Kinderzimmern sollte eines ca. 16qm haben.
- Eine Galerie war immer mein Traum, die aber aus Kostengründen wohl nicht mehr drin sein wird.
- Überlegung ist, ob ein Gemeinschaftsraaum in der Art eines zweiten Wohnzimmers für die Kinder sinnvoll ist. Ich kann noch nicht einschätzen, wo sich ältere Kinder z.B. abends aufhalten oder wenn Freunde da sind.
- Ein ausgebautes Dachgeschoss könnte aber dieses Kinderwohnzimmer beherbergen, würde für Gemütlichkeit sorgen und wäre so eine Art Galerie. Daher wünsche ich mir einen Dachausbau.
- Im OG soll noch ein Wäscheraum Platz finden.
- Zum Elternschlafzimmer wurde schon viel gesagt. Lasst uns da bitte nicht drüber reden.


- Den Allraum würde ich in einer nächsten Planung eher l-förmig oder c-förmig gestalten (etwa wie im Plan von @kbt09), um das Wohnzimmer auch etwas mehr abzutrennen. Unserem jetzigen fehlt es an Gemütlichkeit.
- Auf dem Plan wirkt es so als wäre die ganze Nordseite und auch der Osten voller Fenster. Ich dachte damals, dass so am besten die von mir gewünschte Panoramafensterfront kostengünstig umgesetzt werden könnte. Im Alltag stören mich aber die Drehtüren (sie stehen geöffnet immer 1 m in den Raum hinein; besser wären Schiebetüren gewesen) sowie der Türrahmen. Ich kann z.B. den Servierwagen nicht von der Küche auf die Terrasse schieben. Das hätte ich mir barrierefrei gewünscht. Die Hausbauarchitektin beriet uns aber so, dass diese Planung im Verhältnis zwischen unserem Wunsch (viel Glas und barrierefrei) und den Kosten eine gute Pareto-Balance ergäbe. So ist es leider nicht. Bei Schiebetüren hätten wir auch 2m breite Glaselemente und nicht die Verstrebung schon nach 1m.
- Den Allraum habe ich blöderweise in der Breite der großen Küchenzeile angepasst. Da würde ich beim nächsten Mal eher auf die große Kochinsel verzichten und keine so lange Hochschrank- und Arbeitsplattenzeile planen, mit deren Breite der gesamte Allraum in unserem jetzigen Haus mitgewachsen ist. Vielleicht eher den Esstisch näher an die Küche heranrücken und eine C-Küche mit kleiner Theke. 120x300 für die Kochinsel ist zu groß. Den Stauraum brauche ich jedoch; die Schränke müssten entsprend anders in die küche integriert werden. Aber Küchenplanung steht erst beim nächsten Haus wieder an. Sollte es ein Architekt werden, soll er/ sie direkt auch die Küchenplanung mit bedenken.
- Wir hätten im Nachhinein das Baufenster komplett bis nach Norden ausreizen sollen. Dann wäre das Haus länglicher und wir hätten mehr Platz im Westen. Dann hätten wir Platz für die gewünschte Doppelgarage gehabt, sodass diese weiter zur Straße hätte rücken können und dann hätte auch ein Stellplatz in der Länge vor der Garage ausgereicht. Wie ich im Plan jetzt übrigens sehe, hat das Baufenster zum rechten Nachbarn hin gar nicht das 3m breite Abstandsgebot. Das liegt daran, dass das Grundstück geteilt wurde und ursprünglich in der Mitte zwischen seinem und unserem heutigen Haus das alte Abrisshaus stand. Insofern hätten wir wahrscheinlich unser Haus sogar noch weiter zum östlichen Nachbarn setzen können und noch mehr Platz im Westen gehabt. Das gilt natürlich alles nicht für ein zukünftiges Grundstück, aber es wird uns heute erst bewusst bezogen auf unser jetziges Grundstück.
- Die Diele würde ich weniger länglich sondern mehr breit bzw. wie einen Raum gestalten (wieder gefällt mir dein Vorschlag gut, kbt09). Wie es jetzt ist geht es, aber wir haben auch viele Garderobenschränke drin bei 5 Leuten. Ich hätte gerne links und rechts der Haustür eine Festverglasung. So war nur Platz für eine Seite, bedingt durch den quadartischen Grundriss. Mir ist einfach wichtig, nach allen Himmelsrichtungen gut raussehen zu können.
- Der Gast (12qm) ist okay, kann so bleiben.
- Die zwei Büros (je 8-10qm) kämen wahrscheinlich am ehesten noch ins EG.
- Last but not least der Hauswirtschaftsraum: Er ist eng, ja, aber durch Einbauschränke nutzen wir den Platz ganz okay. Beim nächsten Entwurf lagere ich die Wäsche, weil sie oben anfällt, ins OG aus und dann reichen die Dimensionen im EG für den ganzen Rest.
- Wir wollten lieber eine gerade Treppe haben. Da hieß es immer, die passt nicht in den Grundriss rein, hoffentlich ja dann in einen künftigen länglicheren Grundriss.
- Das Bad im EG dürfte gerne ca. 30 länger oder anders aufgeteilt sein. Wenn man auf dem stillen Örtchen sitzt, ist es arg eng.
- Das Bad im OG finde ich unsinnig aufgeteilt, wo sogar ich sage, dass da viel ungenutzter Raum in der Mitte ist. Ich hätte gerne so eine T-Lösung gehabt. Aber eine Badberatung hat es intern durch Hausbaufirma nicht gegeben und sie haben sich sehr gesträubt, dass wir zu einem externen Anbieter geben.
- Ein Kinderbad würde bei 4 Kidnern definitiv Sinn ergeben. Bei 2 Kindern haben wir gesagt, die kriegen ein Waschbecken in ihre Kinderzimmer, was den Morgen entlastet.
- Es wäre schön, ein ausgebautes Satteldach mit den Kinderzimmer irgendwie zu verbinden. Ich meine das so im Sinne einer zweiten Etage innerhalb des Kinderzimmers wie ein Rückzugsort zum Lesen. Dachschrägen können ruhig mit dabei sein, aber erst ab einer Höhe von ca. 2 m, um noch Platz für Schränke zu haben. Wir wollten ja zwei Vollgeschosse, aber eben darüber auch Dachschrägen, weil die einfach gemütlich sind. Gemütlichkeit fehlt mir bei uns im Haus etwas. Bei vier Kinderzimmern sollte eines ca. 16qm haben.
- Eine Galerie war immer mein Traum, die aber aus Kostengründen wohl nicht mehr drin sein wird.
- Überlegung ist, ob ein Gemeinschaftsraaum in der Art eines zweiten Wohnzimmers für die Kinder sinnvoll ist. Ich kann noch nicht einschätzen, wo sich ältere Kinder z.B. abends aufhalten oder wenn Freunde da sind.
- Ein ausgebautes Dachgeschoss könnte aber dieses Kinderwohnzimmer beherbergen, würde für Gemütlichkeit sorgen und wäre so eine Art Galerie. Daher wünsche ich mir einen Dachausbau.
- Im OG soll noch ein Wäscheraum Platz finden.
- Zum Elternschlafzimmer wurde schon viel gesagt. Lasst uns da bitte nicht drüber reden.
RotesDach schrieb:
Auf dem Plan wirkt es so als wäre die ganze Nordseite und auch der Osten voller Fenster. Ich dachte damals, dass so am besten die von mir gewünschte Panoramafensterfront kostengünstig umgesetzt werden könnte. Im Alltag stören mich aber die Drehtüren (sie stehen geöffnet immer 1 m in den Raum hinein; besser wären Schiebetüren gewesen) [...] Bei Schiebetüren hätten wir auch 2m breite Glaselemente und nicht die Verstrebung schon nach 1m.Schiebetüren in einer Nennbreite 200 sind schon wegen der lichten Durchgangsbreite Unfug, und ich hätte sie auch aus Garantiegründen herzustellen abgelehnt. Gezeichnet sind sie im Werkplan als Stulpvariante, also ohne Mittelpfosten.RotesDach schrieb:
sowie der Türrahmen. Ich kann z.B. den Servierwagen nicht von der Küche auf die Terrasse schieben. Das hätte ich mir barrierefrei gewünscht.Demnach hast Du sie sogar als bodentiefe Fenster bekommen ? (siehe auch mein Beitrag: "Barrierefreie Fenstertüren dank Flachschwellen".https://www.instagram.com/11antgmxde/
https://www.linkedin.com/company/bauen-jetzt/
Ich kann dir etwas von Alltag mit 4 Kindern erzählen (3, 7, 11, 16)
Die Kinder 3-11 schlafen in einem Zimmer. Das Angebot eines eigenen Zimmers für den 11jährigen wird nur sporatisch tagsüber genutzt. Ich denke das wird sich mit der Pubertät ändern.
Eine große Garderobe besser Garderobenraum hat sich als praktisch erwiesen.
Bis so ein Haufen fertig ist dauert es und braucht Platz
Abgetrenntes Wohnzimmer ist ganz praktisch - vor allem wenn die Eltern mal Besuch haben.
Der T-Nager ist entweder mal bei den Erwachsenen, bei den Kleinen, unterwegs oder in seinem Zimmer. Denke ein eigenes Wohnzimmer für das Jungvolk braucht es nicht. Die wollen doch öfter ihre Ruhe.
Bäder haben sich 2 Badezimmer für alle zugänglich als zweckmäßig erwiesen. Es reicht um immer alle pünktlich fertig zu bekommen. Also Waschbecken in den Kinderzimmern wurden noch nie vermisst. Möchte auch gar nicht wissen was das manchmal für eine Sauerrei gibt.
Was nicht zu unterschätzen ist, sind die Mengen an Essen die durch die Küche gehen und damit die Vorräte die benötigt werden. Große Pfannen, große Töpfe alles xxl. 2 Große Säcke Pommes, 4 Köpfe Blumenkohl usw. Und die Getränke nicht zu vergessen.
Ich habe keine 4 Kinder, das sind Freunde von uns und die Kinder sind öfter bei uns.
Die Kinder 3-11 schlafen in einem Zimmer. Das Angebot eines eigenen Zimmers für den 11jährigen wird nur sporatisch tagsüber genutzt. Ich denke das wird sich mit der Pubertät ändern.
Eine große Garderobe besser Garderobenraum hat sich als praktisch erwiesen.
Bis so ein Haufen fertig ist dauert es und braucht Platz
Abgetrenntes Wohnzimmer ist ganz praktisch - vor allem wenn die Eltern mal Besuch haben.
Der T-Nager ist entweder mal bei den Erwachsenen, bei den Kleinen, unterwegs oder in seinem Zimmer. Denke ein eigenes Wohnzimmer für das Jungvolk braucht es nicht. Die wollen doch öfter ihre Ruhe.
Bäder haben sich 2 Badezimmer für alle zugänglich als zweckmäßig erwiesen. Es reicht um immer alle pünktlich fertig zu bekommen. Also Waschbecken in den Kinderzimmern wurden noch nie vermisst. Möchte auch gar nicht wissen was das manchmal für eine Sauerrei gibt.
Was nicht zu unterschätzen ist, sind die Mengen an Essen die durch die Küche gehen und damit die Vorräte die benötigt werden. Große Pfannen, große Töpfe alles xxl. 2 Große Säcke Pommes, 4 Köpfe Blumenkohl usw. Und die Getränke nicht zu vergessen.
Ich habe keine 4 Kinder, das sind Freunde von uns und die Kinder sind öfter bei uns.
R
RotesDach19.02.24 08:20@haydee: Danke dir für die Erafhrungen! Ich bin mal gespannt, wie sich der Alltag mit den Kids entwickelt. Das älteste Kind ist gerade mal vier und allein in dieser Zeit ändert sich vieles in der Praxis sehr schnell. Das mit den vielen Essensvorräten kann ich definitvi bestätigen, sobald sie in einem Wachstumsschub sind. Einer ist da immer drin ;-) Daher durfte auch noch ein zweiter Kühlschrank in den Flur einziehen.
Ähnliche Themen