F
forrestde28.09.24 17:22Hallo zusammen,
wir hatten zwischenzeitlich die Möglichkeit im gleichen Baugebiet das Grundstück zu wechseln, weil ein Eckgrundstück am Feldrand wieder freigeworden ist. Ich habe mit dem Grundriss planen weitergemacht und würde diesen Thread dafür weiter nutzen.
Im ersten Bild seht ihr das Grundstück (das Bild ist genordet), die Zufahrt ist im Osten (4m breit).
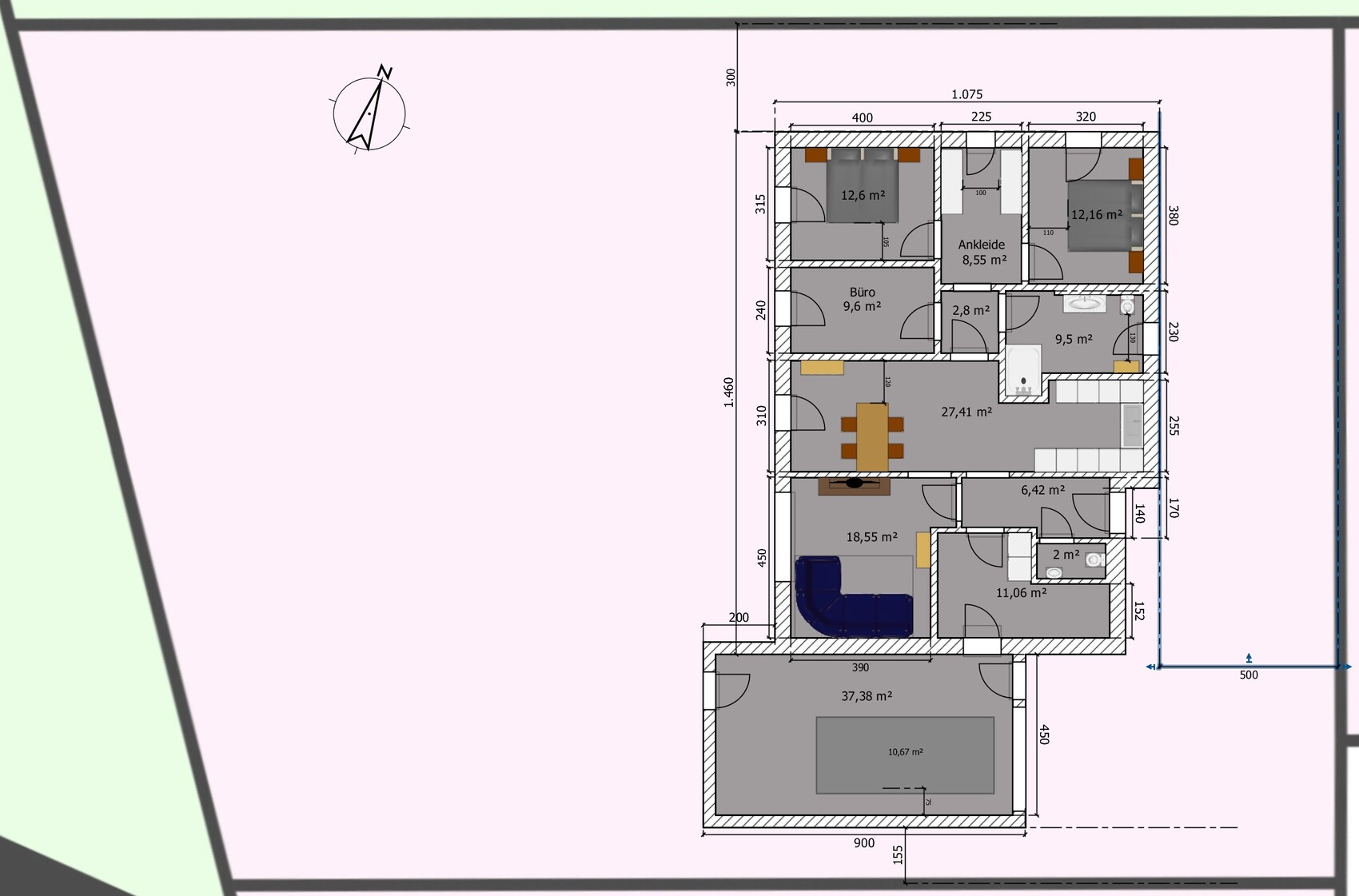
Auf den Bildern 2 und 3 seht ihr den geplanten Grundriss.
Was uns gut gefällt:
- Vom Eingangsbereich Sichtachse ins Wohnzimmer und auf die Terrasse
- Separater Essbereich
- Wohnzimmer auch separat (kein Durchgangszimmer)
- Zugang über Garage in den Hauswirtschaftsraum (wegen Hund)
- Gemeinsames Ankleidezimmer für beide Schlafzimmer. Das größere Schlafzimmer ist das Haupt-Schlafzimmer, das kleinere ist das Zweit-Schlafzimmer oder Gästezimmer. Aktuell würde das Zweit-Schlafzimmer dauerhaft genutzt werden, weil einer der Herren unsäglich schnarcht (ich leider).
- In dem Entwurf komme ich auf ca. 121 m² Wohnfläche, was gut ist, weil wir sparen wollen/müssen
Der Eingangsbereich mit Hauswirtschaftsraum und Gäste-WC könnte vielleicht noch geschickter gelöst werden.
Ich würde mich über Feedback von Euch freuen.
Danke und viele Grüße



wir hatten zwischenzeitlich die Möglichkeit im gleichen Baugebiet das Grundstück zu wechseln, weil ein Eckgrundstück am Feldrand wieder freigeworden ist. Ich habe mit dem Grundriss planen weitergemacht und würde diesen Thread dafür weiter nutzen.
Im ersten Bild seht ihr das Grundstück (das Bild ist genordet), die Zufahrt ist im Osten (4m breit).
Auf den Bildern 2 und 3 seht ihr den geplanten Grundriss.
Was uns gut gefällt:
- Vom Eingangsbereich Sichtachse ins Wohnzimmer und auf die Terrasse
- Separater Essbereich
- Wohnzimmer auch separat (kein Durchgangszimmer)
- Zugang über Garage in den Hauswirtschaftsraum (wegen Hund)
- Gemeinsames Ankleidezimmer für beide Schlafzimmer. Das größere Schlafzimmer ist das Haupt-Schlafzimmer, das kleinere ist das Zweit-Schlafzimmer oder Gästezimmer. Aktuell würde das Zweit-Schlafzimmer dauerhaft genutzt werden, weil einer der Herren unsäglich schnarcht (ich leider).
- In dem Entwurf komme ich auf ca. 121 m² Wohnfläche, was gut ist, weil wir sparen wollen/müssen
Der Eingangsbereich mit Hauswirtschaftsraum und Gäste-WC könnte vielleicht noch geschickter gelöst werden.
Ich würde mich über Feedback von Euch freuen.
Danke und viele Grüße
forrestde schrieb:
weil ein Eckgrundstück am Feldrand wieder freigeworden ist.Gab es mit dem anderen Grundstück Probleme? Warum der Wechsel? Wegen Feldrandlage? Und warum kann man die Feldrandlage im Haus nur erahnen und nur durch ein zwei Fenster erhaschen?forrestde schrieb:
Was uns gut gefällt:
- Vom Eingangsbereich Sichtachse ins Wohnzimmer und auf die Terrasse
- Separater Essbereich
- Wohnzimmer auch separatforrestde schrieb:
Vom Eingangsbereich Sichtachse ins Wohnzimmer und auf die TerrasseDie von Dir genannte Sichtachse ist keine, da eine Tür dazwischen istforrestde schrieb:
Wohnbereich offen, der Rest geschlossenErklärt sich bei Dir der Sinneswandel zur Trennung von WZ und Essbereich? Bei mir so nicht.Ich sag es mal so: wenn Du so weiter machst, dann wird der Hausbau auch nächstes Jahr nicht durchgeführt werden. Du juckelst mit Deinen selbstgemalten Bungalowentwürfen schon ein halbes Jahr herum, nimmst keine Kritik an, setzt immer wieder neu an, aber mit den immer wieder gleichen Fehlern. Hast Du denn schon mal einen GU mit ins Boot geholt? Deine Müh ist doch umsonst, wenn der günstige Unternehmer so etwas nicht baut?!
Ich persönlich finde das Grundstück von der Ausrichtung sehr viel schlechter als das andere. Wenn der Feldrand für Dich das Plus ist, dann frage ich mich, warum. Anhand des Entwurfes ist kein Feldrand einbezogen.
Gleiches Dilemma wie vor einem halben Jahr: schmaler dunkler Flur, keine Garderobe. Dann kommt ein mega langer Raum, 10 Meter lang, aber schmal, der für die Küche noch schmaler wird. Eine schmale Terrassentür. 3,10: das Maß ist eine Kampfansage an jeden Essbereich. Ankleide der anderen Art: Ü8qm für 2 Kleiderschränke, der Rest für 3 Türen.
Von O bis O ist das Haus dunkel, weil es keine Südfenster gibt.
Das ist mein Feedback, mehr gibt es nicht.
forrestde schrieb:
Ich habe mit dem Grundriss planen weitergemachtOh Gott, warum nur ?ypg schrieb:
Ich sag es mal so: wenn Du so weiter machst, dann wird der Hausbau auch nächstes Jahr nicht durchgeführt werden. Du juckelst mit Deinen selbstgemalten Bungalowentwürfen schon ein halbes Jahr herum, nimmst keine Kritik an, setzt immer wieder neu an, aber mit den immer wieder gleichen Fehlern. Hast Du denn schon mal einen GU mit ins Boot geholt? Deine Müh ist doch umsonst, wenn der günstige Unternehmer so etwas nicht baut?!
Ich persönlich finde das Grundstück von der Ausrichtung sehr viel schlechter als das andere. Wenn der Feldrand für Dich das Plus ist, dann frage ich mich, warum. Anhand des Entwurfes ist kein Feldrand einbezogen.
Gleiches Dilemma wie vor einem halben Jahr:Da kann ich mich nur anschließen. Ich sehe hier keinen Fortschritt, ewig grüßt das Murmeltier Mk I Release 4.7.11 - das ist ja keine Schande, wenn man beruflich etwas anderes macht, aber: es macht wenig Spaß, Dir beim Aufderstelletreten zuzuschauen. Falls es eine Evolution der Entwürfe gegeben haben sollte, hast Du zumindest einen Spirit beachtlich kontinuierlich gehalten. Es atmet Stillstand.https://www.instagram.com/11antgmxde/
https://www.linkedin.com/company/bauen-jetzt/
Da wir ja auch in einem Bungalow leben nochmal die Sachen, die einen Bungalow toll machen, oder deftig versauen:
- Achte auf deine Flurgestaltung! In einem Bungalow läufst du oft durch Flure, denen sollte man etwas Schönheit gönnen.
- Eine schöne Raumgestaltung bekommst im Bungalow am ehesten in L-Form hin. So entzerrst du den Wohnbereich vom Schlafbereich.
- verzichte auf unnötige Türen! Das macht das Innere nur zu dunkel. Diese dumme kleine Tür vom Wohnzimmer zum Schlafbereich ist sowas von unnötig! Da der Flur so krass klein ist, werdet ihr die ständig ausgehängt haben, da ihr sonst die Türen ständig dem Entgegenkommenden an die Rübe knallt.
- Versuche so wenig Wände und Winkel wir möglich zu erzeugen. Gerade einfache Strukturen machen es angenehm fürs Auge und hell.
Ich finde deinen Entwurf ganz fürchterlich und ungemütlich. Erinnert mich sehr an den alten Bauernhofbungalow meiner Großeltern.
- Achte auf deine Flurgestaltung! In einem Bungalow läufst du oft durch Flure, denen sollte man etwas Schönheit gönnen.
- Eine schöne Raumgestaltung bekommst im Bungalow am ehesten in L-Form hin. So entzerrst du den Wohnbereich vom Schlafbereich.
- verzichte auf unnötige Türen! Das macht das Innere nur zu dunkel. Diese dumme kleine Tür vom Wohnzimmer zum Schlafbereich ist sowas von unnötig! Da der Flur so krass klein ist, werdet ihr die ständig ausgehängt haben, da ihr sonst die Türen ständig dem Entgegenkommenden an die Rübe knallt.
- Versuche so wenig Wände und Winkel wir möglich zu erzeugen. Gerade einfache Strukturen machen es angenehm fürs Auge und hell.
Ich finde deinen Entwurf ganz fürchterlich und ungemütlich. Erinnert mich sehr an den alten Bauernhofbungalow meiner Großeltern.
Ähnliche Themen