Erster Entwurf Einfamilienhaus 150m² mit Keller

4,40 Stern(e) 5 Votes
Zuletzt aktualisiert 23.11.2025
Sie befinden sich auf der Seite 5 der Diskussion zum Thema: Erster Entwurf Einfamilienhaus 150m² mit Keller
>> Zum 1. Beitrag <<

Y

ypg

Ich finde, diese Anordnung wirkt abweisend. Auch für die Bewohner, nicht nur für Besucher.
Außerdem wird man da wohl sehr rangieren müssen, wenn man in die Garage möchte.
Ich würde die Garage weiter nach hinten schieben und den Eingang Richtung Osten oder Süden drehen.


Grüsse
 
jaeger

jaeger

Ja etwas abweisend, aber man kann nicht alles haben. Dafür hätte ich dann wie gesagt keine Garage vor dem Wohnzimmer und noch ein schönes Gartenstück im Süden. Bei der Garage sehe ich keine Probleme, sollte immer noch mehr Platz wie auf einem normalen Parkplatz sein. Wäre auch nur als Backup gedacht, falls die Bauvoranfrage negativ aus geht.
 
jaeger

jaeger

Ein paar Worte zum aktuellen Status. Unsere Bauvoranfrage wurde genehmigt, d.h. wir dürfen jetzt mit einem Abstand von 4m zum Ostgrundstück bauen. Damit bleibt der ursprüngliche Plan erhalten und mein Alternativvorschlag hat sich erledigt.

Werde demnächst die aktuellen Pläne einstellen und hoffe nochmal auf euer Feedback. Wir haben viele Kleinigkeiten geändert, aber nichts Grundlegendes.
 
jaeger

jaeger

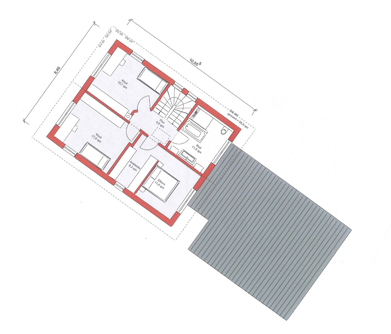
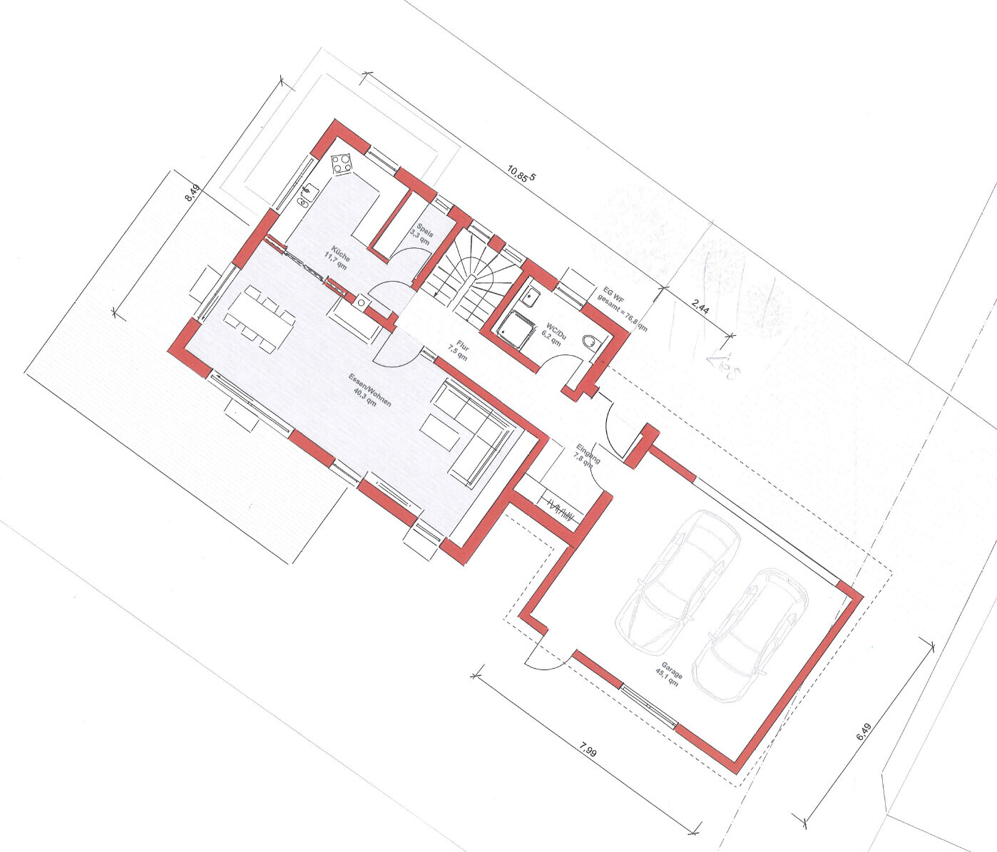
Hier der schon lange versprochene überarbeitete Grundriss. Folgendes hat sich im Vergleich zum alten Entwurf geändert:
  • Wir dürfen nun näher an die Ostgrenze bauen, was im Westen mit der Terrasse mehr Abstand zur überbauten Hütte auf unserem Grundstück gibt.
  • Büro nun im Norden, passt auch besser mit dem Lichtgraben.
  • Technik im Osten, da dort die Straßenanschlüsse reinkommen und die Bäder drüber sind.
  • Tür vom Eingangsbereich in die Garage
  • im EG wurden die Fenster im Wohnen/Essen angepasst, da wir das sofa gerne an der Innenwand möchten
  • im OG Eltern und Kind getauscht
  • neue Badaufteilung
  • kein Flachdach auf Garage, sondern Pultdach
  • ein paar weitere Kleinigkeiten geändert

Gerne dürft ihr nochmal eure Meinung dazu schreiben.


Gedrehter Grundriss eines Hauses mit Flur, Treppe und mehreren Räumen

2D-Grundrissplan-eines-Hauses-mit-Wohnzimmer-Kueche-Bad-Garage

Grundriss eines Familienhauses mit mehreren Zimmern, Treppe und Terrassenbereich

Lageplan eines Grundstücks mit Zufahrt, Gebäudeflächen und Gebäudestrukturen

Schnitt durch zweigeschossiges Haus mit Fundament, Wänden, Treppen und Dachstuhl.

Ostansicht eines zweigeschossigen Einfamilienhauses mit Garage und Bäumen

Ansicht Süd eines modernen Hauses mit zwei Bauteilen und Flachdächern

Ansicht West eines modernen Hauses mit Fenstern und Bäumen

Nordansicht eines modernen Hauses mit Garage und Bäumen
 
Zuletzt bearbeitet:
11ant

11ant

Die Nordfassade gefällt mir nicht, die Fensteranordnung ist mir zu unruhig. Ebenso bei der Südfassade: da würde ich die Fenstertür unterhalb des Ankleidenfensters ändern: erstens mit diesem seitlich bündig setzen, und zweitens zum Fenster in gleicher Höhe wie oben abändern.

Im OG stehen der Fertigschornstein und die Wand unter der Firstpfette nebeneinander, darunter unterbrichst Du die Wand für den Schornstein - das finde ich an sich schon unpraktisch - und stellst sie damit auch nicht "gerade" unter die obere.

Hat ein Nachbar ein Fahrrecht, oder wo kommen die 4m neben der Garage her ? - die "alte" grenzparallele Wand fand ich übrigens charmanter.
 
jaeger

jaeger

Die Nordfassade gefällt mir nicht, die Fensteranordnung ist mir zu unruhig. Ebenso bei der Südfassade: da würde ich die Fenstertür unterhalb des Ankleidenfensters ändern: erstens mit diesem seitlich bündig setzen, und zweitens zum Fenster in gleicher Höhe wie oben abändern.
Bündig setzen wird noch gemacht.

Im OG stehen der Fertigschornstein und die Wand unter der Firstpfette nebeneinander, darunter unterbrichst Du die Wand für den Schornstein - das finde ich an sich schon unpraktisch - und stellst sie damit auch nicht "gerade" unter die obere.
Ja stimmt. Solange es statisch aber kein Problem ist, ist mir das relativ egal. Oder siehst du irgendwelche gravierenden Nachteile dadurch?

Hat ein Nachbar ein Fahrrecht, oder wo kommen die 4m neben der Garage her ? - die "alte" grenzparallele Wand fand ich übrigens charmanter.
Der bebauungsplan gibt dort 6m vor. Wir haben mit einer Bauvoranfrage 4m genehmigt bekommen. Dann kann ich dort z.B. noch einen Stellplatz machen. Ja wird auch aber die kleine Änderung hat ca. 3k eingespart, weshalb wir uns dafür entschieden haben.
 
Zuletzt aktualisiert 23.11.2025
Im Forum Grundrissplanung / Grundstücksplanung gibt es 2535 Themen mit insgesamt 87992 Beiträgen


Ähnliche Themen zu Erster Entwurf Einfamilienhaus 150m² mit Keller
Nr.ErgebnisBeiträge
1Fenster im Gäste-WC/Gästezimmer trotz Garage möglich? 33
2Garage direkt an Einfamilienhaus. Fundament ausreichend? - Seite 220
3Grundriss mit Garage auf Grundstück realisierbar? - Seite 229
4Haus ohne Garage und Keller? Ausbau Dachboden? Fresswarze? - Seite 585
5Tür Haus/Garage: Nebeneingangstür als Brandschutztür? 27
6Welche Fenster und Türen empfehlenswert? 21
7Bau Garage auf Grenze geht lt. Architekt nicht. - Seite 211
8Grundriss Einfamilienhaus mit Garage, eigenplanung 17
9Grundstück - Baufenster - Lage von Haus und Garage - Seite 644
10Aufmusterung Elektro, Q2, Badfliesen, Drempel, bodentiefe Fenster - Seite 223
11Lage von Haus & Garage im Baufenster planen *Vorplanung* - Seite 15129
12Mehrkosten falsch geplante Belüftungsanlage + Bodentiefe Fenster? - Seite 350
13Grundrissplanungen Einfamilienhaus und Garage - Seite 232
14Garage zumauern. Tipps? 21
15Haus, Garage / Carport auf dem Grundstück platzieren - Seite 493
16Stadtvilla 160-170 m², Problematik Anschluss Windfang mit Garage - Seite 332
17Grundrissplanung Einfamilienhaus (190 qm) mit Garage - Seite 218
18Einfamilienhaus mit Garage am leichten Hang - Seite 217
19Angebot Baukosten gerechtfertigt - gemauerte Garage 9x6 m 14
20hoher und beheizter Sport-Raum neben der Garage? - Ideen gesucht - Seite 656

Oben