Elternbad+Kinderbad Anordnungen

4,80 Stern(e) 8 Votes
Zuletzt aktualisiert 06.10.2025
Sie befinden sich auf der Seite 16 der Diskussion zum Thema: Elternbad+Kinderbad Anordnungen
>> Zum 1. Beitrag <<

M

matte

Zur Schamwand kann ich nichts sagen.
Die Nische ist wohl nicht tief genug, schätze ich. Vorlauf auch darauf achten, wie die Anschlüsse gesetzt werden, idealerweise liegen die neben der Position für die Waschmaschine, damit diese bis ganz hinten rutschen kann.
Unsere Waschmaschine ist 64cm tief...
 
11ant

11ant

Küchenstudio)
Da empfehle ich Dir "Der Kreis" (Varia), die gibt es auch in NRW, das ist ein Verbund von Küchenfachhändlern.
Schraffur)
An vielen Stellen würde ich in diesem Bereich wohl eher Gipsdielen einsetzen, anstatt zu mauern. Oder aber Trockenbau. Andere(s) Material / Konstruktion = andere Darstellung.
Rettungsfenster)
Das Mindestmaß bezieht sich auf die lichte Öffnung, die könnte in der Breite Rohbau-Nennmaß 101 schon knapp werden. Zur Straße gewandt sein müssen die Rettungsfenster nicht - aber natürlich anleiterbar, also praktisch dann wohl meist wieder doch.
 
S

Shiny86

Gut zu wissen mit dem Rettungsfenster.
Danke für den Küchentipp!

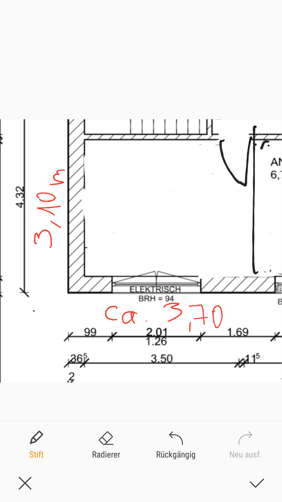
Muss im Grundriss stehen wie hoch die gemauerten Duschen oder schamwand sein sollen? Das soll ja nicht Deckenhöhe sein. Keine Ahnung wie hoch so eine schamwand Ist? Aber Duschtrennmauern reichen sicher 2m hoch.
 
S

Shiny86

Helft ihr bitte noch mal?

Würdet ihr es auch so machen oder anders?
Fenster ist noch nicht fix. Es sollte aber zur Seite wo schon eins eingezeichnet ein Fenster geben.
Es soll eine gemauerte Dusche und 2 waschbecken oder Doppelwaschbecken geben. Zudem natürlich Kloschüssel und Badewanne.

Grundriss eines Raums mit Wänden, Türzugang unten, Maßlinien und elektrisch markiertem Bereich.


Grundriss eines Raums mit Bett, Möbeln, Türöffnung und Maßangaben.
 
Zuletzt aktualisiert 06.10.2025
Im Forum Sanitär / Bad / WC gibt es 1365 Themen mit insgesamt 14346 Beiträgen


Ähnliche Themen zu Elternbad+Kinderbad Anordnungen
Nr.ErgebnisBeiträge
1Größe Hauswirtschaftsraum / Platz vor Waschmaschine 15
2Waschmaschine und Trockner in Ankleide? 16
3Waschmaschine "herausheben" 18
4Miele Waschmaschine mit Vorbügeln - Seite 216
5Waschmaschine und Geschirrspüler in Ikea Metod Hochschrank? 32
6Waschmaschine kaputt - Was könnte der Fehler sein? - Seite 474
7Kaltwasserzapfhahn + Entwässerungsanschluss Waschmaschine 15
8Braucht man einen Sockel für Waschmaschine? 20
9Wäscheturm für Waschmaschine und Trockner gesucht 19
10Waschmaschine und Trockner im Keller oder OG? 14
11Anschluss für Waschmaschine wurde im Neubau vergessen - Seite 215
12Waschmaschine riecht nach Kanal 10

Oben