Bebauungsplan/Einschränkungen
Größe des Grundstücks: 792 m2
Hang: Nordhang
Grundflächenzahl: 0,4
Geschossflächenzahl: 0,8
Anzahl Stellplatz: 2
Geschossigkeit: 2 + Keller
Dachform: Satteldach, 32°, Kniestock 1,5 m
Ausrichtung: Giebel Ost-West
Anforderungen der Bauherren
Stilrichtung, Dachform, Gebäudetyp: Modernes Einfamilienhaus
Keller, Geschosse: Keller und zwei Geschosse
Büro: Homeoffice
Schlafgäste pro Jahr: 5 bis 8
offene Küche, Kochinsel: Offene Küche
Kamin: Ja
Balkon, Dachterrasse: Nein
Garage, Carport: Doppelgarage
Nutzgarten, Treibhaus: Zier und Nutzgarten
Hausentwurf
Von wem stammt die Planung: Planer eines Bauunternehmens
favorisierte Heiztechnik: Wärmepumpe (Wasser)
Wenn Ihr verzichten müsst, auf welche Details/Ausbauten
-könnt Ihr verzichten: Die beiden kleinen Gauben nach Süden stehen zur Disposition. Sie tun der Optik des Hauses von außen gut, sind aber nicht zwingend nötig und der Photovoltaik im Weg
-könnt Ihr nicht verzichten: Keller, Kamin
Warum ist der Entwurf so geworden, wie er jetzt ist? ZB
Standardentwurf vom Planer? Kombination aus unserer Vorstellung und den Vorgaben des Grundstücks
Was macht ihn in Euren Augen besonders gut oder schlecht? Das Haus ist unseren Vorstellungen entsprechend sehr praktikabel. Es sind aber auch keine besonderen Ideen in den Plan eingeflossen.
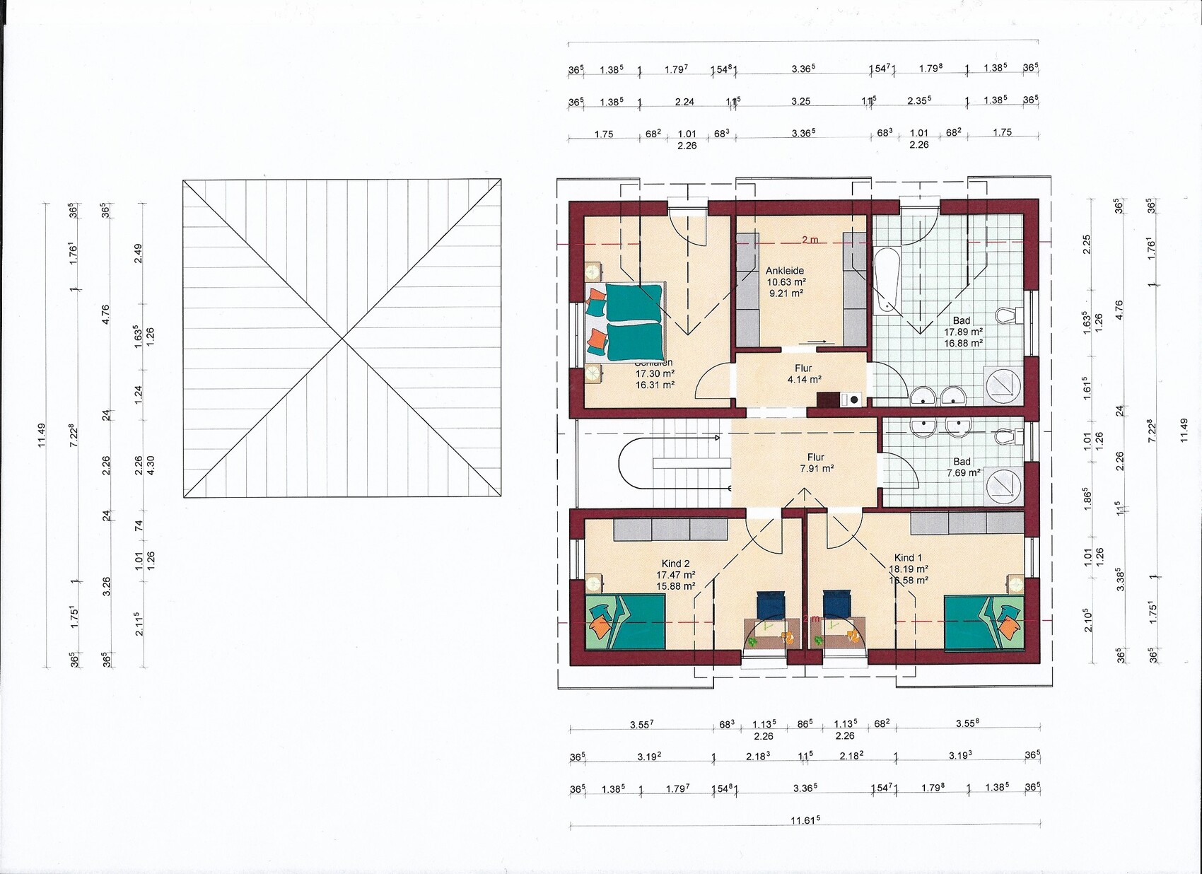
Es handelt sich um ein Einfamilienhaus in Hanglage mit Keller. Der Eingang ist zwischen den Geschossen geplant und die Treppe führt direkt in das „Erdgeschoss“ und den Keller. Zur Straße hin ragt der Keller zu einem großen Teil aus dem Boden, zum Garten hin ist der Boden auf Höhe des EG, was einen geraden Ausgang zur Terrasse ermöglicht. Um noch ein paar unabhängige Stimmen zur grundsätzlichen Planung und den Grundriss zu hören, würden wir uns über einige Einschätzungen dazu freuen. Die Einrichtung von beispielsweise Küchen und Bädern bitte ignorieren. Das sind lediglich Platzhalter im Plan.
Edit: Ich habe vergessen zu Erwähnen, dass im Plan derzeit einige Türen nicht genau passen. Der Grund hierfür sind größere Änderungen am Gesamtplan, nach denen die Detailanpassungen noch nicht gemacht wurden.


Größe des Grundstücks: 792 m2
Hang: Nordhang
Grundflächenzahl: 0,4
Geschossflächenzahl: 0,8
Anzahl Stellplatz: 2
Geschossigkeit: 2 + Keller
Dachform: Satteldach, 32°, Kniestock 1,5 m
Ausrichtung: Giebel Ost-West
Anforderungen der Bauherren
Stilrichtung, Dachform, Gebäudetyp: Modernes Einfamilienhaus
Keller, Geschosse: Keller und zwei Geschosse
Büro: Homeoffice
Schlafgäste pro Jahr: 5 bis 8
offene Küche, Kochinsel: Offene Küche
Kamin: Ja
Balkon, Dachterrasse: Nein
Garage, Carport: Doppelgarage
Nutzgarten, Treibhaus: Zier und Nutzgarten
Hausentwurf
Von wem stammt die Planung: Planer eines Bauunternehmens
favorisierte Heiztechnik: Wärmepumpe (Wasser)
Wenn Ihr verzichten müsst, auf welche Details/Ausbauten
-könnt Ihr verzichten: Die beiden kleinen Gauben nach Süden stehen zur Disposition. Sie tun der Optik des Hauses von außen gut, sind aber nicht zwingend nötig und der Photovoltaik im Weg
-könnt Ihr nicht verzichten: Keller, Kamin
Warum ist der Entwurf so geworden, wie er jetzt ist? ZB
Standardentwurf vom Planer? Kombination aus unserer Vorstellung und den Vorgaben des Grundstücks
Was macht ihn in Euren Augen besonders gut oder schlecht? Das Haus ist unseren Vorstellungen entsprechend sehr praktikabel. Es sind aber auch keine besonderen Ideen in den Plan eingeflossen.
Es handelt sich um ein Einfamilienhaus in Hanglage mit Keller. Der Eingang ist zwischen den Geschossen geplant und die Treppe führt direkt in das „Erdgeschoss“ und den Keller. Zur Straße hin ragt der Keller zu einem großen Teil aus dem Boden, zum Garten hin ist der Boden auf Höhe des EG, was einen geraden Ausgang zur Terrasse ermöglicht. Um noch ein paar unabhängige Stimmen zur grundsätzlichen Planung und den Grundriss zu hören, würden wir uns über einige Einschätzungen dazu freuen. Die Einrichtung von beispielsweise Küchen und Bädern bitte ignorieren. Das sind lediglich Platzhalter im Plan.
Edit: Ich habe vergessen zu Erwähnen, dass im Plan derzeit einige Türen nicht genau passen. Der Grund hierfür sind größere Änderungen am Gesamtplan, nach denen die Detailanpassungen noch nicht gemacht wurden.
Grobe Fehler finde ich nicht. Ankleide funktioniert, Speis auch, Bad müsste mal eingerichtet werden. Apropos Einrichtung: Obacht! Die WZ-möbel sind unrealistisch klein eingezeichnet.
Wo plant ihr die Garderobe (meine liebste Frage) bei dem SplitLevel-Haus ? So wie ich es verstehe, habt ihr nur den kleinen Podestflur, bevor es entweder nach oben oder unten geht...
Ich würde die Wand ggü der Treppe zur Küche wegfallen lassen.
Wo plant ihr die Garderobe (meine liebste Frage) bei dem SplitLevel-Haus ? So wie ich es verstehe, habt ihr nur den kleinen Podestflur, bevor es entweder nach oben oder unten geht...
Ich würde die Wand ggü der Treppe zur Küche wegfallen lassen.
Vielen Dank schon mal für die Antwort!
Da merkt man, dass sich jemand schon öfter mit Plänen auseinandergesetzt hat. Die Garderobe ist auch aus unserer Sicht einer der Punkte, die noch nicht 100% ideal sind, wir wollen dafür aber auch nicht zu sehr in andere Räume eingreifen.
Wir Planen derzeit die Garderobe einmal zwischen den Türen zu WZ und Küche und eine zweite (für die Dinge, die man gerade nicht so häufig braucht im Flur im Keller).
Die beiden Gauben im Elternbereich beschäftigen mich derzeit noch sehr. Ich glaube, dass sie das Haus von dieser Seite her optisch deutlich ansprechender machen, vom Platz her werden sie aber nicht gebraucht und es sprechen auch Gründe dagegen (Kosten, Photovoltaik etc.)
Da merkt man, dass sich jemand schon öfter mit Plänen auseinandergesetzt hat. Die Garderobe ist auch aus unserer Sicht einer der Punkte, die noch nicht 100% ideal sind, wir wollen dafür aber auch nicht zu sehr in andere Räume eingreifen.
Wir Planen derzeit die Garderobe einmal zwischen den Türen zu WZ und Küche und eine zweite (für die Dinge, die man gerade nicht so häufig braucht im Flur im Keller).
Die beiden Gauben im Elternbereich beschäftigen mich derzeit noch sehr. Ich glaube, dass sie das Haus von dieser Seite her optisch deutlich ansprechender machen, vom Platz her werden sie aber nicht gebraucht und es sprechen auch Gründe dagegen (Kosten, Photovoltaik etc.)
KEVST schrieb:
Rein interessehalber. Wo verlaufen die Abwasserrohre der Bäder im OG ?Sehr guter Hinweis... viele Augen sehen mehr Ähnliche Themen