ᐅ Grober Bauplanentwurf Einfamilienhaus inkl. Doppelgarage und Einl
Erstellt am: 12.05.18 00:06
S
Sebastian_LAS
Sebastian_LA12.05.18 00:06Hallo liebe Forumsgemeinde
Ich stehe wohl sehr weit am Anfang meines Projektes. Naja der Baugrund ist zumindest schonmal vorhanden.
Im moment versuche ich selbst einen Grundriss zu entwerfen mit dem ich glücklich werden könnte.
Das Haus soll als Einfamilienhaus inkl. Doppelgarage und obenliegender Einliegerwohnung gebaut werden.
Optional sollte es möglich sein das Einfamilienhaus ohne größere Umbaumaßnahmen nochmal in zwei Wohnungen aufzuteilen falls wir es vermieten.
Ich würde euch einfach bitte mal drüber zu schauen und mir alles an den Kopf zu werfen was ihr nicht gut findet oder was ich besser machen könnte.
Man baut ja in der Regel nur einmal im Leben und da sollte es schon passen
Ich bin über jede Reaktion von euch dankbar.
Viele Grüße
Sebastian


Ich stehe wohl sehr weit am Anfang meines Projektes. Naja der Baugrund ist zumindest schonmal vorhanden.
Im moment versuche ich selbst einen Grundriss zu entwerfen mit dem ich glücklich werden könnte.
Das Haus soll als Einfamilienhaus inkl. Doppelgarage und obenliegender Einliegerwohnung gebaut werden.
Optional sollte es möglich sein das Einfamilienhaus ohne größere Umbaumaßnahmen nochmal in zwei Wohnungen aufzuteilen falls wir es vermieten.
Ich würde euch einfach bitte mal drüber zu schauen und mir alles an den Kopf zu werfen was ihr nicht gut findet oder was ich besser machen könnte.
Man baut ja in der Regel nur einmal im Leben und da sollte es schon passen
Ich bin über jede Reaktion von euch dankbar.
Viele Grüße
Sebastian
Sebastian_LA schrieb:
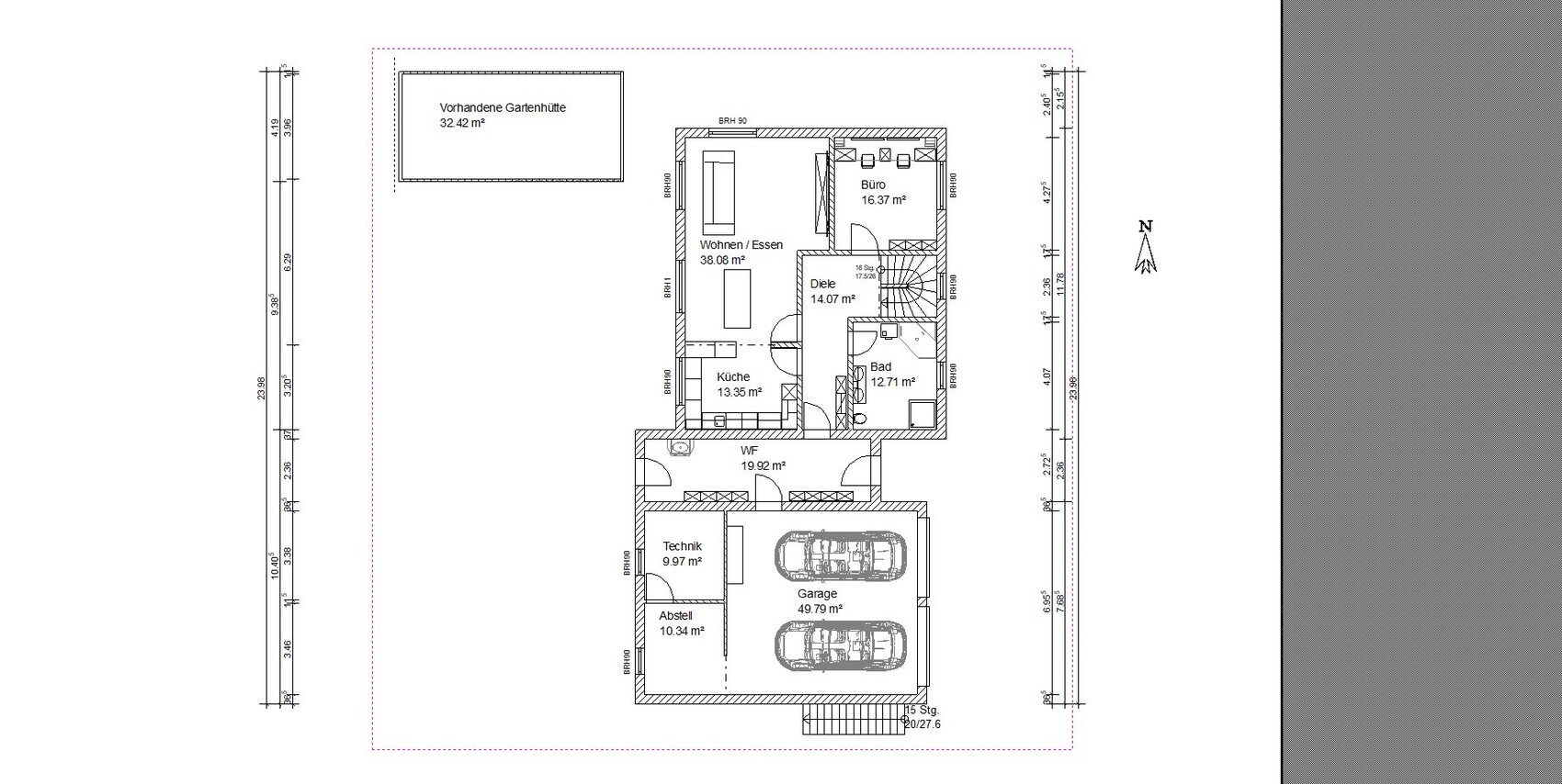
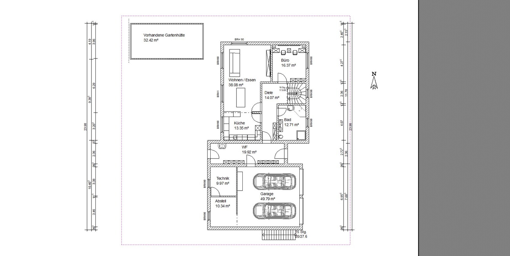
Ich stehe wohl sehr weit am Anfang meines Projektes.Das scheint mir auch so. Ein Bad mit 20 qm oder eine 86 qm Einliegerwohnung mit einer 33 qm Wohndiele wirken sehr ungelenk.Sebastian_LA schrieb:
Naja der Baugrund ist zumindest schonmal vorhanden.Dann redet immerhin schon ein konkretes Grundstück mit.haydee schrieb:
und die Grundrisse als Jpg einfügenDa dürfen dann gerne auch deutlich mehr Maße hinein.https://www.instagram.com/11antgmxde/
https://www.linkedin.com/company/bauen-jetzt/
11ant schrieb:
Das scheint mir auch so. Ein Bad mit 20 qm oder eine 86 qm Einliegerwohnung mit einer 33 qm Wohndiele wirken sehr ungelenk.
.Ich bin neugierig 🙂
Aber die PDFs kann ich nicht öffnen!
S
Sebastian_LA13.05.18 10:28Hallo und vielen Dank für die bisherigen Antworten.
Ich werde sofort schauen das ich das ganze in JPG umwandeln kann.
Den Fragenkatatalog werde ich auch soweit möglich ausfüllen.
Ich werde sofort schauen das ich das ganze in JPG umwandeln kann.
Den Fragenkatatalog werde ich auch soweit möglich ausfüllen.
S
Sebastian_LA13.05.18 10:44Bebauungsplan/Einschränkungen
Größe des Grundstücks: 636qm / 24m x 26,5m
Hang: leichter Hang
Grundflächenzahl: individuell
Geschossflächenzahl: 2,5
Randbebauung: 3m Abstand, 5,5m bei der Garage / Abstandsflächen gemäß BayBO Art6 u 7
Anzahl Stellplatz: 2
Dachform: Sattledach
Ausrichtung: egal
Maximale Höhen/Begrenzungen: individuell
Anforderungen der Bauherren
Stilrichtung, Dachform, Gebäudetyp: Nach Bebauungsplan. Ländlicher Stil.
Keller, Geschosse: eventuell mit gemauertem Keller, 2,5 geschosse.
Anzahl der Personen, Alter: mitte 30
Büro: Familiennutzung oder Homeoffice? Familiennutzung
Mehr Fragen denk ich gibts es aktuell nicht zu beantworten. Das Grundstück ist wie oben angegeben 24 x 26,5m. Wobei das längere Stück eine Steigung hat. Auf die gesamte Länge von 24m sind etwa 1,5m Höhenunterschied.
Ich hoffe die JPG`s passen so und ich habe die Innnenmaße mit eingezeichnet.



Größe des Grundstücks: 636qm / 24m x 26,5m
Hang: leichter Hang
Grundflächenzahl: individuell
Geschossflächenzahl: 2,5
Randbebauung: 3m Abstand, 5,5m bei der Garage / Abstandsflächen gemäß BayBO Art6 u 7
Anzahl Stellplatz: 2
Dachform: Sattledach
Ausrichtung: egal
Maximale Höhen/Begrenzungen: individuell
Anforderungen der Bauherren
Stilrichtung, Dachform, Gebäudetyp: Nach Bebauungsplan. Ländlicher Stil.
Keller, Geschosse: eventuell mit gemauertem Keller, 2,5 geschosse.
Anzahl der Personen, Alter: mitte 30
Büro: Familiennutzung oder Homeoffice? Familiennutzung
Mehr Fragen denk ich gibts es aktuell nicht zu beantworten. Das Grundstück ist wie oben angegeben 24 x 26,5m. Wobei das längere Stück eine Steigung hat. Auf die gesamte Länge von 24m sind etwa 1,5m Höhenunterschied.
Ich hoffe die JPG`s passen so und ich habe die Innnenmaße mit eingezeichnet.
Ähnliche Themen