Einfamilienhaus vom Architekt 150m² Verbesserungsvorschläge und Ideen gesucht

4,20 Stern(e) 11 Votes
Zuletzt aktualisiert 09.01.2026
Sie befinden sich auf der Seite 2 der Diskussion zum Thema: Einfamilienhaus vom Architekt 150m² Verbesserungsvorschläge und Ideen gesucht
>> Zum 1. Beitrag <<

D

DimaNDS

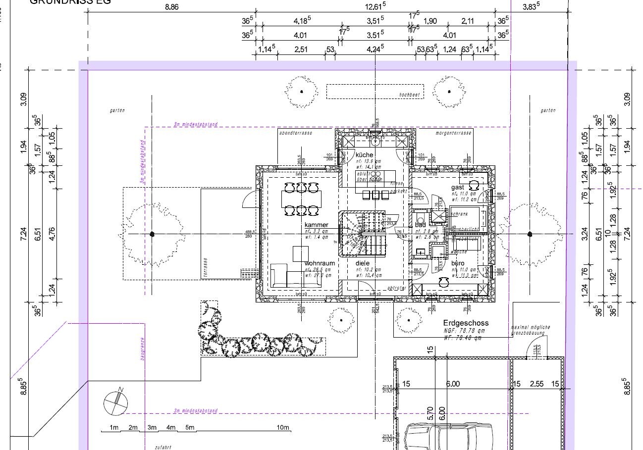
Vielen Dank für euren Input! Ich versuche mal so gut es geht unsere Gedanken zu dein einzelnen Punkten aufzuführen vielleicht kommt man ja gemeinsam auf eine bessere Lösung.

1. Budget ohne viel Eigenleistung wird das nichts
Das Grundstück ist im Budget nicht enthalten. Meinst du nicht das das funktioniert?
2. durch die Offenheit wird viel Geld ohne Nutzen verbraten
Ja das ist richtig. Aber ich denke einen Tod muss man sterben wenn man diese Luftigkeit haben will. Wir wohnen zur zeit auch relativ offen und es gefällt uns sehr. Hast du eine Idee wie man es offen und dennoch weniger verschwenderisch gestalten könnte?
3. Grundriss unbedingt mit richtigen Möbeln im Maßstab versehen
Möbel sind wohl schon im richtigen Maßstab drin.
Ohne Maße kann man schwer was sagen
Ich habe mal screenshots von den Maßen hinzugefügt.
Wohnzimmer wo kommt der Fernseh hin? Spiele, DVD‘s, Bücher?
Der Fernseher kommt auf die Wand der Treppe und ist dann in Richtung Ess- bzw. Sitzbereich schwenkbar. Die Wand erhält dafür eine kleine Vertiefung so, dass der Fernseher nicht hervorsteht. Dadrunter kann ein Regal gehängt werden.
Tisch ist in Wirklichkeit nicht so großzügig
Wie meinst du das? Im Plan ist es ein 2,10m langer Tisch. Da sollten doch an beiden Seiten 3 Personen Platz finden oder?
Gästezimmer wo soll ein Bett hin
Ein 1,40x2m Bett steht in der Nische, Ist jetzt nicht die schönste Lösung aber eine andere ist uns nicht eingefallen. Hast du eine Idee?
Hä? Wo steht jetzt die Waschmaschine? Im Büro?
Ja genau. Das Büro wird auch für die Wäsche benutzt. Es gibt einen Wäscheabwurf aus dem oberen Bad unter dem kleinen Waschbecken in den Schrank im unten links im Büro. Wir haben uns gedacht, dass wir auf der Ostseite eine Wäschespinne aufstellen um die Wäsche auch draußen zu trocknen.
Und wie muss man sich den Dachboden vorstellen? Wie kommt Ihr da hoch? Warum nutzt man nicht die Treppe bis ganz hoch?
Der Dachboden über dem Bad und dem Elternschlafzimmer ist über den oberen Flur erreichbar. Oben im Giebel wird eine normale Tür eingesetzt, die über die Leiter auf der Wand erreichbar ist. Wir haben auch über eine Dachbodenklappe nachgedacht, aber da dort relativ viel Technik rein soll haben wir uns dafür entschieden. Über der Treppe ist Luftraum geplant deshalb geht die nicht weiter hoch.
Kann man noch nen Lageplan dazu bekommen?
Den habe ich momentan leide nicht zur Hand. Sobald ich kann lade ich den hoch.
Gibt's jetzt ne Garage oder nicht? Wenn ja wo?
Ja die Garage befindet sich an der Südost Seite. Anbei noch weitere Screenshots.

Was auf den ersten Blick blöd ist:
WC im EG ohne Fenster bei einem Neubau is dünne.
Hast du eine Idee wie man das Ganze anders aufteilen könnte? Wir haben nun mit Oberlichtern in der Dusche geplant, damit Licht reinkommt. Für die "Abgase" ist eine Lüftungsanlage geplant.
Bad im OG ist ein Chaos - die Trennung macht es zwergig und nervig eng.
Da gebe ich dir recht es ist schon relativ eng da oben. Wir wollten das Bad für Eltern und Kinder gleichzeitig nutzbar machen. Hast du vielleicht eine gute Idee?
Bad-Zugang aus dem Schlafzimmer übertrieben - die 3 Schritte auf den Flur schafft man selbst mit 90.
Ankleidetür muss nach planrechts.
Ja das mit der Ankleidetür sehe ich auch so. Allerdings ist das dann nicht mehr symmetrisch und das ist uns auch recht wichtig. Deshalb der Kompromiss. Das Ankleidezimmer ist für uns allerdings generell nicht so wichtig vielleicht bekommt man ja hier das Bad und Schlafzimmer anders organisiert.
2x Luftraum mit 2 Kindern - die sind immer wach, sobald Ihr Euch bewegt.
Die Offenheit haben wir im Moment auch und es klappt eigentlich ganz gut bzw. gefällt uns.
 
A

apokolok

Wer hat sich denn diese Mini-Terrassen ausgedacht? Da passt doch maximal ein kleiner Stehtisch zum Espresso trinken darauf. Woher soll das Licht für die Oberlichter im EG kommen? Kapier ich nicht.
Sehe viel Vision, wenig Praxis.
 
H

haydee

Schau dich mal im Bereich Finanzen um
Man rechnet 2.000 Euro pro qm Wohnfläche + Baunebenkosten + Außenanlage + Garage
Niedersachsen ist etwas günstiger, jedoch habt ihr Kostentreiber wie Galerie, Glasgeländer, Offene Giebel

Ich verstehe euren Wunsch nach Offenheit.
Aber sorry für die harten Worte "das ist gewollt und nicht gekonnt."
Mini Wohnraum - nutzt ihr den wirklich nur für TV? keine Spiele nichts
Sofa vor Fenster, Tisch bei dem bei 8 Personen niemand mehr herumlaufen kann, Küche die mangels Stauraum aus allen Nähten Platz macht das zu Nichte.

Büro oder Gästezimmer wird zur Rumpelkammer.
Warum nicht ein Büro-Gästezimmer und ein Hauswirtschaftsraum sowie eine anständige Garderobe. Schulranzen und Schuhe machen den auf den Plan offenen großzügigen Eingang zu einem Chaotischen Bereich

Nimm mal den Elternbereich
Schlafzimmer ok, Ankleide nicht wirklich nutzbar, du bekommst kaum Schrankfläche
Die Fläche in einem Raum mit einer durchgängigen Schrankwand ist großzügig.
Bad genauso. Zusammen ein gutes Familienbad. Getrennt Naßzellen mit zweifelhaften Doppelnutzen. Wo kommen Handtücher und Hygieneartikel hin
Die Kinder können auch nach unten ausweichen, wenn es eng wird.

Andere Treppe, andere Treppenlage, weniger bzw. andere Räume, 1 Galerie reicht nicht zwei. Nicht offen bis zum Giebel - gibt auch Stauraum.

Schaut mal nach Hannover Langenhagen in den Musterhauspark
Das Fingerhuthaus hat einen tollen Eingang der wirkt richtig großzügig. Geht mal die Treppe hoch und laßt die Galerie wirken.
Zum Vergleich geht in das Hufhaus und laßt das wirken.
Geht in das Meisterstückhaus und stellt euch den Eingang mit Schuhen, Schultaschen, Jacken für 4 Personen vor
 
J

j.bautsch

die Küche funktioniert so auch überhaupt nicht, links und recht der Insel ist der Durchgang vllt maximal 70cm.... das geht nicht!
da hat mal wieder jemand puppenmöbel eingezeichnet....
 
Z

Zaba12

Sorry hier noch mal mit Maßen. Wie kann ich einen Beitrag editieren?
Du solltest dich wirklich mit deinem Platz, dem Mobiliar und den Durchgangsmaßen beschäftigen.

Damit Du auch verstehst was wir hier schreiben:
- Die Grundrisszeichnungen sind IMMER Rohbaumaße
- damit hast Du z.B. gerade mal irgendwas um die 70cm Durchgangsmaß zwischen der Insel und den Wänden rechts/links!

Da sieht auf den Grundrissen immer sehr toll aus bis z.B. der Küchenbauer Dir sagt, Sie brauchen mindestens ein Durchgangsmaß von ca. 90cm, alles andere ist unbequem. Deinem Architekt ist das Latte, der denkt sich dann nur, die Kücheninsel kann ja nen halben Meter kürzer werden.

Auch werden an am Esstisch Sessel oder Stühle nicht immer rangerückt stehen, die nehmen zum hin un her rücken massiv Platz weg.

Also schau noch mal überall drüber und versuche mal ein wenig über die Maße der Möbel hinauszudenken.

EDIT:

@j.bautsch : 2 Kluge, ein Gedanke
 
Zuletzt aktualisiert 09.01.2026
Im Forum Grundrissplanung / Grundstücksplanung gibt es 2565 Themen mit insgesamt 88791 Beiträgen


Ähnliche Themen zu Einfamilienhaus vom Architekt 150m² Verbesserungsvorschläge und Ideen gesucht
Nr.ErgebnisBeiträge
1Grobe Schnitzer im Grundriss? Küche zu klein? - Seite 639
2Grundriss Zugang von Küche in Speis / Abstellraum - Seite 329
3Grundrissplanung 4-Giebel Haus Herrengiebel Doppelgarage - Seite 212
4Häuser ohne Keller: Stauraum Hobby-Keller? 49
5Grundrissbewertung Einfamilienhaus 18
6Einfamilienhaus mit seitlichem Eingang -Grundrissdiskussion? 17
7Eingang Grundriss welche Treppenvariante - Seite 231
8Wohin mit der Treppe? Dachausbau Walmdachbungalow - Seite 219
9Probleme bei der aufteilung Küche, Essen , Wohnen - Seite 216
10Grundrissfrage, Treppe, Fenster, Ausrichtung 12
11 2 Vollgeschosse, Durchgang Garage, Hauswirtschaftsraum unter Treppe 25
12Esstisch in einer kleinen Küche - Seite 449
13Küche: geschlossen oder offen? Welche Raumaufteilung? - Seite 786
14Stadtvilla mit gerader Treppe, offene moderne Bauweise, 140m² 18
15REH - Grundrissplanung - Küche zu klein 30
16Wohn-/Essbereich und Küche - Sinnvolle Aufteilung - Seite 336
17Schrank unter der Treppe oder kleiner Abstellraum - Seite 211
18Erster Grundriss von unserer Küche. Was würdet ihr verändern? - Seite 212
19Erstentwurf Nolte Küche - Meinungen und Verbesserungsvorschläge - Seite 430
20Nolte Küche Erfahrungen, Qualität - Preis realistisch? - Seite 19154

Oben