Einfamilienhaus mit Einliegerwohnung auf 450qm Hanggrundstück

4,70 Stern(e) 6 Votes
Zuletzt aktualisiert 21.11.2025
Sie befinden sich auf der Seite 4 der Diskussion zum Thema: Einfamilienhaus mit Einliegerwohnung auf 450qm Hanggrundstück
>> Zum 1. Beitrag <<

K

Kristijan

Zeige trotzdem einmal, auf welcher Basis sich andere Anbieter beweisen sollten.
Der ursprüngliche Entwurf sah eine etwas größere Grundfläche vor und war auf Bodenplatte geplant. Der Vertriebler der Baufirma hatte die Idee, die Grundfläche frei zu buddeln und das Erdreich zum Garten hin mit Stützwänden abzusichern. Die Terrasse war dann als Brücke in den Garten mit zusätzlichem Abstellraum unter eben dieser gedacht.
Der Garten-Landschaftsbauer (und nicht nur der) riet aus Kostengründen von diesem Plan jedoch vehement ab.

Vier Ansichten eines modernen Hauses in Hanglage mit Balkonen und Garage.


Grundriss eines Hauses: Wohnen, Kochen/Essen, Schlafzimmer, Bad, Flur, WC und Terrasse.


Grundriss eines Stockwerks mit mehreren Kinderzimmern, Bad, Arbeitszimmer, Galerie und Treppe.


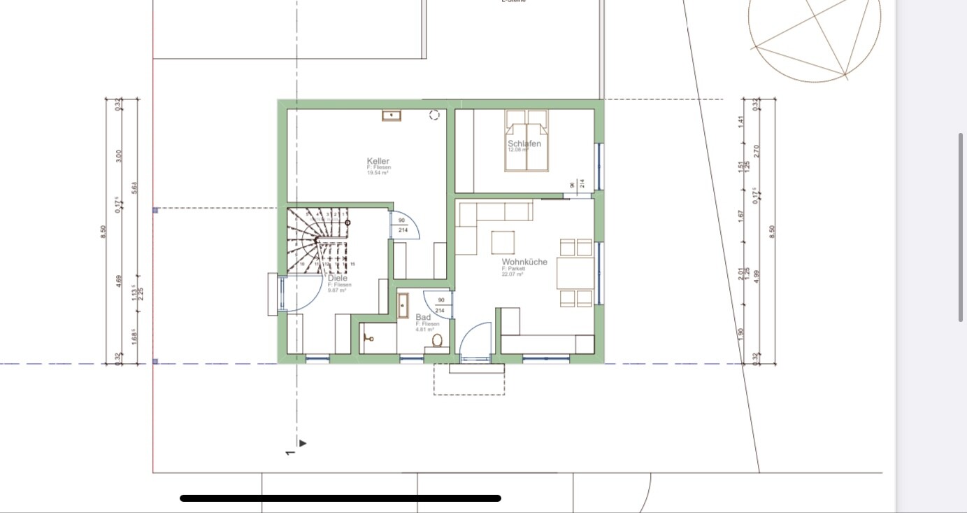
Grundriss eines Hauses: Keller, Diele, Bad, Schlafen, Wohnküche.
 
K

Kristijan

Das für meine Verhältnisse schon Lob bezog sich nicht allein auf das Zeichnungsdesign, sondern auf die reife Ausstrahlung im Vergleich zu den üblichen Pinterest-Flausen mit mißglücktem Tetris.
Das Lob nehme ich gerne mit.

Was wollt Ihr denn nun tun: mit der Planung neu vorne anfangen statt wie bisher in der Mitte, oder Ausstattung downgraden ?
Wir haben jetzt schon von einem Anbieter, der preislich mindestens ein regal tiefer anzusiedeln ist, ein Angebot eingeholt. Die wollten unverschämte 3400 Euro für das schlüsselfertige Bauen der oberen beiden Etagen haben und hatten offensichtlich keine Lust auf das Projekt.

Möglichkeit A wären weitere Abstriche in der Qualität der Anbieter in Hinblick auf Wandaufbau und verwendete Materialien. Ein Verzicht auf ein KfW-Gütesiegel wäre auch ein Kosten sparender no-brainer.
Kniffeliger wäre das komplette Überwerfen des Konzeptes. Das wäre Möglichkeit B.
Eine Idee wäre da:
Unterstes Geschoss als Teilkeller, im hinteren Bereich Funktionsräume, die nicht unbedingt Tageslicht brauchen wie z.B. Abstell- und Technikraum. Im vorderen Bereich Schlafräume.
Im oberen Geschoss dann Küche, Wohnen mit Zugang zum Garten und mind. einem eher zwei Schlafräumen.
Möglicherweise auch mit ausbaubaren Dachboden. Dann könnte man zunächst auf ein Kinderzimmer verzichten und später noch weiteren Wohnraum schaffen.
Bei dem Gedanken an eine weitere Grundrisserarbeitung bekomme ich allerdings Kopfschmerzen. Von daher tendiere ich noch zur ersten Alternative.
 
K a t j a

K a t j a

... hatten offensichtlich keine Lust auf das Projekt.
Na die sind dann schon mal raus, würd ich sagen.
Kniffeliger wäre das komplette Überwerfen des Konzeptes. Das wäre Möglichkeit B.
Eine Idee wäre da:
Unterstes Geschoss als Teilkeller, im hinteren Bereich Funktionsräume, die nicht unbedingt Tageslicht brauchen wie z.B. Abstell- und Technikraum. Im vorderen Bereich Schlafräume.
Im oberen Geschoss dann Küche, Wohnen mit Zugang zum Garten und mind. einem eher zwei Schlafräumen.
Möglicherweise auch mit ausbaubaren Dachboden. Dann könnte man zunächst auf ein Kinderzimmer verzichten und später noch weiteren Wohnraum schaffen.
Darin sehe ich die sinnvollste Lösung.
Bei dem Gedanken an eine weitere Grundrisserarbeitung bekomme ich allerdings Kopfschmerzen. Von daher tendiere ich noch zur ersten Alternative.
Ich nicht. ;)

@11ant: liegt der Entwurf nicht schon über der Geschossflächenzahl von 0,4 bei 450qm mit 3 Geschossen? Zählt hier irgendwas nicht mit? Komm gerade nicht klar. Kannst Du mich kurz erhellen?
 
K

Kristijan

liegt der Entwurf nicht schon über der Geschossflächenzahl von 0,4 bei 450qm mit 3 Geschossen? Zählt hier irgendwas nicht mit? Komm gerade nicht klar. Kannst Du mich kurz erhellen?
Ich bin da überhaupt nicht im Thema und hoffe einfach, dass die Architektin das berücksichtigt hat. Aber haut das in unserem Fall vielleicht deswegen hin, weil das oberste Geschoss nicht als Volllgeschoss zählt?
 
K

Kristijan

Ich befürchte, dass wir an einem neuen Plan nicht vorbei kommen. Zumindest werde ich mich mal hinsetzen und an nem Grundriss tüfteln, den ich dann hier zur Diskussion stelle.
Gibt es denn jetzt schon Anmerkungen zu der grundsätzlichen Idee:
Unterstes Geschoss als Teilkeller, im hinteren Bereich Funktionsräume, die nicht unbedingt Tageslicht brauchen wie z.B. Abstell- und Technikraum. Im vorderen Bereich Schlafräume.
Im oberen Geschoss dann Küche, Wohnen mit Zugang zum Garten und mind. einem eher zwei Schlafräumen.
Möglicherweise auch mit ausbaubaren Dachboden. Dann könnte man zunächst auf ein Kinderzimmer verzichten und später noch weiteren Wohnraum schaffen.
 
Zuletzt aktualisiert 21.11.2025
Im Forum Grundrissplanung / Grundstücksplanung gibt es 2535 Themen mit insgesamt 87978 Beiträgen


Ähnliche Themen zu Einfamilienhaus mit Einliegerwohnung auf 450qm Hanggrundstück
Nr.ErgebnisBeiträge
1Stadtvilla 190m² mit Einfahrt & Garten zur Südseite 30
2Entwurf Einfamilienhaus mit ca. 168m² Feedback - Seite 537
3Hausbau 2.0 - erster Grundriss-Entwurf - Seite 13155
4Einfamilienhaus Entwurf mit Satteldach am Rand vom Baugebiet - Seite 540
5Unser Grundriss-Entwurf für ein günstiges Haus 348
6Erster Entwurf Grundriss Einfamilienhaus (ca. 200qm) - Bitte um Feedback - Seite 746
7150qm Stadtvilla erster Entwurf - Anregungen - Seite 323
8Grundriss-Entwurf: Einfamilienhaus mit Keller; 560qm Grundstück - Seite 765
9Grundriss EFH165 qm erster Entwurf - Architekt unzufrieden 74
10Grundriss-Entwurf Einfamilienhaus in Hanglage, Einliegerwohnung, Doppelgarage - Seite 971
11Entwurf für Anbau/Umbau von Einfamilienhaus zu ZFS 17
12Grundriss-Entwurf: Einfamilienhaus mit 4 Schlafzimmern und Büro, 160qm - Seite 1482
13Neubau Einfamilienhaus - Begleitet uns dabei! - Seite 21348
14Passender Baum für Garten gesucht 11
15Wie Hang sichern und Aufgang Garten kostengünstig gestalten? 27
16Separater Wassermengenzähler für Garten um Abwassergebühr sparen? - Seite 424
17Garten-Landschaftsbauer Angebot ok oder doch eher total überzogen? - Seite 3103
18Ideen für Außenanlage, Garten, Garten-Landschaftsbau - Vorschläge, Tipps? - Seite 351
19Lärmschutzmöglichkeiten gegen Bahnschienen im Garten 14
20Geht das? Zuwegung komplett durch den Garten. Beispiele gesucht 27

Oben