ᐅ Einfamilienhaus mit Doppelgarage Grundrissplanung für´s zweite Haus
Erstellt am: 26.06.25 12:12
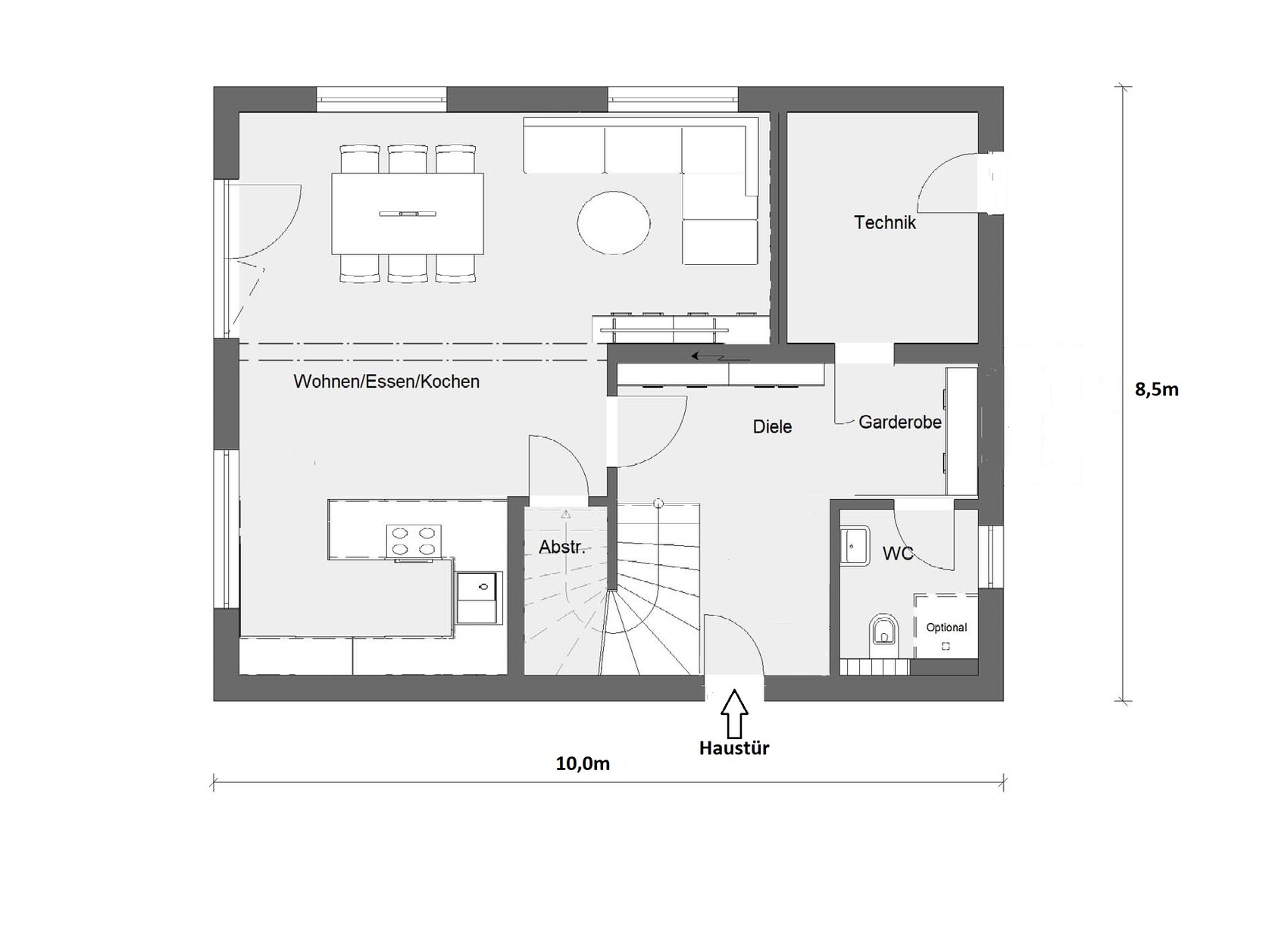
B
Buddy90Hallo zusammen!
Da der Grundstückskauf abgewickelt ist und laut Erschließer Anfang 2026 die Bebauung starten kann, bin ich aktuell auf der Ideenfindung bzgl. Grundriss und Grundstücksplanung!
Ich habe euch mal eine Idee angehangen, welche ich als gut empfinde.
Ebenso eine Idee zur Positionierung auf dem Grundstück.
Bauvorschriften gibt es nur, das die Dachneigung zwischen 20° und 45° liegen muss und eine maximale Gebäudehöhe von 9,5m.
Ich habe daran gedacht das Gebäude so hoch zu ziehen, das man im OG KEINE Dachschrägen hat und dann den Spitzboden ggf. mit den Jahren (und je nach Platzbedarf...) nochmal ausbauen könnte um dort 1-2 Zimmer zu errichten...
Was haltet ihr davon? Was gibt es zu verbessern?



Da der Grundstückskauf abgewickelt ist und laut Erschließer Anfang 2026 die Bebauung starten kann, bin ich aktuell auf der Ideenfindung bzgl. Grundriss und Grundstücksplanung!
Ich habe euch mal eine Idee angehangen, welche ich als gut empfinde.
Ebenso eine Idee zur Positionierung auf dem Grundstück.
Bauvorschriften gibt es nur, das die Dachneigung zwischen 20° und 45° liegen muss und eine maximale Gebäudehöhe von 9,5m.
Ich habe daran gedacht das Gebäude so hoch zu ziehen, das man im OG KEINE Dachschrägen hat und dann den Spitzboden ggf. mit den Jahren (und je nach Platzbedarf...) nochmal ausbauen könnte um dort 1-2 Zimmer zu errichten...
Was haltet ihr davon? Was gibt es zu verbessern?
Buddy90 schrieb:
Ich habe daran gedacht das Gebäude so hoch zu ziehen, das man im OG KEINE Dachschrägen hatWeshalb stellst Du dann das OG als DG dar, und gönnst den Traufseiten nur für das Treppenhaus Fenster ?https://www.instagram.com/11antgmxde/
https://www.linkedin.com/company/bauen-jetzt/
Buddy90 schrieb:
Das Ganze ist ein umgemodelter Grundriss, darum wird es wohl als DG dargestellt sein. Im Endeffekt soll es nur das EG und das OG geben.Also Du hast den Inspirationsentwurf von einem Anderthalbgeschösser stibitzt, das DG unverändert für gut befunden, Vorlage für das OG zu sein, und nur das EG umgemodelt ?Buddy90 schrieb:
Das DG möchte ich vorerst nicht ausbauen. Aber als Möglichkeit für die Zukunft behalten. Daher auch keine Fenster.Das hier nicht dargestellte DG wird nicht davon tangiert, wenn Du dem OG traufseitige Fenster spendierst.https://www.instagram.com/11antgmxde/
https://www.linkedin.com/company/bauen-jetzt/
Buddy90 schrieb:
Ich habe euch mal eine Idee angehangen, welche ich als gut empfinde.
Ebenso eine Idee zur Positionierung auf dem Grundstück.Mir bleibt nur dieses hier zu sagen:https://www.hausbau-forum.de/threads/grundriss-planung-unbedingt-vor-beitrag-erstellung-lesen.11714/
Mal ein paar Fragen:
- Ich gehen mal von eine Zufahrt von unten aus. Warum die Garage soweit zurückgesetzt?
- Wo gehen deine Versorgungsleitungen auf Grundstück? Wenn diese von unten kommen, dann ist der Technikraum im hinteren Teil des Hauses suboptimal.
- Wenn du den Spitzboden mal ausbauen willst, wo kommt da die Treppe hin?
Zusätzlich den erwähnten Fragebogen ausfüllen, da wir nicht euer Leben und Grundstück kennen. Nenne uns auch wo wir den Bebauungsplan finden können (bitte kein Link).
- Ich gehen mal von eine Zufahrt von unten aus. Warum die Garage soweit zurückgesetzt?
- Wo gehen deine Versorgungsleitungen auf Grundstück? Wenn diese von unten kommen, dann ist der Technikraum im hinteren Teil des Hauses suboptimal.
- Wenn du den Spitzboden mal ausbauen willst, wo kommt da die Treppe hin?
Zusätzlich den erwähnten Fragebogen ausfüllen, da wir nicht euer Leben und Grundstück kennen. Nenne uns auch wo wir den Bebauungsplan finden können (bitte kein Link).
Ähnliche Themen