Bebauungsplan/Einschränkungen
Größe des Grundstücks: 915m²
Hang: Nein
Grundflächenzahl: 0,5
Geschossflächenzahl: N/A
Baufenster, Baulinie und -grenze
Randbebauung: Nein
Anzahl Stellplatz: 2 (plus 2-3 für Gäste und Anhänger im Vorgarten)
Geschossigkeit: 1,5
Dachform: Satteldach
Stilrichtung: klassisches Einfamilienhaus mit Kapitänsgiebel
Ausrichtung: Südgarten
Maximale Höhen/Begrenzungen: Keine Maximalangaben
weitere Vorgaben: §34 Baugesetzbuch
Anforderungen der Bauherren
Stilrichtung, Dachform, Gebäudetyp: Kapitänsgiebel gartenseitig (straßenseitig nach Bauamt nicht möglich) mit 130cm gemauertem Kniestock
Keller, Geschosse: Kein Keller, 1 Vollgeschoss
Anzahl der Personen, Alter: Aktuell drei (30, 30, 3), geplant ist zweites Kind
Raumbedarf im EG, OG
Büro: Eigenes Büro zwingend erforderlich
Schlafgäste pro Jahr: Unklar, potenziell immer paarweise
offene oder geschlossene Architektur: Offener Wohn-/Ess-/Küchenbereich
konservativ oder moderne Bauweise: klassisch, geradlinig
offene Küche, Kochinsel: Ja, beides
Anzahl Essplätze: mindestens 10, eher 12 (wir feiern gern etwas größer)
Kamin: Ja, angedacht an der Ecke Ess-/Wohnbereich
Musik/Stereowand: Nicht vorgesehen
Balkon, Dachterrasse: Nein, ggf. Gründach auf der Garage
Garage, Carport: angrenzende Doppelgarage mit Durchgang zum Hauswirtschaftsraum
Nutzgarten, Treibhaus: Bereits auf dem Grundstück vorhanden (3m x 12m)
weitere Wünsche/Besonderheiten/Tagesablauf, gern auch Begründungen, warum dieses oder das nicht sein soll
Hausentwurf
Von wem stammt die Planung:
-Do-it-Yourself
Was gefällt besonders? Warum?
Die generelle Aufteilung und der zur Verfügung stehende Raum im Wohnbereich, die großen Kinderzimmer
Die Blickachse von der Haustür durch die Wohn-/Esszimmertür in den Garten
Was gefällt nicht? Warum?
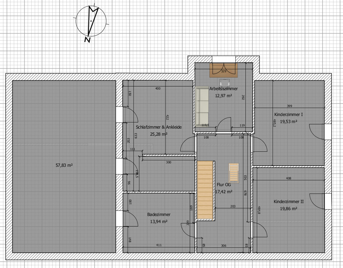
Platzverbrauch im Flur, Arbeits-/Gästezimmer ggf. etwas klein? Unsicherheit wegen der Badezimmertür im OG
Preisschätzung lt Architekt/Planer: noch keine
Persönliches Preislimit fürs Haus, inkl Ausstattung: 480.000€ (ohne Berücksichtigung etwaiger KfW-Förderungen)
favorisierte Heiztechnik: Sole-Wasser-Wärmepumpe mit Grabenkollektoren (wahlweise Flächenkollektoren, wenn günstiger)
Wenn Ihr verzichten müsst, auf welche Details/Ausbauten
-könnt Ihr verzichten: Kamin, Photovoltaikanlage, Hausautomation (die jeweilige Vorbereitungen sind aber ein muss)
-könnt Ihr nicht verzichten: Gerade Treppe
Warum ist der Entwurf so geworden, wie er jetzt ist?
Wir haben in der Vergangenheit viele Musterhäuser besichtigt, mit diversen Bauträgern gesprochen und nächtelang über dem Grundriss gesessen. Letztlich haben wir aus drei oder vier Varianten diesen ausgewählt, da er einen guten Kompromiss darstellt. Wir wollten zwingend eine gerade Treppe und unsere aktuellen sofas (wuchtiger Dreisitzer und ebenso wuchtiges L-Modell von Ikea) mitnehmen, aber auch einen Kamin am Übergang von Wohn- und Essbereich haben. Dadurch ist das Arbeitszimmer nach oben in den Kapitänsgiebel gerutscht, statt auf der Position des Gästebades zu sein.
Was macht ihn in Euren Augen besonders gut oder schlecht?
Die Flure oben und unten könnten etwas zu groß geraten sein. Ebenso bin ich mir unsicher mit der Badezimmertür im OG. Ein 130er Kniestock sollte eigentlich ausreichen, bei Bedarf können wir auch auf 150cm gehen. Eine normierte Höhenbegrenzung gibt es nicht, da die Nachbarbauten ein 1,5-Geschosser sowie ein 2,5-geschossiges Mehrfamilienhaus sind. Gegenüber stehen Doppelhaushälften.
Was ist die wichtigste/grundlegende Frage zum Grundriss in 130 Zeichen zusammengefasst?
Ich möchte vermeiden, dass wir uns "verheben" und das Projekt über den Kopf wächst (in Bezug auf Budget und Aufwand). Rein vom Bauland ist es darstellbar. Die Breite des Grundstücks straßenseitig beträgt 27m. Im rechten Winkel hierzu geht es 23,5m nach hinten, erst dort macht das Grundstück einen leichten Knick.
Alle Flächenangaben sind exkl. Dachschrägen (OG) zu sehen. Die Fläche im OG verringert sich also nochmals etwas.


Größe des Grundstücks: 915m²
Hang: Nein
Grundflächenzahl: 0,5
Geschossflächenzahl: N/A
Baufenster, Baulinie und -grenze
Randbebauung: Nein
Anzahl Stellplatz: 2 (plus 2-3 für Gäste und Anhänger im Vorgarten)
Geschossigkeit: 1,5
Dachform: Satteldach
Stilrichtung: klassisches Einfamilienhaus mit Kapitänsgiebel
Ausrichtung: Südgarten
Maximale Höhen/Begrenzungen: Keine Maximalangaben
weitere Vorgaben: §34 Baugesetzbuch
Anforderungen der Bauherren
Stilrichtung, Dachform, Gebäudetyp: Kapitänsgiebel gartenseitig (straßenseitig nach Bauamt nicht möglich) mit 130cm gemauertem Kniestock
Keller, Geschosse: Kein Keller, 1 Vollgeschoss
Anzahl der Personen, Alter: Aktuell drei (30, 30, 3), geplant ist zweites Kind
Raumbedarf im EG, OG
Büro: Eigenes Büro zwingend erforderlich
Schlafgäste pro Jahr: Unklar, potenziell immer paarweise
offene oder geschlossene Architektur: Offener Wohn-/Ess-/Küchenbereich
konservativ oder moderne Bauweise: klassisch, geradlinig
offene Küche, Kochinsel: Ja, beides
Anzahl Essplätze: mindestens 10, eher 12 (wir feiern gern etwas größer)
Kamin: Ja, angedacht an der Ecke Ess-/Wohnbereich
Musik/Stereowand: Nicht vorgesehen
Balkon, Dachterrasse: Nein, ggf. Gründach auf der Garage
Garage, Carport: angrenzende Doppelgarage mit Durchgang zum Hauswirtschaftsraum
Nutzgarten, Treibhaus: Bereits auf dem Grundstück vorhanden (3m x 12m)
weitere Wünsche/Besonderheiten/Tagesablauf, gern auch Begründungen, warum dieses oder das nicht sein soll
Hausentwurf
Von wem stammt die Planung:
-Do-it-Yourself
Was gefällt besonders? Warum?
Die generelle Aufteilung und der zur Verfügung stehende Raum im Wohnbereich, die großen Kinderzimmer
Die Blickachse von der Haustür durch die Wohn-/Esszimmertür in den Garten
Was gefällt nicht? Warum?
Platzverbrauch im Flur, Arbeits-/Gästezimmer ggf. etwas klein? Unsicherheit wegen der Badezimmertür im OG
Preisschätzung lt Architekt/Planer: noch keine
Persönliches Preislimit fürs Haus, inkl Ausstattung: 480.000€ (ohne Berücksichtigung etwaiger KfW-Förderungen)
favorisierte Heiztechnik: Sole-Wasser-Wärmepumpe mit Grabenkollektoren (wahlweise Flächenkollektoren, wenn günstiger)
Wenn Ihr verzichten müsst, auf welche Details/Ausbauten
-könnt Ihr verzichten: Kamin, Photovoltaikanlage, Hausautomation (die jeweilige Vorbereitungen sind aber ein muss)
-könnt Ihr nicht verzichten: Gerade Treppe
Warum ist der Entwurf so geworden, wie er jetzt ist?
Wir haben in der Vergangenheit viele Musterhäuser besichtigt, mit diversen Bauträgern gesprochen und nächtelang über dem Grundriss gesessen. Letztlich haben wir aus drei oder vier Varianten diesen ausgewählt, da er einen guten Kompromiss darstellt. Wir wollten zwingend eine gerade Treppe und unsere aktuellen sofas (wuchtiger Dreisitzer und ebenso wuchtiges L-Modell von Ikea) mitnehmen, aber auch einen Kamin am Übergang von Wohn- und Essbereich haben. Dadurch ist das Arbeitszimmer nach oben in den Kapitänsgiebel gerutscht, statt auf der Position des Gästebades zu sein.
Was macht ihn in Euren Augen besonders gut oder schlecht?
Die Flure oben und unten könnten etwas zu groß geraten sein. Ebenso bin ich mir unsicher mit der Badezimmertür im OG. Ein 130er Kniestock sollte eigentlich ausreichen, bei Bedarf können wir auch auf 150cm gehen. Eine normierte Höhenbegrenzung gibt es nicht, da die Nachbarbauten ein 1,5-Geschosser sowie ein 2,5-geschossiges Mehrfamilienhaus sind. Gegenüber stehen Doppelhaushälften.
Was ist die wichtigste/grundlegende Frage zum Grundriss in 130 Zeichen zusammengefasst?
Ich möchte vermeiden, dass wir uns "verheben" und das Projekt über den Kopf wächst (in Bezug auf Budget und Aufwand). Rein vom Bauland ist es darstellbar. Die Breite des Grundstücks straßenseitig beträgt 27m. Im rechten Winkel hierzu geht es 23,5m nach hinten, erst dort macht das Grundstück einen leichten Knick.
Alle Flächenangaben sind exkl. Dachschrägen (OG) zu sehen. Die Fläche im OG verringert sich also nochmals etwas.
Ich fürchte, die Treppe ist etwas kurz geraten ... welche Raumhöhe (lichte Höhe) respektive Geschosshöhe habt ihr euch denn vorgestellt:
Bequem bei Geschosshöhe 280 cm = ca. gut 250 cm fertige Raumhöhe
sind die gezeichneten gut 4m, gehen tun vielleicht auch noch die 360 cm. Wenn ich bei dir rechne, dann sind es allerdings Max. 340 cm.
Und damit hakt der Raumplan.
Außerdem ist es immer sinnvoll, eure geplanten Möbel, insbesondere wuchtige Sofas, geplante Kamin, Esstische für 12 Personen, mal einzuzeichnen, damit wir sehen, wie ihr euch das vorstellt.
Im OG eine Ankleide mit nur 198cm Rohbautiefe ... was soll da rein?
Soll die Garage eine Dachterrasse bieten? Warum dann im Osten? Vielleicht mal Lageplan mit eingezeichneter Hauslage nutzen.
Fensterplanung ist ja wohl generell noch nicht abgeschlossen -oder? Sonst wird das OG tüchtig dunkel. Schön wäre es auch, wenn bei eingezeichneten Fenstern die gedachte Brüstungshöhe steht.
Und, Hinweis ... wenn man Nischen für z. B. 4x60cm breiten Küchenhochschrank plant, dann sollte man im Rohbau immer 5 cm dazugeben. Dasselbe für Kleiderschranknischen etc. Denn es kommt ja oft noch Putz dazu und dann ist Mauern kein Filigranwerk, sondern da kann es auch mal zu 1 cm Abweichung kommen.
Grundidee auch ... Arbeits-/Gästezimmer eher ins EG zum Gästebad und dafür dort den Technik/Hauswirtschaftsraum-Raum splitten und Wäsche etc. nach oben schaffen.
Außerdem mal überlegen, ob Spitzboden (da soll wohl Lagerfläche entstehen, da im OG eine Dachtreppe eingezeichnet ist) nicht vielleicht sinnvoller durch eine Weiterführung der normalen Treppe erreicht werden kann. Und dies dann vielleicht auch ein paar qm Grundfläche einsparen kann.
Bei der Grundstücksbreite wäre es vielleicht auch denkbar, Garage vom Haus zu trennen, da durch auch Westfenster zu haben und vielleicht ein bisschen geschützte Gartenecke zu erzeugen.
Bequem bei Geschosshöhe 280 cm = ca. gut 250 cm fertige Raumhöhe
sind die gezeichneten gut 4m, gehen tun vielleicht auch noch die 360 cm. Wenn ich bei dir rechne, dann sind es allerdings Max. 340 cm.
Und damit hakt der Raumplan.
Außerdem ist es immer sinnvoll, eure geplanten Möbel, insbesondere wuchtige Sofas, geplante Kamin, Esstische für 12 Personen, mal einzuzeichnen, damit wir sehen, wie ihr euch das vorstellt.
Im OG eine Ankleide mit nur 198cm Rohbautiefe ... was soll da rein?
Soll die Garage eine Dachterrasse bieten? Warum dann im Osten? Vielleicht mal Lageplan mit eingezeichneter Hauslage nutzen.
Fensterplanung ist ja wohl generell noch nicht abgeschlossen -oder? Sonst wird das OG tüchtig dunkel. Schön wäre es auch, wenn bei eingezeichneten Fenstern die gedachte Brüstungshöhe steht.
Und, Hinweis ... wenn man Nischen für z. B. 4x60cm breiten Küchenhochschrank plant, dann sollte man im Rohbau immer 5 cm dazugeben. Dasselbe für Kleiderschranknischen etc. Denn es kommt ja oft noch Putz dazu und dann ist Mauern kein Filigranwerk, sondern da kann es auch mal zu 1 cm Abweichung kommen.
Grundidee auch ... Arbeits-/Gästezimmer eher ins EG zum Gästebad und dafür dort den Technik/Hauswirtschaftsraum-Raum splitten und Wäsche etc. nach oben schaffen.
Außerdem mal überlegen, ob Spitzboden (da soll wohl Lagerfläche entstehen, da im OG eine Dachtreppe eingezeichnet ist) nicht vielleicht sinnvoller durch eine Weiterführung der normalen Treppe erreicht werden kann. Und dies dann vielleicht auch ein paar qm Grundfläche einsparen kann.
Bei der Grundstücksbreite wäre es vielleicht auch denkbar, Garage vom Haus zu trennen, da durch auch Westfenster zu haben und vielleicht ein bisschen geschützte Gartenecke zu erzeugen.
Danke kbt09 für die erste Einschätzung.
Es geht leider nicht aus den Zeichnungen hervor, aber wir rechnen mit 280cm Geschosshöhe, ggf. auch etwas mehr im Rohmaß, da ich gern eine zentrale Be- und Entlüftung hätte, die deckenseitig verbaut ist (ich hasse die Luftauslässe im Boden). Die Treppenplanung besprechen wir kommende Woche mit dem Treppenbauer unserer Wahl (ich möchte möglichst viele Gewerke mit Handwerkern aus der Region machen). Da wird dann hoffentlich einiges klarer.
Die Fenster sind in der Tat noch nicht final. An der Westseite schweben uns bodentiefe Fenster vor, ebenso zur Südseite (dort sogar drei mal Doppelflügel, um jederzeit in den Garten gehen zu können) sowie im Kapitänsgiebel. Die derzeit eingezeichneten Fenster sollen zunächst nur Anhaltspunkte liefern, wie die Außenansicht sein _könnte_ Die genaue Bemaßung müssen wir dann mit einem Architekten besprechen.
Grundsätzlich passen die aktuellen Möbel in die Räume. Das haben wir allerdings klassisch analog gemacht (Grundriss auf A3 übertragen und im entsprechenden Maßstab die Möbel mit ausgeschnittenem Karton eingelegt).
Die Garage soll maximal ein Gründach bekommen. Wir gehen aktuell nicht davon aus, dass eine Dachterrasse derart häufig genutzt würde. U.a. aus dem Grund, weil sie im Osten angesetzt ist. Angenehm ist zudem der direkte Zugang zum Hauswirtschaftsraum, sodass schwere Einkäufe schnell eingeräumt werden können. Der Durchgang von Hauswirtschaftsraum in die Küche ist vorerst als Schiebetür eingezeichnet. Ich kann mir aber auch gut vorstellen, dort eine Schwingtür zu verwenden. Dadurch könnte der Durchlass dort auch größer werden.
Der Hinweis mit den Nischen ist gut, den werden wir mitnehmen. Grundsätzlich muss ich bei den Bemaßungen auch sagen, dass diese auch ein wenig dem Tool bzw. meinem laienhaften Umgang damit geschuldet sind. Die exakten Maße müssen wir (wie auch schon bei den Fenstern) mit dem Architekten dann eintüten.
Bei der Sache mit dem Dachboden bin ich mir noch unschlüssig, wo ggf. die weiterführende Treppe hinsollte, ohne die Tür zum Badezimmer zu "gefährden". Kommen die sich nicht etwas zu nah dann?
Es geht leider nicht aus den Zeichnungen hervor, aber wir rechnen mit 280cm Geschosshöhe, ggf. auch etwas mehr im Rohmaß, da ich gern eine zentrale Be- und Entlüftung hätte, die deckenseitig verbaut ist (ich hasse die Luftauslässe im Boden). Die Treppenplanung besprechen wir kommende Woche mit dem Treppenbauer unserer Wahl (ich möchte möglichst viele Gewerke mit Handwerkern aus der Region machen). Da wird dann hoffentlich einiges klarer.
Die Fenster sind in der Tat noch nicht final. An der Westseite schweben uns bodentiefe Fenster vor, ebenso zur Südseite (dort sogar drei mal Doppelflügel, um jederzeit in den Garten gehen zu können) sowie im Kapitänsgiebel. Die derzeit eingezeichneten Fenster sollen zunächst nur Anhaltspunkte liefern, wie die Außenansicht sein _könnte_ Die genaue Bemaßung müssen wir dann mit einem Architekten besprechen.
Grundsätzlich passen die aktuellen Möbel in die Räume. Das haben wir allerdings klassisch analog gemacht (Grundriss auf A3 übertragen und im entsprechenden Maßstab die Möbel mit ausgeschnittenem Karton eingelegt).
Die Garage soll maximal ein Gründach bekommen. Wir gehen aktuell nicht davon aus, dass eine Dachterrasse derart häufig genutzt würde. U.a. aus dem Grund, weil sie im Osten angesetzt ist. Angenehm ist zudem der direkte Zugang zum Hauswirtschaftsraum, sodass schwere Einkäufe schnell eingeräumt werden können. Der Durchgang von Hauswirtschaftsraum in die Küche ist vorerst als Schiebetür eingezeichnet. Ich kann mir aber auch gut vorstellen, dort eine Schwingtür zu verwenden. Dadurch könnte der Durchlass dort auch größer werden.
Der Hinweis mit den Nischen ist gut, den werden wir mitnehmen. Grundsätzlich muss ich bei den Bemaßungen auch sagen, dass diese auch ein wenig dem Tool bzw. meinem laienhaften Umgang damit geschuldet sind. Die exakten Maße müssen wir (wie auch schon bei den Fenstern) mit dem Architekten dann eintüten.
Bei der Sache mit dem Dachboden bin ich mir noch unschlüssig, wo ggf. die weiterführende Treppe hinsollte, ohne die Tür zum Badezimmer zu "gefährden". Kommen die sich nicht etwas zu nah dann?
airliner schrieb:
klassisch analog gemacht (Grundriss auf A3 übertragen und im entsprechenden Maßstab die Möbel mit ausgeschnittenem Karton eingelegt).Kann man abfotografieren ... du willst von uns eine Einschätzung, die ist ohne die gewünschte Möblierung halt nicht vollständig.airliner schrieb:
Zeichnungen hervor, aber wir rechnen mit 280cm Geschosshöhe, ggf. auch etwas mehr im Rohmaß,280 cm Geschosshöhe ergibt schon ohne großartigen Bodenaufbau Max. 254 cm lichte Raumhöhe. Wenn da noch mehr in die Decke gepackt werden soll, die dann dadurch evtl. dicker wird, dann solltet ihr vor allem mal die lichte Endhöhe definieren.Aber, mal abgesehen davon, ist eure gerade Treppe sehr steil, die ihr da geplant habt. Und, an der Treppe hängt der Rest vom Grundriss.
Mecklenburg ist zwar nicht das teure Bauland, aber in Sachen Größenordnung, Verhältnisse etc habt ihr es wohl nicht so. Vieles ist ein Ticken größer als nötig. Der Hauswirtschaftsraum ist größenwahnsinnig
Ich geh mal davon aus, dass Ihr peu a peu das Haus in der Planung vergrößert habt, damit Eure Sofas Platz haben, ... dann das Büro nach oben... das hat sich alles verselbstständigt, oder?
Mit Euren Wünschen seh ich das nicht. Oder kommen Außenanlagen, Baunebenkosten und Garage extra?
Ja, definitiv.
Das alles soll rein bei dem Preis?!
Ein TK-Raum braucht ca. 6 qm, Abstellfläche unten gern 4-6, oben einen Hauswirtschaftsraum mit 6-8qm... das alles IM Haus, Outdoor noch mal 10 an der Garage dran... das wären gute Zahlen für eine 4-5-köpfige Familie.
Um das Haus bezahlbar zu machen, kann man auch gern noch irgendwo drehen.
Mein Vorschlag: alles etwas reduzieren vor allem die Flurgrößen (ihr geht Euch ja nen Wolf), Büro nach unten statt des HWRs, TK-Raum von ausreichender Größe, oben dann den Hauswirtschaftsraum.
Die Kinderzimmer kann man zwar nicht halbieren, aber 15-16qm sind auch schon gut groß. Ok, die Bodenfläche ist hier nicht die Wohnfläche, aber da geht insgesamt einiges, wenn man den Flur vernünftig macht.
Viele, die bauen, haben hier weniger Wohnraum als ihr Flur im OG.
Garage: keine Ahnung, ob die hier noch untergeordnet ist, aber die bzw das Haus sieht sicherlich gefälliger aus, wenn sie etwas eingestaucht ist und kürzer als das Haus breit.
Ich geh mal davon aus, dass Ihr peu a peu das Haus in der Planung vergrößert habt, damit Eure Sofas Platz haben, ... dann das Büro nach oben... das hat sich alles verselbstständigt, oder?
airliner schrieb:
Persönliches Preislimit fürs Haus, inkl Ausstattung: 480.000€ (ohne
Mit Euren Wünschen seh ich das nicht. Oder kommen Außenanlagen, Baunebenkosten und Garage extra?
airliner schrieb:
Platzverbrauch im Flur, Arbeits-/Gästezimmer ggf. etwas klein? Unsichere
Ja, definitiv.
airliner schrieb:
könnt Ihr verzichten: Kamin, Photovoltaikanlage, Hausautomation (die jeweilige
Das alles soll rein bei dem Preis?!
airliner schrieb:
Ich möchte vermeiden, dass wir uns "verheben" un
Ein TK-Raum braucht ca. 6 qm, Abstellfläche unten gern 4-6, oben einen Hauswirtschaftsraum mit 6-8qm... das alles IM Haus, Outdoor noch mal 10 an der Garage dran... das wären gute Zahlen für eine 4-5-köpfige Familie.
Um das Haus bezahlbar zu machen, kann man auch gern noch irgendwo drehen.
Mein Vorschlag: alles etwas reduzieren vor allem die Flurgrößen (ihr geht Euch ja nen Wolf), Büro nach unten statt des HWRs, TK-Raum von ausreichender Größe, oben dann den Hauswirtschaftsraum.
Die Kinderzimmer kann man zwar nicht halbieren, aber 15-16qm sind auch schon gut groß. Ok, die Bodenfläche ist hier nicht die Wohnfläche, aber da geht insgesamt einiges, wenn man den Flur vernünftig macht.
Viele, die bauen, haben hier weniger Wohnraum als ihr Flur im OG.
Garage: keine Ahnung, ob die hier noch untergeordnet ist, aber die bzw das Haus sieht sicherlich gefälliger aus, wenn sie etwas eingestaucht ist und kürzer als das Haus breit.
Bei uns geht die Treppe auch recht nah an der Badtür hoch. Stört nicht. Aber eine bequeme Treppe ist Goldwert. In den Abstellraum (Dachboden) kommen doch ehr Größe Sachen.
Bitte stelle den Grundriss mit Möbeln ein. Man könnte wirklich einiges verkleinern und Laufwege optimieren.
Bitte stelle den Grundriss mit Möbeln ein. Man könnte wirklich einiges verkleinern und Laufwege optimieren.
Ähnliche Themen