Einfamilienhaus leichte Hanglage an Waldrand

4,30 Stern(e) 4 Votes
Zuletzt aktualisiert 28.11.2025
Sie befinden sich auf der Seite 2 der Diskussion zum Thema: Einfamilienhaus leichte Hanglage an Waldrand
>> Zum 1. Beitrag <<

Y

ypg

Die Terrasse oben ist für meinen Geschmack ausreichend sonnig
Und früher hast Du Dich in der Schule auch mit einer 4 zufrieden gegeben? (4 = ausreichend)

Die Aufteilung hat auch den Vorteil, dass unten später mal eine fast oder ganz abgetrennte Wohnung eingerichtet werden kann
marv's Kritik beisst sich nicht damit, 2 spätere Wohnungen (UG/EG) zu trennen

Wir wollten da auch etwas an die Zukunft denken...
Das kann man ja! Und genau aus dem Grund, dass man einige Jahrzehnte in einem Haus wohnen bleiben möchte, sollte man nicht am Anfang am falschen Ende sparen.

Ich möchte zumindest kein Haus mit zwei sechs Meter langen und einem Meter schmalen Fluren haben. Das hat dann auch nichts mit Entwerfen zu tun.

Sorry, aber man muss ja mal Tacheles...
 
L

lreplrep

Ich versuchs noch mal...

Und früher hast Du Dich in der Schule auch mit einer 4 zufrieden gegeben? (4 = ausreichend)
Nein, ich meinte eigentlich: Eine Terrasse im Westen ist mir sogar etwas lieber als im Süden.


Ich möchte zumindest kein Haus mit zwei sechs Meter langen und einem Meter schmalen Fluren haben. Das hat dann auch nichts mit Entwerfen zu tun.

Sorry, aber man muss ja mal Tacheles...
Ich habe mittlerweile eingesehen, dass der Entwurf Mist ist. Manchmal sieht man die größten Böcke selbst nicht mehr. Vielen Dank

Vielleicht mal eine grundsätzliche Frage, die ja schon kurz angeschnitten wurde: Würdet ihr die Wohnebene eher oben oder unten sehen?

Unten wäre die Westseite halt ohne Fenster/Türen, da unterirdisch. Dafür die Terrasse im Süden und keine Treppe vom Zugang im Norden notwendig. Wobei wir etwas Angst haben, dass man sich unten wie im "Loch" fühlt, da neben der unterirdischen Seite im Westen auch die Terrasse unterhalb der Straße/Wendehammer wäre...

Gruß
 
L

lreplrep

Hallo zusammen,

anbei noch mal ein stark überarbeiteter Entwurf mit Ansichten. Werde zwar demnächst einen Architekten zu Rate ziehen, da wir auch gerne die Firstrichtung anders als im Bebauungsplan vorgesehen umsetzen wollen, mich würde aber trotzdem Eure Meinung dazu interessieren.

Wohnbereich ist nach wie vor oben mit Terrasse nach Westen. Denke das ist die beste Lösung, da die Baulinie nur 5m vom Wendehammer entfernt ist und man hier durch den Hang sehr "im Loch" sitzten würde.

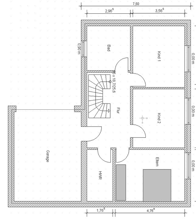
Unsicher bin ich noch, ob der Hauswirtschaftsraum ausreichend groß ist (die Technik soll möglichst in die Garage und teilweise in den Abstellraum oben). Außerdem die Belichtung im Flur, da fehlt auf jeden Fall noch ein Fenster denke ich.

Gruß und schon mal vielen Dank für Eure Meinungen!

Grundriss eines Hauses: Garage links, Eltern, Kind 1, Kind 2, Bad, Flur, HWR und Treppe.


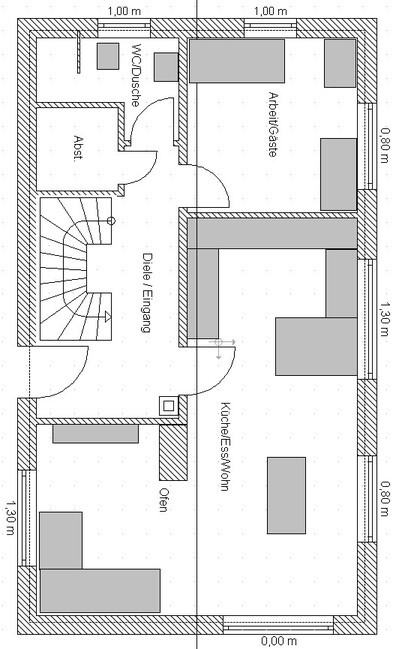
Grundriss eines Hauses mit Diele, Abstellraum, Küche/Essen, Arbeitsbereich und offener Wohnbereich.


Lageplan: Grundstücksgrenze, bestehendes Nebengebäude, Haus und Garage mit Legende


Schlichte architektonische Skizze einer Hausfront mit Garage und zwei Fenstern.


Zweigeschossiges Haus von außen mit Flachdach, Dachueberhang und Fenstern


Linienzeichnung einer frontalen Hausansicht mit Satteldach, Türfenster und Terrasse


Architektur-Skizze einer Hausfassade mit Treppe und Fenstern von der Seite
 
f-pNo

f-pNo

Hi,

also erst einmal. Wir hatten auch ein Hanggrundstück und haben es ähnlich umgesetzt wie Ihr es plant.
D.h. die Schlafräume im EG und die Wohnräume im OG. Ist nicht die klassische Variante. Dafür sind die Schlafräume i.d.R. kühler und der Wohnraum bietet direkt den Weg nach draußen.
Die Nachbarn rechts und links haben sich eingegraben/ausgegraben. Für uns allerdings damit blöd, da wir unseren oberen Grundstücksteil jetzt mit Zaun absturzsicher (kleine Kinder) machen müssen. Dafür sitzen wir nicht im Bunker und haben noch immer ein schönes Grundstück .
Unsere Terrasse geht zum Osten raus. Somit haben wir vormittags und mittags volle Sonne und am Nachmittag, wenn es heiß wird, kommt der Schatten rum. Die Nachbarn hinter uns beneiden uns ein wenig, da diese mit Westterrasse aktuell immer in der Gluthitze sitzen.
Ich wiederum beneide diese Nachbarn, da sie dann im Herbst schön die (nicht mehr so heiße) Abendsonne auf der Terrasse haben. Naja - man kann nicht alles haben.

Kannst ja mal unter meinen knapp 800 Beiträgen suchen - ich hatte vor > 1 Jahr mal meinen Entwurf eingestellt .

Zu Deinen Entwurf:
Überlege, inwiefern die Südterrasse aktuell Sinn machen würde (gibt es die überhaupt noch - aus dem Entwurf nicht zu ersehen).
Ich habe etwas Verständnisprobleme mit Deinem Entwurf. Du schreibst, dass Du eine Terrasse im Westen bauen willst und zeichnest eine Terrasse auf der Garage im Norden ein? Verstehe ich nicht - wozu soll die gut sein?
Wollt Ihr den kompletten Zugang zum Haus über die Garage machen (oder bin ich blind)? Ihr wollt die Garage doch nicht zum Parken der Autos nutzen (hast Du geschrieben). Also parkt Ihr draußen, öffnet das Garagentor, geht in die Garage, schließt das Tor und öffnet die Hauseingangstüre. Es wird nicht lange dauern und die Garage bleibt offen.
Alternativ trampelt Ihr eine Treppe hoch und geht über die Nordterrasse rein.
Die relativ kleinen Bäder sowie der etwas kleine Hauswirtschaftsraum wurde schon angesprochen. Plant zumindest ein Bad größer - Ihr wollt doch Jahrzehnte dort drin leben.
 
L

lreplrep

Vielen Dank für Eure Meinung,

Kannst ja mal unter meinen knapp 800 Beiträgen suchen - ich hatte vor > 1 Jahr mal meinen Entwurf eingestellt .
Habe Deinen Beitrag doch noch relativ schnell gefunden
Ihr habt tatsächlich eine sehr ähnliche Situation. Schön zu hören, dass sich die Aufteilung Schlafen unten / Wohnen oben bewährt hat. Ist ja doch etwas ungewöhnlich und man findet auch nur wenige Erfahrungsberichte. Bei unseren österreichischen Freunden habe ich aber doch einige gefunden die auch sehr zufrieden mit einer solchen Aufteilung sind.


Überlege, inwiefern die Südterrasse aktuell Sinn machen würde (gibt es die überhaupt noch - aus dem Entwurf nicht zu ersehen).
Da es nur 5m zur Straße sind und noch Böschung + evtl. Bepflanzung/Sichtschutz dazu kommt tendieren wir tatsächlich eher dazu hier keine Terrasse anzulegen. Ich denke das lohnt sich nicht mehr. Vielleicht noch ein schmaler gepflasterter Weg.

Ich habe etwas Verständnisprobleme mit Deinem Entwurf. Du schreibst, dass Du eine Terrasse im Westen bauen willst und zeichnest eine Terrasse auf der Garage im Norden ein? Verstehe ich nicht - wozu soll die gut sein?
Wollt Ihr den kompletten Zugang zum Haus über die Garage machen (oder bin ich blind)?
Der Haupteingang ist tatsächlich oben über die Garage. Daher auch das Geländer dort. Dadurch entsteht automatisch eine Art Terrasse auf der Garage. Ist vielleicht auch nicht schlecht als Ausweichmöglichkeit falls es im Westen mal zu heiß wird (inkl. Blick in den Wald im Norden).

Wir (bzw. meine Frau wollen den Haupteingang ungern unten (quasi im "privaten" Bereich) haben, daher diese Lösung. Vielleicht wird die Garage doch groß genug für Auto + Motorräder/Fahrräder (hängt von den Kosten ab

Nebeneingang unten + Durchgang Garage->Hauswirtschaftsraum nimmt zu viel Platz weg, ich denke das ist es nicht wert.

Das Bad müssen wir denke ich mal versuchen einzurichten. Es ist schon etwas größer geworden, z.Z. ca. 9qm.

Gruß,
lrep
 
Zuletzt aktualisiert 28.11.2025
Im Forum Bauplanung gibt es 5072 Themen mit insgesamt 100818 Beiträgen


Ähnliche Themen zu Einfamilienhaus leichte Hanglage an Waldrand
Nr.ErgebnisBeiträge
1 2 Vollgeschosse, Durchgang Garage, Hauswirtschaftsraum unter Treppe 25
2Einfamilienhaus als Reihenmittelhaus an Hanglage - Entwurf - Seite 318
3Grundriss-Entwurf Stadtvilla mit Doppelgarage - Seite 238
4Eine Villa für zwei Kinder - Seite 235
5Hauswirtschaftsraum Raum ohne Fenster - Lüftungsanlage ausreichend? 26
6Meinungen zu unserem Grundriss Entwurf erwünscht - Seite 670
7Erst-Entwurf vom Architekten - Optimierung 28
8Grundriss 170m2 - Hauswirtschaftsraum zu klein? Verbesserungsvorschläge? - Seite 642
9Unser Grundriss-Entwurf, eure Meinungen 20
10Grundriss Einfamilienhaus ca. 135 m³, Grundriss. Garage, 1,5 Geschossig, 4 Personen - Seite 211
11Entwurf EFH, 2 Vollgeschosse, Satteldach, kein Keller, Doppelgarage - Seite 331
12Haus ohne Garage und Keller? Ausbau Dachboden? Fresswarze? - Seite 585
13Grundriss erster Entwurf - Meinungen erwünscht - Seite 221
14Entwurf - alle Richtungen bei Neubau vom Einfamilienhaus 91
15OG Stadtville optimieren. Fenster Bodentief - Seite 13104
16Terrasse vom Nachbar grenzt an Garage 11
17Wie Gebäude platzieren? Haus Terrasse Garage Werkstatt 24
18Entwurf Einfamilienhaus mit Garage/Carport - bitte um Bewertung 22
19Zugang von der Garage in den Hauswirtschaftsraum 49
20Fenster im Gäste-WC/Gästezimmer trotz Garage möglich? 33

Oben