ᐅ Einfamilienhaus Kubus ohne Dach mit Vollgeschoss
Erstellt am: 25.11.18 21:59
Hallo ihr lieben,
Ich werde wahrscheinlich ab Frühjahr mit meiner Familie ein Haus bauen, doch leider ist es mit dem Grundriss ja eine sehr schwierige Sache. Das hätte ich nie gedacht. Vor allem passt es gar nicht mehr mit unseren Vorstellungen. Haben ca 100m2 Grünstreifen auf dem Grundstück den wir leider nicht zur Grundflächenzahl berechnen dürfen. Andere lange Story...
Grundstück 585m2
Grundflächenzahl 0,4
Geschossflächenzahl 0,2
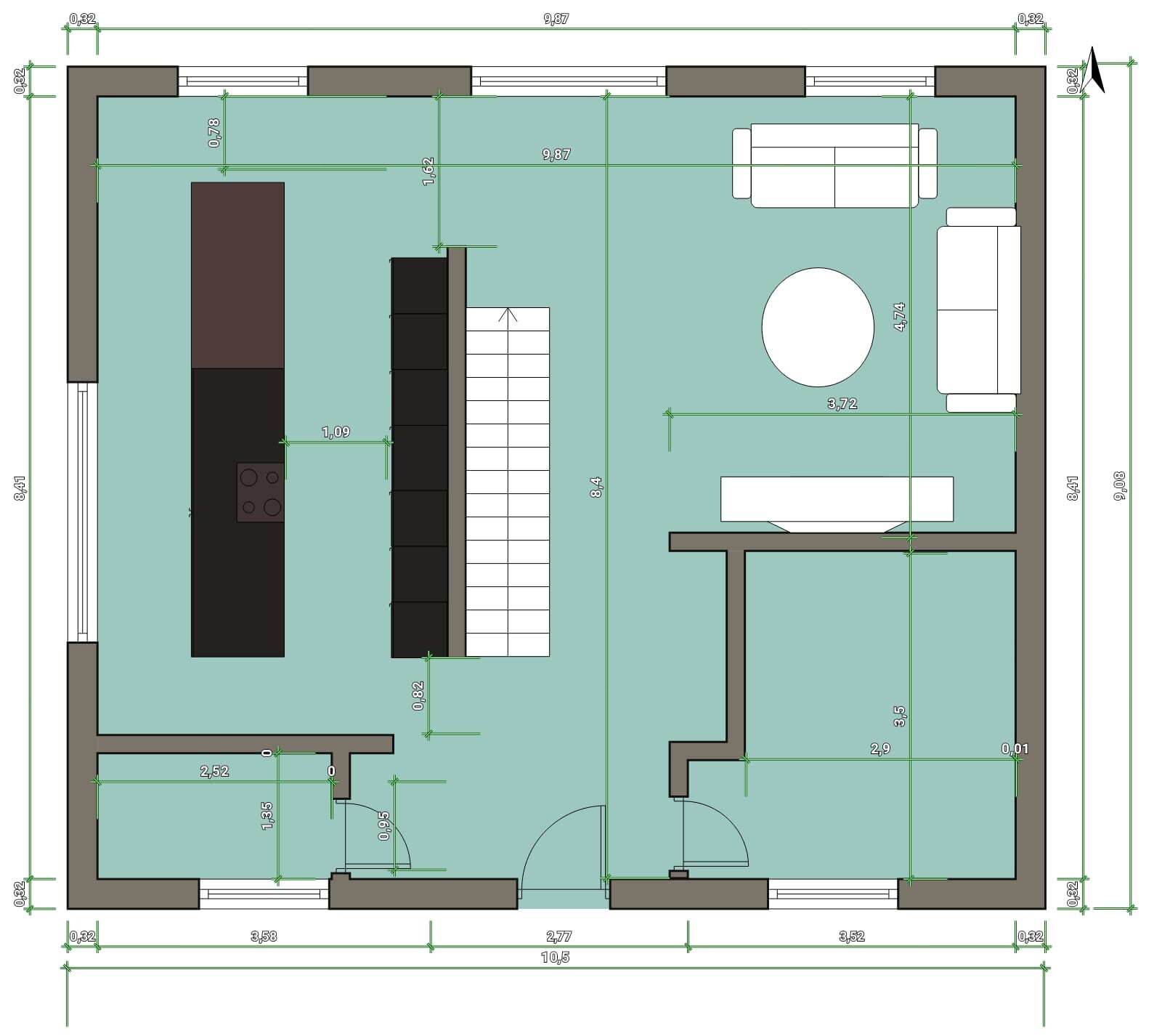
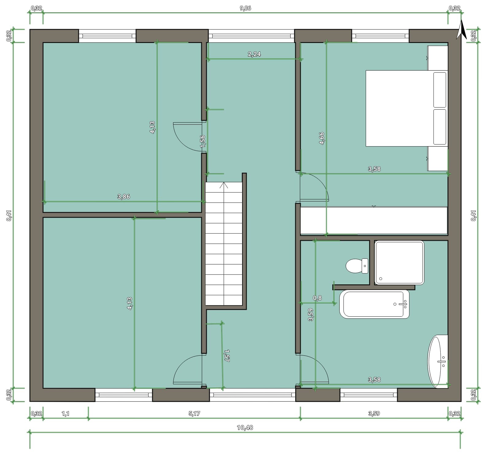
Dürfen somit insgesamt unten nur 95,26 m2 Grundfläche bauen. Also vIelleicht insgesamt kommen wir somit auch 150m2 Wohnfläche. Und jetzt folgen meine Grundrisse
Küche ist mal mit integriertem Tisch an Kochinsel und mal ohne. Danke für eure Meinung und Tipps.


Ich werde wahrscheinlich ab Frühjahr mit meiner Familie ein Haus bauen, doch leider ist es mit dem Grundriss ja eine sehr schwierige Sache. Das hätte ich nie gedacht. Vor allem passt es gar nicht mehr mit unseren Vorstellungen. Haben ca 100m2 Grünstreifen auf dem Grundstück den wir leider nicht zur Grundflächenzahl berechnen dürfen. Andere lange Story...
Grundstück 585m2
Grundflächenzahl 0,4
Geschossflächenzahl 0,2
Dürfen somit insgesamt unten nur 95,26 m2 Grundfläche bauen. Also vIelleicht insgesamt kommen wir somit auch 150m2 Wohnfläche. Und jetzt folgen meine Grundrisse
Küche ist mal mit integriertem Tisch an Kochinsel und mal ohne. Danke für eure Meinung und Tipps.
N
nordanney25.11.18 22:12Grundflächenzahl und Geschossflächenzahl sind so tatsächlich korrekt?
Grundflächenzahl 0,4 bei anrechenbaren 485qm Grundstück = 194qm überbaubare Fläche (vereinfacht)
Geschossflächenzahl 0,2 bei anrechenbaren 485qm Grundstück = 97qm Geschossfläche aller Vollgeschosse. Ich sehe bei Euch aber ein Vollgeschoss als OG - da fehlen die Dachschrägen
Grundflächenzahl 0,4 bei anrechenbaren 485qm Grundstück = 194qm überbaubare Fläche (vereinfacht)
Geschossflächenzahl 0,2 bei anrechenbaren 485qm Grundstück = 97qm Geschossfläche aller Vollgeschosse. Ich sehe bei Euch aber ein Vollgeschoss als OG - da fehlen die Dachschrägen
K
Karstenkrass25.11.18 22:23Ich glaube das ist EG und Og.
JohannaK schrieb:
Grundstück 585m2
Grundflächenzahl 0,4
Geschossflächenzahl 0,2Da ist einfach nur 0,2 und 0,4 verwechselt worden.
Grundflächenzahl 0,2
Geschossflächenzahl 0,4
Liebe @JohannaK bitte fülle doch den Fragebogen aus und alles weitere.
Wenn man Dir jetzt alle Infos aus der Nase ziehen muss, dann sind wir bei Seite 4 und der Thread ist verpufft.
Ähnliche Themen