Hausbau - Ratgeber
Bauherrenhilfe
- Bauherrenhilfe vor Vertragsabschluss
-- Warum einen unabhängigen Baubetreuer?
-- Vertragsgrundlagen
-- Bausumme
-- Zahlungsplan zur Kostenkontrolle
-- Pflichten des Bauherren vor Vertragsabschluss
-- Unterlagen beim Hausbau vor Vertragsabschluss
- Bauherrenhilfe nach Vertragsabschluss
-- Bauantrag bei Behörden
-- Bau-Genehmigungsverfahren bei Baubehörden
-- Bauspezifische Versicherungen
-- Bauzeitenplan
-- Baubeginn - die Letzten Pflichten der Bauherrschaft
- Bauherrenhilfe während der Bauzeit
- Gewährleistungsansprüche
- Bauabnahme
Baufinanzierung
- Baufinanzierung - Allgemeine Fragen
- Kreditarten
- Kredit-Konditionen
- Bausparen
- Staatliche Förderungen
- Verkehrswert
- Haushaltsrechnung und Bonität
Hausbau Planung
- Haustypen
- Hausbau Vorbereitungsarbeiten
- Das Baugrundstück
- Baugrund beim Hausbau
- Baurecht
- Gebäudeschutz
- Erdarbeiten und Wasserhaltung
- Stützmauern
- Einfriedung
- Untergeschoss
- Kanalisation
- Tragende Elemente
- Nichttragende Innenwände
- Fundation / Fundament
- Deckenkonstruktionen
- Dächer
- Kaminanlagen
- Treppen Rampen Leitern
- Dachbeläge und Spengler
- Fenster
- Sonnen und Wetterschutz
- Aussenputze
- Einbauten, Küchen, Türen
- Bodenbeläge und Unterlagsböden
- Parkett
- Gips, Wand, Decke
Haustechnik und Energie
- Heiztechnik
- Lüftung und Klimatechnik
- Sanitärtechnik
- Elektrotechnik
- Erneuerbare Energie
Whirlpools / Jacuzzi
Hausbau Magazin
- Baufinanzierung trotz Krise?
- Das Blockhaus
- Moderne Dämmstoffe im Vergleich
- Erker Vor- und Nachteile
- Glasflächen beim Hausbau
- Günstig ein Haus Bauen
- Mediterraner Hausbaustil
- Mehrgenerationenhaus
- Moderne Architektur
- Gartengestaltung leicht gemacht
- Traditioneller Ziegelbau
- Villa als höchster Traum
- Im Eigenheim Ruhestand geniessen
- Altbau sanieren
- Kauf einer Holzgarage
- Immobilienmakler
- Arbeitshandschuhe für den Winter
- Zuhause verschönern
- Outdoor-Plissees
- Schlafzimmer planen
- Terrassenüberdachung
- Wohngebäudeversicherung
- Zaunarten und Eigenschaften
- Hauseingang gestalten
- Der perfekte Grundriss
- Sparsamer heizen im Altbau
- Einfamilienhaus smart finanzieren
- Planung einer PV-Anlage
- Neues Haus
- Immobilienfinanzierung
- Installation einer Photovoltaikanlage
- Asbest erkennen und entfernen
- Gartenpflege im Frühling – worauf achten
- Sauna im Fokus - Wellness zuhause
- Erfolgreich vermieten
- Die perfekte Winterbekleidung
- Das Niedrigenergiehaus
- Der April und seine Stürme
- Architektonische Vielfalt
- Ökologisch und nachhaltig bauen
- Das perfekte Schlafzimmer
- Nachhaltige Energieversorgung
- Zukunftsorientiert bauen
- Nachhaltigkeit beim Hausbau
- Tiny Houses
- Wärmepumpen als nachhaltige Heizvariante
- Maßgeschneiderten Kleiderschrank
- Der richtige Baukredit
- Ratgeber für erfolgreichen Hausbau
- Haus als Altersvorsorge
Do-it-yourself Anleitungen
- Verlegeanleitung für Bodenbeläge und Parkett
- Bodenbeläge und Parkett reinigen und pflegen
- Malerarbeiten am Haus
- Garten Tipps
- Umzug und Reinigung

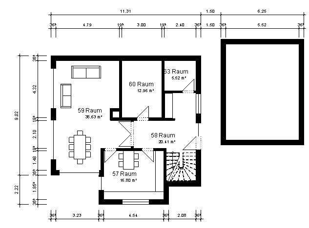
ᐅ Einfamilienhaus Grundriss mit Keller, Version 2

Erstellt am: 02.05.16 19:48
B
bluminger
L
Legurit
03.05.16 21:48
Ach so - sorry Denkfehler mit der Treppe.
Ich würde den Abstellraum entfernen und anstelle dessen dort eine Garderobe mit Fenster planen - zur Not stellt ihr einen 60er Schrank hinein und ein halber Meter ist für Staubsauger etc. reserviert (?).
Schwierig.
tanja.bee03.05.16 22:11
L
Legurit
03.05.16 23:37
Vielleicht eine Idee um euch noch ein paar alternative Denkanstöße zu geben:


Detaillierter Grundriss eines Hauses mit mehreren Räumen, Türen und Treppen


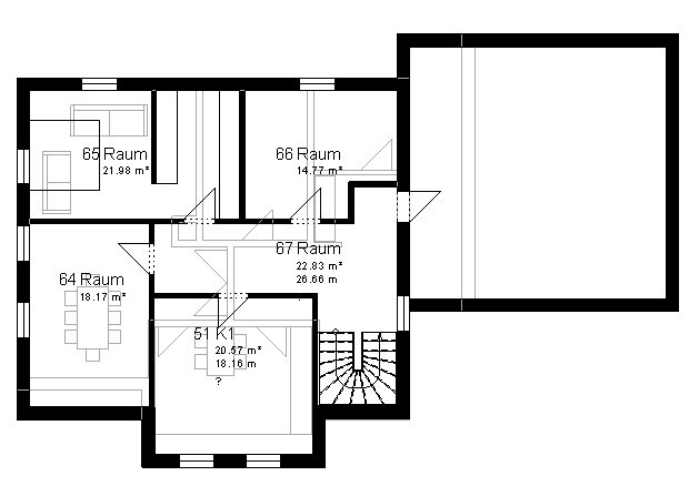
Grundriss eines Hauses mit mehreren Räumen, Treppenhaus und Innenaufteilung.


Gauben und co hatte ich jetzt keine Lust einzufriemeln 😀
kbt0904.05.16 06:23
BeHaElJa schrieb:
prickelnd nicht... Steigung ist okay, Auftritt darf gern 1-2 cm mehr sein (zumindest meine Meinung)
Sehe ich auch so

@bluminger .. das Elternschlafzimmer und der Zugang zur Bettseite planoben ... das wäre immer noch nicht meins. Da ist Gaubenwand im Winkel mit Dachschräge unterhalb 2 m. Wie groß seid ihr denn?

Die angedachten Positionen Kleiderschränke in den Kinderzimmern, macht die halbe Gaube dort komplett wertlos. Allerdings lassen sich aufgrund der Positionen der anderen Fenster die schränke auch schlecht an die Wände planoben stellen. Grundsätzlich solltest du die Maße eingezeichneter Möbel überprüfen. Ordentliche Schränke sollte man in dieser Phase immer mit 65 cm Tiefe planen. (Ikea-Pax mit Schiebetüren hat z. B. 66 cm Tiefe).
S
Soulcollector
04.05.16 20:32
bluminger schrieb:


Den Abstellraum größer machen auf Kosten vom Duschbad, kann man machen. Allerdings hätten wir gerne einen Wickeltisch und einen Schrank für Handtücher u.a. in dem Duschbad. Der Wickeltisch muss allerdings nicht so breit sein, wie eingezeichnet, der Schrank sollte eigentlich hinter der Tür sein und die Tür weiter links.

Hallo bluminger,

ich würde die Raumplanung nicht von einem Möbel abhängig machen, das man nur ein paar wenige Jahre benutzt. Wir hatten ab 1 Jahr Kindesalter gar keinen Wickeltisch mehr sondern haben mehr oder weniger überall gewickelt, Auflage drunter und fertig... 🙂 Generell denke man sollte zwar kindgerecht planen, aber nicht alles um die Kinder herum planen - schon mit Beginn der Pubertät herrschen da ganz andere Ansprüche als noch im Auf-dem-Boden-Spiel-Alter 🙂

Überlegt euch bei der Küche mal (ganz grob) wieviel laufende Meter Platz ihr braucht (anhand eurer heutigen Küche). Ihr werdet auf jeden Fall mehr brauchen als bei dem jetzigen Grundriss möglich und der Platz in der Küche sollte eigentlich auch mehr hergeben.

Warum habt ihr die drei Türen vom Wohnzimmer zum Garten alle an der gleichen Seite angeschlagen? Ich würde eher eine Doppelflügeltüre (-> größere freie Öffnung) nehmen und dafür vielleicht einen feststehenden Teil. Alternativeine Hebeschiebetüre, dann kommt man barrierefrei raus, ist aber natürlich etwas teurer.
8
86bibo
06.05.16 08:08
Schönes großes Haus, aber einige Dinge gefallen mir auch nicht so gut. Das WZ gefällt mir gar nicht. Die Vertiefung zu dem oberen Zimmer macht den Raum verwinkelt Mund bringt nicht viel Gewinn. Die Türen hinter dem Sofa nehmen viel Platz, der nicht nutzbar ist. Zu den hast du das Südfenster gegenüber des TVs und das westfenster strahlt seitlich rein. Hat ich derzeit auch und muss sehr! oft verdunkeln um überhaupt was zu sehen. Wenn das WZ. Die Tiefe haben soll' dann würde ich den überdachten Terrassenbereich noch dazu nehmen. Dadurch wird auch der Flur gerader und das obere Zimmer größer.

Zur Küche würde ja schon viel gesagt, da werde ich mich raushalten. Bzgl. Abstellkammer, die finde ich auch gut. Allerdings fehlt euch ein Windfang bzw. Garderobenbereich. Ich betretet einen rel. Langen Schlauch und es kommen direkt links und rechts Türen. Ansonsten habt Ihr ein großzügiges Haus, beim betreten erscheint es aber sehr beengt.

Das obere Bad gefällt mir auch nicht. Das ist sehr geräumig, trotzdem ist alles etwas beengt: kleine Dusche, wenig Platz beim WC, etc. es sieht wirklich so aus, als würdet ihr die Bäder Um die Wickeltische herum planen :-) bei so viel Platz, würde ich mir eine schöne große Dusche gönnen. Falls eine Sauna bei euch mal zur Option wird. Solltet ihr überlegen, ob ihr die wirklich in den Keller machen wollt oder nicht doch etwas Platz im OG habt.
Die Gauben in den KInderzimmern finde ich auch sehr beengt (und die fensteröffnungsrichtungen würde ich umdrehen). Wenns geht etwas breiter machen und die Schränke nach planoben.
kücheschränketürenfenstergaubenmöbelzimmerdusche