ᐅ Einfamilienhaus-Grundriss - Euer Feedback ist mir wichtig
Erstellt am: 15.07.20 12:10
M
Mertha25715.07.20 12:10Hallo zusammen,
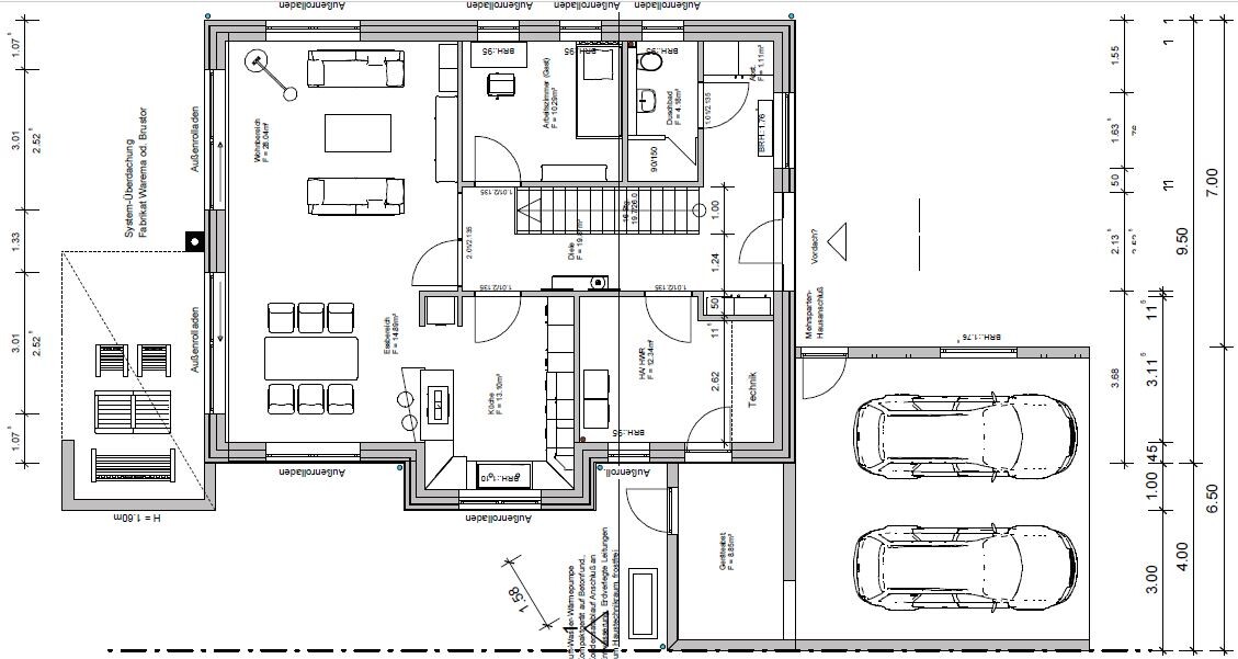
wir nähern uns dem Abschluss der Genehmigungsplanung und haben gestern den beinahe finalen Grundriss von unserer Architektin erhalten. Ich schätze dieses Forum und vor allem die hier geäußerten Meinungen und Anregungen sehr. Daher würde ich mich über Eure Kommentare, Verbesserungsvorschläge, Ideen und Kritiken zu unserem Grundriss sehr freuen!
Vielen Dank!
Mertha
Bebauungsplan/Einschränkungen
Anforderungen der Bauherren
Hausentwurf
Wenn Ihr verzichten müsst, auf welche Details/Ausbauten
Warum ist der Entwurf so geworden, wie er jetzt ist?
Wir haben uns in Musterhausparks und in Neubaugebieten Anregungen geholt, von einigen Unternehmen Angebote eingeholt, uns mit Freunden & Bekannten beraten und letztendlich mit einer uns empfohlenen Architektin diesen Grundriss entworfen.
Was ist die wichtigste/grundlegende Frage zum Grundriss in 130 Zeichen zusammengefasst?
- Ist die Raumaufteilung insgesamt schlüssig bzw. sinnvoll?
- Haben wir blinde Flecken, ist etwas nicht oder falsch geplant?
- Gibt es noch gute, ergänzende Ideen, die das Wohnen besser machen?





wir nähern uns dem Abschluss der Genehmigungsplanung und haben gestern den beinahe finalen Grundriss von unserer Architektin erhalten. Ich schätze dieses Forum und vor allem die hier geäußerten Meinungen und Anregungen sehr. Daher würde ich mich über Eure Kommentare, Verbesserungsvorschläge, Ideen und Kritiken zu unserem Grundriss sehr freuen!
Vielen Dank!
Mertha
Bebauungsplan/Einschränkungen
- Größe des Grundstücks: 1.000qm
- Hang: nein
- Grundflächenzahl: kein Bebauungsplan, §34 Baugesetzbuch
- Geschossflächenzahl: kein Bebauungsplan, §34 Baugesetzbuch
- Baufenster, Baulinie und -grenze: Baulinien in Flucht der Nachbarbebauung, siehe Lageplan
- Randbebauung: Auf Grundstücksgrenze im Osten geplant, mit Garage
- Anzahl Stellplatz: 2
- Geschossigkeit: siehe Grundrisse
- Dachform: siehe Grundrisse
- Maximale Höhen/Begrenzungen: Max. Höhe baulicher Anlagen 9m
Anforderungen der Bauherren
- Stilrichtung, Dachform, Gebäudetyp: klassisches Einfamilienhaus mit Erker
- Keller, Geschosse: kein Keller, 2 Geschosse
- Anzahl der Personen, Alter: 2 Erwachsene + 3 Kinder (1,5 + 4 + 7 Jahre)
- Büro: Gästezimmer wird als Arbeitszimmer genutzt
- offene Küche, Kochinsel: Küchenplanung noch nicht erfolgt, siehe Grundriss.
- Anzahl Essplätze: 6-8
- Kamin: ja, außen um Innenraumfläche zu sparen und als Stilelement
- Garage, Carport: Doppelgarage mit angrenzendem Abstellraum
Hausentwurf
- Von wem stammt die Planung: Mustergrundriss eines Bauunternehmens, angepasst/optimiert durch Architekten
- Was gefällt besonders? Warum? Ausrichtung des Wohnbereiches nach Süd/West, viel Licht im Haus, große Kinderzimmer, Verbindung von Garage/Abstellraum/Hauswirtschaftsraum, etc. unsere Grundrissvorstellungen wurden soweit umgesetzt
- Was gefällt nicht? Warum? Ausreichend Abstellfläche für Wäsche/Lebensmittel etc.? Macht das Ankleidezimmer oben Sinn oder lieber im OG Eltern- und Kinderbad? Ist das Wohnzimmer ausreichend groß?
- favorisierte Heiztechnik: wahrscheinlich Gasbrennwerttherme mit Photovoltaik (zunächst war eine Wärmepumpe geplant), zentrale Be- und Entlüftungsanlage
Wenn Ihr verzichten müsst, auf welche Details/Ausbauten
- könnt Ihr verzichten: Ankleidezimmer (auf das Kinderbad haben wir bereits verzichtet)
- könnt Ihr nicht verzichten: möglichst viel Licht!
Warum ist der Entwurf so geworden, wie er jetzt ist?
Wir haben uns in Musterhausparks und in Neubaugebieten Anregungen geholt, von einigen Unternehmen Angebote eingeholt, uns mit Freunden & Bekannten beraten und letztendlich mit einer uns empfohlenen Architektin diesen Grundriss entworfen.
Was ist die wichtigste/grundlegende Frage zum Grundriss in 130 Zeichen zusammengefasst?
- Ist die Raumaufteilung insgesamt schlüssig bzw. sinnvoll?
- Haben wir blinde Flecken, ist etwas nicht oder falsch geplant?
- Gibt es noch gute, ergänzende Ideen, die das Wohnen besser machen?
I
Ideensucher15.07.20 12:32Die Garderobe hat eine grosse Flaeche, aber so richtig Stellraum fuer Schränke hast du da nicht. Kann mit flachen Schränken reichen.
Kuehlschrank zwischen 2 Wänden sieht sicher gut aus, ich persoenlich wuerde aber die Wand zur Tür weg lassen - einen neuen Kühlschrank kauft man sich mal nach 10 Jahren - und dann bist du bei den Massen eingeschraenkt.
Wird das hinter dem Kühlschrank auch nicht arg warm wenn die Luft dahinter nicht zirkulieren kann?
Kuehlschrank zwischen 2 Wänden sieht sicher gut aus, ich persoenlich wuerde aber die Wand zur Tür weg lassen - einen neuen Kühlschrank kauft man sich mal nach 10 Jahren - und dann bist du bei den Massen eingeschraenkt.
Wird das hinter dem Kühlschrank auch nicht arg warm wenn die Luft dahinter nicht zirkulieren kann?
M
Mertha25715.07.20 16:40Ideensucher schrieb:
Die Garderobe hat eine grosse Flaeche, aber so richtig Stellraum fuer Schränke hast du da nicht. Kann mit flachen Schränken reichen.
Kuehlschrank zwischen 2 Wänden sieht sicher gut aus, ich persoenlich wuerde aber die Wand zur Tür weg lassen - einen neuen Kühlschrank kauft man sich mal nach 10 Jahren - und dann bist du bei den Massen eingeschraenkt.
Wird das hinter dem Kühlschrank auch nicht arg warm wenn die Luft dahinter nicht zirkulieren kann?Hi Ideensucher,Danke für das Feedback!
Eventuell kommt dort gar kein Kühlschrank hin, sondern eine Art Kaffeebar. Falls doch Kühlschrank gucke ich mir das Wärmethrma an.
Zum Flur: deshalb haben wir links vom Eingang einen integrierten Schuhschrank gesetzt und ganz rechts ebenfalls einen Schrank. Die alltäglichen Schuhe/Jacken sollen offen im Flur, rechts von der Treppe hängen.
Das Haus gefällt mir insgesamt sehr gut. Oben würde ich es so lassen, die Ankleide finde ich wichtig, weil du im Schlafzimmer aufgrund der Schräge und der Türposition kaum einen Schrank stellen kannst. Zusätzlich hast Du da Abstellfläche für Koffer, Bettwäsche und Co. Kinder können ja auch runter zum Duschen gehen.
Im EG gefällt mir der Eingangsbereich auch nicht so recht. Etwas verschenkter Raum und trotzdem wenig Garderobe. Der Platz unter der Treppe bleibt ungenutzt. Abstell und Speisekammer fehlen. Die Küche finde ich nicht sonderlich ergonomisch. Großer Abstand zwischen Insel und Schränken. Kühlschrankposition eher ein Nadelör.
Hier mal eine Idee, wie man das anders lösen könnte. Es gibt ein gefühlt quadratisches Entree und eine Speisekammer unter der Treppe. Küche mit großer Insel. Ich würde auf die Zeile am Fenster verzichten und da evtl ein bodentiefes Fenster hinmachen, damit man rausgehen kann.
Gast muss nicht um die Treppe kurven, sondern kann direkt ins Duschbad.
Treppe ist eine Stufe Richtung Wohnzimmer geschoben. Im OG bringt Dir das mehr Platz in der Ankleide.

Im EG gefällt mir der Eingangsbereich auch nicht so recht. Etwas verschenkter Raum und trotzdem wenig Garderobe. Der Platz unter der Treppe bleibt ungenutzt. Abstell und Speisekammer fehlen. Die Küche finde ich nicht sonderlich ergonomisch. Großer Abstand zwischen Insel und Schränken. Kühlschrankposition eher ein Nadelör.
Hier mal eine Idee, wie man das anders lösen könnte. Es gibt ein gefühlt quadratisches Entree und eine Speisekammer unter der Treppe. Küche mit großer Insel. Ich würde auf die Zeile am Fenster verzichten und da evtl ein bodentiefes Fenster hinmachen, damit man rausgehen kann.
Gast muss nicht um die Treppe kurven, sondern kann direkt ins Duschbad.
Treppe ist eine Stufe Richtung Wohnzimmer geschoben. Im OG bringt Dir das mehr Platz in der Ankleide.
P
Pinky030115.07.20 16:50Mertha257 schrieb:
offen im Flur, rechts von der Treppe hängen.Bei 3 Kindern kommt da aber einiges zusammen, oder? Sieht dann halt immer etwas unaufgeräumt aus finde ich.Ich würde ein Kinderbad im OG einplanen. Zu fünft in ein Bad wird echt eng. Das Bad unten finde ich als Ausweichbad nicht so toll, da man durch den Eingangsbereich muss, der ja auch noch verglast wird, wie es aussieht.
Mein Tipp: macht euch rechtzeitig Gedanken für eine konkrete Küchenplanung, damit ihr euch später nicht ärgert.
P
pagoni202015.07.20 17:11Würfel* schrieb:
Das Haus gefällt mir insgesamt sehr gut. Oben würde ich es so lassen, die Ankleide finde ich wichtig, weil du im Schlafzimmer aufgrund der Schräge und der Türposition kaum einen Schrank stellen kannst. Zusätzlich hast Du da Abstellfläche für Koffer, Bettwäsche und Co. Kinder können ja auch runter zum Duschen gehen.
Im EG gefällt mir der Eingangsbereich auch nicht so recht. Etwas verschenkter Raum und trotzdem wenig Garderobe. Der Platz unter der Treppe bleibt ungenutzt. Abstell und Speisekammer fehlen. Die Küche finde ich nicht sonderlich ergonomisch. Großer Abstand zwischen Insel und Schränken. Kühlschrankposition eher ein Nadelör.
Hier mal eine Idee, wie man das anders lösen könnte. Es gibt ein gefühlt quadratisches Entree und eine Speisekammer unter der Treppe. Küche mit großer Insel. Ich würde auf die Zeile am Fenster verzichten und da evtl ein bodentiefes Fenster hinmachen, damit man rausgehen kann.
Gast muss nicht um die Treppe kurven, sondern kann direkt ins Duschbad.
Treppe ist eine Stufe Richtung Wohnzimmer geschoben. Im OG bringt Dir das mehr Platz in der Ankleide.

Die Anpassung im Bereich Küche finde ich echt gut insbes. weil ich schon öfter diese 2-Tür-Lösung zu Allraum/Küche gesehen habe und nie den Sinn verstehe. Es kommt wohl von der Horrorvorstellung, dass man kantinenmäßig Pommes und Bratfisch kocht und dann im Treppenhaus/OG diese Gerüche nicht möchte. Deswegen aber ein offenes Wohnkonzept zu opfern wäre m.E. völlig daneben, weil dieser Umstand niemals eintritt. Die Küchentür steht garantiert immer auf und der Kochgeruch befindet sich in dem ohnehin offenen Bereich Wohnen/Essen, zudem hat mamn heututage riesige Fenster zum Öffnen und tolle Abzugshauben sowieso. Diese 2. Tür plus die Platzverschwendung wäre daher nicht sinnvoll. Die Lösung im Eingangsbereich ist so besser aber auch da gibt es wohl nich Spielmöglichkeiten, um das zu optimieren. "Kaffeebar" ist wohl eher aus der Not geboren und würde im Alltag dort nicht so genutzt. Im geänderten Plan wäre die Kaffeemaschine und Sitzplatz super in der Ecke der Küche. Ob ich das von @Pinky0301 genannte Kinderbad oben bräuchte und anderen Platz opfern würde weiß ich nicht; ein reine Extra-WC könnte da m.E. absolut ausreichend sein im OG. "Kinderbad" wird heutzutage oft schon als Strandard gesehen, ob das dann auch so genutzt wird bzw. es den kostbaren Raumverlust tatsächlich rechtfertigt weiß ich nicht.
Im Hinblick auf älter werdende Kinder/Jugendliche wäre das für mich dann auch eher von Vorteil, dass DU/WC im EG sich beim Eingang befindet.
Warum Rollläden und keine komfortableren Raffstoes ?
Ähnliche Themen