ᐅ Einfamilienhaus - Flachdach - Waldrandlage - 175 qm
Erstellt am: 16.02.19 22:03
B
benediktr16.02.19 22:03Nachdem ich lange Zeit nur stiller Mitleser hier im Forum war, möchte ich meine Gedankengänge und Vorstellungen mit euch teilen. Ich erhoffe mir hierdurch den ein oder anderen Verbesserungsvorschlag und ein konstruktives Feedback.
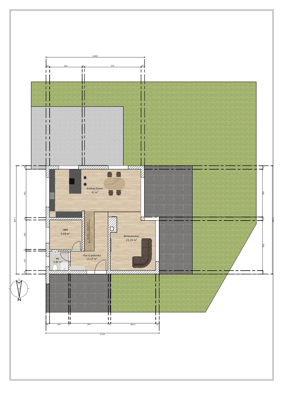
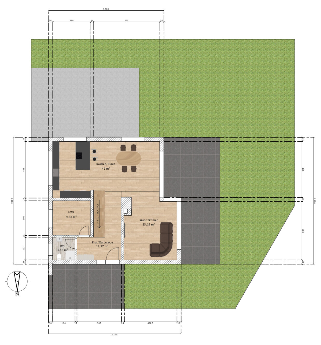
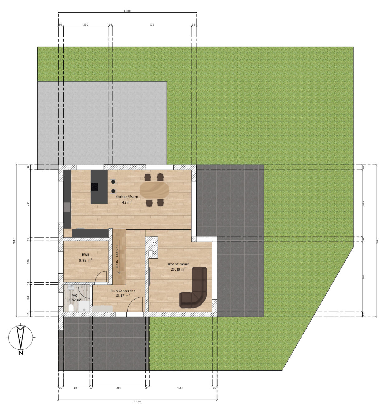
Leider kann ich Euch momentan noch keinen Lageplan bieten. Deswegen ein Screenshot des Grundstückes. Ich habe es im EG-Plan grob nachgezeichnet. Die genaue Ausrichtung bedarf sicherlich noch an Planung. Es hadelt sich um Nr. 51
Nachfolgend versuche ich im Fragebogen das wesentliche zu schildern
Bebauungsplan/Einschränkungen
§34 Baugesetzbuch
Größe des Grundstücks
580 qm
Hang
kein direkter Hang, Gelände von Nord nach Süd - 3 m und von West nach Ost - auch ca. 3 m fallend, Stützmauer nach Süd vorhanden
Randbebauung
Nord/Ost/Süd - 3 m, West - 6 m
Anzahl Stellplatz
1-2
Geschossigkeit
2 Vollgeschosse plus Keller
Dachform
Flachdach
Stilrichtung
Modern
Ausrichtung
Süd-West
Maximale Höhen/Begrenzungen
-
weitere Vorgaben
Anforderungen der Bauherren
Raumausrichtung wie im Plan, großzügiger Wohn-Ess-Koch Bereich
Stilrichtung, Dachform, Gebäudetyp
Flachdach
Anzahl der Personen, Alter
Momentan 2, 28 plus 26, 1-2 Kinder gewünscht
Raumbedarf im EG, OG
EG: Wohnen, Essen, Kochen, Hauswirtschaftsraum, WC
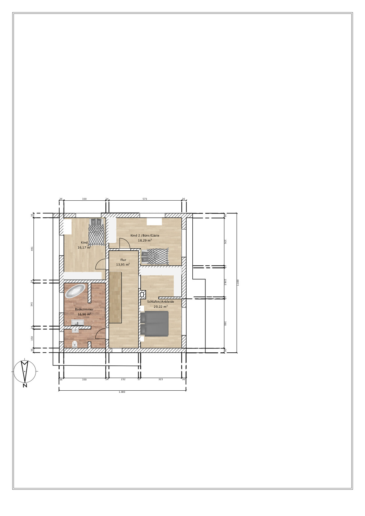
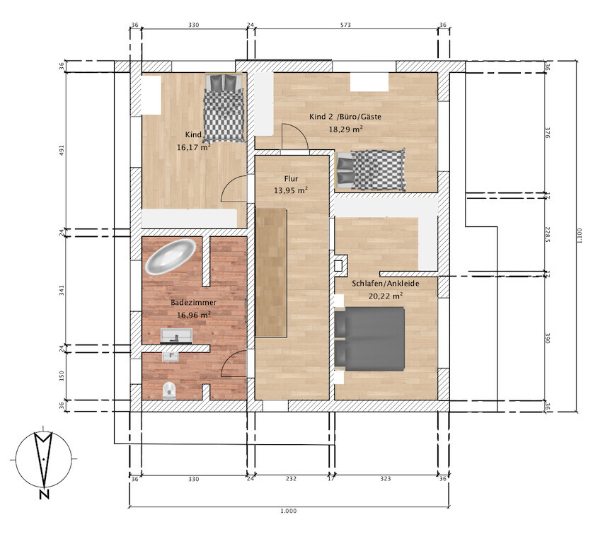
OG: Bad, 2 KZ, Schlafen plus Ankleide
Büro: Familiennutzung oder Homeoffice?
Familiennutzung
Schlafgäste pro Jahr
ganz selten
offene oder geschlossene Architektur
offen
konservativ oder moderne Bauweise
moderne Bauweise
offene Küche, Kochinsel
Ja
Anzahl Essplätze
6
Kamin
Eckkamin
Musik/Stereowand
nein
weitere Wünsche/Besonderheiten/Tagesablauf, gern auch Begründungen, warum dieses oder das nicht sein soll
- Treppe vom EG ins OG soll im Essbereich starten, vom Wohnzimmer nicht einsichtig
- Wohnzimmer gerne im Westen, da wir beide sehr lange Arbeiten
Hausentwurf
Von wem stammt die Planung:
-Do-it-Yourself, mit den verschiedensten Grundrissen als Vorlage
Was gefällt besonders? Warum?
Gerade Treppe, Aufteilung Wohnen, Essen und Kochen, Eckkamin
Was gefällt nicht? Warum?
Bin mir nicht sicher ob aufgrund der geraden Treppe die Räume im OG etwas zu schmal sind. Dies könnte man mit einer Podesttreppe besser lösen. Aber das ist der Tod an dem man hier sterben muss
Preisschätzung lt Architekt/Planer:
Persönliches Preislimit fürs Haus, inkl Ausstattung:
450.000,-
favorisierte Heiztechnik:
Gas-Brennwert evtl. mit Wassertasche im Kamin
Wenn Ihr verzichten müsst, auf welche Details/Ausbauten
-könnt Ihr verzichten: Abtrennung WC im Bad
-könnt Ihr nicht verzichten: Ankleide
Warum ist der Entwurf so geworden, wie er jetzt ist?
Ausrichtung der Räume auf dem Grundstück ergab schon aufgrund der Wünsche eine gewisse Richtung vor. Nach Westen Blick in den Wald/Feld. Zugang von Norden da hierdurch auf eine Außentreppe verzichtet werden kann
Was macht ihn in Euren Augen besonders gut oder schlecht?
Im Süd-Bereich möchten wir ungern Bodentiefe Fenster, da hier die Haustüre vom Nachbar ist. Für die Helligkeit nicht optimal. Große Fensterfront im Westen. Ist wie gesagt dem Ausblick geschuldet. Fenster in der Ankleide könnte noch geplant werden.
Was ist die wichtigste/grundlegende Frage zum Grundriss in 130 Zeichen zusammengefasst?
Findet ihr, dass die Räume im OG "schlauchig" wirken könnten?
Budget?






Leider kann ich Euch momentan noch keinen Lageplan bieten. Deswegen ein Screenshot des Grundstückes. Ich habe es im EG-Plan grob nachgezeichnet. Die genaue Ausrichtung bedarf sicherlich noch an Planung. Es hadelt sich um Nr. 51
Nachfolgend versuche ich im Fragebogen das wesentliche zu schildern
Bebauungsplan/Einschränkungen
§34 Baugesetzbuch
Größe des Grundstücks
580 qm
Hang
kein direkter Hang, Gelände von Nord nach Süd - 3 m und von West nach Ost - auch ca. 3 m fallend, Stützmauer nach Süd vorhanden
Randbebauung
Nord/Ost/Süd - 3 m, West - 6 m
Anzahl Stellplatz
1-2
Geschossigkeit
2 Vollgeschosse plus Keller
Dachform
Flachdach
Stilrichtung
Modern
Ausrichtung
Süd-West
Maximale Höhen/Begrenzungen
-
weitere Vorgaben
Anforderungen der Bauherren
Raumausrichtung wie im Plan, großzügiger Wohn-Ess-Koch Bereich
Stilrichtung, Dachform, Gebäudetyp
Flachdach
Anzahl der Personen, Alter
Momentan 2, 28 plus 26, 1-2 Kinder gewünscht
Raumbedarf im EG, OG
EG: Wohnen, Essen, Kochen, Hauswirtschaftsraum, WC
OG: Bad, 2 KZ, Schlafen plus Ankleide
Büro: Familiennutzung oder Homeoffice?
Familiennutzung
Schlafgäste pro Jahr
ganz selten
offene oder geschlossene Architektur
offen
konservativ oder moderne Bauweise
moderne Bauweise
offene Küche, Kochinsel
Ja
Anzahl Essplätze
6
Kamin
Eckkamin
Musik/Stereowand
nein
weitere Wünsche/Besonderheiten/Tagesablauf, gern auch Begründungen, warum dieses oder das nicht sein soll
- Treppe vom EG ins OG soll im Essbereich starten, vom Wohnzimmer nicht einsichtig
- Wohnzimmer gerne im Westen, da wir beide sehr lange Arbeiten
Hausentwurf
Von wem stammt die Planung:
-Do-it-Yourself, mit den verschiedensten Grundrissen als Vorlage
Was gefällt besonders? Warum?
Gerade Treppe, Aufteilung Wohnen, Essen und Kochen, Eckkamin
Was gefällt nicht? Warum?
Bin mir nicht sicher ob aufgrund der geraden Treppe die Räume im OG etwas zu schmal sind. Dies könnte man mit einer Podesttreppe besser lösen. Aber das ist der Tod an dem man hier sterben muss
Preisschätzung lt Architekt/Planer:
Persönliches Preislimit fürs Haus, inkl Ausstattung:
450.000,-
favorisierte Heiztechnik:
Gas-Brennwert evtl. mit Wassertasche im Kamin
Wenn Ihr verzichten müsst, auf welche Details/Ausbauten
-könnt Ihr verzichten: Abtrennung WC im Bad
-könnt Ihr nicht verzichten: Ankleide
Warum ist der Entwurf so geworden, wie er jetzt ist?
Ausrichtung der Räume auf dem Grundstück ergab schon aufgrund der Wünsche eine gewisse Richtung vor. Nach Westen Blick in den Wald/Feld. Zugang von Norden da hierdurch auf eine Außentreppe verzichtet werden kann
Was macht ihn in Euren Augen besonders gut oder schlecht?
Im Süd-Bereich möchten wir ungern Bodentiefe Fenster, da hier die Haustüre vom Nachbar ist. Für die Helligkeit nicht optimal. Große Fensterfront im Westen. Ist wie gesagt dem Ausblick geschuldet. Fenster in der Ankleide könnte noch geplant werden.
Was ist die wichtigste/grundlegende Frage zum Grundriss in 130 Zeichen zusammengefasst?
Findet ihr, dass die Räume im OG "schlauchig" wirken könnten?
Budget?
B
benediktr16.02.19 22:46"Kein direkter Hang" und das Haus steht in der Perspektivzeichnung planeben, dennoch ist die Garage auf Kellerniveau (?) - da kann ich nicht ganz folgen.
Die weit herausgezogenen Maßlinien erschweren ein wenig das Lesen, ebenso das Süden der Pläne.
https://www.instagram.com/11antgmxde/
https://www.linkedin.com/company/bauen-jetzt/
Die weit herausgezogenen Maßlinien erschweren ein wenig das Lesen, ebenso das Süden der Pläne.
https://www.instagram.com/11antgmxde/
https://www.linkedin.com/company/bauen-jetzt/
Stützmauer ist das wirklich eine oder nur eine Gartenmauer
Hanglage hat 11 ant angesprochen
Budget reicht nicht. Es fehlt grob der Keller. Ich weiß nicht wie viel Eigenleistung geplant ist mit Bodenbeläge und Tapezieren könnt ihr das nicht ausgleichen
Kommt ihr von EG ebenerdig in den Garten?
Küche an der Terrasse wäre gut und ist praktisch. Frühstück, Grillen ist draußen, Kinder gerade kleinere die ziehen regelrecht bei schönem Wetter in den Garten ein - manche auch bei Regen. Die brauchen trinken und müssen so immer durch Essen oder Wohnen. Sehe schon 6 jährige, mit Matschschuhen, vom Wald kommend und in Luftlinie durch das Wohnzimmer in die Küche stürmen. Auf Höhe Treppe fällt Ihnen ein, das sie die Schuhe vergessen haben auszuziehen
OG Räume breiter wäre besser
Evtl andere Treppe, Flurfläche verkleinern, Hauswirtschaftsraum in den Keller, Grundfläche ein paar qm kleiner und das Budget könnte passen
Hanglage hat 11 ant angesprochen
Budget reicht nicht. Es fehlt grob der Keller. Ich weiß nicht wie viel Eigenleistung geplant ist mit Bodenbeläge und Tapezieren könnt ihr das nicht ausgleichen
Kommt ihr von EG ebenerdig in den Garten?
Küche an der Terrasse wäre gut und ist praktisch. Frühstück, Grillen ist draußen, Kinder gerade kleinere die ziehen regelrecht bei schönem Wetter in den Garten ein - manche auch bei Regen. Die brauchen trinken und müssen so immer durch Essen oder Wohnen. Sehe schon 6 jährige, mit Matschschuhen, vom Wald kommend und in Luftlinie durch das Wohnzimmer in die Küche stürmen. Auf Höhe Treppe fällt Ihnen ein, das sie die Schuhe vergessen haben auszuziehen
OG Räume breiter wäre besser
Evtl andere Treppe, Flurfläche verkleinern, Hauswirtschaftsraum in den Keller, Grundfläche ein paar qm kleiner und das Budget könnte passen
B
benediktr17.02.19 09:3711ant schrieb:
"Kein direkter Hang" und das Haus steht in der Perspektivzeichnung planeben, dennoch ist die Garage auf Kellerniveau (?) - da kann ich nicht ganz folgen.
Die weit herausgezogenen Maßlinien erschweren ein wenig das Lesen, ebenso das Süden der Pläne.Ich werde dir heute Mittag mal eine Schnittskizze zeichnen. Das Gelände steigt von Süd nach Nord um etwa 3 m. Die Garage müsste auf Kellerniveau recht weit im Süden platziert werden. Der Keller würde dann je weiter man in den Norden kommt, im Erdreich verschwinden.
Ebenso werde ich noch mal die Bemaßung ändern und die Grundrisse "norden".
haydee schrieb:
Stützmauer ist das wirklich eine oder nur eine Gartenmauer
Hanglage hat 11 ant angesprochen
Budget reicht nicht. Es fehlt grob der Keller. Ich weiß nicht wie viel Eigenleistung geplant ist mit Bodenbeläge und Tapezieren könnt ihr das nicht ausgleichen
Kommt ihr von EG ebenerdig in den Garten?
Küche an der Terrasse wäre gut und ist praktisch. Frühstück, Grillen ist draußen, Kinder gerade kleinere die ziehen regelrecht bei schönem Wetter in den Garten ein - manche auch bei Regen. Die brauchen trinken und müssen so immer durch Essen oder Wohnen. Sehe schon 6 jährige, mit Matschschuhen, vom Wald kommend und in Luftlinie durch das Wohnzimmer in die Küche stürmen. Auf Höhe Treppe fällt Ihnen ein, das sie die Schuhe vergessen haben auszuziehen
OG Räume breiter wäre besser
Evtl andere Treppe, Flurfläche verkleinern, Hauswirtschaftsraum in den Keller, Grundfläche ein paar qm kleiner und das Budget könnte passenBudget könnte eng werden, hier müssen wir noch optimieren. In Eigenleistung sollen Heizung, Sanitär, teilweise Elektro sowie Böden, Wände und Decken sowie Trockenbau erfolgen.
Vom Essbereich und Wohnzimmer kommen wir ebenerdig in den Garten ja.
Die Thematik mit Küche an der Terrasse ist hier ein heiß diskutiertes Thema. Dennoch haben wir uns für diese Platzierung mit all seinen Vor- und Nachteilen entschieden. Das ich meine Brötchen Sonntag Morgen 5 m von der Insel zur Terrasse tragen muss, akzeptiere ich.
Beim Thema Schmutzeintrag durch Kinder etc. hilft es mir auch nichts wenn dort die Küche ist.
Der Hauswirtschaftsraum ist nicht der klassische wie hier von vielen genutzt. Dieser soll vor allem zum Bügeln und als Stauraum für Putzmittel, Staubsauger usw. dienen. Deshalb sehe ich die Positionierung im EG als sinnvoll. Ich habe es schon mal mit einer Podesttreppe bzw. U-förmigen Treppe probiert. Hier waren deutlich breitere Räume ich OG möglich. Im EG gefällt uns die Aufteilung mit gerader Treppe aber besser.
Ich finde den Grundriss eigentlich auf den ersten Blick ganz gut.
Schlauchmässig sehe ich nicht. Die Zimmer im OG sind immerhin 3,3 m.
Mag sein dass ihr Euch aus heutiger Sicht für die Aufteilung im EG so entschieden habt, wenn Ihr Kinder habt werdet ihr nicht glücklich mit so einer Positionierung. Wenn die Kinder im Garten sind wird es nicht nur um die Sonntagsbrötchen gehen. Gut vielleicht wenn du geschäftlich die ganze Woche unterwegs bist und nur zum Sonntagsfrühstück da bist
Treppe auf die andere Seite des Flurs und Küche und Wohnzimmer tauschen. Vielleicht noch bisschen mit den Maßen spielen.
Hang scheint mir noch nicht so richtig bedacht sein was das bedeutet beim Hausbau oder ich hab die Erklärung nicht verstanden. 3m ist richtiger Hang.
Dementsprechend Budget mal ein Fragezeichen.
Eigenleistung...nimmst Du ein halbes Jahr unbezahlten Urlaub oder wie soll das funktionieren?
Schlauchmässig sehe ich nicht. Die Zimmer im OG sind immerhin 3,3 m.
Mag sein dass ihr Euch aus heutiger Sicht für die Aufteilung im EG so entschieden habt, wenn Ihr Kinder habt werdet ihr nicht glücklich mit so einer Positionierung. Wenn die Kinder im Garten sind wird es nicht nur um die Sonntagsbrötchen gehen. Gut vielleicht wenn du geschäftlich die ganze Woche unterwegs bist und nur zum Sonntagsfrühstück da bist
Treppe auf die andere Seite des Flurs und Küche und Wohnzimmer tauschen. Vielleicht noch bisschen mit den Maßen spielen.
Hang scheint mir noch nicht so richtig bedacht sein was das bedeutet beim Hausbau oder ich hab die Erklärung nicht verstanden. 3m ist richtiger Hang.
Dementsprechend Budget mal ein Fragezeichen.
Eigenleistung...nimmst Du ein halbes Jahr unbezahlten Urlaub oder wie soll das funktionieren?
Ähnliche Themen