Hallo liebe Forum-Mitglieder,
ich bin vor kurzem auf dieses Forum gestoßen und habe schon das eine oder andere Thema für mich klären können. Vielen Dank dafür!
Meine Frau und ich haben vor kurzem ein Grundstück gekauft (1260 qm, sehr gute Lage, leichter Südhang). Auf dem Grundstück steht noch ein altes Haus, dass wir abreißen werden.
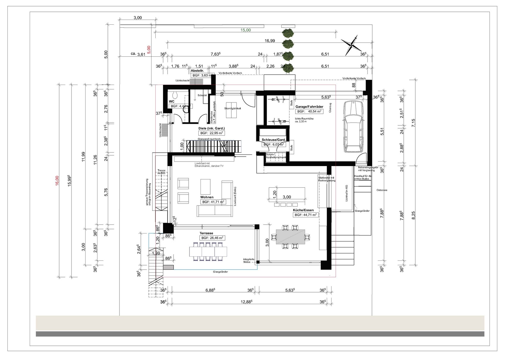
Wir möchten ein Haus mit ausreichend Platz für unsere 4-köpfige Familie (2 Kinder fast 2 und fast 4) sowie ein Aupair bauen und sind damit noch ziemlich am Anfang. Anbei der erste Entwurf unseres Architekten, der uns schon sehr gut gefällt.
Über Feedback würden wir uns sehr freuen.
+++
Bebauungsplan/Einschränkungen:
kein Bebauungsplan; Bebauung nach §34 Baugesetzbuch
Größe des Grundstücks: 1260 qm (21m breit, 60m lang)
Hang:
Geschossflächenzahl: n/a
Baufenster, Baulinie und -grenze:
Anzahl Stellplatz: Doppelgarage
Geschossigkeit: 2, nach Süden 3-geschossig w. Hanglage
Dachform: frei
Stilrichtung: frei
Ausrichtung: vorgegeben w. Straße
Maximale Höhen/Begrenzungen: Höhen gem. Plan sind mit dem Bauamt besprochen und so ok
weitere Vorgaben: offene Bauweise
Anforderungen der Bauherren
Von wem stammt die Planung: von unserem Architekten
Was gefällt besonders: Hat unsere Wünsche und Vorstellungen umgesetzt, modernes, helles Haus mit großzügigem Grundriss
Was gefällt nicht:
Persönliches Preislimit fürs Haus, inkl Ausstattung: kA
favorisierte Heiztechnik: Luft-Wasser Wärmepumpe
Wenn Ihr verzichten müsst, auf welche Details/Ausbauten
Warum ist der Entwurf so geworden, wie er jetzt ist?
Wir haben eigenen Entwurf gemacht und diesen unserem Architekten zusammen mit umfangreichem Briefing gegeben. Unser Architekt hat dann auf der Basis einen Entwurf erstellt, der uns schon sehr gut gefällt
Was ist die wichtigste/grundlegende Frage zum Grundriss in 130 Zeichen zusammengefasst?
Was kann man noch besser gestalten und warum? Außerdem Eure Sicht auf unsere offenen Punkte (siehe nachstehend nochmal zusammengefasst)







ich bin vor kurzem auf dieses Forum gestoßen und habe schon das eine oder andere Thema für mich klären können. Vielen Dank dafür!
Meine Frau und ich haben vor kurzem ein Grundstück gekauft (1260 qm, sehr gute Lage, leichter Südhang). Auf dem Grundstück steht noch ein altes Haus, dass wir abreißen werden.
Wir möchten ein Haus mit ausreichend Platz für unsere 4-köpfige Familie (2 Kinder fast 2 und fast 4) sowie ein Aupair bauen und sind damit noch ziemlich am Anfang. Anbei der erste Entwurf unseres Architekten, der uns schon sehr gut gefällt.
Über Feedback würden wir uns sehr freuen.
+++
Bebauungsplan/Einschränkungen:
kein Bebauungsplan; Bebauung nach §34 Baugesetzbuch
Größe des Grundstücks: 1260 qm (21m breit, 60m lang)
Hang:
- leichte Hanglage 2,5m auf den ersten 20m, weitere 2,5m auf den verbleibenden 40m Südhang, Straße/ Erschließung im Norden
- Anstieg Straße von Osten nach Westen über die Breite des Grundstücks: 0,8m
Geschossflächenzahl: n/a
Baufenster, Baulinie und -grenze:
- Mit Bauamt wie folgt abgestimmt w fehlendem Bauplan
- Im Norden 5m Abstand zur Straße (wie Nachbarbebauung)
- Im Osten und Westen 3m Abstand zur Grundstücksgrenze; Garage kann an Grundstücksgrenze gebaut werden
- Max. Baufenster (ohne Terrasse, Pool) 15x16m
Anzahl Stellplatz: Doppelgarage
Geschossigkeit: 2, nach Süden 3-geschossig w. Hanglage
Dachform: frei
Stilrichtung: frei
Ausrichtung: vorgegeben w. Straße
Maximale Höhen/Begrenzungen: Höhen gem. Plan sind mit dem Bauamt besprochen und so ok
weitere Vorgaben: offene Bauweise
Anforderungen der Bauherren
- Stilrichtung, Dachform, Gebäudetyp: moderne Architektur mit viel Glas, Flachdach, an Bauhausstil angelehnt (wobei dieser Begriff inflationär verwendet wird)
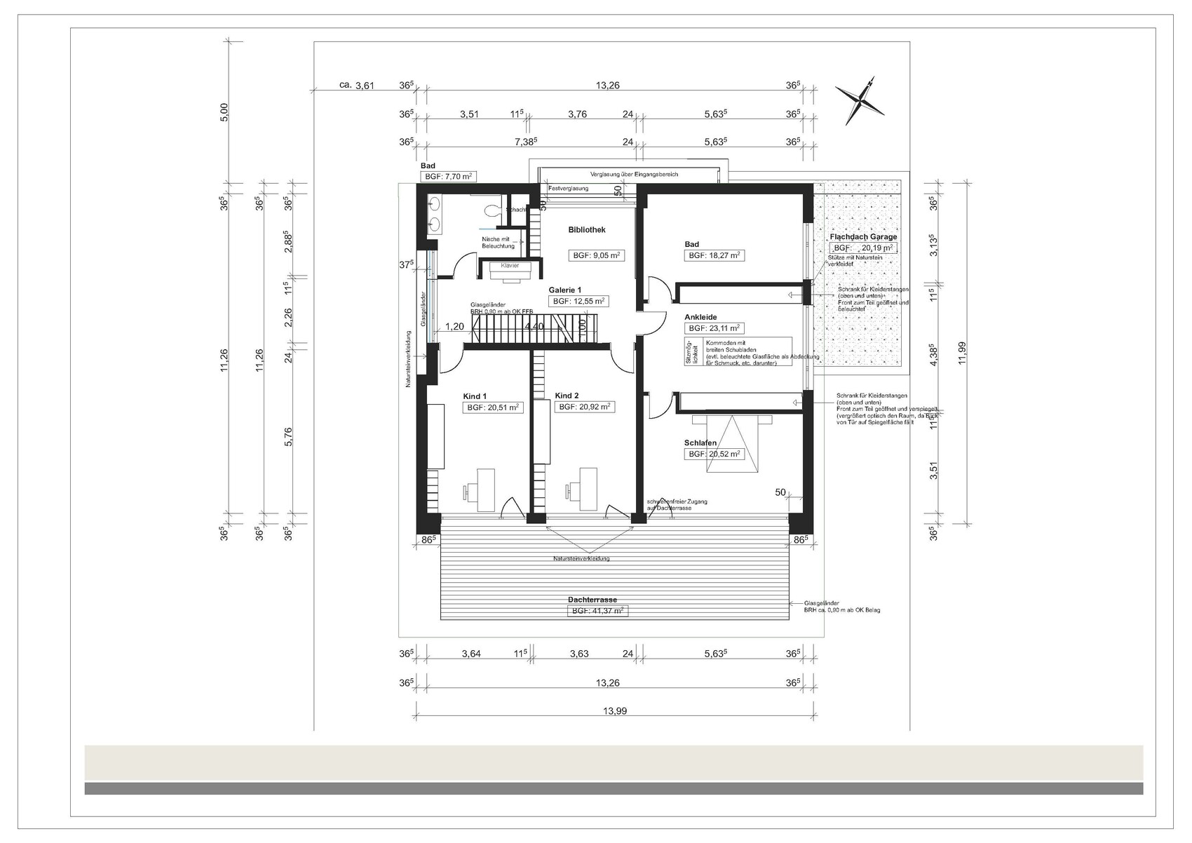
- Keller, Geschosse: UG, EG, OG
- Anzahl der Personen, Alter: 5 Personen, davon 2 Kinder fast 2 und fast 4 Jahre, Aupair
- Raumbedarf im EG, OG: entspricht der Planung
- Büro: Arbeitszimmer als separater Raum nötig, Gästezimmer als zweites Arbeitszimmer nutzbar
- Schlafgäste pro Jahr: Schwiegereltern mehrmals im Jahr für ein paar Tage, Freunde übers Wochenende (mehrmals im Jahr).
- offene oder geschlossene Architektur: im EG offen
- konservativ oder moderne Bauweise: modern, schnörkellos
- offene Küche, Kochinsel: offene Küche mit Kochinsel
- Anzahl Essplätze: 8 Plätze (wir haben oft Gäste und lieben Dinnerparties, die hoffentlich bald wieder möglich sind
- Kamin: Wir haben uns für einen Ethanol-Kamin entschieden. Ist sehr bequem, braucht keinen Schornstein. Haben derzeit einen Holzkamin und machen den sehr selten an
- Musik/Stereowand: nein. Haben sehr gute Soundbar mit Subwoofer und rückwärtigen Boxen, die wir für das Wohnzimmer nutzen wollen und die unseren Ansprüchen genügt, weitere Multiroom Lautsprecher dann in Esszimmer, Küche
- Balkon, Dachterrasse: ja, siehe Pläne
- Garage, Carport: Doppelgarage mit angeschlossenem Bereich für Fahrräder
- Nutzgarten, Treibhaus: nein, nur Beet mit Küchenkräutern
- Weitere Wünsche/Besonderheiten/Tagesablauf, gern auch Begründungen, warum dieses oder das nicht sein soll:
- Aufgrund Hanglage kann das UG teilweise als Wohnbereich genutzt werden
- Arbeitszimmer, Gästezimmer(=2. Arbeitszimmer), Aupair in UG
- Offener Bereich im OG mit Bibliothek (haben wir jetzt auch, schätzen wir sehr, gibt auch mehr Flexibilität bei der Einrichtung des Wohnzimmers, da große Bücherwand nicht immer passt)
- Separater Eingang zu KG; Möglichkeit Aupair- und Gästezimmer zusammenzulegen und damit später Einliegerwohnung zu schaffen
- Im EG überdachte Terrasse
- Direkter Zugang vom EG in den Garten über Außentreppe
- Große Terrasse im UG (5m tief, an die Pool anschließt)
- Alufenster
- Balkongeländer aus Glas (teuer gibt dem ganzen aber eine Leichtigkeit, die wir mögen)
- Im OG große Ankleide
- Fitnessraum im UG
- Weinkeller im UG
- Schleuse zur Garage als zweite Garderobe (zus. zu einbauschrank am Eingang)
- Viel Licht
- Außenmauern EG und OG aus Poroton-Planziegeln mit Mineralwollfüllung (36,5cm)
- Raumhöhe 287,5cm in EG, 275cm in DG und 2,54 in KG, alles vor Deckenabhängung, wobei wir derzeit von Abhängung um nur 6cm ausgehen (minimale Höhe für Einbaustrahler)
- Eichenparkett in allen Räumen außer Bädern und Kellerräumen im UG
- Fußbodenheizung
- luftwärmepumpe mit Kühlfunktion
- Kontrollierte-Wohnraumlüftung mit Wärmerückgewinnung
- Smart Home mit KNX, wobei wir da noch überlegen, was für uns wirklich sinnvoll ist und was Spielerei
- Pool 12x4m mit Unterflurrollladen, Gegenstromanlage und Poolheizung über zusätzliche Wärmepumpe
- Nutzung der Dachfläche für Photovoltaik mit entsprechend dimensioniertem Speicher (mit Wärmepumpe, E-Auto, Pool werden wir einen relativ hohen Stromverbrauch haben, so dass es ökonomisch nicht ganz unsinnig ist)
- Was wir nicht brauchen
- Galerie/ Luftraum im EG (superschön, man verliert aber auch viel Platz im OG, Akustik auch problematischer)
- Sauna (nutzen wir gerne im Skiurlaub, sonst aber selten, evtl. alternativ Dampfdusche im Elternbad, siehe dazu unsere Fragen weiter unten)
- Speisekammer (ausreichend Platz in der Küche für Vorräte, separater Abstellraum im EG für Staubsauger, Reinigungsmittel, Bügelstation, etc., außerdem Keller für Getränkekisten etc.)
- Hauswirtschaftsraum (Waschmaschine, Trockner werden im HAR im UG stehen, da ist auch Platz, um Wäsche aufzuhängen)
- solaranlage (wir haben uns für Photovoltaik entschieden, haben uns auch bzgl. Hybridanlagen informiert, macht für uns aber keinen Sinn)
- Wo wir noch unsicher sind
- Klimaanlage: Brauchen wir die? Wir haben viele Fenster und Haus ist nach Süden ausgerichtet und Kühlfunktion LW Wärmepumpe bringt ja nicht so viel. Wenn Klimaanlage dann stellt sich die Frage, ob Multisplit mit Wandgeräten über der Tür oder irgendwie versteckt oder eine zentrale Klimaanlage. Hat jemand im Forum Erfahrung mit einer zentralen Klimaanlage? Wieviel mehr Platz braucht zentrale Klimaanlage in der Decke (derzeit nur Abhängung von 6cm geplant)? Kosten?
Von wem stammt die Planung: von unserem Architekten
Was gefällt besonders: Hat unsere Wünsche und Vorstellungen umgesetzt, modernes, helles Haus mit großzügigem Grundriss
Was gefällt nicht:
- Garage liegt aufgrund Gefälle der Straße unterhalb EG, niedrigere Höhe ist nötig, um Höhenvorschriften für Grenzbebauung einzuhalten; wir überlegen noch, wie wir das gestalten, derzeitiger Entwurf mit dem Vordach über Eingang und einem weiteren weniger tiefen Vordach über Garage, welche sich noch ein Stück überlappen evtl. noch verbesserungsfähig
- Klavier können wir nicht sinnvoll im EG aufstellen, Aufstellung Klavier im OG ist aber wohl der Preis für die vielen Glasflächen im EG
- Luft-Wasser Wärmepumpe lässt sich lt. Architekt nur außen aufstellen, da es in der benötigten Leistungsgröße keine Produkte für die Innenaufstellung gibt, jedenfalls dann nicht, wenn Wärmepumpe Kühlfunktion haben soll
Persönliches Preislimit fürs Haus, inkl Ausstattung: kA
favorisierte Heiztechnik: Luft-Wasser Wärmepumpe
Wenn Ihr verzichten müsst, auf welche Details/Ausbauten
- könnt Ihr verzichten: wollen eigentlich auf keinen Raum, keine geplante Ausstattung verzichten, Terrasse OG ist sehr groß geworden brauchen wir nicht, hatten schon überlegt, ob wir Terrasse teilweise begrünen, dann aber wieder verworfen
- könnt Ihr nicht verzichten: siehe Aussage zu „könnt Ihr verzichten“
Warum ist der Entwurf so geworden, wie er jetzt ist?
Wir haben eigenen Entwurf gemacht und diesen unserem Architekten zusammen mit umfangreichem Briefing gegeben. Unser Architekt hat dann auf der Basis einen Entwurf erstellt, der uns schon sehr gut gefällt
Was ist die wichtigste/grundlegende Frage zum Grundriss in 130 Zeichen zusammengefasst?
Was kann man noch besser gestalten und warum? Außerdem Eure Sicht auf unsere offenen Punkte (siehe nachstehend nochmal zusammengefasst)
- Ideen zur Nordseite (Straßenseite), Gestaltung Vordach, Problem der niedrigeren Höhe der Garage
- Notwendigkeit Klimaanlage, Multisplit vs zentrale Klimaanlage, Abhängung Decke wie tief bei zentraler Klimaanlage, Kosten?
- Gibt es Luft-Wasser Wärmepumpen mit Kühlfunktion zur Innenaufstellung in der von uns benötigten Leistungsklasse > 14 kW)?
M
Myrna_Loy13.03.21 23:41Das mit dem Klavier ist natürlich echt ein Problem... 😀
Der Schuh-/Apothekerschrank in der Schleuse ist ein Narrenscherz: er funktioniert nicht (sperrt die Türen).
Wenn Du hier ein Vergleichsbeispiel (mit allerdings ziemlich groben Ähnlichkeiten) anschauen willst, das wäre das von @sichtbeton82 in https://www.hausbau-forum.de/threads/grundrissplanung-für-zfh-im-Hang.24435/
https://www.instagram.com/11antgmxde/
https://www.linkedin.com/company/bauen-jetzt/
Wenn Du hier ein Vergleichsbeispiel (mit allerdings ziemlich groben Ähnlichkeiten) anschauen willst, das wäre das von @sichtbeton82 in https://www.hausbau-forum.de/threads/grundrissplanung-für-zfh-im-Hang.24435/
Myrna_Loy schrieb:Ein Klavier ist hier kein Problem, nicht wahr @chrisw81 ? - schwieriger ist schon die Platzierung eines Nähzimmers (noch ´n Insidergag, siehe https://www.hausbau-forum.de/threads/unser-entwurf-fuer-ein-guenstiges-haus.34041/).
Das mit dem Klavier ist natürlich echt ein Problem...
https://www.instagram.com/11antgmxde/
https://www.linkedin.com/company/bauen-jetzt/
Ähnliche Themen