ᐅ EG ca. 100 qm, OG ausbaufähig (geplant Bad, 2 KZ, 1 Abstellraum)
Erstellt am: 28.03.18 10:32
P
pffreestylerP
pffreestyler28.03.18 10:32Moinsen,
Bebauungsplan/Einschränkungen
Größe des Grundstücks: 879 qm
Hang: nein
Grundflächenzahl: 0,3
Geschossflächenzahl: 0,45
Baufenster, Baulinie und -grenze: 5m zur Straße, 3m jeweils zur Streuobstfläche und Nachbarn
Randbebauung /
Anzahl Stellplatz 2
Geschossigkeit 2
Dachform Satteldach
Stilrichtung Massiv
Maximale Höhen/Begrenzungen FH 9,0,TH 6,0
weitere Vorgaben
Anforderungen der Bauherren: WZ zum Süden, kleines Büro (im Säuglingsalter erst einmal als KZ zu nutzen), ebenerdige Dusche, HW auf der Seite der Auffahrt
Stilrichtung, Dachform, Gebäudetyp
Keller, Geschosse: kein Keller, 1,5 geschossig
Anzahl der Personen, Alter: 2 - unter 30
Büro: Familiennutzung oder Homeoffice? Familiennutzung
Schlafgäste pro Jahr: 2-3
offene oder geschlossene Architektur geschlossen
konservativ oder moderne Bauweise eher konservativ
offene Küche, Kochinsel: nein
Anzahl Essplätze: 6
Kamin: nein
Musik/Stereowand: nein
Balkon, Dachterrasse: nein
Garage, Carport: Carport später im Osten
Nutzgarten, Treibhaus: nein
Hausentwurf
Von wem stammt die Planung: GU
Was gefällt besonders? Warum? WZ im Süden, Anzahl der Räume so gewollt
Was gefällt nicht? Warum? Fenster des KZ 1 sollte von Süden in den Westen (Wand sieht sonst zu nackt aus) Auffahrt + Auffahrt in den Osten nicht Westen
Preisschätzung lt Architekt/Planer: gibts erst nach Ostern, mir geht es vorrangig um Grundriss aktuell
Persönliches Preislimit fürs Haus, inkl Ausstattung: es wird auf 1.700 €/qm hinauslaufen
favorisierte Heiztechnik: Gas
Wenn Ihr verzichten müsst, auf welche Details/Ausbauten
-könnt Ihr verzichten: Badewanne
-könnt Ihr nicht verzichten:
Warum ist der Entwurf so geworden, wie er jetzt ist?
der Grundriss wurde in sehr ähnlicher Form bei einer Hausbesichtigung gesehen und ist unser Favorit von allen Hausbesichtigungen + durchforsten von Katalogen. Haben ihn nur etwas auf unseren Bedarf angepasst (Gäste-WC gestrichen und WZ vergrößert, KZ gedreht)
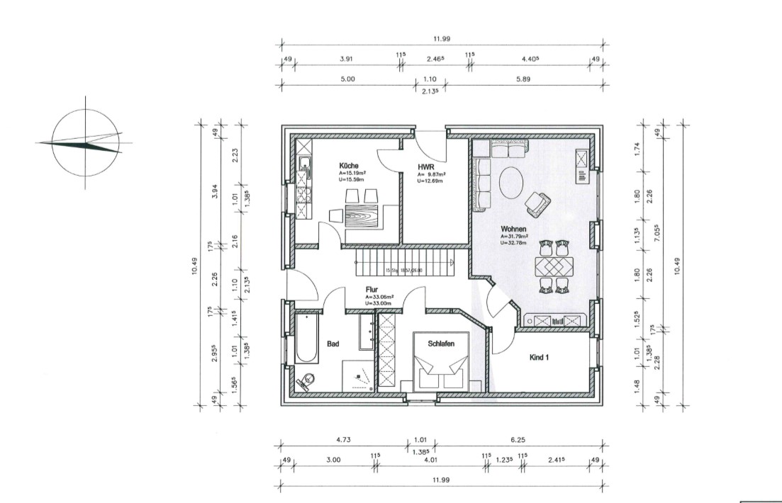
Was ist die wichtigste/grundlegende Frage zum Grundriss in 130 Zeichen zusammengefasst? Vom Grundriss passt es uns prinzipiell, aber mich würde noch einmal eure Meinung interessieren, vllt ergibt sich ja doch noch die ein oder andere Optimierung. Anzumerken ist, wie bereits o.g., das Fenster des KZ wollen wir noch in den Westen legen damit die Wand dort nicht so nackt aussieht. Auffahrt in den Osten, nicht Westen. Daher auch die nackte Wand im Westen, da soll bis zur Hauswirtschaftsraum-Tür das Carport. Alternativ sehe ich da eventuell aber die Möglichkeit, dass da noch ein Fenster ins WZ kommt und das Carport erst hinter dem Haus anfängt. Das Grundstück ließe das zu.
Mein Hauptanliegen ist jedoch, dass wir nicht zu 100 % glücklich damit bin, dass das Dach eine West/Ost-Ausrichtung hat, mir wäre eine Nord/Süd-Ausrichtung lieber. Habt ihr eine Idee, wie man den Grundriss einmal um 90 Grad dreht, aber den Grundriss so lässt. Einzig Küche und KZ könnte im Grundriss getauscht werden.
PS: Die qm Angabe des Flures dürfte nicht stimmen, der GU finalisiert das erst Ostern. Korrekte Angaben werden wie folgt sein: WZ: 31,79 qm, Küche: 15,19 qm,Hauswirtschaftsraum: 9,87 qm, Flur ca. 19,5 qm, Kind1/Büro: ca. 8 qm, Schlafzimmer: ca 11,8 qm, Bad: ca 8,5 qm
Daten zum Grundstück: Länge: West: 40 m Ost: 42 m, Breite: 21,5 m
LG



Bebauungsplan/Einschränkungen
Größe des Grundstücks: 879 qm
Hang: nein
Grundflächenzahl: 0,3
Geschossflächenzahl: 0,45
Baufenster, Baulinie und -grenze: 5m zur Straße, 3m jeweils zur Streuobstfläche und Nachbarn
Randbebauung /
Anzahl Stellplatz 2
Geschossigkeit 2
Dachform Satteldach
Stilrichtung Massiv
Maximale Höhen/Begrenzungen FH 9,0,TH 6,0
weitere Vorgaben
Anforderungen der Bauherren: WZ zum Süden, kleines Büro (im Säuglingsalter erst einmal als KZ zu nutzen), ebenerdige Dusche, HW auf der Seite der Auffahrt
Stilrichtung, Dachform, Gebäudetyp
Keller, Geschosse: kein Keller, 1,5 geschossig
Anzahl der Personen, Alter: 2 - unter 30
Büro: Familiennutzung oder Homeoffice? Familiennutzung
Schlafgäste pro Jahr: 2-3
offene oder geschlossene Architektur geschlossen
konservativ oder moderne Bauweise eher konservativ
offene Küche, Kochinsel: nein
Anzahl Essplätze: 6
Kamin: nein
Musik/Stereowand: nein
Balkon, Dachterrasse: nein
Garage, Carport: Carport später im Osten
Nutzgarten, Treibhaus: nein
Hausentwurf
Von wem stammt die Planung: GU
Was gefällt besonders? Warum? WZ im Süden, Anzahl der Räume so gewollt
Was gefällt nicht? Warum? Fenster des KZ 1 sollte von Süden in den Westen (Wand sieht sonst zu nackt aus) Auffahrt + Auffahrt in den Osten nicht Westen
Preisschätzung lt Architekt/Planer: gibts erst nach Ostern, mir geht es vorrangig um Grundriss aktuell
Persönliches Preislimit fürs Haus, inkl Ausstattung: es wird auf 1.700 €/qm hinauslaufen
favorisierte Heiztechnik: Gas
Wenn Ihr verzichten müsst, auf welche Details/Ausbauten
-könnt Ihr verzichten: Badewanne
-könnt Ihr nicht verzichten:
Warum ist der Entwurf so geworden, wie er jetzt ist?
der Grundriss wurde in sehr ähnlicher Form bei einer Hausbesichtigung gesehen und ist unser Favorit von allen Hausbesichtigungen + durchforsten von Katalogen. Haben ihn nur etwas auf unseren Bedarf angepasst (Gäste-WC gestrichen und WZ vergrößert, KZ gedreht)
Was ist die wichtigste/grundlegende Frage zum Grundriss in 130 Zeichen zusammengefasst? Vom Grundriss passt es uns prinzipiell, aber mich würde noch einmal eure Meinung interessieren, vllt ergibt sich ja doch noch die ein oder andere Optimierung. Anzumerken ist, wie bereits o.g., das Fenster des KZ wollen wir noch in den Westen legen damit die Wand dort nicht so nackt aussieht. Auffahrt in den Osten, nicht Westen. Daher auch die nackte Wand im Westen, da soll bis zur Hauswirtschaftsraum-Tür das Carport. Alternativ sehe ich da eventuell aber die Möglichkeit, dass da noch ein Fenster ins WZ kommt und das Carport erst hinter dem Haus anfängt. Das Grundstück ließe das zu.
Mein Hauptanliegen ist jedoch, dass wir nicht zu 100 % glücklich damit bin, dass das Dach eine West/Ost-Ausrichtung hat, mir wäre eine Nord/Süd-Ausrichtung lieber. Habt ihr eine Idee, wie man den Grundriss einmal um 90 Grad dreht, aber den Grundriss so lässt. Einzig Küche und KZ könnte im Grundriss getauscht werden.
PS: Die qm Angabe des Flures dürfte nicht stimmen, der GU finalisiert das erst Ostern. Korrekte Angaben werden wie folgt sein: WZ: 31,79 qm, Küche: 15,19 qm,Hauswirtschaftsraum: 9,87 qm, Flur ca. 19,5 qm, Kind1/Büro: ca. 8 qm, Schlafzimmer: ca 11,8 qm, Bad: ca 8,5 qm
Daten zum Grundstück: Länge: West: 40 m Ost: 42 m, Breite: 21,5 m
LG
Okeeeee. Also was mir auffällt:
KZ: in 8 qm wird echt kein Kind glücklich. Das ist mit Ach und Krach ein ein Mini-Büro bzw. eher ein Abstellraum.
Also wenn dann mal Kinder geplant sind, sollte das Kinderzimmer oben eingerichtet werden.
Den Verzicht auf die Wanne solltet ihr euch bei KiWu ebenfalls überlegen. Es gibt nichts besseres um kleine Kinder sauber zu bekommen (inklusive der kleinen schwarzen Zehen- und Fingernägel) als ein Bad.
Ich finde es auch nicht sonderlich prickelnd, nachts zum Klo durch den Schmutzbereich zu traben.
Essen im Essbereich auftischen ist natürlich auch ein schöner Weg. Wieder voll durch den Schmutzbereich.
KZ: in 8 qm wird echt kein Kind glücklich. Das ist mit Ach und Krach ein ein Mini-Büro bzw. eher ein Abstellraum.
Also wenn dann mal Kinder geplant sind, sollte das Kinderzimmer oben eingerichtet werden.
Den Verzicht auf die Wanne solltet ihr euch bei KiWu ebenfalls überlegen. Es gibt nichts besseres um kleine Kinder sauber zu bekommen (inklusive der kleinen schwarzen Zehen- und Fingernägel) als ein Bad.
Ich finde es auch nicht sonderlich prickelnd, nachts zum Klo durch den Schmutzbereich zu traben.
Essen im Essbereich auftischen ist natürlich auch ein schöner Weg. Wieder voll durch den Schmutzbereich.
P
pffreestyler28.03.18 12:11KZ unten ist nur für den Anfang gedacht. Sobald Kinder da sind, muss oben ausgebaut werden. Badewanne wird wohl bleiben, war eher als Kompromiss gedacht, falls man dadurch etwas Platz unten sparen könnte. Würde dann oben aber auf jeden Fall eine geben.
Schmutzbereich stört nicht, haben wir aktuell in der Mietwohnung zwischen Schlafzimmer und WC und generell soll eh in der Küche gegessen werden. Essen im WZ nur mit Gästen
Schmutzbereich stört nicht, haben wir aktuell in der Mietwohnung zwischen Schlafzimmer und WC und generell soll eh in der Küche gegessen werden. Essen im WZ nur mit Gästen
Ihr habt Außenmaße von 10,5 mal 12 m. Und dann ein Kinderzimmer mit 8 qm. Einen mehr als doppelt so großen Flur als Kinderzimmer. Eine Küche mit einem mini Nordfenster/ kaum Licht. Und eine gerade Treppe- den größtmöglichen Platzfresser bei Treppen- um in einen anscheinend nicht ausgebauten Dachboden (oder fehlt der Grundriss dazu?) zu kommen.
Ehrlich gesagt passt für mich da so ziemlich gar nichts an dem Grundriss. :-(
Wäre es überhaupt zulässig, den First zu drehen? Und was soll ins DG? Das muss jetzt schon mitgeplant werden, da die Dachschrägen und Treppen eine Raumaufteilung erheblich beeinflussen.
Ehrlich gesagt passt für mich da so ziemlich gar nichts an dem Grundriss. :-(
Wäre es überhaupt zulässig, den First zu drehen? Und was soll ins DG? Das muss jetzt schon mitgeplant werden, da die Dachschrägen und Treppen eine Raumaufteilung erheblich beeinflussen.
Welchen Schmutzbereich? Evolith, ein Flur ist nicht schmutzig. Zunächst ist das ein toller Entwurf mit guter, klassischer Siedlerhausarchitektur.
Die Küche mit Eckbank, das wäre mir zu eng. Aber Tisch mit 4 Stühlen ginge super. Etwas mehr Küchenmöbel sollten wohl sein.
Ich würde Küche und Hauswirtschaftsraum austauschen, damit man das alles an der Ecke hat. Dann ginge ggf. sogar ne Durchreiche ins WZ.
Hintertür: super.
Schlafzimmer super. Schönes Haus. Bauen! (Team massiv?)
Die Küche mit Eckbank, das wäre mir zu eng. Aber Tisch mit 4 Stühlen ginge super. Etwas mehr Küchenmöbel sollten wohl sein.
Ich würde Küche und Hauswirtschaftsraum austauschen, damit man das alles an der Ecke hat. Dann ginge ggf. sogar ne Durchreiche ins WZ.
Hintertür: super.
Schlafzimmer super. Schönes Haus. Bauen! (Team massiv?)
Und willst du dann die Platten an Essen wirklich bis ins Wohnzimmer schleppen? Inklusive dann Abräumen des dreckigen Geschirrs?
Ein KZ im Säuglingsalter ist aus meiner Sicht verschwendet. Meist schlafen die Kinder ja doch die ersten Monate bei den Eltern. Gewickelt wird überall im Haus und richtige Spielfläche ist auch nicht nötig, da die Mobilität erst so ab 6 Monaten kommt. Und dann ist alles interessanter, nur nicht das eigene Zimmer.
Sprich wenn sich Nachwuchs ankündigt, steht ihr eh im Dachgeschoss und fangt an auszubauen.
@Nordlys : Der Eingangsbereich ist für gewöhnlich selten sauber. Besonders später mit Kindern nicht. Ich kann da ein Lied von singen. Barfuß gehe ich nicht zur Waschmaschine, weil ich dann an der Haustür vorbei muss. Dort liegt einfach Dreck und Staub von draußen. Im Winter besonders herrlich.
Ich würde Küche und Hauswirtschaftsraum ebenfalls tauschen und dann auf die andere Seite verschieben. So hat man einen direkteren Weg zum Esstisch.
Ein KZ im Säuglingsalter ist aus meiner Sicht verschwendet. Meist schlafen die Kinder ja doch die ersten Monate bei den Eltern. Gewickelt wird überall im Haus und richtige Spielfläche ist auch nicht nötig, da die Mobilität erst so ab 6 Monaten kommt. Und dann ist alles interessanter, nur nicht das eigene Zimmer.
Sprich wenn sich Nachwuchs ankündigt, steht ihr eh im Dachgeschoss und fangt an auszubauen.
@Nordlys : Der Eingangsbereich ist für gewöhnlich selten sauber. Besonders später mit Kindern nicht. Ich kann da ein Lied von singen. Barfuß gehe ich nicht zur Waschmaschine, weil ich dann an der Haustür vorbei muss. Dort liegt einfach Dreck und Staub von draußen. Im Winter besonders herrlich.
Ich würde Küche und Hauswirtschaftsraum ebenfalls tauschen und dann auf die andere Seite verschieben. So hat man einen direkteren Weg zum Esstisch.
Ähnliche Themen