ᐅ Town & Country Raumwunder 100 mit wenig Änderungen
Erstellt am: 13.05.21 21:38
B
Benutzername7713.05.21 21:38Bebauungsplan/Einschränkungen
Größe des Grundstücks: 506 qm
Hang: nein
Grundflächenzahl: 0,3
Geschossflächenzahl: 0,6
Baufenster, Baulinie und -grenze:
Randbebauung: geplant Carport
Anzahl Stellplatz: 1
Geschossigkeit: EG + OG + Spitzboden
Dachform: größer 45 Grad
Stilrichtung:
Ausrichtung: Südwest
Maximale Höhen/Begrenzungen
weitere Vorgaben: Holzfassade
Anforderungen der Bauherren
Stilrichtung, Dachform, Gebäudetyp: normales Haus“, 1,5-stöcker,
Keller, Geschosse: ohne/ 1,5 Stöcker
Anzahl der Personen, Alter: 2 (40J.)
Raumbedarf im EG, OG: 100qm
Büro: Familiennutzung oder Homeoffice? Büro & Musikstudio
Schlafgäste pro Jahr: 2
offene oder geschlossene Architektur: geschlossen
konservativ oder moderne Bauweise: konservativ
offene Küche, Kochinsel: halboffen
Anzahl Essplätze: 4 + Ausziehtisch auf 8
Kamin: nein
Musik/Stereowand: Medienwand mit TV etc.
Balkon, Dachterrasse: nein
Garage, Carport: Carport
Nutzgarten, Treibhaus: Rasen, Büsche, ev. vorhandene Bäume
weitere Wünsche/Besonderheiten/Tagesablauf, gern auch Begründungen, warum dieses oder das nicht sein soll
Hausentwurf
Von wem stammt die Planung: Town & Country
-Planer eines Bauunternehmens
-Architekt
-Do-it-Yourself
Was gefällt besonders? Warum?: Platz passt und liegt im finanziellen Rahmen
Was gefällt nicht? Warum?:
Preisschätzung lt Architekt/Planer: 203.000 €
Persönliches Preislimit fürs Haus, inkl Ausstattung: 200.000 €
favorisierte Heiztechnik: Luft-/Wasser-Wärmepumpe
Wenn Ihr verzichten müsst, auf welche Details/Ausbauten
-könnt Ihr verzichten:
-könnt Ihr nicht verzichten:
Warum ist der Entwurf so geworden, wie er jetzt ist? ZB
Standardentwurf vom Planer? ja
Entsprechende/Welche Wünsche wurden vom Architekten umgesetzt? höherer Kniestock
Ein Gemisch aus vielen Beispielen aus div. Magazinen...
Was macht ihn in Euren Augen besonders gut oder schlecht?
Was ist die wichtigste/grundlegende Frage zum Grundriss in 130 Zeichen zusammengefasst?
Wäre es angebracht die Garderobe in einen zusätzlichen Abstell/Vorratsraum umzuändern?
Ein direkter Zugang vom Flur zur Küche?
"Passt" das Haus zum Grundstück?
Worauf sollte man noch achten bzw. was fehlt?
Zusatzausstattung:
1. Erhöhung des Kniestockes um 50 cm
2. Fußbodenheizung im gesamten Haus
3. Frischluftautomatik (Kontrollierte Wohnungslüftung System Lunos)
4. Außenhauben für dezentrale Wohnungslüftung
5. Vaillant Luft-/Wasser-Wärmepumpe (bis 7KW)
6. Vorrüstung Photovoltaikanlage
7. Spitzbodenbeleuchtung
8. zusätzliche Außensteckdose
9. Mehraufwand zweiflügelige Terrassentür mit Flachschwelle
10. Rollläden im gesamten Haus
11. bodengleiche Dusche (90 cm x 90 cm)
12. Änderungen in der Grundriss-Planung (Erdgeschoss)
13. Änderungen in der Grundriss-Planung (Dachgeschoss)
14. Planungsänderung - Standardgrundriss spiegeln (alle Geschosse)
15. Verlängerung der Preisbindungsfrist von 12 auf 24 Monate
16. Mehrspartenhauseinführung





Größe des Grundstücks: 506 qm
Hang: nein
Grundflächenzahl: 0,3
Geschossflächenzahl: 0,6
Baufenster, Baulinie und -grenze:
Randbebauung: geplant Carport
Anzahl Stellplatz: 1
Geschossigkeit: EG + OG + Spitzboden
Dachform: größer 45 Grad
Stilrichtung:
Ausrichtung: Südwest
Maximale Höhen/Begrenzungen
weitere Vorgaben: Holzfassade
Anforderungen der Bauherren
Stilrichtung, Dachform, Gebäudetyp: normales Haus“, 1,5-stöcker,
Keller, Geschosse: ohne/ 1,5 Stöcker
Anzahl der Personen, Alter: 2 (40J.)
Raumbedarf im EG, OG: 100qm
Büro: Familiennutzung oder Homeoffice? Büro & Musikstudio
Schlafgäste pro Jahr: 2
offene oder geschlossene Architektur: geschlossen
konservativ oder moderne Bauweise: konservativ
offene Küche, Kochinsel: halboffen
Anzahl Essplätze: 4 + Ausziehtisch auf 8
Kamin: nein
Musik/Stereowand: Medienwand mit TV etc.
Balkon, Dachterrasse: nein
Garage, Carport: Carport
Nutzgarten, Treibhaus: Rasen, Büsche, ev. vorhandene Bäume
weitere Wünsche/Besonderheiten/Tagesablauf, gern auch Begründungen, warum dieses oder das nicht sein soll
Hausentwurf
Von wem stammt die Planung: Town & Country
-Planer eines Bauunternehmens
-Architekt
-Do-it-Yourself
Was gefällt besonders? Warum?: Platz passt und liegt im finanziellen Rahmen
Was gefällt nicht? Warum?:
Preisschätzung lt Architekt/Planer: 203.000 €
Persönliches Preislimit fürs Haus, inkl Ausstattung: 200.000 €
favorisierte Heiztechnik: Luft-/Wasser-Wärmepumpe
Wenn Ihr verzichten müsst, auf welche Details/Ausbauten
-könnt Ihr verzichten:
-könnt Ihr nicht verzichten:
Warum ist der Entwurf so geworden, wie er jetzt ist? ZB
Standardentwurf vom Planer? ja
Entsprechende/Welche Wünsche wurden vom Architekten umgesetzt? höherer Kniestock
Ein Gemisch aus vielen Beispielen aus div. Magazinen...
Was macht ihn in Euren Augen besonders gut oder schlecht?
Was ist die wichtigste/grundlegende Frage zum Grundriss in 130 Zeichen zusammengefasst?
Wäre es angebracht die Garderobe in einen zusätzlichen Abstell/Vorratsraum umzuändern?
Ein direkter Zugang vom Flur zur Küche?
"Passt" das Haus zum Grundstück?
Worauf sollte man noch achten bzw. was fehlt?
Zusatzausstattung:
1. Erhöhung des Kniestockes um 50 cm
2. Fußbodenheizung im gesamten Haus
3. Frischluftautomatik (Kontrollierte Wohnungslüftung System Lunos)
4. Außenhauben für dezentrale Wohnungslüftung
5. Vaillant Luft-/Wasser-Wärmepumpe (bis 7KW)
6. Vorrüstung Photovoltaikanlage
7. Spitzbodenbeleuchtung
8. zusätzliche Außensteckdose
9. Mehraufwand zweiflügelige Terrassentür mit Flachschwelle
10. Rollläden im gesamten Haus
11. bodengleiche Dusche (90 cm x 90 cm)
12. Änderungen in der Grundriss-Planung (Erdgeschoss)
13. Änderungen in der Grundriss-Planung (Dachgeschoss)
14. Planungsänderung - Standardgrundriss spiegeln (alle Geschosse)
15. Verlängerung der Preisbindungsfrist von 12 auf 24 Monate
16. Mehrspartenhauseinführung
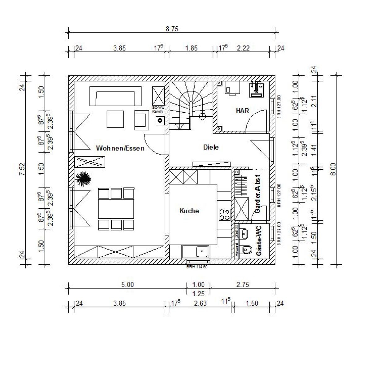
So ein Siedlerhaus passt auf jedes Grundstück, der Grundriss ist gut, er macht aus dem vorhandenen Volumen das Beste. Die Garderobe lassen, wird als Raum zu eng, und ein Ort für Jacken und so muss ja. Wenn der Preis fix sein muss ändere nichts nada nothing mehr. Überlege eher, ob Du bei Unvorhergesehenem noch Sparpotentiale hast. Man könnte die Rollläden dann weglassen, oder die Terrassentür einfacher.
B
Benutzername7713.05.21 22:17Nordlys schrieb:
So ein Siedlerhaus passt auf jedes Grundstück, der Grundriss ist gut, er macht aus dem vorhandenen Volumen das Beste. Die Garderobe lassen, wird als Raum zu eng, und ein Ort für Jacken und so muss ja. Wenn der Preis fix sein muss ändere nichts nada nothing mehr. Überlege eher, ob Du bei Unvorhergesehenem noch Sparpotentiale hast. Man könnte die Rollläden dann weglassen, oder die Terrassentür einfacher.Vielen Dank für die Antwort.
Meinen Sie den Grundriss des Grundstücks? Ich hab ein wenig "Sorge", da das Grundstück ja genau in einer kleinen Kurve liegt und die Seite zur Straße nur 8,4 m beträgt. Da ist es vorn ziemlich eng, gerade mit Einfahrt/Stellplatz etc.? Nach hinten hinaus wird es dafür immer breiter und wirkt dadurch optisch größer, finde ich.
Danke für den Hinweis mit der Garderobe, hatte bisher in der Wohnung die Jacken auch immer in den Abstellraum am Ende des Flurs gehangen...finde ich immer etwas "aufgeräumter". Aber ich werde mir das nochmal direkt im Musterhaus ansehen.
Die Rollläden würde ich gern lassen, da ich im Schichtdienst arbeite und öfter auch mal tagsüber schlafe. Als Kostenkompromiss habe ich dafür keine elektrischen Rollläden genommen, dafür aber Leerrohre als Vorbereitung für eine eventuelle Nachrüstung.
Terrassentür wollte ich bewusst niedrigschwellig haben bzw. zwei große Türen für einen hellen und offenen Raumeindruck.
Nordlys schrieb:
So ein Siedlerhaus passt auf jedes Grundstück,Holzhaus schrieb:
Ich hab ein wenig "Sorge", da das Grundstück ja genau in einer kleinen Kurve liegt und die Seite zur Straße nur 8,4 m beträgt.Ich auch!Holzhaus schrieb:
Da ist es vorn ziemlich eng, gerade mit Einfahrt/Stellplatz etc.?Bitte selbst mit vorhandenen oder errechneten Maßen dem Grundstück ein Raster verpassen und die 8 x 8 in den Lageplan zeichnen. Für mich sieht das etwas knapp aus!!!B
Benutzername7713.05.21 22:44ypg schrieb:
Ich auch!
Bitte selbst mit vorhandenen oder errechneten Maßen dem Grundstück ein Raster verpassen und die 8 x 8 in den Lageplan zeichnen. Für mich sieht das etwas knapp aus!!!Vielen Dank für den Vorschlag. Das werde ich auf jeden Fall machen.
Grundsätzlich muss es ja irgendwie "gehen", da ja das Grundstück zusammen mit dem geplanten Haus angeboten/verkauft wurde...ist halt nur die Frage wie es dann aussieht bzw. noch Platz ist...
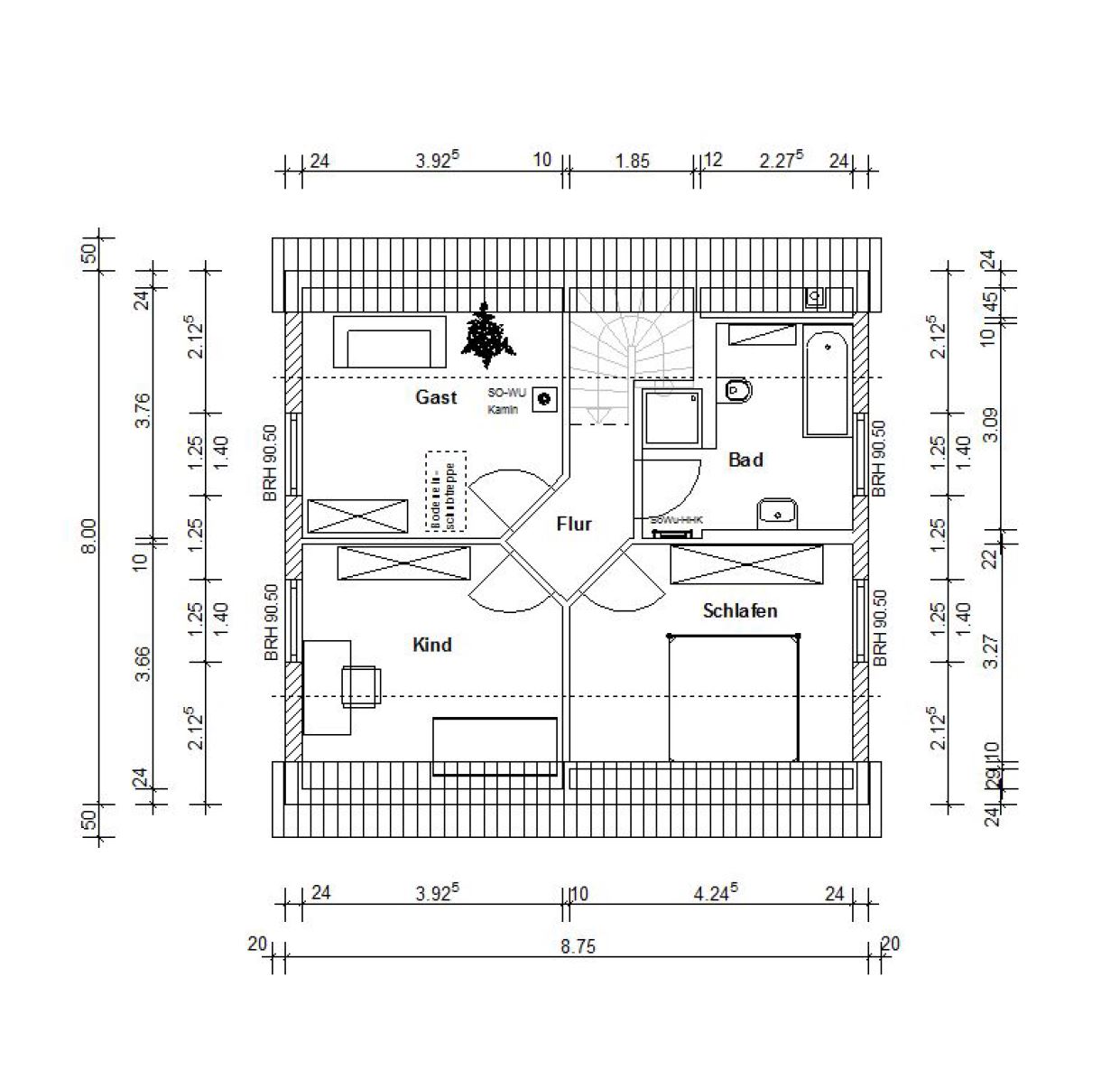
Was mir in deinem Grundriss aufgefallen ist, die Öffnungsrichtung der Türe vom Gäste-WC würde sicher nach innen besser funktionieren. Kommt man aus dem WC und einer steht in der Garderobe -> "Brett vorm Kopf". Wie ich sehe ist das Gäste-WC auch nur 1,5m tief. Vielleicht auch das WC an die hintere Außenwand schieben, nimmt vielleicht etwas die Enge von WC und Waschbecken raus. Wäre die gleiche Anordnung wie bei mir, allerdings habe ich etwas mehr Tiefe.
Auch die Türe oben im Bad, wäre vielleicht besser nach rechts zu öffnen, zum Handtuchheizkörper statt zur Dusche, nicht das einem mal die Türe aus der Hand rutscht und die gegen die Dusche knallt. Ich habe sie z.b. nach außen öffnend, da auch auf der einen Seite die Dusche und auf der anderen Seite das WC ( -> Brett vorm Kopf), nur nach außen gibt dein Platz nicht her.
Ach so, ich würde auch mal behaupten das deine Luft-Wasser-Wärmepumpe mit 7kw deutlich überdimensioniert ist. Oder heisst es das deine Anlage bis 7kw inklusive ist? Ich habe auch wie beim Raumwunder nur 100 m2 aber eine Luft-Wasser-Wärmepumpe mit 4kw. Der Hausverkäufer hatte eine 6 kw eingeplant, aber bei der Bemusterung hatte die Planerin dann gemeint eine 4kw reicht völlig aus. Vielleicht ein Ansatz bei dir um noch etwas Kosten zu sparen bei einem kleineren Modell.
Auch die Türe oben im Bad, wäre vielleicht besser nach rechts zu öffnen, zum Handtuchheizkörper statt zur Dusche, nicht das einem mal die Türe aus der Hand rutscht und die gegen die Dusche knallt. Ich habe sie z.b. nach außen öffnend, da auch auf der einen Seite die Dusche und auf der anderen Seite das WC ( -> Brett vorm Kopf), nur nach außen gibt dein Platz nicht her.
Ach so, ich würde auch mal behaupten das deine Luft-Wasser-Wärmepumpe mit 7kw deutlich überdimensioniert ist. Oder heisst es das deine Anlage bis 7kw inklusive ist? Ich habe auch wie beim Raumwunder nur 100 m2 aber eine Luft-Wasser-Wärmepumpe mit 4kw. Der Hausverkäufer hatte eine 6 kw eingeplant, aber bei der Bemusterung hatte die Planerin dann gemeint eine 4kw reicht völlig aus. Vielleicht ein Ansatz bei dir um noch etwas Kosten zu sparen bei einem kleineren Modell.
Ähnliche Themen