Hausbau - Ratgeber
Bauherrenhilfe
- Bauherrenhilfe vor Vertragsabschluss
-- Warum einen unabhängigen Baubetreuer?
-- Vertragsgrundlagen
-- Bausumme
-- Zahlungsplan zur Kostenkontrolle
-- Pflichten des Bauherren vor Vertragsabschluss
-- Unterlagen beim Hausbau vor Vertragsabschluss
- Bauherrenhilfe nach Vertragsabschluss
-- Bauantrag bei Behörden
-- Bau-Genehmigungsverfahren bei Baubehörden
-- Bauspezifische Versicherungen
-- Bauzeitenplan
-- Baubeginn - die Letzten Pflichten der Bauherrschaft
- Bauherrenhilfe während der Bauzeit
- Gewährleistungsansprüche
- Bauabnahme
Baufinanzierung
- Baufinanzierung - Allgemeine Fragen
- Kreditarten
- Kredit-Konditionen
- Bausparen
- Staatliche Förderungen
- Verkehrswert
- Haushaltsrechnung und Bonität
Hausbau Planung
- Haustypen
- Hausbau Vorbereitungsarbeiten
- Das Baugrundstück
- Baugrund beim Hausbau
- Baurecht
- Gebäudeschutz
- Erdarbeiten und Wasserhaltung
- Stützmauern
- Einfriedung
- Untergeschoss
- Kanalisation
- Tragende Elemente
- Nichttragende Innenwände
- Fundation / Fundament
- Deckenkonstruktionen
- Dächer
- Kaminanlagen
- Treppen Rampen Leitern
- Dachbeläge und Spengler
- Fenster
- Sonnen und Wetterschutz
- Aussenputze
- Einbauten, Küchen, Türen
- Bodenbeläge und Unterlagsböden
- Parkett
- Gips, Wand, Decke
Haustechnik und Energie
- Heiztechnik
- Lüftung und Klimatechnik
- Sanitärtechnik
- Elektrotechnik
- Erneuerbare Energie
Whirlpools / Jacuzzi
Hausbau Magazin
- Baufinanzierung trotz Krise?
- Das Blockhaus
- Moderne Dämmstoffe im Vergleich
- Erker Vor- und Nachteile
- Glasflächen beim Hausbau
- Günstig ein Haus Bauen
- Mediterraner Hausbaustil
- Mehrgenerationenhaus
- Moderne Architektur
- Gartengestaltung leicht gemacht
- Traditioneller Ziegelbau
- Villa als höchster Traum
- Im Eigenheim Ruhestand geniessen
- Altbau sanieren
- Kauf einer Holzgarage
- Immobilienmakler
- Arbeitshandschuhe für den Winter
- Zuhause verschönern
- Outdoor-Plissees
- Schlafzimmer planen
- Terrassenüberdachung
- Wohngebäudeversicherung
- Zaunarten und Eigenschaften
- Hauseingang gestalten
- Der perfekte Grundriss
- Sparsamer heizen im Altbau
- Einfamilienhaus smart finanzieren
- Planung einer PV-Anlage
- Neues Haus
- Immobilienfinanzierung
- Installation einer Photovoltaikanlage
- Asbest erkennen und entfernen
- Gartenpflege im Frühling – worauf achten
- Sauna im Fokus - Wellness zuhause
- Erfolgreich vermieten
- Die perfekte Winterbekleidung
- Das Niedrigenergiehaus
- Der April und seine Stürme
- Architektonische Vielfalt
- Ökologisch und nachhaltig bauen
- Das perfekte Schlafzimmer
- Nachhaltige Energieversorgung
- Zukunftsorientiert bauen
- Nachhaltigkeit beim Hausbau
- Tiny Houses
- Wärmepumpen als nachhaltige Heizvariante
- Maßgeschneiderten Kleiderschrank
- Der richtige Baukredit
- Ratgeber für erfolgreichen Hausbau
- Haus als Altersvorsorge
Do-it-yourself Anleitungen
- Verlegeanleitung für Bodenbeläge und Parkett
- Bodenbeläge und Parkett reinigen und pflegen
- Malerarbeiten am Haus
- Garten Tipps
- Umzug und Reinigung

ᐅ Bitte um Mitdenken bei Grundriss Einfamilienhaus

Erstellt am: 01.01.20 10:04
K
KlausKleister
K
KlausKleister
01.01.20 10:04
Liebes Forum,
bin bereits seit Jahren stiller Mitleser und bitte euch nun selbst um euer Mitdenken. Im Anhang seht ihr die Grundrisse sowie den Plan des Grundstücks. Wir sind im Großen und Ganzen zufrieden, jedoch völlige Laien und vielleicht auch auf manchem Auge blind. Die Herausforderung besteht bei uns darin, neben 3 Schlafzimmern noch Gästezimmer sowie Arbeitszimmer unterbringen zu müssen und dabei ohne Keller auch noch einen kleinen Abstellraum (zusätzlich zum Speicher) zu haben. Vielen Dank bereits im Voraus für eure kritischen Rückmeldungen.

Bebauungsplan
Größe des Grundstücks: ca. 700 m²
Hang: siehe Höhenlinien (Abstand zwischen Linien: 1 Meter)
Grundflächenzahl: 0,35
Geschossflächenzahl: 0,7
Geschossigkeit: 2 Vollgeschosse
Ausrichtung: siehe Plan (Anhang)
Traufhöhe: 6,5 Meter
Gebäudehöhe: 9,5 Meter

Anforderungen der Bauherren
Stilrichtung, Dachform, Gebäudetyp: Einfamilienhaus, einfach/klassisch, Satteldach
Keller, Geschosse: kein Keller (da Untergrundbelastung mit Arsen + Kupfer, erhöhte Entsorgungskosten), 2 Vollgeschosse
Personen: 2 Erwachsene, 2 Kleinkinder
Raumbedarf: 3 Schlafzimmer, Gästezimmer, Arbeitszimmer, Bad, Gästebad, Abstellraum (Wäsche, ...)
Büro: kleines Arbeitszimmer mit 2 Schreibtischen
Schlafgäste pro Jahr: mehrere Tage im Monat, auch mal viele Tage am Stück
offene oder geschlossene Architektur: geschlossen
konservativ oder moderne Bauweise: konservativ
offene Küche, Kochinsel: geschlossen
Anzahl Essplätze: 6-8
Garage, Carport: Carport

Hausentwurf
Von wem stammt die Planung: Architekt vom Bauunternehmen
Was gefällt besonders? Warum?
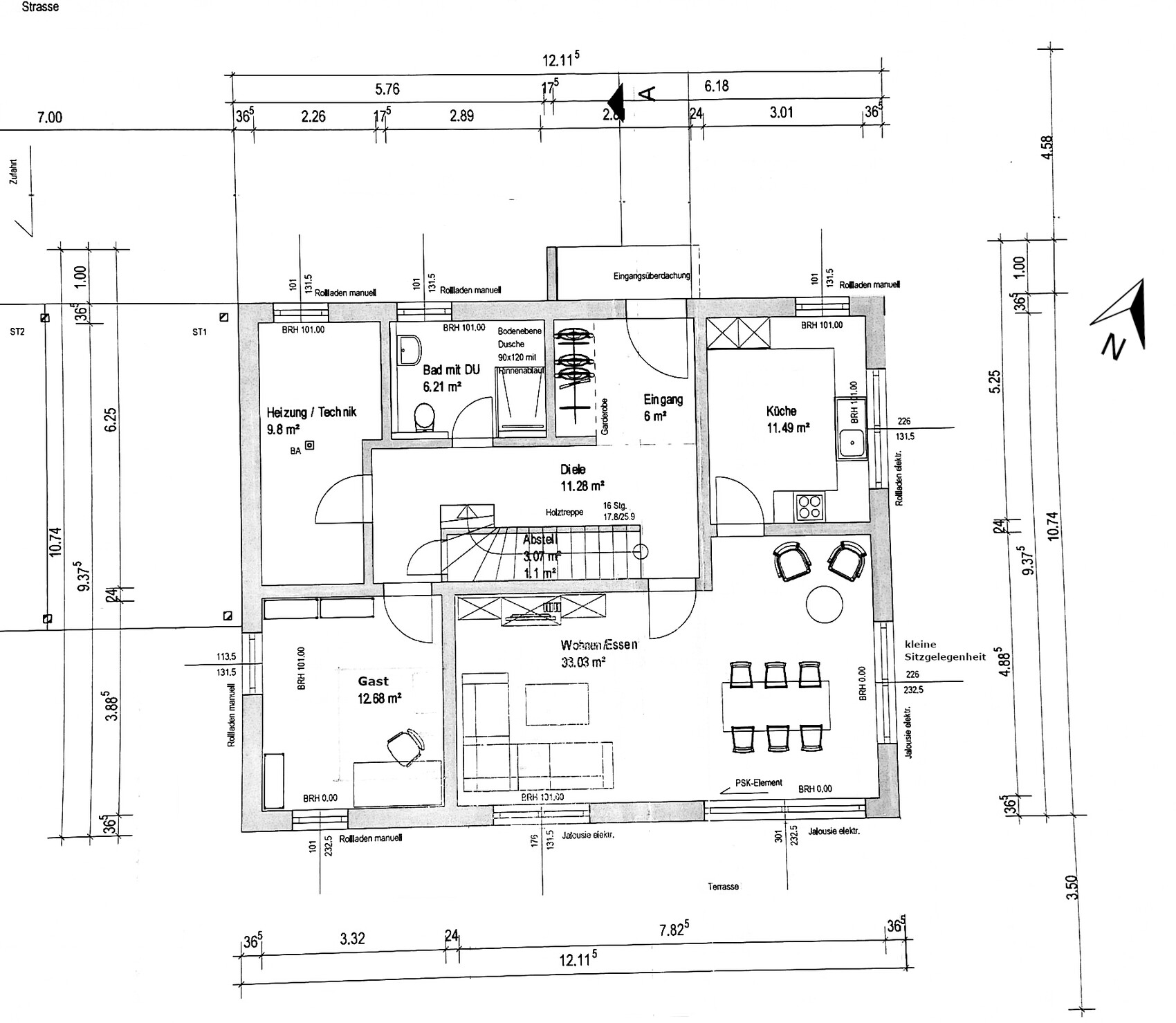
  • Unterbringung der gewünschten Räume (wenn auch auf Kosten größerer Erschließungsfläche eines inneliegenden Flures)
  • ... unentschlossen: Ausnutzung der Ost- und Südseite (kleine Sitzgelegenheit im Osten + Terrasse im Süden) gut, da wir früh aufstehen und früh schlafen gehen ODER evtl. Spiegelung des Grundrisses besser, da Eindruck, dass Süd-West-Ausrichtung stets "empfohlen" wird (?)
Was gefällt nicht? Warum?
  • dunkler Flur; hellerer Flur bei dem Raumprogramm vermutlich aber nur durch größere Grundfläche möglich oder Verlegung in Wohnbereich, was wir persönlich nicht wollen; daher: Fenster und Türen in Abstellraum, Büro, Wohnzimmer in einer Flucht anordnen, sodass ein klein bisschen Licht hineinkommen kann (?)
  • Zugang in Küche nur durch Wohnzimmer; hier evtl. zweite Tür (Schiebetür) vom Flur aus in die Küche und andere Tür ins Wohnzimmer hinein öffnen (?)
  • evtl. Zimmer für Gast an Technikraum ungeschickt, da zu laut (?)
  • evtl. Anordnung der Fenster in Kinderzimmern noch zu überarbeiten (?)
Preisschätzung lt. Architekt/Planer für Haus + Bodenplatte: bezugsfertig ca. 380.000 - 400.000 €
Heiztechnik: Luft-Wasser-Wärmepumpe

Grundriss eines Hauses mit Küche, Wohnzimmer, Bad, Gästezimmer und Eingangsbereich


Entwurfsplan: kurvige Asphaltbahn, Grasfläche, grüne Bäume, Maß 5,0 m, Nordpfeil


Grundriss eines Einfamilienhauses: Eltern, zwei Kinderzimmer, Bad, Diele, Arbeitsbereich, Treppe


Technischer Plan eines Speichers mit Innen- und Außenwand, Fläche 71,76 m².
G
goalkeeper
01.01.20 10:09
KlausKleister schrieb:

Untergrundbelastung mit Arsen + Kupfer, erhöhte Entsorgungskosten)

Könntest du hierzu bitte mal konkreter werden? Ab welcher Tiefe ist der Untergrund belastet und mit welcher Art von Arsen?
K
KlausKleister
01.01.20 10:20
goalkeeper schrieb:

Könntest du hierzu bitte mal konkreter werden? Ab welcher Tiefe ist der Untergrund belastet und mit welcher Art von Arsen?

Es gibt bislang nur ein Gutachten für das gesamte Baugebiet mit drei Schürfungen. Man geht von einer geogenen Imprägnierung des Gesteins mit Kupfer und arsenhaltigen Lösungen aus. Hinsichtlich des Abfallrechts sind relevante Belastungen >Z2 ab etwa einem halben Meter unter Gelände zu erwarten. Der Oberboden im Bereich des geplanten Baugebiets weist Arsengehalte im Prüfwertbereich für das Szenario Kinderspielflächen auf. Der Prüfwert für das Szenario Wohngebiete wird jedoch nicht tangiert. Empfohlen, aber nicht vorgeschrieben, wird, ohne Keller zu bauen und den Oberboden im Bereich der Baugrube abzuschieben und zur Wiederverwendung zu lagern.
tomtom7901.01.20 10:30
Die Treppe macht alle Zimmer kaputt jedes
Zimmer hat eine Ecke oder eine Einschränkung. Ich würde mildengesagt ab in die Tonne Damit.
K
KlausKleister
01.01.20 10:37
tomtom79 schrieb:

Die Treppe macht alle Zimmer kaputt jedes
Zimmer hat eine Ecke oder eine Einschränkung. Ich würde mildengesagt ab in die Tonne Damit.

Danke für deine ehrliche Rückmeldung! Dann deiner Meinung nach eher mit einer Treppe wie im Anhang planen (an Außenwand) und daran Grundriss neu ausrichten?

Draufsicht Grundrissplan mit spiralförmiger Treppe und Maßlinien
kaho67401.01.20 10:49
Bei der Größe sollte einiges möglich sein. Die Anordnung der Räume ist mir allerdings völlig schleierhaft. Die Küche sollte doch eher an die Terrasse als ein Gästezimmer, oder?
Wenn das das Ergebnis längerer Beratungsleistung ist, frag ich mich, ob Eure Wünsche so speziell sind oder der Planer so unmotiviert ist?
Ich würde von vorn anfangen.
gästezimmerkellerküchearbeitszimmerabstellraumflurwohnzimmervollgeschossekupfercarport