Bewertung Grundriss 3 Zi Wohnung

4,80 Stern(e) 4 Votes
Zuletzt aktualisiert 21.11.2025
Sie befinden sich auf der Seite 12 der Diskussion zum Thema: Bewertung Grundriss 3 Zi Wohnung
>> Zum 1. Beitrag <<

J

j.bautsch

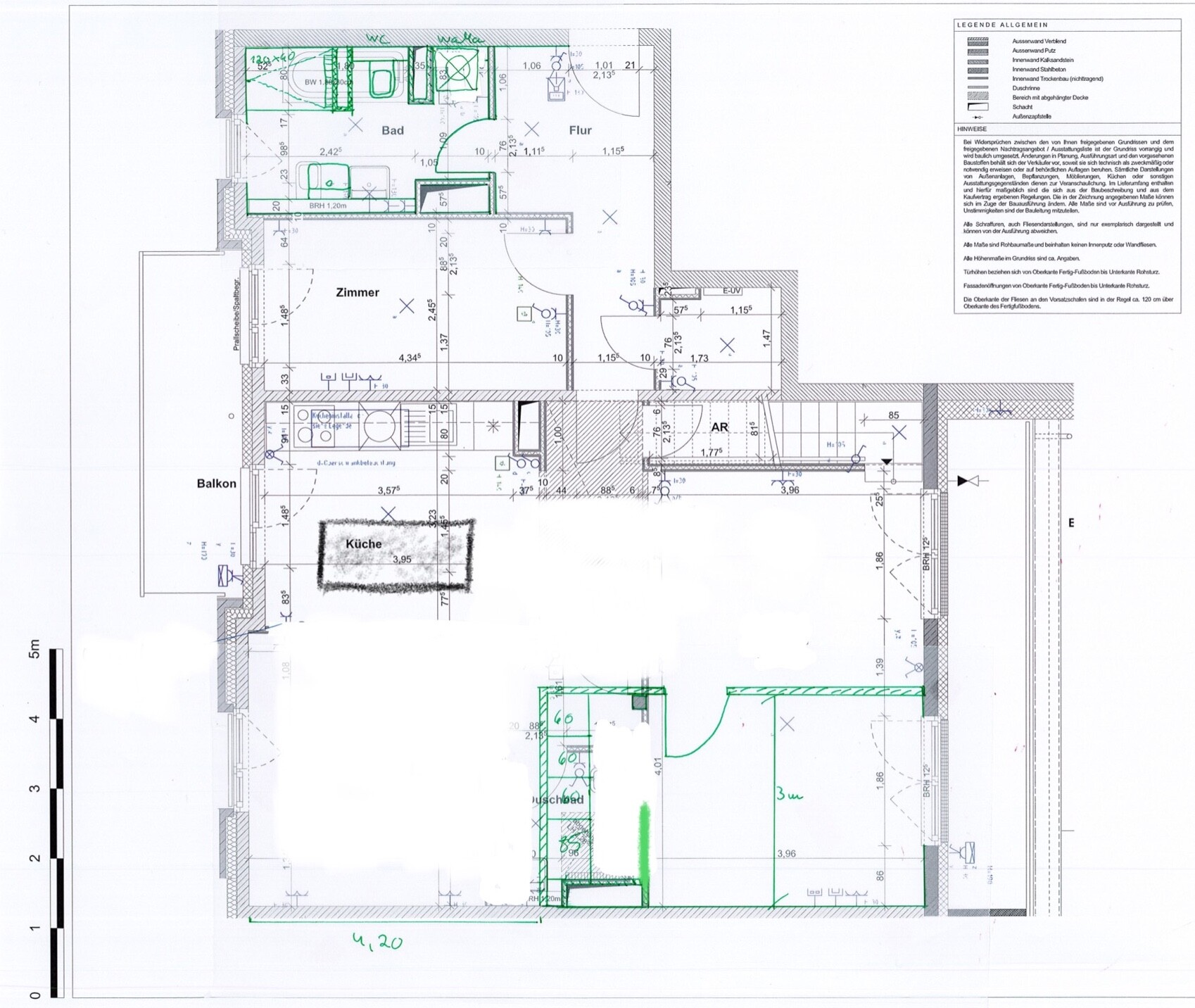
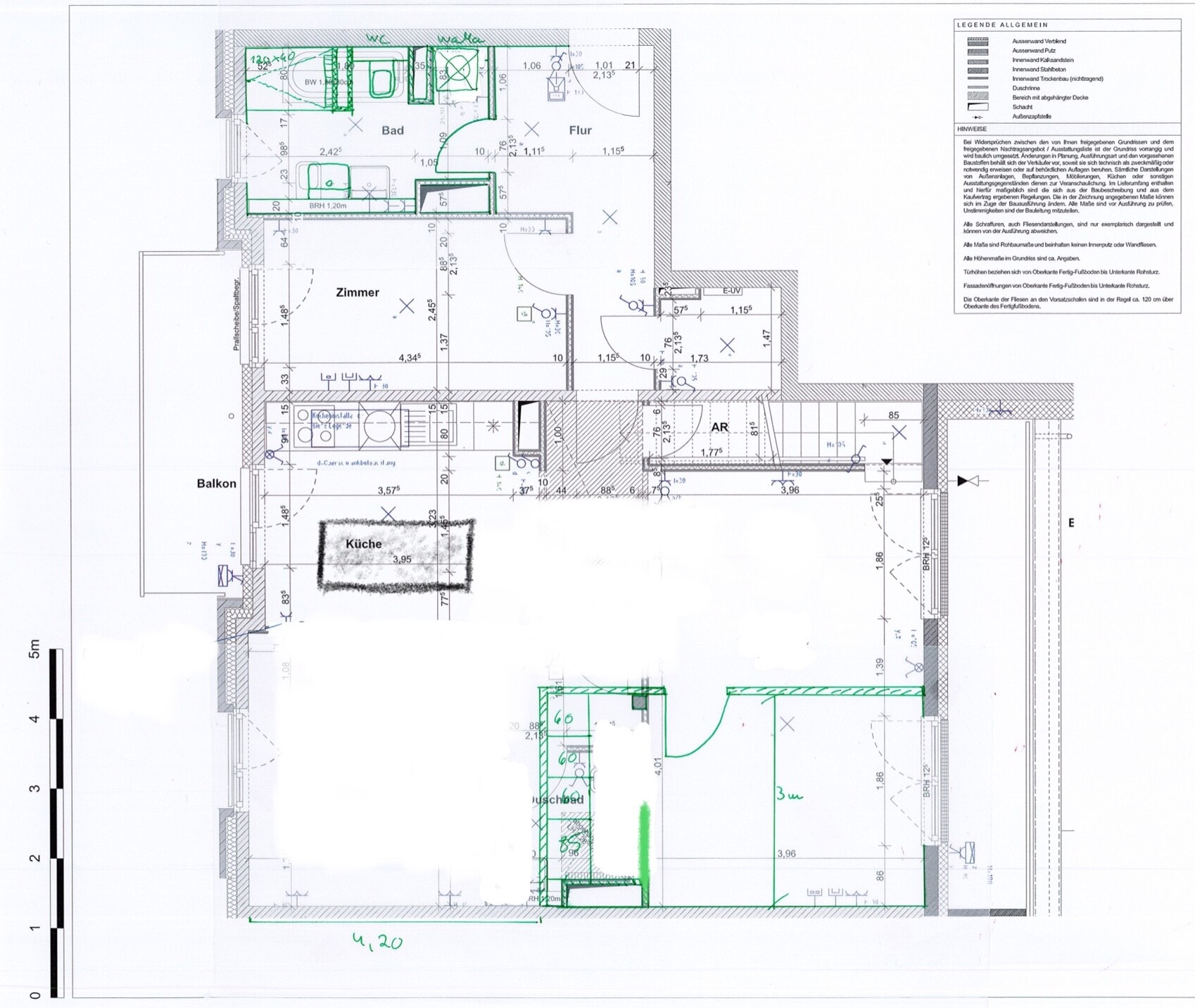
also eigentlich wird das mit dem "schlafen über ankleide" deshalb empfohlen weil man so nicht zwei mal durch Schlafzimmer muss beim aufstehen und einen noch potenziell schlafenden Partner weckt. beider kleinen ankleide würde eine weitere Tür aber sehr im weg stehen bzw weniger Stauraum bedeuten.
 
Y

ypg

also eigentlich wird das mit dem "schlafen über ankleide" deshalb empfohlen weil man so nicht zwei mal durch Schlafzimmer muss beim aufstehen und einen noch potenziell schlafenden Partner weckt. beider kleinen ankleide würde eine weitere Tür aber sehr im weg stehen bzw weniger Stauraum bedeuten.
Das Schlafzimmer wird für einen Bewohner gebaut. Eventuelle Gäste dürfen ausschlafen.
 
Zuletzt aktualisiert 21.11.2025
Im Forum Grundrissplanung / Grundstücksplanung gibt es 2535 Themen mit insgesamt 87982 Beiträgen


Ähnliche Themen zu Bewertung Grundriss 3 Zi Wohnung
Nr.ErgebnisBeiträge
1Pfiffige Schlafzimmer Idee mit Ankleide gesucht 19
2Grundriss Schlafzimmer, Ankleide und Bad en Suite - Seite 336
3Grundriss Schlafzimmer mit Bad und Ankleide 62
4Grundrissplanung - Wie Schlafzimmers & Ankleide anordnen? 11
5Waschmaschine und Trockner in Ankleide? 16
6Teppich im Schlafzimmer trotz Fußbodenheizung? 36
7Kinderzimmer und Schlafzimmer - Welche Größe ist zu empfehlen? - Seite 256
8Verbindung Schlafzimmer / Ankleidezimmer / Bad 16
9Durchbruch Bad und Ankleide ohne Türe? - Seite 212
10was für Farben für das Schlafzimmer ? 44
11Ankleide/Schlafzimmer Problem - Grundrissdiskussion 25
12Schlafzimmer auf der Südseite zu warm? 18
13Heizung Kinderzimmer,schlafzimmer und Bad 14
14Gestaltung Schlafzimmer 35
15Grundriss Elternbad und Durchgang zu Schlafzimmer 13
16Größe vom Schlafzimmer und Kinderzimmer - Seite 238
17Schlafzimmer warm im Haus mit Lüftung inkl. Wärmerückgewinnung 24
18Extra-Bad vom Schlafzimmer oder doch Abstellraum? 29
19Schaltung - Schlafzimmer - Deckenleuchte / Nachttischlampe 12
20Dachfenster im Schlafzimmer? 13

Oben