Hallo zusammen,
Ich würde mich über eine Einschätzung zu angehängtem Grundriss freuen (kein Haus!).
Ich weiß, dass das hier Hausbau-Forum heißt, vllt mag ja trotzdem jemand helfen
Da es sich um einen Neubau handelt, ist der Grundriss noch veränderbar.
Wo seht ihr Bedarf oder Schwächen des Grundriss?

Folgende Änderungen habe ich im Auge:
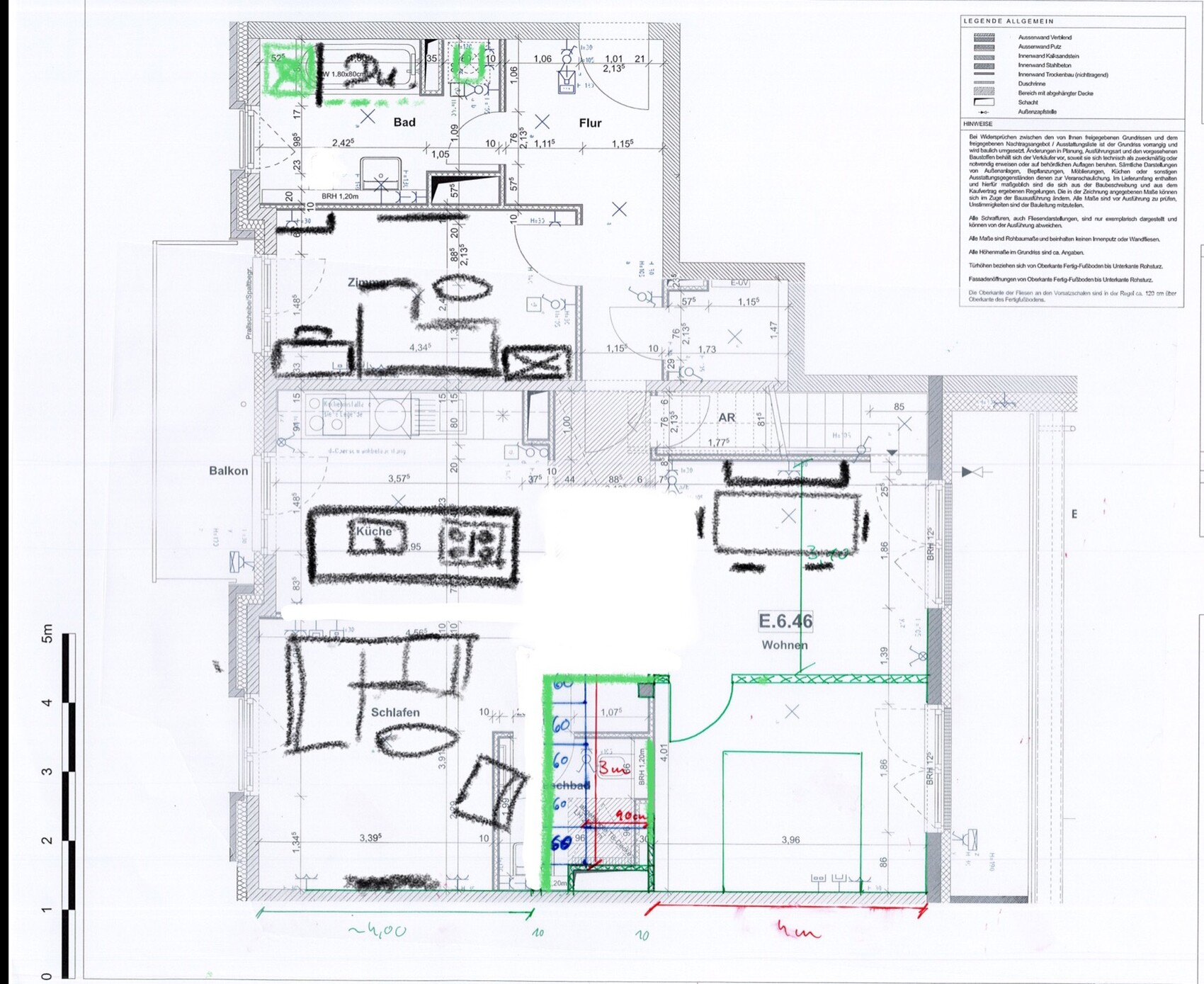
- Änderung Duschbad zu Gäste-WC (s. Bild unten), Vorteile: eigener Zugang und mehr Schrankfläche hinter der Tür im Schlafzimmer möglich
- Dusche im Bad unterbringen, ggf. auf Badewanne verzichten

Die Treppe hinter dem esstisch führt zu einer weiteren Dachterrasse auf dem Dach des Gebäudes.
Ich würde mich über eine Einschätzung zu angehängtem Grundriss freuen (kein Haus!).
Ich weiß, dass das hier Hausbau-Forum heißt, vllt mag ja trotzdem jemand helfen
Da es sich um einen Neubau handelt, ist der Grundriss noch veränderbar.
Wo seht ihr Bedarf oder Schwächen des Grundriss?
Folgende Änderungen habe ich im Auge:
- Änderung Duschbad zu Gäste-WC (s. Bild unten), Vorteile: eigener Zugang und mehr Schrankfläche hinter der Tür im Schlafzimmer möglich
- Dusche im Bad unterbringen, ggf. auf Badewanne verzichten
Die Treppe hinter dem esstisch führt zu einer weiteren Dachterrasse auf dem Dach des Gebäudes.
Wie viele Personen sollen die Wohnung nutzen?
Wenn du über darüber nachdenkst, im großen Bad Dusche/Wanne unterzubringen, dann muss die Wama einen Platz finden.
Da gibt es noch die Abstellkammer, dazu mal ein Ausschnitt aus dem Grundriss meiner Wohnung:

da sieht man im Flur auch eine kleine Abstellkammer. Dort ist der HKV, der Sicherungskasten, aber auch ein Wasseranschluss für meinen Waschtrockner.
Und, wie groß ist die Dachterrasse? Steht sie nur euch zur Verfügung, oder hat sie so Abteilungen, wo von weiteren Wohnungen dann auch Dachterrassen liegen?
Wohnzimmer ... unbedingt mal mit realistisch geplanten Sofamassen bestücken. Mir sieht das nämlich unpassend aus, wenn TV planunten ist. Da würde mir unter Umständen in den Kopf kommen, Sofa und TV in den geplanten Küchenbereich zu setzen und Küche in den eigentlich geplanten Wohnzimmerbereich.
Dort sind die Terrassenzugänge mit Stufe gekennzeichnet. Lasst euch sagen, ob das eine Stufe ist, die in den Raum ragt.
Geplante Änderung Schlafen/WC .. darauf achten, dass zwischen Schlafzimmertür und Wand planoben mind. 70 cm sind, damit ein Kleiderschrank dort auch richtig gut passt und der Schlafzimmereingang erhält ja auch noch eine Türzarge, die Platz von den 70 nimmt. Und im entstehenden WC darauf achten, dass man auf dem WC sitzend nicht mit dem Handwaschbecken in Kollision kommt. Evtl. überlegen die Tür von diesem WC nach außen aufgehen zu lassen, dann kann z. B. etwas mehr Abstand von WC/Waschbecken erstellt werden. Wobei du das ja auch schon eingezeichnet hast.
Wenn du über darüber nachdenkst, im großen Bad Dusche/Wanne unterzubringen, dann muss die Wama einen Platz finden.
Da gibt es noch die Abstellkammer, dazu mal ein Ausschnitt aus dem Grundriss meiner Wohnung:
da sieht man im Flur auch eine kleine Abstellkammer. Dort ist der HKV, der Sicherungskasten, aber auch ein Wasseranschluss für meinen Waschtrockner.
Und, wie groß ist die Dachterrasse? Steht sie nur euch zur Verfügung, oder hat sie so Abteilungen, wo von weiteren Wohnungen dann auch Dachterrassen liegen?
Wohnzimmer ... unbedingt mal mit realistisch geplanten Sofamassen bestücken. Mir sieht das nämlich unpassend aus, wenn TV planunten ist. Da würde mir unter Umständen in den Kopf kommen, Sofa und TV in den geplanten Küchenbereich zu setzen und Küche in den eigentlich geplanten Wohnzimmerbereich.
Dort sind die Terrassenzugänge mit Stufe gekennzeichnet. Lasst euch sagen, ob das eine Stufe ist, die in den Raum ragt.
Geplante Änderung Schlafen/WC .. darauf achten, dass zwischen Schlafzimmertür und Wand planoben mind. 70 cm sind, damit ein Kleiderschrank dort auch richtig gut passt und der Schlafzimmereingang erhält ja auch noch eine Türzarge, die Platz von den 70 nimmt. Und im entstehenden WC darauf achten, dass man auf dem WC sitzend nicht mit dem Handwaschbecken in Kollision kommt. Evtl. überlegen die Tür von diesem WC nach außen aufgehen zu lassen, dann kann z. B. etwas mehr Abstand von WC/Waschbecken erstellt werden. Wobei du das ja auch schon eingezeichnet hast.
Guten Morgen,
Danke für deine Einschätzung.
Die Wohnung ist für 2 Personen.
Die Dachterrasse hat ca. 30qm und gehört ausschließlich zu der Wohnung.
Das Gäste-WC entspricht den Maßen, die ich in meiner jetzigen Wohnung habe und ist ausreichend in der Breite. Die Tür muss auf jeden Fall nach außen aufgehen.
Für die Waschmaschine dachte ich evtl. an die Küche, falls ich nicht sowieso auf die Wanne verzichte.
Die Stufe im WZ ist notiert, danke!
Das WZ hat exakt dieselben Maße wie meine jetzige Wohnung, das hilft mir natürlich für die Vorstellungskraft. Daher weiß ich hier zum Glück, dass das gut passt.
Sehr ihr Möglichkeiten, das kleine Zimmer zu verbreitern? Wird dank der anscheinend tragenden Wand und der Balkontüren schwierig, oder?
Weiterer Punkt: Wirkt der Flur vllt etwas beengt durch die Verjüngung Richtung Wohnbereich?
Danke für deine Einschätzung.
Die Wohnung ist für 2 Personen.
Die Dachterrasse hat ca. 30qm und gehört ausschließlich zu der Wohnung.
Das Gäste-WC entspricht den Maßen, die ich in meiner jetzigen Wohnung habe und ist ausreichend in der Breite. Die Tür muss auf jeden Fall nach außen aufgehen.
Für die Waschmaschine dachte ich evtl. an die Küche, falls ich nicht sowieso auf die Wanne verzichte.
Die Stufe im WZ ist notiert, danke!
Das WZ hat exakt dieselben Maße wie meine jetzige Wohnung, das hilft mir natürlich für die Vorstellungskraft. Daher weiß ich hier zum Glück, dass das gut passt.
Sehr ihr Möglichkeiten, das kleine Zimmer zu verbreitern? Wird dank der anscheinend tragenden Wand und der Balkontüren schwierig, oder?
Weiterer Punkt: Wirkt der Flur vllt etwas beengt durch die Verjüngung Richtung Wohnbereich?
Wenn ich eines versuchen würde zu vermeiden, dann ist das die Waschmaschine in der Küche. Da muss dann entweder eine integrierte her oder man muss eine Schranksonderlösung basteln etc.
Die Sofaplanung im Wohnzimmer würde mich mal interessieren.
Habt ihr schon eine Vorstellung von der Küchenplanung? 330 cm sind für einen 2-Zeiler eigentlich schon fast zu breit. Ich würde über eine Insel nachdenken und mir schwebt da auch schon etwas vor.
Die Sofaplanung im Wohnzimmer würde mich mal interessieren.
Habt ihr schon eine Vorstellung von der Küchenplanung? 330 cm sind für einen 2-Zeiler eigentlich schon fast zu breit. Ich würde über eine Insel nachdenken und mir schwebt da auch schon etwas vor.
Ist das eigentlich ersatzweise für dieses Projekt: https://www.hausbau-forum.de/threads/nordterrasse-und-Küche-im-sueden-Feedback-erwuenscht.28750/ oder ist es ein zusätzliches Projekt? Wenn zusätzlich wäre ja auch spannend, wie es bei dem anderen weitergeht *rotwerd*
Ähnliche Themen