
mayglow
Jetzt geht's los! Nachdem es monatelanges Ringen mit der Stadt um die Baugenehmigung gab, liegt wohl jetzt eine Teilbaugenehmigung für den Keller vor und die Erdarbeiten haben begonnen! Hurray! Angeblich soll wohl auch noch diese Woche die richtige Baugenehmigung kommen, aber naja, das hat die Stadt in ähnlicher Form schon ein paar mal versprochen (aber die Wochen waren ja völlig überraschend so kurz) insofern glaube ich das erst, wenn ich es sehe. Bevor die volle Baugenehmigung da ist, müssen wir aber auch noch nichts zahlen.
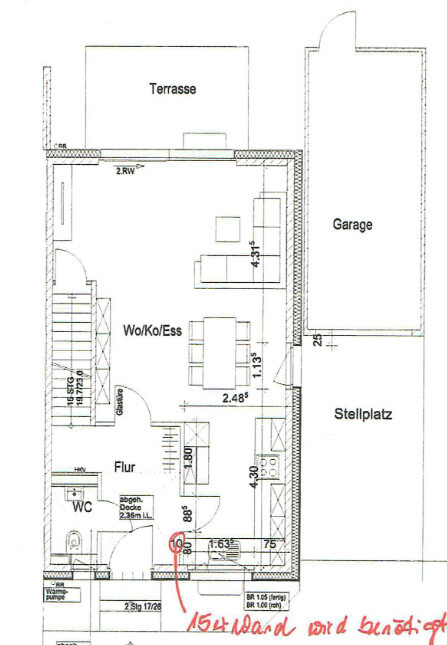
Ansonsten kostet uns das Fenster nen Arm und nen Bein, kriegt aber wohl wie alle anderen Fenster auch nen elektrischen Rollladen dazu und die Extratür+Flurumplanung sind dann nochmal drei Zehen obendrauf. (Summe für beides ~3.5k) Aber das machen wir jetzt so. Bestärkt uns aber auch darin, dass wir wohl ansonsten nicht extrem viel anpassen werden. Der Fernseher wird wohl irgend ne "kriegen wir schon irgendwie hin"-Lösung kriegen.
Dafür wurden wir informiert, dass wir wohl die Photovoltaik-Vorbereitung geschenkt kriegen. Sind zwar "nur" Leitungen vom Keller bis unters Dach, aber immerhin.
Ansonsten kostet uns das Fenster nen Arm und nen Bein, kriegt aber wohl wie alle anderen Fenster auch nen elektrischen Rollladen dazu und die Extratür+Flurumplanung sind dann nochmal drei Zehen obendrauf. (Summe für beides ~3.5k) Aber das machen wir jetzt so. Bestärkt uns aber auch darin, dass wir wohl ansonsten nicht extrem viel anpassen werden. Der Fernseher wird wohl irgend ne "kriegen wir schon irgendwie hin"-Lösung kriegen.
Dafür wurden wir informiert, dass wir wohl die Photovoltaik-Vorbereitung geschenkt kriegen. Sind zwar "nur" Leitungen vom Keller bis unters Dach, aber immerhin.