ypg schrieb:
Off Topic:
Zudem würde ich die Tür des TK-Raumes überdenken: ihr braucht eher den Zutritt im Eingangsbereich als von der Küchenseite.
Dreckschuhe etc. wollen irgendwo hin, ohne dass man vom Wohnbereich darauf schaut.
Zudem ist die Küche zu klein und eng. Für 2 Türen ist der TK-Raum zu klein. Und zur fehlenden Lagerfläche kann man statt Tür schön noch 90er Unterschrank und Arbeitsfläche in die Küche bringen.Interessante Anmerkung. Zum dem Schluss sind wir gestern auch gekommen, als wir die Küche in der 3D-Animation gesehen haben. Ist schon umgesetzt, reiche die aktuelle Version nach, wenn ich wieder zu Hause bin. Habt ihr noch weitere Anmerkungen zum Grundriss?
Wir rätseln immer noch hin und her, ob wir die Positionen von Küche und Wohnbereich tauschen. Eure Meinung?
Zum Bad haben wir im Sinne der Außenansicht auch einen neuen Entwurf. Kommt auch nachher noch dazu.
Padebau schrieb:
Habt ihr noch weitere Anmerkungen zum Grundriss?
Wir rätseln immer noch hin und her, ob wir die Positionen von Küche und Wohnbereich tauschen. Eure Meinung?Bitte nur mit ausgefülltem Fragebogen.https://www.hausbau-forum.de/threads/grundriss-planung-unbedingt-vor-beitrag-erstellung-lesen.11714/
Padebau schrieb:
Zum BadDa fehlen ja immer noch (das dritte mal angesprochen) die Maße!Padebau schrieb:
3D-AnimationDu hast jetzt nicht wirklich schon die Gardinen positioniert?Lass mal den Schnickschnack während der Planungsphase weg. Je mehr Du einsetzt, desto mehr windet man sich um Löschung und Neuanfang. Kann aber oft nötig sein, wenn man ins Detail geht - wie zb jetzt auch die TK-Tür.
Padebau schrieb:
Ich bin gerade dran, den Grundriss in eine Visualisierung zu überführen. Bemaßungen fehlen noch, die muss ich nachreichen.
Außenmaße des Hauses sind 10,63x9,37Weshalb zeigst Du die Planung nicht einfach, anstatt sie abzumalen? - Bemaßungen sind doch wohl enthalten, wenn man sie nicht abschneidet, oder hast Du nur Prospektbildchen eines Typenhauses?Die Abmalerei taugt nichts, ibs. weil die mit den Feinheiten der Software noch kämpfenden Fragesteller dabei regelmäßig Details weglassen, deren Bedeutung sie übersehen oder unterschätzen. Dann diskutiert die Community etwas, das nachher in der Wirklichkeit nicht paßt. Ganz schlichte Fotos von den Originalplänen sind am besten, und jede Kulikritzelei auf Karopapier taugt mehr als irgendwelche Computer-Klötzchengrafiken.
https://www.instagram.com/11antgmxde/
https://www.linkedin.com/company/bauen-jetzt/
Da habt ihr natürlich vollkommen recht, dass ich noch einiges an Informationen schuldig bin - daher hier nun nochmal zusammengefasst:
Bebauungsplan/Einschränkungen
Größe des Grundstücks: 700 m²
Hang: nicht vorhanden
Grundflächenzahl: 0,3
Geschossflächenzahl: nicht definiert
Baufenster, Baulinie und -grenze: 3m zu den Grundstücksgrenzen sind einzuhalten
Randbebauung: ---
Anzahl Stellplatz: 2
Geschossigkeit: 2
Dachform: Walmdach
Stilrichtung: moderne Stadtvilla
Ausrichtung: s. Nordpfeil
Maximale Höhen/Begrenzungen: ---
weitere Vorgaben
Anforderungen der Bauherren
Stilrichtung, Dachform, Gebäudetyp: Stadtvilla, modern
Keller, Geschosse: kein Keller, 2 Vollgeschosse
Anzahl der Personen, Alter: 2+1 (34, 32, 1)
Raumbedarf im EG, OG: EG: Diele, Gäste-WC mit Dusche, Büro/Gästezimmer, Hauswirtschaftsraum, Wohnen/Essen/Küche; OG: Schlafzimmer, 2 Kinderzimmer, Bad
Büro: Familiennutzung oder Homeoffice?: mindestens einer ist in der Regel in der Mobilarbeit tätig
Schlafgäste pro Jahr: ---
offene oder geschlossene Architektur: offene Architektur gewünscht
konservativ oder moderne Bauweise: modern bevorzugt
offene Küche, Kochinsel: ja
Anzahl Essplätze: 6
Kamin: nein
Musik/Stereowand: nein
Balkon, Dachterrasse: nein
Garage, Carport: Carport in Eigenleistung geplant
Nutzgarten, Treibhaus: ---
weitere Wünsche/Besonderheiten/Tagesablauf, gern auch Begründungen, warum dieses oder das nicht sein soll: offenes Raumkonzept, viel Licht!
Hausentwurf
Von wem stammt die Planung: Planer eines Bauunternehmens + Do-it-Yourself Anpassungen
Was gefällt besonders? Warum?: offener Wohn-Ess/Küchenbereich; gerade Treppe; viele Licht / bodentiefe Fenster; separater Bereich für die kleiderschränke; gleichwertige Kinderzimmer (mittelfristig zweites Kind geplant)
Was gefällt nicht? Warum?: Bad-Layout noch unklar; "offener" Garderobenbereich im Flur
Preisschätzung laut Architekt/Planer: ca. 450k
Persönliches Preislimit fürs Haus, inkl. Ausstattung: ---
favorisierte Heiztechnik: Luft-Wasser-Wärmepumpe
Warum ist der Entwurf so geworden, wie er jetzt ist?
Standardgrundriss von mehreren Hausanbietern mit eigenen Anforderungen ergänzt
--------------------------------------------------------------------------------------------------------------------------
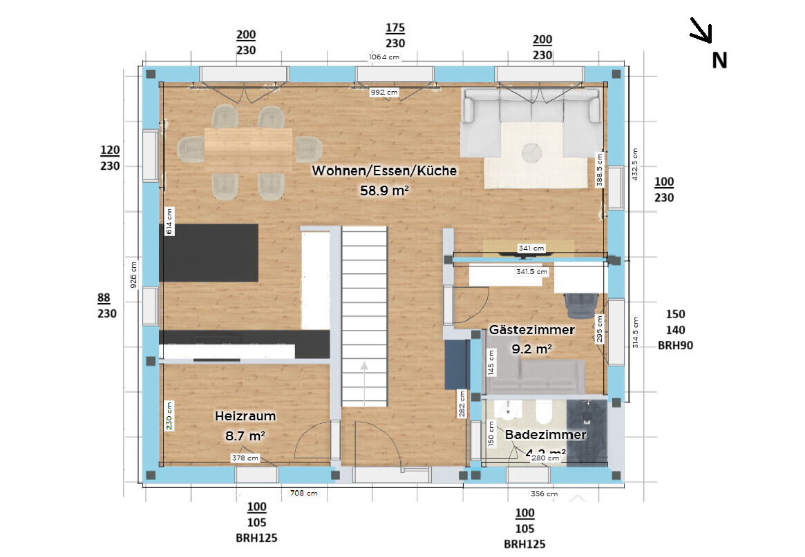
Anbei nun der letzte Grundrissentwurf mit Maßangaben - leider aus dem Visualisierungstool heraus, daher nicht mit sauberen Maßketten. Die wesentlichen Abmessungen sind aber enthalten. Ich hoffe das reicht für eine erste Bewertung.
Wie gesagt sind wir generell an euren Anmerkungen interessiert. Die Tür zum Hauswirtschaftsraum wurde bereits geändert. Das Bad hat sich auch nochmal geändert, um die Außenansicht vorne harmonischer zu gestalten.
Größte Fragepunkte unsererseits:
1) Bad-Layout
2) Wohnzimmer und Küche von der Position tauschen oder nicht.
Besten Dank und liebe Grüße!


Bebauungsplan/Einschränkungen
Größe des Grundstücks: 700 m²
Hang: nicht vorhanden
Grundflächenzahl: 0,3
Geschossflächenzahl: nicht definiert
Baufenster, Baulinie und -grenze: 3m zu den Grundstücksgrenzen sind einzuhalten
Randbebauung: ---
Anzahl Stellplatz: 2
Geschossigkeit: 2
Dachform: Walmdach
Stilrichtung: moderne Stadtvilla
Ausrichtung: s. Nordpfeil
Maximale Höhen/Begrenzungen: ---
weitere Vorgaben
Anforderungen der Bauherren
Stilrichtung, Dachform, Gebäudetyp: Stadtvilla, modern
Keller, Geschosse: kein Keller, 2 Vollgeschosse
Anzahl der Personen, Alter: 2+1 (34, 32, 1)
Raumbedarf im EG, OG: EG: Diele, Gäste-WC mit Dusche, Büro/Gästezimmer, Hauswirtschaftsraum, Wohnen/Essen/Küche; OG: Schlafzimmer, 2 Kinderzimmer, Bad
Büro: Familiennutzung oder Homeoffice?: mindestens einer ist in der Regel in der Mobilarbeit tätig
Schlafgäste pro Jahr: ---
offene oder geschlossene Architektur: offene Architektur gewünscht
konservativ oder moderne Bauweise: modern bevorzugt
offene Küche, Kochinsel: ja
Anzahl Essplätze: 6
Kamin: nein
Musik/Stereowand: nein
Balkon, Dachterrasse: nein
Garage, Carport: Carport in Eigenleistung geplant
Nutzgarten, Treibhaus: ---
weitere Wünsche/Besonderheiten/Tagesablauf, gern auch Begründungen, warum dieses oder das nicht sein soll: offenes Raumkonzept, viel Licht!
Hausentwurf
Von wem stammt die Planung: Planer eines Bauunternehmens + Do-it-Yourself Anpassungen
Was gefällt besonders? Warum?: offener Wohn-Ess/Küchenbereich; gerade Treppe; viele Licht / bodentiefe Fenster; separater Bereich für die kleiderschränke; gleichwertige Kinderzimmer (mittelfristig zweites Kind geplant)
Was gefällt nicht? Warum?: Bad-Layout noch unklar; "offener" Garderobenbereich im Flur
Preisschätzung laut Architekt/Planer: ca. 450k
Persönliches Preislimit fürs Haus, inkl. Ausstattung: ---
favorisierte Heiztechnik: Luft-Wasser-Wärmepumpe
Warum ist der Entwurf so geworden, wie er jetzt ist?
Standardgrundriss von mehreren Hausanbietern mit eigenen Anforderungen ergänzt
--------------------------------------------------------------------------------------------------------------------------
Anbei nun der letzte Grundrissentwurf mit Maßangaben - leider aus dem Visualisierungstool heraus, daher nicht mit sauberen Maßketten. Die wesentlichen Abmessungen sind aber enthalten. Ich hoffe das reicht für eine erste Bewertung.
Wie gesagt sind wir generell an euren Anmerkungen interessiert. Die Tür zum Hauswirtschaftsraum wurde bereits geändert. Das Bad hat sich auch nochmal geändert, um die Außenansicht vorne harmonischer zu gestalten.
Größte Fragepunkte unsererseits:
1) Bad-Layout
2) Wohnzimmer und Küche von der Position tauschen oder nicht.
Besten Dank und liebe Grüße!
Padebau schrieb:
leider aus dem Visualisierungstool herausWenn Du einen Screenshot aus dem Programm machst, dann kannst Du auch Maße anwählen, die dann angezeigt werden.Magst Du noch Grundstück mit Straße und Ausrichtung des Hauses darauf nachreichen?
Ähnliche Themen