Hallo zusammen,
meine Freundin und ich stecken gerade tief in der Planung unseres Neubaus (Stadtvilla, ca. 185qm, ohne Keller). Grundstück (521qm) ist vorhanden, ein Bauträger (Heinz von Heiden) ist auch gefunden.
Das tatsächliche Architektengespräch zur konkreten Planung wird erst im kommenden Jahr stattfinden. Wir haben aktuell nur einen Entwurf, den wir gemeinsam mit dem Vertriebler aufgesetzt haben.
Gerne würden wir von Euch / Ihnen Feedback bekommen, ob wir in der Planung grobe Schnitzer drin haben oder ob es vielleicht noch kleinere Verbesserungsvorschläge gibt.
Im Kern sind unsere Überlegungen wie folgt:
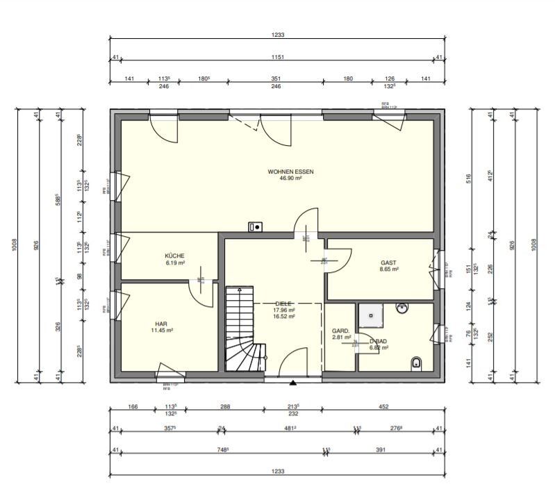
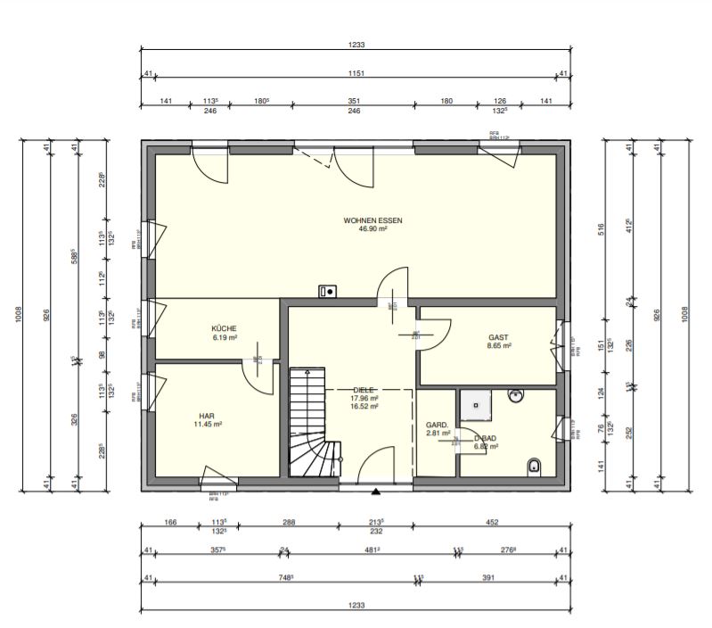
- Wohn-/Ess-/Küche soll zusammenhängend und nicht zu eng sein (~53 qm)
- Galerie im Eingangsbereich als kleines optisches Highlight ist uns wichtig
- Elternschlafzimmer mit relativ großer Ankleide im OG
- 2 Kinderzimmer
- kleineres Arbeitszimmer im EG, soll im Fall der Fälle auch als 3. Kinderzimmer genutzt werden
- großes Badezimmer für Eltern und Kinder im OG, aber auch Dusch-/WC im EG für Gäste und als Ausweichoption, wenn die Kinder größer werden
- Dachboden wird nicht ausgebaut (25° Dach), sondern soll nur als Stauraum dienen (Einschubtreppe ist vorhanden)
- Hauswirtschaftsraum mit 11qm sollte ausreichend groß sein, um Luftwärmepumpe, Wasserspeicher, Lüftungsanlage sowie Waschmaschine, Trockner und Wasserkästen unterzubringen
Folgende offene Punkte haben wir allerdings auch noch:
- Betontreppe mit Abstellraum unten drunter einrichten?
- Speisekammer an die Küche setzen (und damit einen Teil des Flurs dafür opfern)?
- Ist der Flur im EG zu groß mit knapp 21qm? Wo könnte man sinnvoll noch Raum gewinnen?
Vielen Dank und beste Grüße
Julian


meine Freundin und ich stecken gerade tief in der Planung unseres Neubaus (Stadtvilla, ca. 185qm, ohne Keller). Grundstück (521qm) ist vorhanden, ein Bauträger (Heinz von Heiden) ist auch gefunden.
Das tatsächliche Architektengespräch zur konkreten Planung wird erst im kommenden Jahr stattfinden. Wir haben aktuell nur einen Entwurf, den wir gemeinsam mit dem Vertriebler aufgesetzt haben.
Gerne würden wir von Euch / Ihnen Feedback bekommen, ob wir in der Planung grobe Schnitzer drin haben oder ob es vielleicht noch kleinere Verbesserungsvorschläge gibt.
Im Kern sind unsere Überlegungen wie folgt:
- Wohn-/Ess-/Küche soll zusammenhängend und nicht zu eng sein (~53 qm)
- Galerie im Eingangsbereich als kleines optisches Highlight ist uns wichtig
- Elternschlafzimmer mit relativ großer Ankleide im OG
- 2 Kinderzimmer
- kleineres Arbeitszimmer im EG, soll im Fall der Fälle auch als 3. Kinderzimmer genutzt werden
- großes Badezimmer für Eltern und Kinder im OG, aber auch Dusch-/WC im EG für Gäste und als Ausweichoption, wenn die Kinder größer werden
- Dachboden wird nicht ausgebaut (25° Dach), sondern soll nur als Stauraum dienen (Einschubtreppe ist vorhanden)
- Hauswirtschaftsraum mit 11qm sollte ausreichend groß sein, um Luftwärmepumpe, Wasserspeicher, Lüftungsanlage sowie Waschmaschine, Trockner und Wasserkästen unterzubringen
Folgende offene Punkte haben wir allerdings auch noch:
- Betontreppe mit Abstellraum unten drunter einrichten?
- Speisekammer an die Küche setzen (und damit einen Teil des Flurs dafür opfern)?
- Ist der Flur im EG zu groß mit knapp 21qm? Wo könnte man sinnvoll noch Raum gewinnen?
Vielen Dank und beste Grüße
Julian
Hier noch ein Nachtrag, da ich den Post zur Struktur überlesen hatte:
Bebauungsplan/Einschränkungen
Größe des Grundstücks: 521qm
Hang: nein
Geschossflächenzahl: 0,4
Baufenster, Baulinie und -grenze: vorhanden, für Grundriss hier aber irrelevant
Randbebauung: nein
Anzahl Stellplatz: keine
Geschossigkeit: 2
Dachform: keine
Stilrichtung: keine
Maximale Höhen/Begrenzungen: 2 Vollgeschosse
Anforderungen der Bauherren
Stilrichtung, Dachform, Gebäudetyp: Stadtvilla
Keller, Geschosse: 2 Vollgeschosse, kein Keller
Anzahl der Personen, Alter: 2 (27 & 32)
Raumbedarf im EG, OG: 5 Zimmer
Büro: nicht als permanentes Home Office vorgesehen, Schlafmöglichkeit sollte auch vorhanden sein
Schlafgäste pro Jahr: 5
offene oder geschlossene Architektur: offen
konservativ oder moderne Bauweise: modern
offene Küche, Kochinsel: Küche noch nicht geplant
Anzahl Essplätze: 6-8
Kamin: ja, Ort noch offen
Musik/Stereowand: nein
Balkon, Dachterrasse: nein
Garage, Carport: ja, Garage
Nutzgarten, Treibhaus: nein
Hausentwurf
Von wem stammt die Planung: Planer eines Bauunternehmens
Was gefällt besonders? Galerie, großes Bad im OG, großes Ankleidezimmer
Preisschätzung lt Architekt/Planer: 370k EUR reine Baukosten
Persönliches Preislimit fürs Haus, inkl Ausstattung: 400k EUR
favorisierte Heiztechnik: Luft-Wasser-Wärmepumpe
Wenn Ihr verzichten müsst, auf welche Details/Ausbauten
- Flur im EG könnte kleiner werden
Warum ist der Entwurf so geworden, wie er jetzt ist? ZB
- Standardentwurf mit kleineren Anpassungen durch uns
Bebauungsplan/Einschränkungen
Größe des Grundstücks: 521qm
Hang: nein
Geschossflächenzahl: 0,4
Baufenster, Baulinie und -grenze: vorhanden, für Grundriss hier aber irrelevant
Randbebauung: nein
Anzahl Stellplatz: keine
Geschossigkeit: 2
Dachform: keine
Stilrichtung: keine
Maximale Höhen/Begrenzungen: 2 Vollgeschosse
Anforderungen der Bauherren
Stilrichtung, Dachform, Gebäudetyp: Stadtvilla
Keller, Geschosse: 2 Vollgeschosse, kein Keller
Anzahl der Personen, Alter: 2 (27 & 32)
Raumbedarf im EG, OG: 5 Zimmer
Büro: nicht als permanentes Home Office vorgesehen, Schlafmöglichkeit sollte auch vorhanden sein
Schlafgäste pro Jahr: 5
offene oder geschlossene Architektur: offen
konservativ oder moderne Bauweise: modern
offene Küche, Kochinsel: Küche noch nicht geplant
Anzahl Essplätze: 6-8
Kamin: ja, Ort noch offen
Musik/Stereowand: nein
Balkon, Dachterrasse: nein
Garage, Carport: ja, Garage
Nutzgarten, Treibhaus: nein
Hausentwurf
Von wem stammt die Planung: Planer eines Bauunternehmens
Was gefällt besonders? Galerie, großes Bad im OG, großes Ankleidezimmer
Preisschätzung lt Architekt/Planer: 370k EUR reine Baukosten
Persönliches Preislimit fürs Haus, inkl Ausstattung: 400k EUR
favorisierte Heiztechnik: Luft-Wasser-Wärmepumpe
Wenn Ihr verzichten müsst, auf welche Details/Ausbauten
- Flur im EG könnte kleiner werden
Warum ist der Entwurf so geworden, wie er jetzt ist? ZB
- Standardentwurf mit kleineren Anpassungen durch uns
haydee schrieb:
Das Haus ist zu Groß für euer Budget.
Zu dem Angebot kommen noch Aufmusterungen
alle Kosten bauseits
alle nicht genannten Kosten
BaunebenkostenWir haben 135 TEUR für alles abseits der Baukosten vorgesehen.55.000 für Bauantrag, Erdarbeiten, Anschlusskosten, Vermessung, Baustrom-/wasser
15.000 Garage
22500 Maler und Bodenarbeiten
15.000 Aufmusterung
20.000 Außenanlagen
7.500 Einrichtung
Küche bekommen wir freundlicherweise von unseren Eltern geschenkt. Kfw Zuschuss von 26 TEUR ist auch noch nicht eingerechnet. Damit fühlen wir uns eigentlich sehr wohl.
B
Bauenaberwie23.12.21 08:18BKB1989 schrieb:
Wir haben 135 TEUR für alles abseits der Baukosten vorgesehen.
55.000 für Bauantrag, Erdarbeiten, Anschlusskosten, Vermessung, Baustrom-/wasser
15.000 Garage
22500 Maler und Bodenarbeiten
15.000 Aufmusterung
20.000 Außenanlagen
7.500 Einrichtung
Küche bekommen wir freundlicherweise von unseren Eltern geschenkt. Kfw Zuschuss von 26 TEUR ist auch noch nicht eingerechnet. Damit fühlen wir uns eigentlich sehr wohl.Klingt solide 🙂 Sofern es nicht ein katastrophaler Boden ist sind das schon gut geschätzte Zahlen 🙂 Aber beim Hauspreis kann ich es kaum glauben. Bei 12x10 reden wir von etwa 200qm2 Wohnfläche. Selbst bei extrem „günstigen“ 2000€/qm2 seid ihr bei 400.000. Und bei der Hausgröße reichen dann selten 15k für die Aufmusterung. Das kannst du fast allein für die Elektrik dazu schiessen :/
V
vonBYnachSH23.12.21 08:21Es scheint mir, als wäret Ihr noch sehr am Anfang und hättet Euch mit dem Thema Grundriss zu wenig auseinandergesetzt. Ein paar grobe Sachen, die sofort auffallen (hat Heinz von Heiden tatsächlich so einen Grundriss im Angebot?) :
+ wenn das Gästezimmer im EG ein Kinderzimmer werden soll, ist es viel zu klein. Mit 8qm sowieso nicht wirklich als Gästezimmer möblierbar
+ Hauswirtschaftsraum nur über Küche begehbar - wollt Ihr wirklich die Wäsche jedes Mal durch die Küche tragen? Die Türe stört zudem massiv in der Küche
+ Treppe direkt beim Eingang: überlegt Euch, ob Ihr das wollt, Thema Matsch direkt nach oben tragen (wird vor allem mit Kindern und deren Freunden relevant)
+ mit der Toilette im EG ist es übrigens das gleiche: schmutzige Schuhe werden in der Garderobe abgestellt und dann muss man jedes Mal durch zur Toilette
+ Bad im OG ist sehr sehr groß, dafür fehlt Abstellraum
+ wenn Ihr nachts zur Toilette müsst, ist es eine halbe Weltreise
Dies alles jetzt nur auf die Schnelle, mein Tipp, schaut Euch nochmal viele weitere Grundrisse an, bei der Größe ist viel machbar!
+ wenn das Gästezimmer im EG ein Kinderzimmer werden soll, ist es viel zu klein. Mit 8qm sowieso nicht wirklich als Gästezimmer möblierbar
+ Hauswirtschaftsraum nur über Küche begehbar - wollt Ihr wirklich die Wäsche jedes Mal durch die Küche tragen? Die Türe stört zudem massiv in der Küche
+ Treppe direkt beim Eingang: überlegt Euch, ob Ihr das wollt, Thema Matsch direkt nach oben tragen (wird vor allem mit Kindern und deren Freunden relevant)
+ mit der Toilette im EG ist es übrigens das gleiche: schmutzige Schuhe werden in der Garderobe abgestellt und dann muss man jedes Mal durch zur Toilette
+ Bad im OG ist sehr sehr groß, dafür fehlt Abstellraum
+ wenn Ihr nachts zur Toilette müsst, ist es eine halbe Weltreise
Dies alles jetzt nur auf die Schnelle, mein Tipp, schaut Euch nochmal viele weitere Grundrisse an, bei der Größe ist viel machbar!
Ähnliche Themen