Guten Morgen,
wir haben uns ein Grundstück mit Altbestand gekauft und sind schon seit einiger Zeit am planen, haben schon 2 Archit Entwürfe,
aber irgendwie sind beide noch nicht rund.
Abriss ist schon eingetütet. Bestand mit Keller zu klein und Material bietet keine Basis dazu
zur Einordnung, Nummer 33 ist es geworden
1100m²
20m Grundstücksbreite
Eckdaten Bebauungsplan (1967!):
1 Vollgeschoss, DachN 0-25°
genordetes Bild, Garten also mit Westausrichtung

Höhenplan mit halbmeter Rissen



Nachbar hat schon auf 2 Vollgeschosse aufgestockt, wenn der Keller nachher kein Keller mehr wäre - kein Problem denke ich


wir sind 40-44 Jahre mit 2 Kids (6+10)
Wunsch wäre ein "Bungalow" mit Wohnkeller
im Wohnkeller die Kids + Funktionsräume
der soll später abtrennbar und als eigenständige Wohnung funktionieren (für Kids oder zur Vermietung)
ein Wunsch war, nach Möglichkeit trocken und eben aus der Garage ins Haus zu gelangen
Meine Frau möchte neben der Haustür einen Gardenraum für Jacken Schuhe, Schulranzen etc etc
alles Dinge, die in unserer aktuellen Wohnung mit offenem Eingangsbereich immer im Weg liegen
hier eine Variante mit split Eingang, dieser ist tiefergewandert damit wir für die Garage keine Unterschrift vom Nachbarn benötigen (höhe 3m max höchste Stelle)
wir überlegen auch schon den Eingang nach unten zu verlegen, dort zu trennen und eine Option schaffen über Umbau/Auffahr) vor dem Haus ggfls barrierearm einen Zugang zum EG zu schaffen

unsere Gedanken dazu, wir gehen nochmal in eine weitere Runde mit ihm, würden uns aber über Feedback zu unseren Gedanken freuen
wir möchten keine Süd Terrasse, wenn wir Sonne möchten gehen wir in den Garten
überdachte Sitzecke EG gerne auf Nord/West, damit man es im Sommer auch dort aushält, falls Eingang unten oder Garagen dort hin kämen, könnte man die teilweise ja als Terrasse nutzen(?)
Garage kann ich mittlerweile aber auch drauf verzichten, Carport wäre ok und hätte den Vorteil, dass das Dach mit der Schräge laufen könnte neben dem Haus
Wir möchten ein abgetrenntes Wohnzimmer (wurde nicht berücksichtigt), da es im Alltag als TV Zimmer dient und daher nur Abends genutzt wird.
Dreh und Angelpunkt ist und soll die Wohnküche bleiben, mit gemütlicher Sitzbank/Eckbank wo auch ma Platz für 12 Personen + ist.
Wenn ich den Grundriss auf das Grundstück projiziere und sehe, wo wir durch die Fenster hinschauen, gefällt uns das irgendwie nicht
vom Garten ist quasi nichts zu sehen, der Blick geht nur zum Nachbarn und dessen "Gestrüpp" vor der Tür.
Optisch gefallen uns die Regnauer Häuser mit außen Umlauf ganz gut, diese sind mit entspr. Dachüberstand im Sommer auch als nat Sonnen-Hitzeschutz nützlich
Freue mich auf Feedback, wissend das wir noch ganz am Anfang stehen und selbst sehr unentschlossen bezüglich vielen Grundsatzfragen sind (was uns noch vom 2. Termin beim Architekten irgendwie abhält, aber wir kommen selbst irgendwie nicht weiter. 2 Blöcke mit Skizzen sind durch, aber der AhA Moment hat noch gefehlt
der Architekten Entwurf wurde extra ohne Input einer Grundrissidee unsererseits gestartet.
mfg
wir haben uns ein Grundstück mit Altbestand gekauft und sind schon seit einiger Zeit am planen, haben schon 2 Archit Entwürfe,
aber irgendwie sind beide noch nicht rund.
Abriss ist schon eingetütet. Bestand mit Keller zu klein und Material bietet keine Basis dazu
zur Einordnung, Nummer 33 ist es geworden
1100m²
20m Grundstücksbreite
Eckdaten Bebauungsplan (1967!):
1 Vollgeschoss, DachN 0-25°
genordetes Bild, Garten also mit Westausrichtung
Höhenplan mit halbmeter Rissen
Nachbar hat schon auf 2 Vollgeschosse aufgestockt, wenn der Keller nachher kein Keller mehr wäre - kein Problem denke ich
wir sind 40-44 Jahre mit 2 Kids (6+10)
Wunsch wäre ein "Bungalow" mit Wohnkeller
im Wohnkeller die Kids + Funktionsräume
der soll später abtrennbar und als eigenständige Wohnung funktionieren (für Kids oder zur Vermietung)
ein Wunsch war, nach Möglichkeit trocken und eben aus der Garage ins Haus zu gelangen
Meine Frau möchte neben der Haustür einen Gardenraum für Jacken Schuhe, Schulranzen etc etc
alles Dinge, die in unserer aktuellen Wohnung mit offenem Eingangsbereich immer im Weg liegen
hier eine Variante mit split Eingang, dieser ist tiefergewandert damit wir für die Garage keine Unterschrift vom Nachbarn benötigen (höhe 3m max höchste Stelle)
wir überlegen auch schon den Eingang nach unten zu verlegen, dort zu trennen und eine Option schaffen über Umbau/Auffahr) vor dem Haus ggfls barrierearm einen Zugang zum EG zu schaffen
unsere Gedanken dazu, wir gehen nochmal in eine weitere Runde mit ihm, würden uns aber über Feedback zu unseren Gedanken freuen
wir möchten keine Süd Terrasse, wenn wir Sonne möchten gehen wir in den Garten
überdachte Sitzecke EG gerne auf Nord/West, damit man es im Sommer auch dort aushält, falls Eingang unten oder Garagen dort hin kämen, könnte man die teilweise ja als Terrasse nutzen(?)
Garage kann ich mittlerweile aber auch drauf verzichten, Carport wäre ok und hätte den Vorteil, dass das Dach mit der Schräge laufen könnte neben dem Haus
Wir möchten ein abgetrenntes Wohnzimmer (wurde nicht berücksichtigt), da es im Alltag als TV Zimmer dient und daher nur Abends genutzt wird.
Dreh und Angelpunkt ist und soll die Wohnküche bleiben, mit gemütlicher Sitzbank/Eckbank wo auch ma Platz für 12 Personen + ist.
Wenn ich den Grundriss auf das Grundstück projiziere und sehe, wo wir durch die Fenster hinschauen, gefällt uns das irgendwie nicht
vom Garten ist quasi nichts zu sehen, der Blick geht nur zum Nachbarn und dessen "Gestrüpp" vor der Tür.
Optisch gefallen uns die Regnauer Häuser mit außen Umlauf ganz gut, diese sind mit entspr. Dachüberstand im Sommer auch als nat Sonnen-Hitzeschutz nützlich
Freue mich auf Feedback, wissend das wir noch ganz am Anfang stehen und selbst sehr unentschlossen bezüglich vielen Grundsatzfragen sind (was uns noch vom 2. Termin beim Architekten irgendwie abhält, aber wir kommen selbst irgendwie nicht weiter. 2 Blöcke mit Skizzen sind durch, aber der AhA Moment hat noch gefehlt
der Architekten Entwurf wurde extra ohne Input einer Grundrissidee unsererseits gestartet.
mfg
euro910 schrieb:
wir haben uns ein Grundstück mit Altbestand gekauft und sind schon seit einiger Zeit am planen, haben schon 2 Archit Entwürfe,
aber irgendwie sind beide noch nicht rund.
Abriss ist schon eingetütet. Bestand mit Keller zu klein und Material bietet keine Basis dazuStatt zweier ganzer sehe ich nur einen halben und kann schon den nicht recht interpretieren, ob das ein Umbauergebnis sein soll (?), jedenfalls sehe ich keinen Eingang außer dem durch die Garage. Ein Abriss ist kein Wert an sich, sondern nur nutzlose Kosten. Ich könnte mir sinnvoll vorstellen, das Haus abzureißen und den Keller zu erhalten. Da er geländemäßig gut für einen Außenzugang geeignet ist und man zu Abstellräumen nicht unbedingt einen Innenzugang braucht und auch an der Heizung nicht ständig herumspielt, gäbe das die Freiheit, sich vom derzeitigen Treppenloch zu emanzipieren. Zwei Architekten für den Vorentwurf sind eine gute Idee, und es ist gut, zu diesen ohne das Denkkorsett eines mitgebrachten Grundrissesets gegangen zu sein.https://www.instagram.com/11antgmxde/
https://www.linkedin.com/company/bauen-jetzt/
euro910 schrieb:
diese sind mit entspr. Dachüberstand im Sommer auch als nat Sonnen-Hitzeschutz nützlicheuro910 schrieb:
ein Wunsch war, nach Möglichkeit trocken und eben aus der Garage ins Haus zu gelangenWo baut Ihr denn, wo es immer regnet und die Sonne so präsent ist?euro910 schrieb:
wenn der Keller nachher kein Keller mehr wäre - kein Problem denke ichEr darf nach Landesbauordnung bzw mutmaßlich dem Bebauungsplan zumindest kein Vollgeschoss sein. Im Mittel darf bis 1,40 nach vielen LBOs über der Erdoberfläche herausschauen. Kann aber auch im Bebauungsplan anders geregelt sein.Gilt bei Eurem aufstockendem Nachbarn denn auch Euer Bebauungsplan? Es könnte ja auch sein, dass auf der anderen Straßenseite ein anderer gilt. Aber im Prinzip egal, da Ihr ja einen Bungalow bauen wollt.
euro910 schrieb:
der Architekten Entwurf wurde extra ohne Input einer Grundrissidee unsererseits gestartet.Das ist gut, so kann er selbst kreativ werden und man schneidet sein Wissen nicht ein.euro910 schrieb:
Wunsch wäre ein "Bungalow" mit Wohnkeller
im Wohnkeller die Kids + Funktionsräume
der soll später abtrennbar und als eigenständige Wohnung funktionieren (für Kids oder zur Vermietung)Es bietet sich natürlich an, den Keller als UG, also bewohnbares Untergeschoss auszuführen. Ihr müsst Euch dann allerdings damit auseinandersetzen, dass spätere Mieter Zugang zu Eurem Garten haben, wo Ihr „nur“ einen Balkon habt. Euch bleibt die Ostterrasse, die ja wahrscheinlich auch hochgebockt sein wird.Das hat der Planer eigentlich ganz gut gelöst für später (Vermietung).
Allerdings ist es eigentlich nicht der Wunsch, wenn man ein teures Grundstück mit einem teuren Haus baut und dann das Grundstück nicht hürdenfrei begehen kann. Ihr schreibt ja selbst, dass bei gutem Wetter Ihr in den Garten gehen wollt.
euro910 schrieb:
Meine Frau möchte neben der Haustür einen Gardenraum für Jacken Schuhe, Schulranzen etc etcGarderobe sollte immer ggroßzügig vorhanden sein, ob nun separiert oder als großer Garderobenschrank.euro910 schrieb:
Wir möchten ein abgetrenntes Wohnzimmer (wurde nicht berücksichtigt),das könnte man ja abtrennen. Da sehe ich jetzt kein Problem.euro910 schrieb:
Wenn ich den Grundriss auf das Grundstück projiziere und sehe, wo wir durch die Fenster hinschauen, gefällt uns das irgendwie nicht
vom Garten ist quasi nichts zu sehen, der Blick geht nur zum Nachbarn und dessen "Gestrüpp" vor der Tür.Naja, Du wirst natürlich nicht von jedem Raum aus einen Blick nach Westen haben. Nach Westen ist derzeit die großzügige Küche, irgendetwas muss ja nach Süden. Und Fenster zum Süden ist natürlich auch energetisch sowie mental im Winter förderlich. Andere würden sich dort eine Hecke oder etwas Sichtschutz bauen. das könnt auch Ihr, damit Ihr Privatsspäre bekommt.(Ich kann übrigens den Entwurf derzeit nicht auf dem Rechner sehen und antworte aus der Erinnerung an den Entwurf, den ich mit dem Handy sehen konnte.)
So, ich habe mir das nochmal angesehen.
Wenn man sich das Luftbild anschaut, dann sieht man ja auch, wie der Vorbesitzer eine Hecke südlich gepflanzt hat. So etwas muss man dann halt verlängern. Jeder ist für seine eigene Grundstücksbepflanzung zuständig. Dann braucht man auch nicht Nachbars Bepflanzung anschauen.
Macht Euch klar, wie Euer Keller das EG beeinflusst in Sachen Gartenbenutzung. Eventuell könnte man das Baufenster nach oben hin ausreizen, wenn bei Euch die Vermietung eine große Rolle spielt. Ich kenne viele, und ich gehöre auch selbst dazu, dass a) die Hürde Balkon nicht akzeptabel ist. Viele haben deshalb Küche und Essbereich, also der Lebebereich tagsüber im UG mit Terrasse und barrierefreiem Zugang zum Garten, oben dann die Schlafräume, da man ja eh immer etwas im Garten zu tun hat (Außer natürlich, man lässt ihn machen)
Und b) auch nicht gewollt ist, dass man sich mit Mietern den Garten teilt oder eben abgibt und oben dann quasi als Eigentümer zurückgestellt ist und auf die Mieter schauen muss.
Zum Thema Regnauer: die bauen ja nun auch mittlerweile alles, traditionell, aber auch modern. Einen Bungalow habe ich bei denen noch nicht gesehen.
Entwürfe müssen übrigens kompakt mit alles Geschossen bewertet werden.
Wenn man sich das Luftbild anschaut, dann sieht man ja auch, wie der Vorbesitzer eine Hecke südlich gepflanzt hat. So etwas muss man dann halt verlängern. Jeder ist für seine eigene Grundstücksbepflanzung zuständig. Dann braucht man auch nicht Nachbars Bepflanzung anschauen.
Macht Euch klar, wie Euer Keller das EG beeinflusst in Sachen Gartenbenutzung. Eventuell könnte man das Baufenster nach oben hin ausreizen, wenn bei Euch die Vermietung eine große Rolle spielt. Ich kenne viele, und ich gehöre auch selbst dazu, dass a) die Hürde Balkon nicht akzeptabel ist. Viele haben deshalb Küche und Essbereich, also der Lebebereich tagsüber im UG mit Terrasse und barrierefreiem Zugang zum Garten, oben dann die Schlafräume, da man ja eh immer etwas im Garten zu tun hat (Außer natürlich, man lässt ihn machen)
Und b) auch nicht gewollt ist, dass man sich mit Mietern den Garten teilt oder eben abgibt und oben dann quasi als Eigentümer zurückgestellt ist und auf die Mieter schauen muss.
Zum Thema Regnauer: die bauen ja nun auch mittlerweile alles, traditionell, aber auch modern. Einen Bungalow habe ich bei denen noch nicht gesehen.
Entwürfe müssen übrigens kompakt mit alles Geschossen bewertet werden.
@11ant
Danke, leider ist der Keller
a) zu klein und nicht hoch genug
b)schon mit salpeter an einigen Stellen durchzogen
c) der Kanal in der Bodenplatte hat laut Nachbarn schon Probleme bereitet
@ypg
Danke
der Nachbar leidet unter dem selben Bebauungsplan, mit Einmalzahlung an die Gemeinde in Form von Flächennutzung x Bodenrichtwert kam er klein 5 stellig dann damit durch, wenn vermeidbar wünschenswert
Vermietung ist tatsächlich nicht primär der Grund, nicht das UG als Hauptwohnraum zu nutzen, sondern die dunkle Atmospähe aufgrund Schattenwurf vom Nachbarn, der Blick aus dem EG ist da schon ganz nett - ferne Weinberge auf der anderen Moselseite
Da haben wir lange drüber gegrübelt aber das ist gesetzt, Terrasse zum Garten soll mit Treppe kommen
Wir möchten halt kein Stanard Einfamilienhaus bauen und dann wenn Kids flügge 150+ m² alleine "an der Backe" haben , daher die Idee es von vornherein als 2 mögliche WE auszuführen
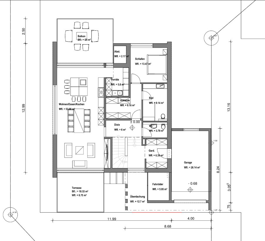
komisch, kann den Entwurf auch nur auf dem Handy sehen, hier nochmal
Bungalow ist die falsche Bezeichnung, eigentlich ist es ein Standard Einfamilienhaus bei dem das DG als KG ausgeführt wird
und eben Eltern Schlafzimmer im EG liegt (bestenfalls)
Eingang ist der BEreich als Überdachte gekennzeichnet


mit dieser Variante wird der Teil vor dem Haus halt auch stark zerklüftet
links am Haus soll eine Abfahrt zum Garten bleiben, d.h man hätte 3 Höhenabschnitte (und Abtrennung (=Kosten)) einzubauen
gerade der Zugang bzw Parkplatzsituation sind das was wir als nicht rund empfinden bzw. bisher niemand so richtig drauf eingegangen ist, gefühlsmäßig
Danke, leider ist der Keller
a) zu klein und nicht hoch genug
b)schon mit salpeter an einigen Stellen durchzogen
c) der Kanal in der Bodenplatte hat laut Nachbarn schon Probleme bereitet
@ypg
Danke
der Nachbar leidet unter dem selben Bebauungsplan, mit Einmalzahlung an die Gemeinde in Form von Flächennutzung x Bodenrichtwert kam er klein 5 stellig dann damit durch, wenn vermeidbar wünschenswert
Vermietung ist tatsächlich nicht primär der Grund, nicht das UG als Hauptwohnraum zu nutzen, sondern die dunkle Atmospähe aufgrund Schattenwurf vom Nachbarn, der Blick aus dem EG ist da schon ganz nett - ferne Weinberge auf der anderen Moselseite
Da haben wir lange drüber gegrübelt aber das ist gesetzt, Terrasse zum Garten soll mit Treppe kommen
Wir möchten halt kein Stanard Einfamilienhaus bauen und dann wenn Kids flügge 150+ m² alleine "an der Backe" haben , daher die Idee es von vornherein als 2 mögliche WE auszuführen
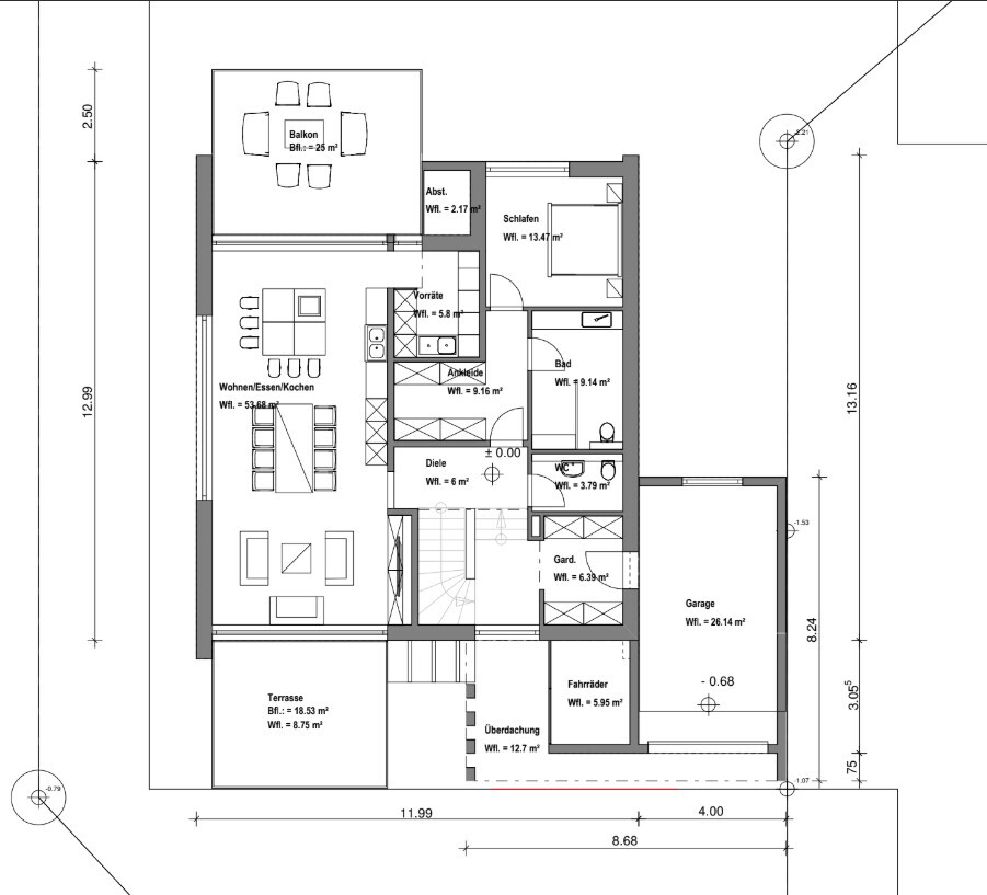
komisch, kann den Entwurf auch nur auf dem Handy sehen, hier nochmal
Bungalow ist die falsche Bezeichnung, eigentlich ist es ein Standard Einfamilienhaus bei dem das DG als KG ausgeführt wird
und eben Eltern Schlafzimmer im EG liegt (bestenfalls)
Eingang ist der BEreich als Überdachte gekennzeichnet
mit dieser Variante wird der Teil vor dem Haus halt auch stark zerklüftet
links am Haus soll eine Abfahrt zum Garten bleiben, d.h man hätte 3 Höhenabschnitte (und Abtrennung (=Kosten)) einzubauen
gerade der Zugang bzw Parkplatzsituation sind das was wir als nicht rund empfinden bzw. bisher niemand so richtig drauf eingegangen ist, gefühlsmäßig
Und ihr wollt tatsächlich den Balkon über die Fenster der zwei Kinderzimmer setzen? Kind 1wird ein dunkles Loch.
Auch wenn es definitiv mit dem Balkon feststeht, so würde ich tatsächlich die Vermietung außen vor lassen und überhaupt nicht mit einplanen. Wenn das jüngste Kind außer Haus geht, dann seid ihr gerade mal um die 60 (+-), da wisst ihr sicherlich mit den beiden Räumen etwas anderes anzufangen: Neue Hobbys, Sauna, Sport zb. Yoga, ein Büro?!, Gästezimmer für die Kinder bzw. Enkelkinder oder auch später eine Pflegeperson..
Ich denke mal, über die Probleme Vermietung/Stellplatz/2.Hauszugang muss man sich keine Gedanken machen, wenn man die Räume betrachtet - es gehört ja doch etwas mehr zu einer Einliegerwohnung als 2 Zimmer, Küche, Bad.
Bleibt dennoch das Stellproblem des Hauses.. man könnte eventuell etwas mehr in die Breite gehen und das Carport vor das Haus setzen. Carport muss in das Baufenster oder darf auch vorgesetzt werden?
Auch wenn es definitiv mit dem Balkon feststeht, so würde ich tatsächlich die Vermietung außen vor lassen und überhaupt nicht mit einplanen. Wenn das jüngste Kind außer Haus geht, dann seid ihr gerade mal um die 60 (+-), da wisst ihr sicherlich mit den beiden Räumen etwas anderes anzufangen: Neue Hobbys, Sauna, Sport zb. Yoga, ein Büro?!, Gästezimmer für die Kinder bzw. Enkelkinder oder auch später eine Pflegeperson..
Ich denke mal, über die Probleme Vermietung/Stellplatz/2.Hauszugang muss man sich keine Gedanken machen, wenn man die Räume betrachtet - es gehört ja doch etwas mehr zu einer Einliegerwohnung als 2 Zimmer, Küche, Bad.
Bleibt dennoch das Stellproblem des Hauses.. man könnte eventuell etwas mehr in die Breite gehen und das Carport vor das Haus setzen. Carport muss in das Baufenster oder darf auch vorgesetzt werden?
Ähnliche Themen