ᐅ Aus Gewerbeobjekt wird ein Bungalow
Erstellt am: 01.10.16 22:38
A
avalanche01.10.16 22:38Hallo zusammen wir brauchen eure Ideen….
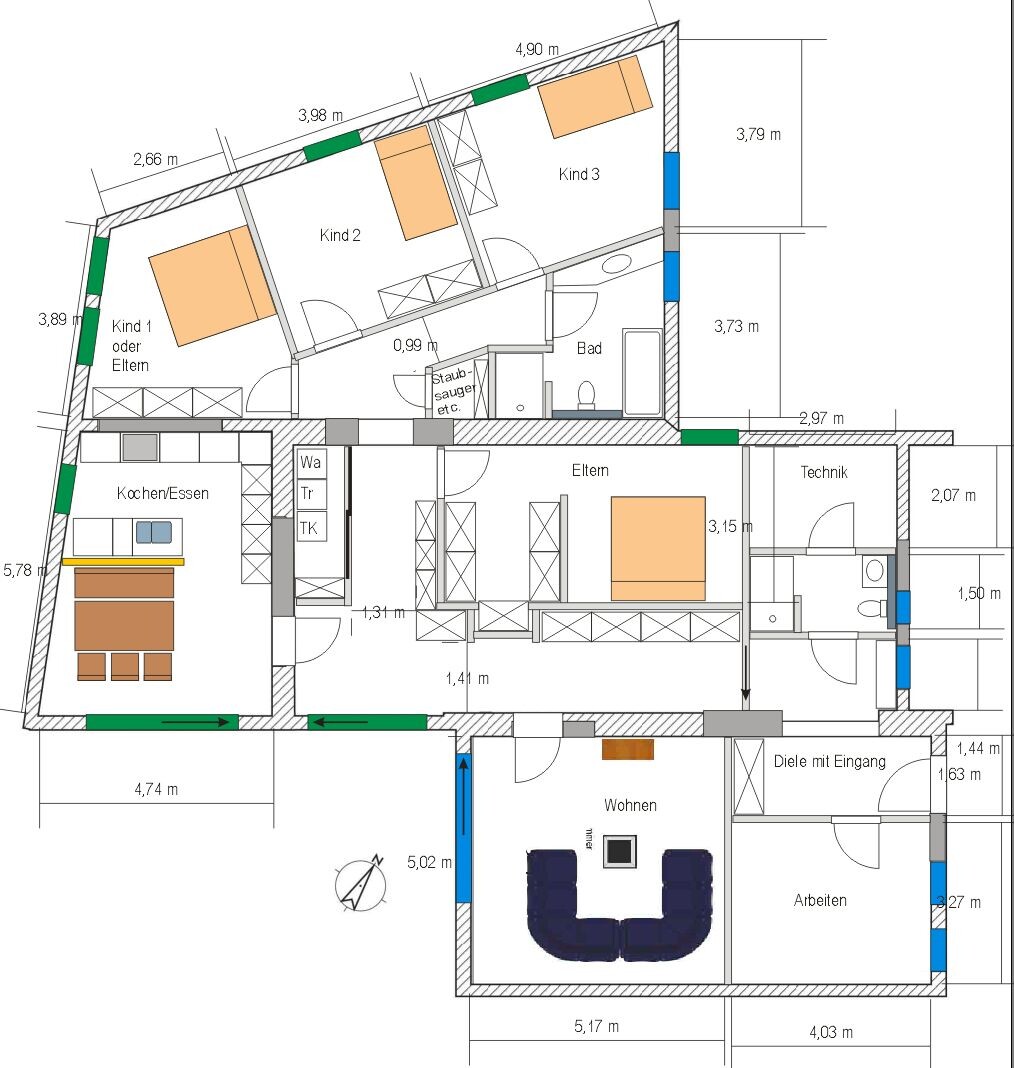
Es handelt sich um eine gewerbliche Grenzbebauung mit 230m². An dem Haupthaus wurde doppelt angebaut, diese haben wir rot gekennzeichnet als „Durchbruch“. Veränderungen können daher in Form eines Durchbruchs oder Tür an andere Stelle nicht getroffen werden. Bisher stehen nur die Außenmauern (Dicke Mauern in der Skizze), der Rest müsste neu gebaut werden.
Deckenhöhe beträgt derzeit 3m. Es handelt sich um einen Bungalow mit Flachdach, welches wir gerne verändern würden. Dies muss mit dem Dachdecker abgeklärt werden, da der Anbau mit einem Wohnhaus zusammenhängt und die Fenster etc. zu berücksichtigen sind.
Schaufenster befinden sich an allen 3 bauten, die wir bereits durch die Idee mit normalen Fenstern ersetzt haben. Die Eingangstür würden wir gerne versetzen, damit wir einen Raum für die Heizung schaffen. Heizung würden wir gerne, wenn möglich, auf Erdwärme zurückgreifen. Fußbodenheizung in Küche, Bädern, Flur und Wohnzimmer und je nach Budget und in den anderen Räumen
Eine offene Wohnküche ist für uns tabu und ungern Durchgangszimmer. Geplant werden muss 4 Schlafzimmer, 2 Bäder, 1 Büro, Wohnzimmer, Küche. Bislang sind wir 2 Erwachsene und 2 kleine Kinder.
Einen Kellerraum haben wir leider nicht, somit bleibt uns diese Fläche ausschließlich zur Nutzung. Unter uns sind Garagen oder Kellerräume, wo eventuelle das Abwassersystem teilweise entstehen kann.
Die Informationen bezüglich der Statik werden noch eingeholt, um die Materialnutzung für Wände und Co. zu berücksichtigen. Gerne würden wir mit Porenbeton arbeiten.
Wir sind für Ideen offen, damit unser Traum vom Eigenheim bald möglich wird.
Vielen Dank schon einmal für eure Mühe und noch ein schönes Wochenende.
-----------------------------------
Ich habe mir erlaubt, die pdf-Anhänge durch sichtbare jpg zu ersetzen. So können alle User an der Diskussion teilnehmen.
Grüße, Bauexperte
Bauexperte


Es handelt sich um eine gewerbliche Grenzbebauung mit 230m². An dem Haupthaus wurde doppelt angebaut, diese haben wir rot gekennzeichnet als „Durchbruch“. Veränderungen können daher in Form eines Durchbruchs oder Tür an andere Stelle nicht getroffen werden. Bisher stehen nur die Außenmauern (Dicke Mauern in der Skizze), der Rest müsste neu gebaut werden.
Deckenhöhe beträgt derzeit 3m. Es handelt sich um einen Bungalow mit Flachdach, welches wir gerne verändern würden. Dies muss mit dem Dachdecker abgeklärt werden, da der Anbau mit einem Wohnhaus zusammenhängt und die Fenster etc. zu berücksichtigen sind.
Schaufenster befinden sich an allen 3 bauten, die wir bereits durch die Idee mit normalen Fenstern ersetzt haben. Die Eingangstür würden wir gerne versetzen, damit wir einen Raum für die Heizung schaffen. Heizung würden wir gerne, wenn möglich, auf Erdwärme zurückgreifen. Fußbodenheizung in Küche, Bädern, Flur und Wohnzimmer und je nach Budget und in den anderen Räumen
Eine offene Wohnküche ist für uns tabu und ungern Durchgangszimmer. Geplant werden muss 4 Schlafzimmer, 2 Bäder, 1 Büro, Wohnzimmer, Küche. Bislang sind wir 2 Erwachsene und 2 kleine Kinder.
Einen Kellerraum haben wir leider nicht, somit bleibt uns diese Fläche ausschließlich zur Nutzung. Unter uns sind Garagen oder Kellerräume, wo eventuelle das Abwassersystem teilweise entstehen kann.
Die Informationen bezüglich der Statik werden noch eingeholt, um die Materialnutzung für Wände und Co. zu berücksichtigen. Gerne würden wir mit Porenbeton arbeiten.
Wir sind für Ideen offen, damit unser Traum vom Eigenheim bald möglich wird.
Vielen Dank schon einmal für eure Mühe und noch ein schönes Wochenende.
-----------------------------------
Ich habe mir erlaubt, die pdf-Anhänge durch sichtbare jpg zu ersetzen. So können alle User an der Diskussion teilnehmen.
Grüße, Bauexperte
Bauexperte
Guten Abend,
Wenn ich ehrlich sein darf, gefällt mir ganz und gar nicht. Irgendwie scheint mir das alles nicht stimmig und nicht richtig durchdacht. Speisekammer z. B. bringt keinen wirklichen Gewinn. Warum ist denn kein direkter Zugang von Küche zur Terrasse vorgesehen? Hauswirtschaftsraum, Gästebad recht schlauchig und wozu den Platz für Müll so geplant. Büro auch was üppig. Zugang von Diele zum Flur in Essbereich, auch der Zugang zum Wohnzimmer. Irgendwie steig ich da nicht ganz durch, welchen Hintergrund die Planung hat.
Das ist nicht böse gemeint, einfach ein Gefühl aus dem Bauch raus.
Wenn ich ehrlich sein darf, gefällt mir ganz und gar nicht. Irgendwie scheint mir das alles nicht stimmig und nicht richtig durchdacht. Speisekammer z. B. bringt keinen wirklichen Gewinn. Warum ist denn kein direkter Zugang von Küche zur Terrasse vorgesehen? Hauswirtschaftsraum, Gästebad recht schlauchig und wozu den Platz für Müll so geplant. Büro auch was üppig. Zugang von Diele zum Flur in Essbereich, auch der Zugang zum Wohnzimmer. Irgendwie steig ich da nicht ganz durch, welchen Hintergrund die Planung hat.
Das ist nicht böse gemeint, einfach ein Gefühl aus dem Bauch raus.
Das Wohnzimmer als Durchgangszimmer für die Kinderzimmer ist nicht so doll.
...
Wo wären denn die (Ab)Wasserleitungen im Bestand? Und was ist im Umfeld herum? Wo schaut man hin? Gibt es ein Grundstück zum Plan? Ist ein drittes Kind geplant?
Ansonsten: sehr interessant, das Projekt. Warum soll das Dach geändert werden?
Grüsse
...
Wo wären denn die (Ab)Wasserleitungen im Bestand? Und was ist im Umfeld herum? Wo schaut man hin? Gibt es ein Grundstück zum Plan? Ist ein drittes Kind geplant?
Ansonsten: sehr interessant, das Projekt. Warum soll das Dach geändert werden?
Grüsse
A
avalanche02.10.16 11:53Noch ein paar Hintergrundinformationen...
Das Haus mit Anbau ist in Familienbesitz und mein Vater erweiterte vor ca 30 Jahren das Malergeschäft mit den beiden Anbauobjekten. Größenmäßig wäre es für uns ideal und daher denken wir über eine Umnutzung von gewerblich genutzten Räumen zum Wohnraum nach. Zudem bin ich emotional an das Gebäude gefesselt =) und die Entstehung eines Mehrgenerationen- Wohnkomplexes wäre somit zu verwirklichen. Quasi würden wir eine Doppelhaushälfte anstreben.
Das Mehrfamilienhaus befindet sich direkt neben der geplanten
Speisekammer und Heizungsraum.
Ein großer Garten wäre von der geplanten Terrasse zu erreichen. Auf die Terrasse kann man durch Wohnzimmer und Küche (@sigi neben den Doppelfenster in der Küche, das soll eine Terrassentür sein. )
Speisekammer empfinden wir als sinnvoll, da wir viel selber machen und Marmelade, Kartoffeln etc gelagert werden müssen. Da sind wir aber für neue Vorschläge auch offen.
Das Büro ist ziemlich groß geplant, da ich Selbstständig bin und Patienten dort empfangen möchte und mein Mann öfters im Homeoffice tätig ist.
Ja mit der schlauchigen Form sind wir auch noch nicht so ganz zufrieden, aber der Hintergedanke war... Fenster in jedem Raum. Im Hauswirtschaftsraum befinden sich bislang nur Waschmaschine, Trockner und Wäscheleine.
@Yvonne: ja das WZ ist ein Durchgangszimmer und ich bin damit überhaupt nicht glücklich, aber wir finden keine andere Lösung....
Das Flachdach macht immer mal wieder ein paar Probleme, da sich das Wasser dort sammelt. Die Dämmung ist für einen Wohnbereich nicht ausgelegt und wir wurden informiert, dass eine Dämmung von innen zu Schimmel führt.
Ein drittes Kind wäre ein Gedanke und soweit es noch nicht da ist, könnte es als Gäste- Näh- oder Spielzimmer genutzt werden.
Die Abwasserleitung sind bislang in der Küche vorhanden. Derzeit befindet sich dort eine kleine Kundentoilette. Unter dem geplanten Hauptbad befindet sich eine große Garage und in dieser liegt ein Gully. Dort könnten wir einen Durchbruch nach unten machen.
Vor dem Eingangsbereich befinden sich Stellplätze, eine kleine Grünanlage und Straße. links wie auf der Zeichnung auch Garten. recht von den beiden Kinderzimmern Garagen (Anbau ist auf Pfeilern).
Anbei noch eine Skizze vom Garten / Grundstück. Hoffe das hilft für die räumliche Vorstellung. Bitte nicht lachen ist keine perfekte Zeichnung .
Das hellgraue Objekt (linke Hausseite) wäre dann der Bungalow worum es hier geht.
Der erste Teil gehört jedoch noch zum Haupthaus (Erdgeschoss)

Das Haus mit Anbau ist in Familienbesitz und mein Vater erweiterte vor ca 30 Jahren das Malergeschäft mit den beiden Anbauobjekten. Größenmäßig wäre es für uns ideal und daher denken wir über eine Umnutzung von gewerblich genutzten Räumen zum Wohnraum nach. Zudem bin ich emotional an das Gebäude gefesselt =) und die Entstehung eines Mehrgenerationen- Wohnkomplexes wäre somit zu verwirklichen. Quasi würden wir eine Doppelhaushälfte anstreben.
Das Mehrfamilienhaus befindet sich direkt neben der geplanten
Speisekammer und Heizungsraum.
Ein großer Garten wäre von der geplanten Terrasse zu erreichen. Auf die Terrasse kann man durch Wohnzimmer und Küche (@sigi neben den Doppelfenster in der Küche, das soll eine Terrassentür sein. )
Speisekammer empfinden wir als sinnvoll, da wir viel selber machen und Marmelade, Kartoffeln etc gelagert werden müssen. Da sind wir aber für neue Vorschläge auch offen.
Das Büro ist ziemlich groß geplant, da ich Selbstständig bin und Patienten dort empfangen möchte und mein Mann öfters im Homeoffice tätig ist.
Ja mit der schlauchigen Form sind wir auch noch nicht so ganz zufrieden, aber der Hintergedanke war... Fenster in jedem Raum. Im Hauswirtschaftsraum befinden sich bislang nur Waschmaschine, Trockner und Wäscheleine.
@Yvonne: ja das WZ ist ein Durchgangszimmer und ich bin damit überhaupt nicht glücklich, aber wir finden keine andere Lösung....
Das Flachdach macht immer mal wieder ein paar Probleme, da sich das Wasser dort sammelt. Die Dämmung ist für einen Wohnbereich nicht ausgelegt und wir wurden informiert, dass eine Dämmung von innen zu Schimmel führt.
Ein drittes Kind wäre ein Gedanke und soweit es noch nicht da ist, könnte es als Gäste- Näh- oder Spielzimmer genutzt werden.
Die Abwasserleitung sind bislang in der Küche vorhanden. Derzeit befindet sich dort eine kleine Kundentoilette. Unter dem geplanten Hauptbad befindet sich eine große Garage und in dieser liegt ein Gully. Dort könnten wir einen Durchbruch nach unten machen.
Vor dem Eingangsbereich befinden sich Stellplätze, eine kleine Grünanlage und Straße. links wie auf der Zeichnung auch Garten. recht von den beiden Kinderzimmern Garagen (Anbau ist auf Pfeilern).
Anbei noch eine Skizze vom Garten / Grundstück. Hoffe das hilft für die räumliche Vorstellung. Bitte nicht lachen ist keine perfekte Zeichnung .
Das hellgraue Objekt (linke Hausseite) wäre dann der Bungalow worum es hier geht.
Der erste Teil gehört jedoch noch zum Haupthaus (Erdgeschoss)
Ähnliche Themen