
kaho674
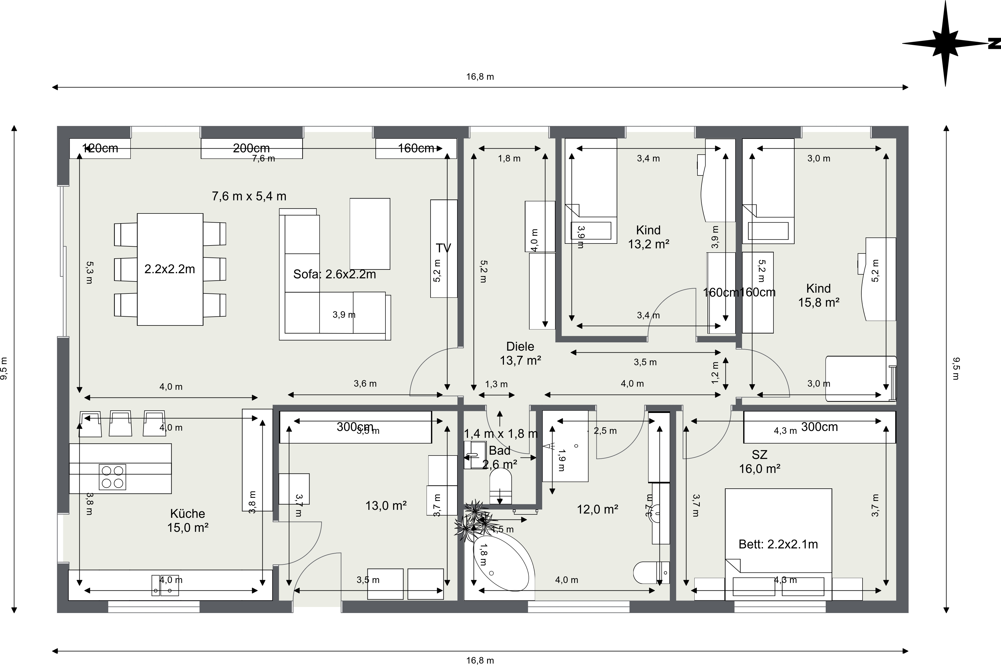
Man könnte natürlich mal rumprobieren. Hier mal ein wenig Spielerei für den TE. Allerdings mit kleinen Schönheitsfehler - planlinks hab ich die Randbebauung erweitert - noch ohne Genehmigung. Falls das nicht geht, muss das WC wo anders hin und das Kinderzimmer rückt ein und es entsteht eine notwendige Ecke. Rosa ist der Bestand.
Eigentlich geht es mir nur darum zu zeigen, was wir überhaupt meinen und das man bei etwas Gehirnschmalzinvestition eventuell größer wohnen könnte, ohne das Budget erweitern zu müssen. Wenn ich die Pläne für die Ferienwohnung sehe, frag ich mich sowieso, wo das Geld dafür herkommen soll und ob es überhaupt ein Gebiet ist, wo Menschen ihre Ferien verbringen wollten. Da muss das Grundstück m.E. schon fußläufig zum Strand liegen oder direkt neben schloss Neuschwanstein bevor ich mich in eine solche Hütte im Hinterhof einquartiere.
Eigentlich geht es mir nur darum zu zeigen, was wir überhaupt meinen und das man bei etwas Gehirnschmalzinvestition eventuell größer wohnen könnte, ohne das Budget erweitern zu müssen. Wenn ich die Pläne für die Ferienwohnung sehe, frag ich mich sowieso, wo das Geld dafür herkommen soll und ob es überhaupt ein Gebiet ist, wo Menschen ihre Ferien verbringen wollten. Da muss das Grundstück m.E. schon fußläufig zum Strand liegen oder direkt neben schloss Neuschwanstein bevor ich mich in eine solche Hütte im Hinterhof einquartiere.