Hallo Leute,
ich bin neu hier im Forum und erhoffe mir zu unseren bisherigen Planungen ein paar Meinungen, Anregungen oder auch Bedenken.
Kurz zum allgemeinen Stand: Das Bau-Gebiet in dem der voraussichtliche Bauplatz ist, wird gerade erschlossen. Auf der zust. Gemeinde, welche die Erschließung durchführt, haben wir den Bauplatz vorab "relativ" verbindlich reserviert. Angedachter Baubeginn wäre ca. Frühjahr 2021.
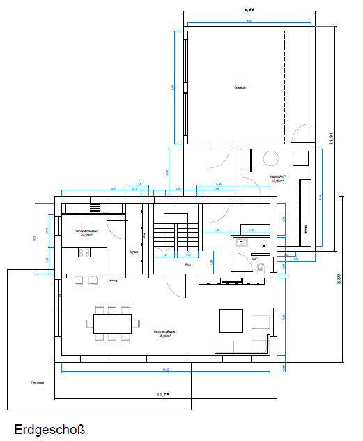
Zum angefügten Plan: Diesen habe ich selbst erstellt, jedoch bitte nicht verurteilen, ich habe zwar Technischer Zeichner gelernt, jedoch Fachrichtung Heizung und habe somit vom Bau-technischen nur das einfließen lassen können, was ich irgendwie nebenbei aufgeschnappt habe. Ob das also bautechnisch, statisch, usw. so ausführbar ist, müsste dann noch geklärt werden, bzw. wäre ich auch hier um Tipps/Meinungen froh.
Hier noch die entsprechende Liste, soweit ich diese ausfüllen kann:
Bebauungsplan/Einschränkungen
Größe des Grundstücks: ca. 1000m²
Hang: siehe Schnitt, nur geschätzt!
Grundflächenzahl
Geschossflächenzahl
Baufenster, Baulinie und -grenze
Randbebauung
Anzahl Stellplatz: Garage
Geschossigkeit
Dachform: Sattel
Stilrichtung
Ausrichtung
Maximale Höhen/Begrenzungen: talseitige Traufhöhe max. 7,30
weitere Vorgaben
Anforderungen der Bauherren
siehe Plan 😉
Hausentwurf
Von wem stammt die Planung:
-Do-it-Yourself
Persönliches Preislimit fürs Haus, inkl Ausstattung: mit Bauplatz 450K
favorisierte Heiztechnik:
vorauss. Wärmepumpe, Kamin mit Wassertaschen, Fußbodenheizung, solaranlage
Alternative: wie oben, jedoch Gastherme mit Erdtank
Wenn Ihr verzichten müsst, auf welche Details/Ausbauten
-könnt Ihr verzichten:
-könnt Ihr nicht verzichten:
Warum ist der Entwurf so geworden, wie er jetzt ist? ZB
Was ist die wichtigste/grundlegende Frage zum Grundriss in 130 Zeichen zusammengefasst?
-->Allgemeine Meinungen, Aussagen zur Ausführbarkeit von jemanden, der bautechnische/statisch mehr Ahnung hat
Wir sind für jede Anregung dankbar und man kann über alles diskutieren 😉

ich bin neu hier im Forum und erhoffe mir zu unseren bisherigen Planungen ein paar Meinungen, Anregungen oder auch Bedenken.
Kurz zum allgemeinen Stand: Das Bau-Gebiet in dem der voraussichtliche Bauplatz ist, wird gerade erschlossen. Auf der zust. Gemeinde, welche die Erschließung durchführt, haben wir den Bauplatz vorab "relativ" verbindlich reserviert. Angedachter Baubeginn wäre ca. Frühjahr 2021.
Zum angefügten Plan: Diesen habe ich selbst erstellt, jedoch bitte nicht verurteilen, ich habe zwar Technischer Zeichner gelernt, jedoch Fachrichtung Heizung und habe somit vom Bau-technischen nur das einfließen lassen können, was ich irgendwie nebenbei aufgeschnappt habe. Ob das also bautechnisch, statisch, usw. so ausführbar ist, müsste dann noch geklärt werden, bzw. wäre ich auch hier um Tipps/Meinungen froh.
Hier noch die entsprechende Liste, soweit ich diese ausfüllen kann:
Bebauungsplan/Einschränkungen
Größe des Grundstücks: ca. 1000m²
Hang: siehe Schnitt, nur geschätzt!
Grundflächenzahl
Geschossflächenzahl
Baufenster, Baulinie und -grenze
Randbebauung
Anzahl Stellplatz: Garage
Geschossigkeit
Dachform: Sattel
Stilrichtung
Ausrichtung
Maximale Höhen/Begrenzungen: talseitige Traufhöhe max. 7,30
weitere Vorgaben
Anforderungen der Bauherren
siehe Plan 😉
Hausentwurf
Von wem stammt die Planung:
-Do-it-Yourself
Persönliches Preislimit fürs Haus, inkl Ausstattung: mit Bauplatz 450K
favorisierte Heiztechnik:
vorauss. Wärmepumpe, Kamin mit Wassertaschen, Fußbodenheizung, solaranlage
Alternative: wie oben, jedoch Gastherme mit Erdtank
Wenn Ihr verzichten müsst, auf welche Details/Ausbauten
-könnt Ihr verzichten:
-könnt Ihr nicht verzichten:
Warum ist der Entwurf so geworden, wie er jetzt ist? ZB
Was ist die wichtigste/grundlegende Frage zum Grundriss in 130 Zeichen zusammengefasst?
-->Allgemeine Meinungen, Aussagen zur Ausführbarkeit von jemanden, der bautechnische/statisch mehr Ahnung hat
Wir sind für jede Anregung dankbar und man kann über alles diskutieren 😉
Ich bin kein Experte aber hier mal meine spontane Meinung: ich finde das Elternbad zu groß im Verhältnis zu den Kinderzimmern. Ich würde das verkleinern, die Ankleide dafür weitestgehend aus der Mitte da weg bekommen und dann die Kinderzimmer und das Bad neu aufteilen, dass die Kinder mehr Platz bekommen.
Ich finde das Haus sehr groß. Wenig Abstellraum (nur der Hauswirtschaftsraum), dafür fast 70qm für den WoKüEss 😱
Die meisten Bauherren liegen bei diesem Raum um die 50qm, haben dann dabei Kinderzimmer um die 15/16qm.
Ich bin kein Freund von übergroßen Kinderzimmer, aber 12 sind nur in einem 120qm Haus akzeptabel. Dafür ist der Elternbereich an die 40qm... uiuiuihhh...
Ich rechne grob 180qm (Zahlen sind leider auf dem Handy nicht richtig lesbar) ohne Anbau.
360000 plus Anbau/Doppelgarage macht 400000.
Mit Baunebenkosten liegt ihr dann bei 450000 ohne ein Grundstück.
Les Dich mal etwas in der Rubrik Baukosten ein.
Wieviel kostet denn das Grundstück?
Die meisten Bauherren liegen bei diesem Raum um die 50qm, haben dann dabei Kinderzimmer um die 15/16qm.
Ich bin kein Freund von übergroßen Kinderzimmer, aber 12 sind nur in einem 120qm Haus akzeptabel. Dafür ist der Elternbereich an die 40qm... uiuiuihhh...
Ich rechne grob 180qm (Zahlen sind leider auf dem Handy nicht richtig lesbar) ohne Anbau.
360000 plus Anbau/Doppelgarage macht 400000.
Mit Baunebenkosten liegt ihr dann bei 450000 ohne ein Grundstück.
Les Dich mal etwas in der Rubrik Baukosten ein.
Wieviel kostet denn das Grundstück?
Das Grundstück kommt auf ca. 55k.
Eigenleistung wird die komplette Heizung, Fliesenlegen und Trockenbau durch Familie/Bekannte.
Bezügl. der Stellflächen hätten wir die Garage rel. groß geplant, evtl. mit Dachboden. Des Weiteren haben meine Eltern ein großes Haus, wo Sachen gelagert werden können, die nicht immer gebraucht werden.
Eigenleistung wird die komplette Heizung, Fliesenlegen und Trockenbau durch Familie/Bekannte.
Bezügl. der Stellflächen hätten wir die Garage rel. groß geplant, evtl. mit Dachboden. Des Weiteren haben meine Eltern ein großes Haus, wo Sachen gelagert werden können, die nicht immer gebraucht werden.
Ähnliche Themen