ᐅ 10x10m Stadtvilla (ca. 155m2, 6 Zimmer), Feintuning erwünscht
Erstellt am: 20.08.17 14:34
C
ChangelingC
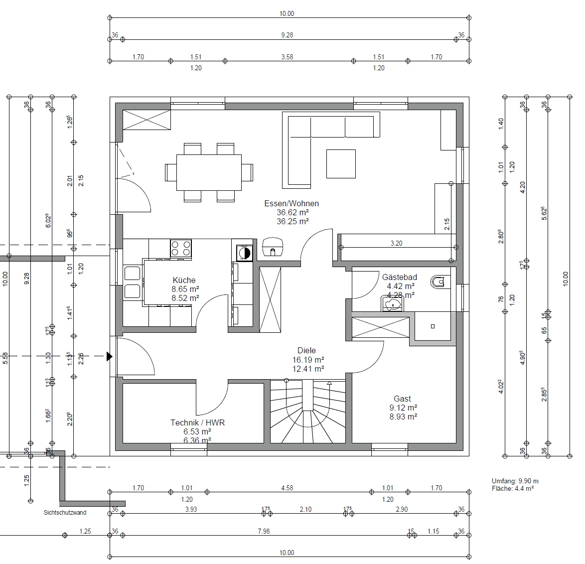
Changeling20.08.17 14:34EG:

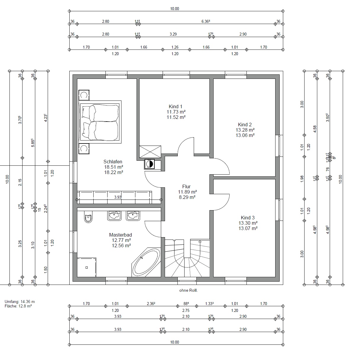
OG:

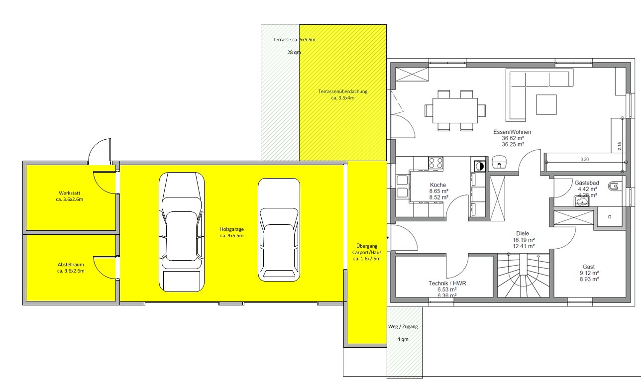
Außenanlagen:

Auf dem Grundstück ausgerichtet:

Bebauungsplan/Einschränkungen:
Das Grundstück darf nur auf der südlichen Hälfte bebaut werden, ansonsten keine besonderen Einschränkungen.
Größe des Grundstücks: 900qm, ca. 30x30 Meter
Hang: Nein, nur auf der Westseite geht es am Ende des Grundstücks 3m abwärts zur Straße. Auf der Nordseite gibt es eine Stützmauer, da das Grundstück dort rund 2m über Straßenniveau liegt. Daher gibt es nur einen befahrbaren Zugang von Süden.
Anforderungen der Bauherren
Stilrichtung, Dachform, Gebäudetyp: Es wird eine zweigeschossige Stadtvilla mit Zeltdach (quadratisches Walmdach), da diese im OG keine Dachschrägen besitzt.
Keller: Kein Keller, weil zu teuer, unpraktisch und zusätzliches Baurisiko.
Anzahl der Personen, Alter: 2 Erwachsene (30), 1 Kind (3), 1-2 weitere Kinder fest geplant
Wohnzimmer: Ein großer, offener Wohnbereich war uns wichtig, da sich hier das Leben abspielt. In der rechten unteren Ecke soll eine Computerecke hin, da wir mehr am Rechner sitzen anstatt fern zu sehen. Beruflich sind wir ebenfalls viel im Homeoffice und wollen dabei nicht in einem Extra-Raum eingepfercht werden.
Kamin: Ja
Gästezimmer: Wird auch als Abstellraum genutzt und daher beim Bau ohne Keller recht nützlich.
Küche: Der Herd und das Waschbecken sind noch nicht an ihrem finalen Platz - eine Kochinsel ist wegen Abzugshaube unschön und wegen Spritzern unpraktisch.
Technik/Hauswirtschaftsraum: Dient gleichzeitig noch als Speisekammer und soll bis unter die Decke mit Regalen voll werden.
Kinderzimmer: Größe sollte ausreichen.
Schlafzimmer: Eigentlich fast zu groß, aber wegen unserem großen Kleiderschrank und dem Doppelbett geht es kaum anders.
Bad: Hier ist die Gestaltung noch am Anfang, z.B. soll die Dusche frei eingemauert werden und keine Kabine sein.
Terrasse: Ist uns wichtig, ebenso eine Überdachung derselben, so dass man auch mal Dinge draußen stehen lassen kann.
Garage, Carport: So groß wie möglich! Es soll eine Art Holzcarport werden, vorne komplett verkleidet und mit Sektionaltoren, hinten je nach Bedarf offen / geschlossen. Wir nutzen unsere momentane Garage auch als "zweites Wohnzimmer" und lagern dort viel Gartengerät und dergleichen. Mit dem langen Auto wird es allerdings etwas eng, wahrscheinlich wird die Terrasse etwas kleiner und der Carport tiefer (oder es wird einfach der Dachüberstand links etwas länger). Die Anbauten ganz links sind später als Gartenhäuschen o.ä. geplant, sind also kein fester Bestandteil. Die Überdachung zum Haus ist ein Muss, da wir trockenen Fußes hinein möchten. Der untere Teil zur Straße hin ist reiner Sichtschutz und keine massive Mauer.
Garten: Unser Gewächshaus bauen wir selber so wie wir es jetzt auch haben.
Hausentwurf:
Von wem stammt die Planung: Planer eines Bauunternehmens, Außenanlagen selbst hinzugefügt
Was gefällt besonders? Warum?: Das "viele" Nebengelass und der große Carport wegen Platz, das große Wohnzimmer mit offener Küche (auch wegen Platz). Und der ebenerdige Zugang zur Terrasse (haben wir jetzt nicht).
Was gefällt nicht? Warum?: Untergeschoss ist etwas eng (Hauswirtschaftsraum/Küche klein), Obergeschoss dafür sehr großzügig, aber es ist bisher die beste Lösung.
Preisschätzung lt Architekt/Planer: 290'000 - viel mehr soll es dann auch nicht kosten (Max +10%).
Dämmung/Aufbau: Leider ist es "nur" nach Energieeinsparverordnung 2016 gebaut, ich hätte gerne besser gedämmt, liegt aber preislich wohl nicht drin. Mauerwerk ist Kalksandstein (außen 20cm + 16cm EPS (Styropor) Dämmplatten).
Heiztechnik: Sole-Wasser-Wärmepumpe mit Erdsonde, Gasanschluss wird zu teuer und Öl möchten wir nicht.
Wenn Ihr verzichten müsst, auf welche Details/Ausbauten
-könnt Ihr verzichten: Höchstens ein Kinderzimmer weniger, der Rest sollte schon so bleiben...
-könnt Ihr nicht verzichten: Alles? Wird schwierig.
Warum ist der Entwurf so geworden, wie er jetzt ist?
Wir haben uns Vorschläge vom Planer angesehen, ein Wochenende lang selbst Alternativen entworfen und schlussendlich den vorliegenden Kompromiss gefunden. Darin sind eigentlich all unsere Wünsche enthalten.
Es wäre etwas besser zu planen gewesen, wenn die Ausrichtung des Hauses anders wäre, dann müsste Küche/Terrasse/Essbereich nicht alles neben den Carport gequetscht werden. Da aber die Straße im Süden ist und die Nordhälfte nicht bebaut werden darf, muss das Haus so stehen und die Terrasse dort sein, um Sonne zu erhaschen. Den Carport auf der Ostseite möchten wir nicht, da sonst unser Haus zu weit in der Mitte des Grundstücks steht und dann die Terrasse komplett vom Nachbarhaus im Süden einsehbar wäre.
Auf der Ostseite entsteht ein weiterer Bauplatz ähnlicher Größe, wo ebenfalls ein Einfamilienhaus als Stadtvilla gebaut wird.
Was ist die wichtigste/grundlegende Frage zum Grundriss in 130 Zeichen zusammengefasst?
Was ist eure Meinung dazu, was könnte man besser machen, was haben wir vergessen? Gibt es Bedenken?
OG:
Außenanlagen:
Auf dem Grundstück ausgerichtet:
Bebauungsplan/Einschränkungen:
Das Grundstück darf nur auf der südlichen Hälfte bebaut werden, ansonsten keine besonderen Einschränkungen.
Größe des Grundstücks: 900qm, ca. 30x30 Meter
Hang: Nein, nur auf der Westseite geht es am Ende des Grundstücks 3m abwärts zur Straße. Auf der Nordseite gibt es eine Stützmauer, da das Grundstück dort rund 2m über Straßenniveau liegt. Daher gibt es nur einen befahrbaren Zugang von Süden.
Anforderungen der Bauherren
Stilrichtung, Dachform, Gebäudetyp: Es wird eine zweigeschossige Stadtvilla mit Zeltdach (quadratisches Walmdach), da diese im OG keine Dachschrägen besitzt.
Keller: Kein Keller, weil zu teuer, unpraktisch und zusätzliches Baurisiko.
Anzahl der Personen, Alter: 2 Erwachsene (30), 1 Kind (3), 1-2 weitere Kinder fest geplant
Wohnzimmer: Ein großer, offener Wohnbereich war uns wichtig, da sich hier das Leben abspielt. In der rechten unteren Ecke soll eine Computerecke hin, da wir mehr am Rechner sitzen anstatt fern zu sehen. Beruflich sind wir ebenfalls viel im Homeoffice und wollen dabei nicht in einem Extra-Raum eingepfercht werden.
Kamin: Ja
Gästezimmer: Wird auch als Abstellraum genutzt und daher beim Bau ohne Keller recht nützlich.
Küche: Der Herd und das Waschbecken sind noch nicht an ihrem finalen Platz - eine Kochinsel ist wegen Abzugshaube unschön und wegen Spritzern unpraktisch.
Technik/Hauswirtschaftsraum: Dient gleichzeitig noch als Speisekammer und soll bis unter die Decke mit Regalen voll werden.
Kinderzimmer: Größe sollte ausreichen.
Schlafzimmer: Eigentlich fast zu groß, aber wegen unserem großen Kleiderschrank und dem Doppelbett geht es kaum anders.
Bad: Hier ist die Gestaltung noch am Anfang, z.B. soll die Dusche frei eingemauert werden und keine Kabine sein.
Terrasse: Ist uns wichtig, ebenso eine Überdachung derselben, so dass man auch mal Dinge draußen stehen lassen kann.
Garage, Carport: So groß wie möglich! Es soll eine Art Holzcarport werden, vorne komplett verkleidet und mit Sektionaltoren, hinten je nach Bedarf offen / geschlossen. Wir nutzen unsere momentane Garage auch als "zweites Wohnzimmer" und lagern dort viel Gartengerät und dergleichen. Mit dem langen Auto wird es allerdings etwas eng, wahrscheinlich wird die Terrasse etwas kleiner und der Carport tiefer (oder es wird einfach der Dachüberstand links etwas länger). Die Anbauten ganz links sind später als Gartenhäuschen o.ä. geplant, sind also kein fester Bestandteil. Die Überdachung zum Haus ist ein Muss, da wir trockenen Fußes hinein möchten. Der untere Teil zur Straße hin ist reiner Sichtschutz und keine massive Mauer.
Garten: Unser Gewächshaus bauen wir selber so wie wir es jetzt auch haben.
Hausentwurf:
Von wem stammt die Planung: Planer eines Bauunternehmens, Außenanlagen selbst hinzugefügt
Was gefällt besonders? Warum?: Das "viele" Nebengelass und der große Carport wegen Platz, das große Wohnzimmer mit offener Küche (auch wegen Platz). Und der ebenerdige Zugang zur Terrasse (haben wir jetzt nicht).
Was gefällt nicht? Warum?: Untergeschoss ist etwas eng (Hauswirtschaftsraum/Küche klein), Obergeschoss dafür sehr großzügig, aber es ist bisher die beste Lösung.
Preisschätzung lt Architekt/Planer: 290'000 - viel mehr soll es dann auch nicht kosten (Max +10%).
Dämmung/Aufbau: Leider ist es "nur" nach Energieeinsparverordnung 2016 gebaut, ich hätte gerne besser gedämmt, liegt aber preislich wohl nicht drin. Mauerwerk ist Kalksandstein (außen 20cm + 16cm EPS (Styropor) Dämmplatten).
Heiztechnik: Sole-Wasser-Wärmepumpe mit Erdsonde, Gasanschluss wird zu teuer und Öl möchten wir nicht.
Wenn Ihr verzichten müsst, auf welche Details/Ausbauten
-könnt Ihr verzichten: Höchstens ein Kinderzimmer weniger, der Rest sollte schon so bleiben...
-könnt Ihr nicht verzichten: Alles? Wird schwierig.
Warum ist der Entwurf so geworden, wie er jetzt ist?
Wir haben uns Vorschläge vom Planer angesehen, ein Wochenende lang selbst Alternativen entworfen und schlussendlich den vorliegenden Kompromiss gefunden. Darin sind eigentlich all unsere Wünsche enthalten.
Es wäre etwas besser zu planen gewesen, wenn die Ausrichtung des Hauses anders wäre, dann müsste Küche/Terrasse/Essbereich nicht alles neben den Carport gequetscht werden. Da aber die Straße im Süden ist und die Nordhälfte nicht bebaut werden darf, muss das Haus so stehen und die Terrasse dort sein, um Sonne zu erhaschen. Den Carport auf der Ostseite möchten wir nicht, da sonst unser Haus zu weit in der Mitte des Grundstücks steht und dann die Terrasse komplett vom Nachbarhaus im Süden einsehbar wäre.
Auf der Ostseite entsteht ein weiterer Bauplatz ähnlicher Größe, wo ebenfalls ein Einfamilienhaus als Stadtvilla gebaut wird.
Was ist die wichtigste/grundlegende Frage zum Grundriss in 130 Zeichen zusammengefasst?
Was ist eure Meinung dazu, was könnte man besser machen, was haben wir vergessen? Gibt es Bedenken?
C
Changeling20.08.17 15:04tomtom79 schrieb:
Auf den ersten blick wo wollt ihr die Jacken und Schuhe für 5 Personen zwischen lagern?Schuhe kommen ins Carport. Saison-Jacken kommen ins Gästezimmer, der Rest sollte eigentlich Platz finden im Flur und unter der (geschlossenen) Treppe. Meine Frau ist zum Glück nicht vom Typ "5 Kleiderschränke, aber was ziehe ich dann übermorgen an?" tomtom79 schrieb:
Das Eltern Zimmer ist mit 2.8 Meter knapp
Ein 2 Meter Bett wenn mit kopfteil kann sogar 2.10m breit sein, dann wird es mit den 70cm sehr eng wenn da jetzt nich ein tv hängt naja.Wir haben unser Bett bereits, das passt. Ein Fernseher kommt da nicht hin, wir haben im Bett anderes vor - Familienplanung ist ja noch nicht zu Ende Changeling schrieb:
Schuhe kommen ins Carport.Das ist die mit Abstand trockenhumorigste Antwort, die ich hier je auf einen Garderobeneinwand gelesen habe https://www.instagram.com/11antgmxde/
https://www.linkedin.com/company/bauen-jetzt/
C
Changeling20.08.17 15:35Tatsächlich ohne Humor... das handhaben wir momentan auch so und fahren recht gut damit
Schlauchiger schmaler Eingang find ich immer wieder furchtbar. Man stelle sich vor, 3 wollen rein und 2 raus, vielleicht noch Besuch dazwischen. Grausig. Es geht viel Fläche für Diele darauf, welche dann nicht mal großzügig ist.
Der Technikraum ist arg klein. Was soll da alles rein?
Wir haben auch Erdwärme. Allein das Gerät benötigt ca. 1,50m². Dazu kommt noch Strom, Wasser, bei Euch noch Waschmaschine und Speisekammer. Viel Glück!
Schlafzimmer wirkt beengt - ich hoffe für Euch, Ihr kommt da in Stimmung. Ich wäre frustriert, weil ich ständig an die erdrückende viel zu nahe Wand vor mir starren müsste.
Der Technikraum ist arg klein. Was soll da alles rein?
Wir haben auch Erdwärme. Allein das Gerät benötigt ca. 1,50m². Dazu kommt noch Strom, Wasser, bei Euch noch Waschmaschine und Speisekammer. Viel Glück!
Schlafzimmer wirkt beengt - ich hoffe für Euch, Ihr kommt da in Stimmung. Ich wäre frustriert, weil ich ständig an die erdrückende viel zu nahe Wand vor mir starren müsste.
Ähnliche Themen