ᐅ Grundrissoptimierung Doppelhaushälfte mit 130m2
Erstellt am: 14.07.20 11:51
Hallo liebe Forumsmitglieder,
wir möchten eine Doppelhaushälfte bauen die mit Hilfe eines Architekten geplant wird.
Danach erfolgt die Werkplanung und Einzelvergabe.
Wir haben einen Grundriss vorliegen und wollten hier dazu ein Feedback.
Der Grundriss ist z.T. etwas unkonventionell. Lt. Architekt alles so gut und machbar.
Hinweis: Ausschnitt des Vermessers ist eingenordet, in den Grundrissen fehlt die Himmelsrichtung leider.
Die Wohnküche ist genau Richtung SW ausgerichtet
Bebauungsplan/Einschränkungen
Größe des Grundstücks: 275 m2
Hang: nein
Grundflächenzahl: 0,4
Baufenster, Baulinie und -grenze: 2,80m Grenzabstand zu Weg
Randbebauung: ja, Fahrradschuppen
Anzahl Stellplatz: 0 (separate Garage)
Geschossigkeit: II+D
Dachform: Satteldach
Stilrichtung: modern
Ausrichtung: SW - NO
Maximale Höhen/Begrenzungen: 7m maximale Wandhöhe
weitere Vorgaben: Holzverschalung, Holz- oder Holz-Aluminium-Fenster, kein Stellplatz am Haus möglich
Anforderungen der Bauherren
Stilrichtung, Dachform, Gebäudetyp: modern, Satteldach, Doppelhaushälfte
Keller, Geschosse: Keller ja, Geschosse KG, EG, OG, DG
Anzahl der Personen, Alter: 4 (40, 35, 4, 6)
Raumbedarf im EG, OG: EG Wohnküche, OG Kinderzimmer und Bäder, DG Eltern und Mehrzweck
Büro: Familiennutzung und Homeoffice
Schlafgäste pro Jahr: 6 mal
offene oder geschlossene Architektur: offen
konservativ oder moderne Bauweise: modern
offene Küche, Kochinsel: ja, beides
Anzahl Essplätze: 6
Kamin: nein
Musik/Stereowand: nein
Balkon, Dachterrasse: nein
Garage, Carport: nein
Nutzgarten, Treibhaus: noch nicht geplant
weitere Wünsche/Besonderheiten/Tagesablauf, gern auch Begründungen, warum dieses oder das nicht sein soll:
Fußbodenheizung, Holzboden, Wäscheabwurfschacht
Hausentwurf
Von wem stammt die Planung:
-Architekt mit unseren Wünschen
Was gefällt besonders? Warum? große Glasfront nach SW im EG, Ausrichtung und Größe Kinderzimmer
Was gefällt nicht? Warum? Aufteilung Bäder im OG, unsicher bezogen auf Anzahl und Fläche der Fenster
Preisschätzung lt Architekt/Planer: 410.000 inkl. Keller und Baunebenkosten
Persönliches Preislimit fürs Haus, inkl Ausstattung: 435.000
favorisierte Heiztechnik: Nahwärme vorgeschrieben
Wenn Ihr verzichten müsst, auf welche Details/Ausbauten
-könnt Ihr nicht verzichten: 2 Duschmöglichkeiten, Kochinsel, Abwurfschacht
Warum ist der Entwurf so geworden, wie er jetzt ist?
Entsprechende/Welche Wünsche wurden vom Architekten umgesetzt
Was macht ihn in Euren Augen besonders gut oder schlecht?
Er ist interessant geworden, wir wissen nur nicht wie praktkabel.
Was ist die wichtigste/grundlegende Frage zum Grundriss in 130 Zeichen zusammengefasst?
Ist der Grunsriss sinnvoll, wir haben sonst fast immer nur Standardgrundrisse zu Doppelhaushälfte gesehen?
Ist die gerade Treppe zu steil? Sind die Baukosten realistisch?
Vielen Dank für euer Feedback!








wir möchten eine Doppelhaushälfte bauen die mit Hilfe eines Architekten geplant wird.
Danach erfolgt die Werkplanung und Einzelvergabe.
Wir haben einen Grundriss vorliegen und wollten hier dazu ein Feedback.
Der Grundriss ist z.T. etwas unkonventionell. Lt. Architekt alles so gut und machbar.
Hinweis: Ausschnitt des Vermessers ist eingenordet, in den Grundrissen fehlt die Himmelsrichtung leider.
Die Wohnküche ist genau Richtung SW ausgerichtet
Bebauungsplan/Einschränkungen
Größe des Grundstücks: 275 m2
Hang: nein
Grundflächenzahl: 0,4
Baufenster, Baulinie und -grenze: 2,80m Grenzabstand zu Weg
Randbebauung: ja, Fahrradschuppen
Anzahl Stellplatz: 0 (separate Garage)
Geschossigkeit: II+D
Dachform: Satteldach
Stilrichtung: modern
Ausrichtung: SW - NO
Maximale Höhen/Begrenzungen: 7m maximale Wandhöhe
weitere Vorgaben: Holzverschalung, Holz- oder Holz-Aluminium-Fenster, kein Stellplatz am Haus möglich
Anforderungen der Bauherren
Stilrichtung, Dachform, Gebäudetyp: modern, Satteldach, Doppelhaushälfte
Keller, Geschosse: Keller ja, Geschosse KG, EG, OG, DG
Anzahl der Personen, Alter: 4 (40, 35, 4, 6)
Raumbedarf im EG, OG: EG Wohnküche, OG Kinderzimmer und Bäder, DG Eltern und Mehrzweck
Büro: Familiennutzung und Homeoffice
Schlafgäste pro Jahr: 6 mal
offene oder geschlossene Architektur: offen
konservativ oder moderne Bauweise: modern
offene Küche, Kochinsel: ja, beides
Anzahl Essplätze: 6
Kamin: nein
Musik/Stereowand: nein
Balkon, Dachterrasse: nein
Garage, Carport: nein
Nutzgarten, Treibhaus: noch nicht geplant
weitere Wünsche/Besonderheiten/Tagesablauf, gern auch Begründungen, warum dieses oder das nicht sein soll:
Fußbodenheizung, Holzboden, Wäscheabwurfschacht
Hausentwurf
Von wem stammt die Planung:
-Architekt mit unseren Wünschen
Was gefällt besonders? Warum? große Glasfront nach SW im EG, Ausrichtung und Größe Kinderzimmer
Was gefällt nicht? Warum? Aufteilung Bäder im OG, unsicher bezogen auf Anzahl und Fläche der Fenster
Preisschätzung lt Architekt/Planer: 410.000 inkl. Keller und Baunebenkosten
Persönliches Preislimit fürs Haus, inkl Ausstattung: 435.000
favorisierte Heiztechnik: Nahwärme vorgeschrieben
Wenn Ihr verzichten müsst, auf welche Details/Ausbauten
-könnt Ihr nicht verzichten: 2 Duschmöglichkeiten, Kochinsel, Abwurfschacht
Warum ist der Entwurf so geworden, wie er jetzt ist?
Entsprechende/Welche Wünsche wurden vom Architekten umgesetzt
Was macht ihn in Euren Augen besonders gut oder schlecht?
Er ist interessant geworden, wir wissen nur nicht wie praktkabel.
Was ist die wichtigste/grundlegende Frage zum Grundriss in 130 Zeichen zusammengefasst?
Ist der Grunsriss sinnvoll, wir haben sonst fast immer nur Standardgrundrisse zu Doppelhaushälfte gesehen?
Ist die gerade Treppe zu steil? Sind die Baukosten realistisch?
Vielen Dank für euer Feedback!
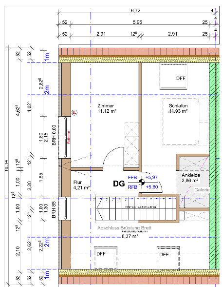
Stimmt, das kann man nicht rauslesen bei der Auflösung. Die Treppe ist 3,75m lang.
Die Lounge ist als kleiner Rückzugsraum gedacht. Buch lesen, Mitagsschlaf o.ä..
Badezimmer im DG ergab wohl einen Konflikt mit der Dachschräge. Es gab die Überlegung ein Bad vom Schlafzimmer aus zu planen. Dann ist die Nutzung durch alle aber eingeschränkt.
Im Arbeitsraum wird über die gesamte Länge eine Arbeitsplatte verbaut. Diese dient dann als Office, Bastel und Nähplatz. Da gab es im Netz ein schönes Beispiel.

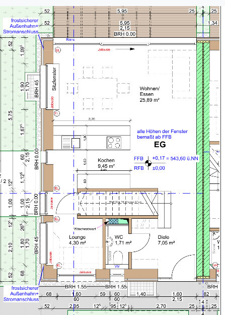
Die Lounge ist als kleiner Rückzugsraum gedacht. Buch lesen, Mitagsschlaf o.ä..
Badezimmer im DG ergab wohl einen Konflikt mit der Dachschräge. Es gab die Überlegung ein Bad vom Schlafzimmer aus zu planen. Dann ist die Nutzung durch alle aber eingeschränkt.
Im Arbeitsraum wird über die gesamte Länge eine Arbeitsplatte verbaut. Diese dient dann als Office, Bastel und Nähplatz. Da gab es im Netz ein schönes Beispiel.
Die Treppe ist zu kurz. 1 Stufe mehr währe kein Luxus. Ich würde über eine andere Treppenform nachdenken. Irgendwie zerschneidet die das Haus in 2 Teile. Der 1 Teil kommt mir etwas vor wie die Resterampe.
Der Arbeitsplatz ist nett, aber doch nicht 5 m lang. Und Schränke, Stauraum fehlt. Ist für mich ehr eine Notlösung.
Dusche sollte doch nach oben passen. Dann nehmt doch statt Ankleide ein Mini-Bad
Die Lounge finde ich sehr klein und der Küche würde etwas mehr Raum gut tun. Zumal ihr oben euren Rückzug habt, der wirklich ruhig ist.
Ich finde den Grundriss ungewöhnlich nur leider nicht unbedingt zum Guten. Ihr wollt nicht Standard, was ich gut finde, aber so ist es leider auch nichts. Für was ist das 2. Zimmer im DG?
Der Arbeitsplatz ist nett, aber doch nicht 5 m lang. Und Schränke, Stauraum fehlt. Ist für mich ehr eine Notlösung.
Dusche sollte doch nach oben passen. Dann nehmt doch statt Ankleide ein Mini-Bad
Die Lounge finde ich sehr klein und der Küche würde etwas mehr Raum gut tun. Zumal ihr oben euren Rückzug habt, der wirklich ruhig ist.
Ich finde den Grundriss ungewöhnlich nur leider nicht unbedingt zum Guten. Ihr wollt nicht Standard, was ich gut finde, aber so ist es leider auch nichts. Für was ist das 2. Zimmer im DG?
hmm ich finde den Arbetisbereich im DG ok für Elternhobbys, also eben Basteln, die PCs hinstellen, die Nähmaschine etc. Die Kinder sollten unten bleiben, die haben ja schon ihre eigene Etage. Ich würde wohl auch versuchen, ein Duschbad oben unterzubekommen, ich hab keine Lust wenn ich nachts muss, ne Treppe zu gehen...
Das größte Manko sehe ich aber grad im Wohnzimmer - habt ihr keinen TV? Wo soll der hin?
Da ist ja auch sonst null Stauraum. Oder habt ihr keine Möbel, gibts ja auch.
Das größte Manko sehe ich aber grad im Wohnzimmer - habt ihr keinen TV? Wo soll der hin?
Da ist ja auch sonst null Stauraum. Oder habt ihr keine Möbel, gibts ja auch.
Ähnliche Themen