Plano de nuestro bungalow

  • Erstellt am 14.06.2016 23:10:03

ypg

05.07.2016 16:38:22
  • #1


No, no lo tengo. Trabajo con Arcon+, esa empresa o el programa ya no existen. Compré el programa alrededor de 1995 por una suma considerable para esa época y recibía las actualizaciones anualmente de una arquitecta conocida. Creo que VA adquirió el software en algún momento y ahora lo comercializa. Por eso no tengo todas las novedades. Si el programa estuviera disponible para Apple, invertiría de nuevo una buena suma, pero así tengo que lidiar con la laptop con Windows 7 de mi esposo. Además, el programa tiene algunos errores conmigo: a veces se queda marcada más área en rojo, o la configuración del fondo se muestra incorrectamente.
El mobiliario en Arcon es en parte bastante pobre (roble rústico y estilo barato), para mi propia casa al menos pude añadir algunas texturas.

¿Qué hace ?
 

kbt09

05.07.2016 18:15:39
  • #2
Sí, los muebles no han mejorado mucho. Hace poco me permití algunas adiciones. Pero, tampoco quiero ser un diseñador de interiores .. y también tenía mis propias texturas para la planificación de mi apartamento. Eso también se puede resolver de manera simple y elegante.
 

sommer2017

06.07.2016 13:06:27
  • #3
Primero, siento no haber podido responder antes.
De todas formas, quiero agradecer nuevamente el esfuerzo que han puesto.

Como en este tiempo se han acumulado varios bocetos, intentaré resumirlo.
Nuestro consenso es, al menos por ahora, que todos los planos siempre implican algunos compromisos para nosotros.

Aunque me sienta culpable porque han puesto tanto empeño... Consideramos que nuestro propio plano es el compromiso menor.
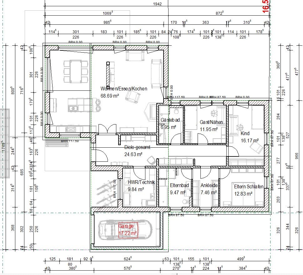
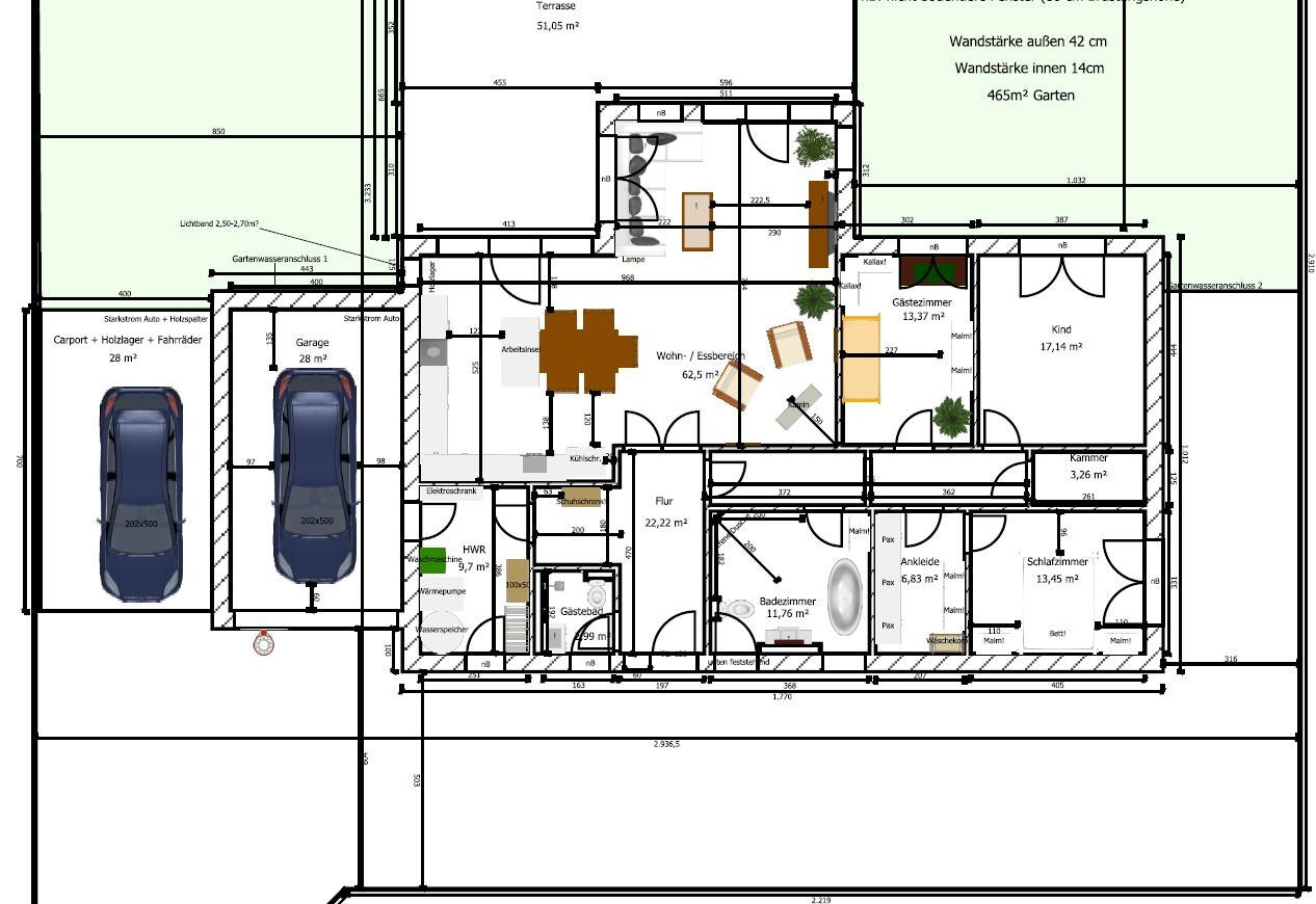
Sin embargo, tendremos en cuenta preguntar si en nuestra zona de la cocina es posible un frontón abierto para captar el sol del este.

También quiero comentar sobre sus planos individuales y espero que mis observaciones sean tomadas como comentarios meramente objetivos (la comunicación sin expresiones faciales es complicada). En todos los planos hay cosas que me gustan, pero para hacerlo más fácil, solo abordaré brevemente las cosas que no me gustan tanto:


Gracias por esta información valiosa en sí misma. Sin embargo, esto suena a costos adicionales y cierto riesgo, por lo que no lo consideraremos por ahora.


#75
Como consecuencia de lo mencionado:
Habitación infantil en la parte trasera de la sala (televisor)
Dormitorio junto a la pared del baño
Además:
Aunque solo haya dos puertas, son varias las entradas que salen de la sala...


Soy consciente de ello, pero primero quería exponer todos los deseos. Cuáles son realizables es otro tema.


#77
Demasiado enrevesado (pasillo, niño y baño)

Me gusta la sala. Incluso sería posible un sistema surround allí.
Sin embargo, siento que hay un poco poca luz en la parte de la sala...


#78
¿Estoy confundido? Escribes:



Sin embargo, al sumar las medidas, veo en tu caso una longitud del pasillo de ~11-12 m?

También lo descartamos porque queremos ahorrar costos adicionales de una envolvente exterior enrevesada... El saliente en nuestra casa ya es suficiente...

Me imagino que un garaje más estrecho de 4 m es bastante pequeño.
 

ypg

06.07.2016 21:42:49
  • #4
Bueno, no sé si Kerstin ( ) todavía tiene ganas de trabajar en su Tetris - esta semana he resuelto suficientes problemas, ya me espera el siguiente... y por eso espero para vosotros que encontréis un buen BU que os pueda convencer con implementaciones funcionales.
 

kbt09

07.07.2016 22:04:27
  • #5
Creo que tú solo conoces de alguna manera cabañas de cartón.


Tus preocupaciones por el ruido son respetables, pero están más que exageradas.
Una pared del cuarto de niños que da al salón con un armario delante... ¿de dónde va a provenir el ruido ahí?

Un dormitorio junto al baño de las personas que usan el dormitorio y solo la pared con el lavabo... ¿de dónde va a venir el ruido? Por ejemplo, en mi caso, la tubería de desagüe del WC de los pisos superiores pasa por mi dormitorio, está bien aislada y no escucho NADA, incluso cuando sé que en el piso de arriba están tirando de la cadena. Probado especialmente.


Y sí, el pasillo está más corto en la Variante 78, porque la zona delantera la consideraría un recibidor muy útil que tiene todo lo que uno necesita en un recibidor.

Un garaje de 300 cm de ancho interior debería ser suficiente para un coche. Las bicicletas las tengo colocadas convenientemente fuera.

Y realmente ya terminó el Tetris. Sigo encontrando el pasillo en


todavía demasiado largo, ya que solo sirve como paso, y la despensa también es más bien poco práctica. Y la vista que queréis conseguir o el grado de libertad de la propiedad tampoco logro entenderlo, al menos según como interpreto el plano de situación.

... y, si comparas ambos planos, cada uno con garaje, entonces hay en mi Variante 10 puntos clave, en la tuya 12.
 

Temas similares
23.06.2015Se solicitan opiniones sobre nuestro plano166
30.07.2014Bungalow de 140 m² con garaje en el plano13
05.09.2014Plano de planta de una casa pasiva de 170 m² con garaje18
26.02.2015¿Ideas para el plano de distribución del salón?39
11.06.2015Casa unifamiliar con apartamento independiente y garaje14
23.07.2015¿Casa sin garaje ni sótano? ¿Ampliación del ático? ¿Lipoma?85
29.07.2015Plano de casa unifamiliar con garaje18
27.08.20152 pisos completos, pasaje al garaje, cuarto de servicio debajo de la escalera25
18.10.2016Planificar la ubicación de la casa y el garaje en la ventana de construcción *Pre-planeación*129
14.11.2016¿Alfombra en el dormitorio a pesar de la calefacción por suelo radiante?36
13.10.2016¿Baño extra desde el dormitorio o un trastero?29
29.11.2016Planos de casa unifamiliar y garaje32
10.09.2017Plano de planta, casa unifamiliar alargada, garaje integrado, sin sótano16
09.02.2018Conexión Dormitorio / Vestidor / Baño16
19.04.2018Plano de casa unifamiliar (aproximadamente 170 m²) con garaje - ubicación en pendiente35
02.07.2018Escalera en la sala de estar como tendencia - ¿Pros y contras?26
26.09.2018Plano de una casa unifamiliar de 140 m² con garaje - ¿Está bien la orientación de la casa?18
18.03.2019Planificación de plano de casa unifamiliar (190 m²) con garaje18
05.11.2021Plano de bungalow de 150 m² con garaje79
28.11.2022¿Se necesitan cables LAN en el garaje?107

Oben