T
Trillian7816.02.15 01:30Hallo,
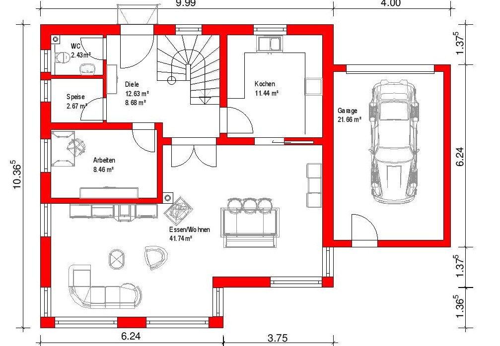
wir sind mit der Grobplanung fertig und hätten gerne Meinungen, besonders zum Lichteinfall bzw. Fenster.
Fenster Gäste-WC soll nach Norden, das bodentiefe Fenster im Bad im OG kommt auch auf jeden Fall weg.
Das Büro im EG soll jetzt ein Hauswirtschaftsraum werden und die Speis eine Garderobe.
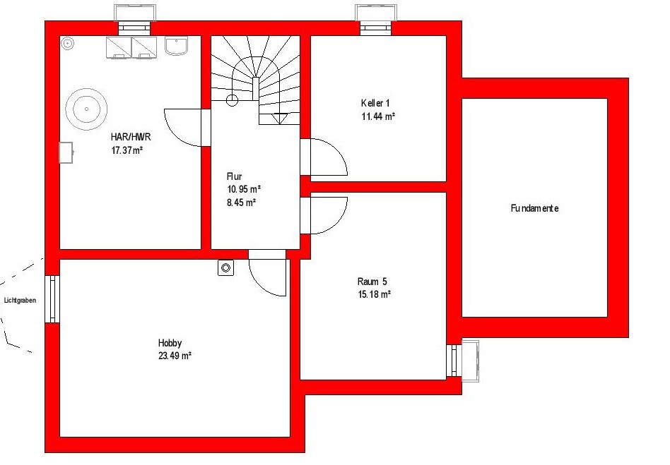
Dafür soll das Büro in den 15m² großen Kellerraum, da es wirklich nicht oft benutzt wird. Jetzt habe ich aber große Bedenken, dass der Keller zu düster wird.
Da an der Südseite Terrasse wird, können hier keine Lichtschächte angebracht werden. Der große Kellerraum soll eigentlich mal zum feiern genutzt werden. Der Lichtgraben soll noch eine Außentreppe werden. So wären keine weiteren Fenster in dem Raum und auch das künftige Büro im Keller wäre sehr düster, da wegen der Garage das Fenster klein ausfällt.
Gleiche Bedenken habe ich in der Küche, auch hier wegen Garage nur ein Fenster an der Nordseite.
Ebenso im Schlafzimmer. Hier ein Fenster nach Osten, aber direkt vor dem Garagendach. Das schmale Fenster an der Nordseite soll weg, gefällt uns nicht. Glaube hier geht's nicht ohne Dachfenster. Was meint ihr?
Auch in die Kinderzimmer auf der Südseite noch Dachfenster einplanen?
Und fällt Euch auf den ersten Blick sonst noch etwas auf, was nicht so geschickt ist?
Danke für Feedback!





wir sind mit der Grobplanung fertig und hätten gerne Meinungen, besonders zum Lichteinfall bzw. Fenster.
Fenster Gäste-WC soll nach Norden, das bodentiefe Fenster im Bad im OG kommt auch auf jeden Fall weg.
Das Büro im EG soll jetzt ein Hauswirtschaftsraum werden und die Speis eine Garderobe.
Dafür soll das Büro in den 15m² großen Kellerraum, da es wirklich nicht oft benutzt wird. Jetzt habe ich aber große Bedenken, dass der Keller zu düster wird.
Da an der Südseite Terrasse wird, können hier keine Lichtschächte angebracht werden. Der große Kellerraum soll eigentlich mal zum feiern genutzt werden. Der Lichtgraben soll noch eine Außentreppe werden. So wären keine weiteren Fenster in dem Raum und auch das künftige Büro im Keller wäre sehr düster, da wegen der Garage das Fenster klein ausfällt.
Gleiche Bedenken habe ich in der Küche, auch hier wegen Garage nur ein Fenster an der Nordseite.
Ebenso im Schlafzimmer. Hier ein Fenster nach Osten, aber direkt vor dem Garagendach. Das schmale Fenster an der Nordseite soll weg, gefällt uns nicht. Glaube hier geht's nicht ohne Dachfenster. Was meint ihr?
Auch in die Kinderzimmer auf der Südseite noch Dachfenster einplanen?
Und fällt Euch auf den ersten Blick sonst noch etwas auf, was nicht so geschickt ist?
Danke für Feedback!
In welcher Brüstungshöhe sitzen denn die Fenster in Bad und Schlafzimmer hier? Und, welche Kniestockhöhe ist dort angedacht?
Dann die Treppe .. 14 Steigungen? Welches Steigung/Auftrittsmaß hat die Treppe denn?
Büro im Keller .. für was wird das Büro genutzt? Mehr Aktensammlung oder tatsächlich Arbeit von zu Hause aus?
Gibt es hier schon Zusammenarbeit mit einem Architekten oder so?
Dann die Treppe .. 14 Steigungen? Welches Steigung/Auftrittsmaß hat die Treppe denn?
Büro im Keller .. für was wird das Büro genutzt? Mehr Aktensammlung oder tatsächlich Arbeit von zu Hause aus?
Gibt es hier schon Zusammenarbeit mit einem Architekten oder so?
Ähnliche Themen