Wie sollen wir unsere Küche anordnen? Habt ihr Ideen?

4,80 Stern(e) 4 Votes
Zuletzt aktualisiert 16.10.2025
Sie befinden sich auf der Seite 2 der Diskussion zum Thema: Wie sollen wir unsere Küche anordnen? Habt ihr Ideen?
>> Zum 1. Beitrag <<

Y

ypg

@Jaydee, ich denke, der Zugang in die Küche wäre zu schmal.
Aber ich finde die Idee mit dem Seitenfenster gut gelöst, auch wenn man zum Putzen auf dem Tresen steigen muss (mach ich zur Zeit auch und ist nicht so schlimm wie gefühlt )
 
Jaydee

Jaydee

Ja, das mit dem Durchgang wird eng, da hast du Recht. Der Abstand zwischen der Zeile vor dem Fenster und der Insel beträgt jetzt 1 m. Man könnte ihn auf 1,20 m vergrößern.

L-Form wird schwierig, weil die Seite, auf der die Abstellkammer liegt, zu kurz ist. 2-Zeiler ist auch schwierig, weil der Abstand zwischen den Zeilen dann zu groß wäre.

War jetzt auch nur kurz auf die Schnelle geplant.
 
Jaydee

Jaydee

Boah, das ist wirklich schwierig. Nimmt man die Speis noch dazu, ist es ein wirklich sehr großer Raum. OK, da bekommt man dann auch 'ne Menge Möbel rein, aber er könnte vielleicht zu groß wirken.

@ Klötzchen
Melde Dich am Besten mal im o.g. Forum an (ist wohl auch ein Partnerforum vom Hausbau-Forum). Da wird Dir am Besten geholfen!
 
Y

ypg

So, habe mal schnell etwas rumprobiert, wonach das herausgekommen ist:

Mist, wie füge ich hier PDFs ein????? Weiss das einer hier??
 
Y

ypg

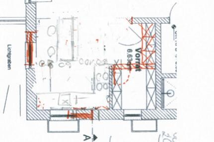
1. Entwurf... Verkleinerung der Speis und dadurch in 180 Breite Möglichkeiten für hochschränke... leider ist dann Kühlschrank zu weit von der Zubereitung entfernt

grundrissplan-hausbauf-kueche-schlafzimmer-wohnzimmer.jpg

2. Entwurf... Arbeitsfläche (kochen) gewechselt, Tresen gedreht... immer noch Kühlschrank zu weit weg
grundriss-hausbau-plan-raumaufteilung.jpg

3. Entwurf: Speis verschmälert, dadurch Platz für eingekofferte Hochschränke... Hängeschränke können links und rechts vom Herd/Dunstabzug sein für Gewürze und co.

handgezeichneter-grundriss-hausbau.jpg

4. Entwurf: wieder zum Ursprung zurück (Speis so, wie geplant)... Hochschränke an die Außenwand, Tresen neben der Speiswand

grundrissplanung-hausbau-kuechenbereich.jpg

Mir würde Entwurf 3 am besten gefallen, aber ich würde eine gerade Wand in der Speis favorisieren... seitliches Fenster etwas Rtg Mitte vermitteln, Spüle mittig des vorderen Fensters und beides mittig der 3,15 Breite.

Vielleicht ist da ein Ansatz bei, den Ihr für Eure Planung nutzen könnt. Feedback wär nicht schlecht, wie Ihr Euch entschieden habt

2D Grundriss eines Wohn- und Schlafbereichs mit Küche und Bad, Planzeichnung


Grundriss eines Hauses mit Innenwänden, Türen und Raumaufteilung


Gezeichneter Haus-Grundriss mit Zimmern, Türen und Maßangaben in Skizzenform


Grundriss eines Hauses mit Küchenbereich und Wohnraum im Entwurf
 
Zuletzt aktualisiert 16.10.2025
Im Forum Grundrissplanung / Grundstücksplanung gibt es 2516 Themen mit insgesamt 87375 Beiträgen


Ähnliche Themen zu Wie sollen wir unsere Küche anordnen? Habt ihr Ideen?
Nr.ErgebnisBeiträge
1Allererster Grundriss-Entwurf des Erdgeschosses - Seite 42267
2Bitte um Tipps zum Entwurf EG Grundriss 33
3Grundriss erster Entwurf - Meinungen erwünscht - Seite 221
4Entwurf Grundriss Bungalow Meinungen - Seite 422
5Unser Grundriss-Entwurf, eure Meinungen 20
6Entwurf - alle Richtungen bei Neubau vom Einfamilienhaus 91
7Entwurf Einfamilienhaus mit Garage/Carport - bitte um Bewertung - Seite 222
8Küchenplanung mit Insel und bodentiefe Fenster 12
9Planung unseres Einfamilienhaus - Was meint ihr zum Entwurf? - Seite 656
10Einfamilienhaus als Reihenmittelhaus an Hanglage - Entwurf - Seite 318
11Grundriss-Entwurf Stadtvilla mit Doppelgarage - Seite 238
12Erster Entwurf des Grundrisses für 150m2 Haus 31
13Erster Entwurf Grundriss Einfamilienhaus (ca. 200qm) - Bitte um Feedback - Seite 746
14Meinungen zu unserem Grundriss Entwurf erwünscht - Seite 670
15Grundriss Neubau Einfamilienhaus: Fenster/Türen/Innenwände Größe/Anordnung ok? 20
16Entwurf für ein Einfamilienhaus mit 160-180qm - Verbesserungsvorschläge? - Seite 7122
17Einfamilienhaus, ~160m², Bauhausstil; Erster Entwurf nach unseren Wünschen - Seite 32420
18Einfamilienhaus 180-190qm auf 10x20m Baufenster, erster Entwurf GU - Seite 278
19Unser Grundriss-Entwurf für ein günstiges Haus - Seite 4348
20OG Stadtville optimieren. Fenster Bodentief - Seite 13104

Oben