Hallo, uns gefallen zwei verschiedene Grundrisse und wir können uns nicht recht entscheiden.
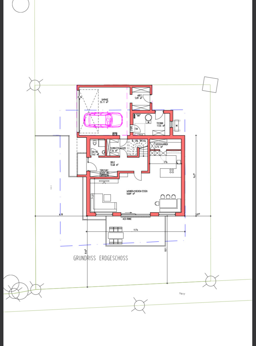
Das Grundstück ist 500qm, ohne Hang. Es sollen zwei Vollgeschosse mit Betondecke werden.
Wir sind zwei Erwachsene und zwei Kleinkinder. Wir hätten gern mindestens ein Büro und gern noch ein Zimmer falls noch ein Nachwuchs kommt. In der Option 1 könnte das Wohnzimmer abgetrennt werden und als Zimmer genutzt werden. Option 2 hat generell zwei Büros eingeplant.
Was gefällt euch besser?
Option1


Option 2


Das Grundstück ist 500qm, ohne Hang. Es sollen zwei Vollgeschosse mit Betondecke werden.
Wir sind zwei Erwachsene und zwei Kleinkinder. Wir hätten gern mindestens ein Büro und gern noch ein Zimmer falls noch ein Nachwuchs kommt. In der Option 1 könnte das Wohnzimmer abgetrennt werden und als Zimmer genutzt werden. Option 2 hat generell zwei Büros eingeplant.
Was gefällt euch besser?
Option1
Option 2
Sollen es jeweils geradwandige OG' sein ?
https://www.instagram.com/11antgmxde/
https://www.linkedin.com/company/bauen-jetzt/
https://www.instagram.com/11antgmxde/
https://www.linkedin.com/company/bauen-jetzt/
Hm.. ich frage mich eigentlich, ob hier die Grundrisse einfach von bestehenden Häusern abgekupfert sind.
Bei der zweite Version steht im Obergeschoss "Erdgeschoss".. in dem sehe ich den bekannten Grundriss mit den drei Kinderzimmer von Talbau.
Das Erdgeschoss kenne ich bedingt auch, ich glaube es war Weberhaus.
Dann ist festzustellen, dass Außenwände keine Fenster haben - ist das Schlamperei oder einfach erstmal als unwichtig gesehen?
Für einen Grundriss, bzw Hausentwurf gehören ja Fenster zur Beurteilung mit dabei. Hier gibt es dunkle Küchen, die Seitenfassade (in welche Himmelsrichtung auch immer sie gehen möge) hat gar keine Fenster. Wie kommt man sich denn da vor im Haus? Licht kommt nicht rein, nur von einer Seite.
Wie auch immer. Version 1 zeugt nicht gerade mit einer funktionellen Küche für ein 4.Personen-Haushalt, da gehört die Speis erst einmal weg um Platz für eine funktionelle Küche zu schaffen.
Insgesamt kann ich die Zahlen nicht lesen. Die Fotos sind zu klein und dadurch unscharf.
Ein Büro zwischen zwei Kinderzimmer zu legen empfinde ich auch nicht durchdacht. Mag ja sein, dass es irgendwann ein Kinderzimmer wird, aber vorerst würde ich es nach außen legen.
Der "zweite Entwurf" hat durch die Küche zumindest etwas großzügigeres. Und auch das Obergeschoss ist mit Korrekturen durchdachter.
Allerdings erreicht mich dieser große lange und dunkle Flur überhapt nicht. Wie kommt denn der zustande? Das geht doch viel netter, wenn man Küche und Wohnbereich tauscht?!
Ich sehe also in beiden noch sehr viel Potential nach oben.
Bei.. wie viel sind das? 97qm auf einer Ebene?.. ist ja wohl mehr drin.
.. und wenn ich mir Variante 2 nochmals genauer anschaue, dann frage ich mich, wo da die Wäsche gemacht wird? Wäschewaschen und Haushalt besteht doch aus mehr als eine Waschmaschine in das Bad stellen. Der Technikraum ist nur von der Garage aus zu begehen und mit 6-7qm einfach und schlicht als einzige Lagerfläche viel zu klein. Stauraum für Koffer und co. gibt es nahezu gar nicht.
Bei der zweite Version steht im Obergeschoss "Erdgeschoss".. in dem sehe ich den bekannten Grundriss mit den drei Kinderzimmer von Talbau.
Das Erdgeschoss kenne ich bedingt auch, ich glaube es war Weberhaus.
Dann ist festzustellen, dass Außenwände keine Fenster haben - ist das Schlamperei oder einfach erstmal als unwichtig gesehen?
Für einen Grundriss, bzw Hausentwurf gehören ja Fenster zur Beurteilung mit dabei. Hier gibt es dunkle Küchen, die Seitenfassade (in welche Himmelsrichtung auch immer sie gehen möge) hat gar keine Fenster. Wie kommt man sich denn da vor im Haus? Licht kommt nicht rein, nur von einer Seite.
Wie auch immer. Version 1 zeugt nicht gerade mit einer funktionellen Küche für ein 4.Personen-Haushalt, da gehört die Speis erst einmal weg um Platz für eine funktionelle Küche zu schaffen.
Insgesamt kann ich die Zahlen nicht lesen. Die Fotos sind zu klein und dadurch unscharf.
Ein Büro zwischen zwei Kinderzimmer zu legen empfinde ich auch nicht durchdacht. Mag ja sein, dass es irgendwann ein Kinderzimmer wird, aber vorerst würde ich es nach außen legen.
Der "zweite Entwurf" hat durch die Küche zumindest etwas großzügigeres. Und auch das Obergeschoss ist mit Korrekturen durchdachter.
Allerdings erreicht mich dieser große lange und dunkle Flur überhapt nicht. Wie kommt denn der zustande? Das geht doch viel netter, wenn man Küche und Wohnbereich tauscht?!
Ich sehe also in beiden noch sehr viel Potential nach oben.
Bei.. wie viel sind das? 97qm auf einer Ebene?.. ist ja wohl mehr drin.
.. und wenn ich mir Variante 2 nochmals genauer anschaue, dann frage ich mich, wo da die Wäsche gemacht wird? Wäschewaschen und Haushalt besteht doch aus mehr als eine Waschmaschine in das Bad stellen. Der Technikraum ist nur von der Garage aus zu begehen und mit 6-7qm einfach und schlicht als einzige Lagerfläche viel zu klein. Stauraum für Koffer und co. gibt es nahezu gar nicht.
R
roteweste21.09.25 16:35Eine Schönheit sind beide nicht.
Ohne genau Informationen zum Grundstück, Budget und Raumprogramm wird man da auch nicht viel mehr sagen können. Lustig finde ich den ewig großen Bereich zwischen Ess- und Wohnzimmer und der vorgeschlagenen Möblierung mit der Sitzbank und Eck. Das wollt ihr doch nicht wirklich so haben?
Ohne genau Informationen zum Grundstück, Budget und Raumprogramm wird man da auch nicht viel mehr sagen können. Lustig finde ich den ewig großen Bereich zwischen Ess- und Wohnzimmer und der vorgeschlagenen Möblierung mit der Sitzbank und Eck. Das wollt ihr doch nicht wirklich so haben?
P
Papierturm21.09.25 18:24Wie @ypg schon schrieb wirken beide Entwürfe irgendwie unvollständig. Da fehlen Fenster. Da fehlt Alltagstauglichkeit in verschiedenen Bereichen.
Auch finde ich es schwierig, dass hier nicht zwei von den Raumanforderungen her gleichwertige Entwürfe gegenüber gestellt werden.
Als Planungsphase würde ich so vorgehen:
1. Bedarfsanalyse: Was brauchen wir ("must haves"), was wäre nett ("nice to haves")?
2. Was gibt das Grundstück vor? (Bebauungsplan, Zuwegung, Hang, Besonderheiten wie Aussicht, Umgebungsbebauung und sehr viel mehr.)
3. Finanzplanung: Gibt primär die Hausgröße vor, sowie Nebenanlagen (z.B. Garagen vs. Carport vs. Schotterplatz).
Aus den "must haves" ergibt sich die Raumanforderungen. Also grundlegende Entscheidung: Braucht es den zusätzlichen Raum? Falls ja, Entwurf #2. Falls nein, Entwurf #1.
Allerdings sollte man es sich nicht so einfach machen. Ich bin mir fast sicher, dass sobald die Raumanforderungen klar sind, die Räume anders angeordnet werden könnten, um sowohl mehr Alltagstauglichkeit als auch mehr Wohnqualität zu erschaffen. (Hiermit meine ich z.B. die vielen dunklen "Schläuche" in Entwurf 2.)
Auch finde ich es schwierig, dass hier nicht zwei von den Raumanforderungen her gleichwertige Entwürfe gegenüber gestellt werden.
Als Planungsphase würde ich so vorgehen:
1. Bedarfsanalyse: Was brauchen wir ("must haves"), was wäre nett ("nice to haves")?
2. Was gibt das Grundstück vor? (Bebauungsplan, Zuwegung, Hang, Besonderheiten wie Aussicht, Umgebungsbebauung und sehr viel mehr.)
3. Finanzplanung: Gibt primär die Hausgröße vor, sowie Nebenanlagen (z.B. Garagen vs. Carport vs. Schotterplatz).
Aus den "must haves" ergibt sich die Raumanforderungen. Also grundlegende Entscheidung: Braucht es den zusätzlichen Raum? Falls ja, Entwurf #2. Falls nein, Entwurf #1.
Allerdings sollte man es sich nicht so einfach machen. Ich bin mir fast sicher, dass sobald die Raumanforderungen klar sind, die Räume anders angeordnet werden könnten, um sowohl mehr Alltagstauglichkeit als auch mehr Wohnqualität zu erschaffen. (Hiermit meine ich z.B. die vielen dunklen "Schläuche" in Entwurf 2.)
Ähnliche Themen