M
Massivhaus201905.01.20 14:00Hi,
bitte um Verbesserungen...
Bebauungsplan/Einschränkungen
Größe des Grundstücks 900m²
Hang nein
Grundflächenzahl 0,4
Geschossflächenzahl 0,8
Baufenster, Baulinie und -grenze ja
Randbebauung ja
Anzahl Stellplatz DG
Geschossigkeit 2 Vollgeschosse
Dachform Satteldach
Stilrichtung Jura
Ausrichtung
Maximale Höhen/Begrenzungen
weitere Vorgaben
Anforderungen der Bauherren
Stilrichtung, Dachform, Gebäudetyp Satteldach, Vollgeschoss, Jurastil
Keller, Geschosse Nein, 2 Vollgeschosse
Anzahl der Personen, Alter aktuell 2 später Max. 4
Raumbedarf im EG, OG 80m²
Büro: Familiennutzung oder Homeoffice? Büro/Gästezimmer
Schlafgäste pro Jahr
offene oder geschlossene Architektur Mix
konservativ oder moderne Bauweise Modern
offene Küche, Kochinsel offene Küche mit Insel
Anzahl Essplätze 4-6
Kamin ja
Musik/Stereowand
Balkon, Dachterrasse Terrasse
Garage, Carport DG
Nutzgarten, Treibhaus
weitere Wünsche/Besonderheiten/Tagesablauf, gern auch Begründungen, warum dieses oder das nicht sein soll
Hausentwurf
Von wem stammt die Planung: eigener Entwurf
-Planer eines Bauunternehmens
-Architekt
-Do-it-Yourself
Was gefällt besonders? Warum?
Was gefällt nicht? Warum?
Preisschätzung lt Architekt/Planer:
Persönliches Preislimit fürs Haus, inkl Ausstattung:
favorisierte Heiztechnik: Gas-/Solar
Wenn Ihr verzichten müsst, auf welche Details/Ausbauten
-könnt Ihr verzichten: Speisekammer
-könnt Ihr nicht verzichten: Hauswirtschaftsraum
Warum ist der Entwurf so geworden, wie er jetzt ist? ZB
Standardentwurf vom Planer? eigene Planung
Entsprechende/Welche Wünsche wurden vom Architekten umgesetzt?
Ein Gemisch aus vielen Beispielen aus div. Magazinen...
Was macht ihn in Euren Augen besonders gut oder schlecht?
Was ist die wichtigste/grundlegende Frage zum Grundriss in 130 Zeichen zusammengefasst?
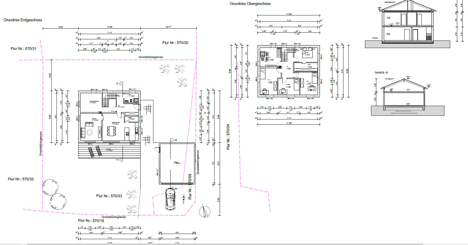
was haltet ihr von dem Plan?
aktuell wird die Speisekammer wegkommen da sonst kein Platz für hochschränke ist
die Wand im WZ/EZ wird geschlossen und in der Mitte durch eine Schiebetür geöffnet, da der Kamin als Raumteiler dienen soll (Wand bis oben zu)


bitte um Verbesserungen...
Bebauungsplan/Einschränkungen
Größe des Grundstücks 900m²
Hang nein
Grundflächenzahl 0,4
Geschossflächenzahl 0,8
Baufenster, Baulinie und -grenze ja
Randbebauung ja
Anzahl Stellplatz DG
Geschossigkeit 2 Vollgeschosse
Dachform Satteldach
Stilrichtung Jura
Ausrichtung
Maximale Höhen/Begrenzungen
weitere Vorgaben
Anforderungen der Bauherren
Stilrichtung, Dachform, Gebäudetyp Satteldach, Vollgeschoss, Jurastil
Keller, Geschosse Nein, 2 Vollgeschosse
Anzahl der Personen, Alter aktuell 2 später Max. 4
Raumbedarf im EG, OG 80m²
Büro: Familiennutzung oder Homeoffice? Büro/Gästezimmer
Schlafgäste pro Jahr
offene oder geschlossene Architektur Mix
konservativ oder moderne Bauweise Modern
offene Küche, Kochinsel offene Küche mit Insel
Anzahl Essplätze 4-6
Kamin ja
Musik/Stereowand
Balkon, Dachterrasse Terrasse
Garage, Carport DG
Nutzgarten, Treibhaus
weitere Wünsche/Besonderheiten/Tagesablauf, gern auch Begründungen, warum dieses oder das nicht sein soll
Hausentwurf
Von wem stammt die Planung: eigener Entwurf
-Planer eines Bauunternehmens
-Architekt
-Do-it-Yourself
Was gefällt besonders? Warum?
Was gefällt nicht? Warum?
Preisschätzung lt Architekt/Planer:
Persönliches Preislimit fürs Haus, inkl Ausstattung:
favorisierte Heiztechnik: Gas-/Solar
Wenn Ihr verzichten müsst, auf welche Details/Ausbauten
-könnt Ihr verzichten: Speisekammer
-könnt Ihr nicht verzichten: Hauswirtschaftsraum
Warum ist der Entwurf so geworden, wie er jetzt ist? ZB
Standardentwurf vom Planer? eigene Planung
Entsprechende/Welche Wünsche wurden vom Architekten umgesetzt?
Ein Gemisch aus vielen Beispielen aus div. Magazinen...
Was macht ihn in Euren Augen besonders gut oder schlecht?
Was ist die wichtigste/grundlegende Frage zum Grundriss in 130 Zeichen zusammengefasst?
was haltet ihr von dem Plan?
aktuell wird die Speisekammer wegkommen da sonst kein Platz für hochschränke ist
die Wand im WZ/EZ wird geschlossen und in der Mitte durch eine Schiebetür geöffnet, da der Kamin als Raumteiler dienen soll (Wand bis oben zu)
Massivhaus2019 schrieb:
Anzahl der Personen, Alter aktuell 2 später Max. 4Massivhaus2019 schrieb:
Schlafgäste pro JahrMassivhaus2019 schrieb:
weitere Wünsche/Besonderheiten/Tagesablauf, gern auch Begründungen, warum dieses oder das nicht sein sollMassivhaus2019 schrieb:
Was gefällt besonders? Warum?
Was gefällt nicht? Warum?
Preisschätzung lt Architekt/Planer:
Persönliches Preislimit fürs Haus, inkl AusstattungMassivhaus2019 schrieb:
Warum ist der Entwurf so geworden, wie er jetzt istUnd dann mal bitte ausfüllen!
M
Massivhaus201905.01.20 17:32ypg schrieb:
Und dann mal bitte ausfüllen!Dieser Beitrag soll bitte gelöscht werden, ist fehlerhaft.LukeLuu schrieb:
Sorry für Off-Toppic, aber mit welchem Programm hast du die Grundrisse erstellt? @Massivhaus2019Das ist ein Architekten-Entwurf
Interessante Treppenform. Kuckmada: https://www.hausbau-forum.de/threads/Grundriss-für-11m-x-8-25m-ok.24781/ - da siehst Du gewissermaßen eine Déja-Vu-Diskussion
https://www.instagram.com/11antgmxde/
https://www.linkedin.com/company/bauen-jetzt/
https://www.instagram.com/11antgmxde/
https://www.linkedin.com/company/bauen-jetzt/
Ähnliche Themen