
Climbee
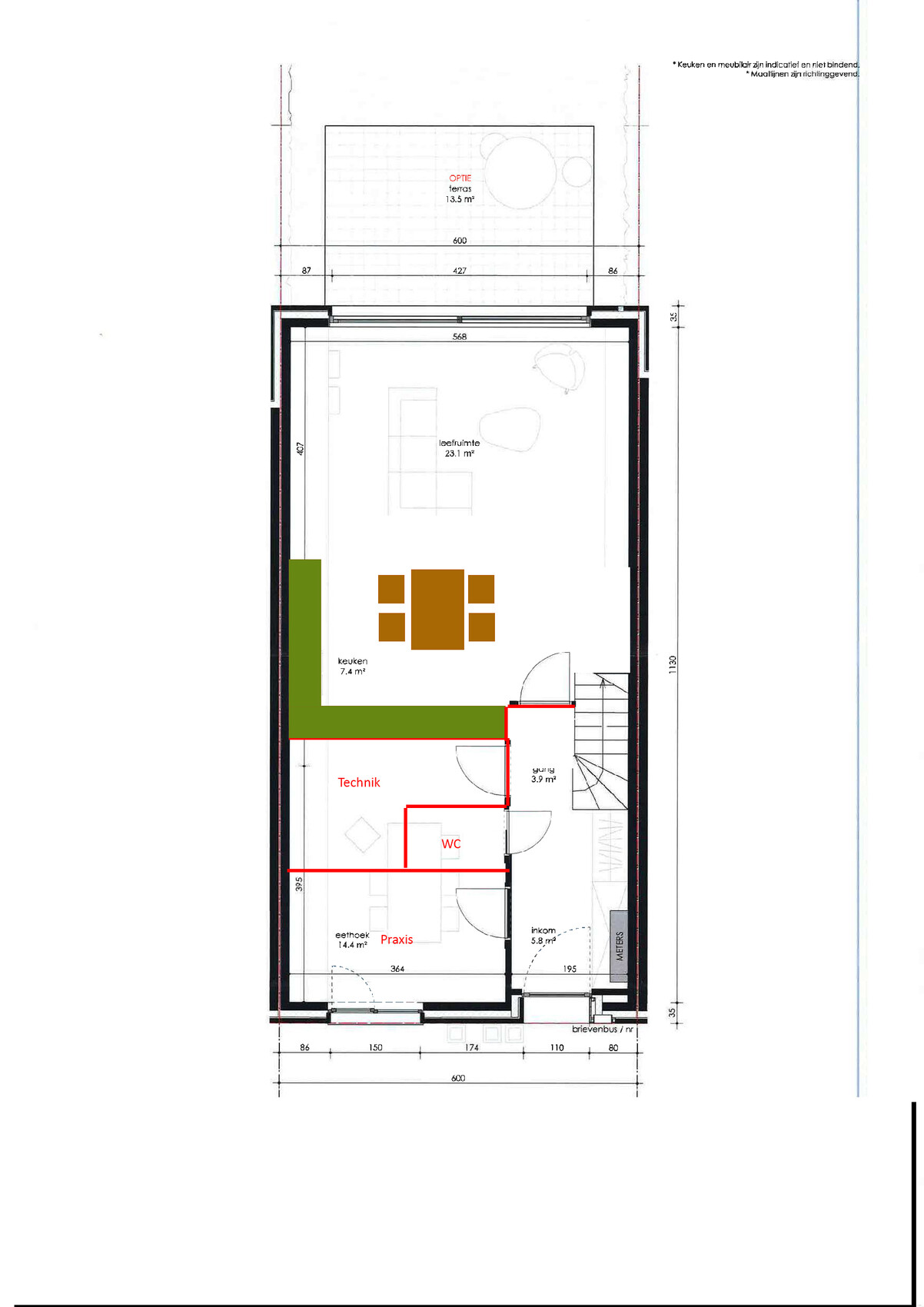
Vielleicht würde ich da aber vorab den Steuerberater konsultieren. Einen heimischen Arbeitsraum kann man nämlich wunderbar von der Steuer absetzen (incl. anteilig aller Haus-Nebenkosten), aber, soviel ich weiß, nur solange es sich dabei um einen abgetrennten Raum handelt.
Wenn ich also einen Teil meines Gehaltes zu Hause verdienen möchte, würde ich auf jeden Fall abklären, ob dazu steuerlich ein eigener Raum nötig ist oder nicht. In Zeiten von mobile working kann es ja sein, daß das nicht mehr so strikt gesehen wird, aber da würde ich mich absichern.
Ansonsten fände ich die Möglichkeit mit einer abtrennbaren Ecke sehr reizvoll. Aber fühlen sich die Patienten dann auch in einem "sicheren" Raum? Also ich weiß halt nicht, wie ich mich mit evtl. meinen tiefsten Seelengeheimnissen jemanden anvertrauen würde, wo ich irgendwie das Gefühl habe, da kann jetzt jederzeit jemand ins Zimmer purzeln. Da wäre mir wahrscheinlich ein kleiner, aber doch abgeschlossener Raum lieber. Aber das ist etwas, was eine Therapeutin wohl besser entscheiden kann.
Wenn ich also einen Teil meines Gehaltes zu Hause verdienen möchte, würde ich auf jeden Fall abklären, ob dazu steuerlich ein eigener Raum nötig ist oder nicht. In Zeiten von mobile working kann es ja sein, daß das nicht mehr so strikt gesehen wird, aber da würde ich mich absichern.
Ansonsten fände ich die Möglichkeit mit einer abtrennbaren Ecke sehr reizvoll. Aber fühlen sich die Patienten dann auch in einem "sicheren" Raum? Also ich weiß halt nicht, wie ich mich mit evtl. meinen tiefsten Seelengeheimnissen jemanden anvertrauen würde, wo ich irgendwie das Gefühl habe, da kann jetzt jederzeit jemand ins Zimmer purzeln. Da wäre mir wahrscheinlich ein kleiner, aber doch abgeschlossener Raum lieber. Aber das ist etwas, was eine Therapeutin wohl besser entscheiden kann.