Hausbau - Ratgeber
Bauherrenhilfe
- Bauherrenhilfe vor Vertragsabschluss
-- Warum einen unabhängigen Baubetreuer?
-- Vertragsgrundlagen
-- Bausumme
-- Zahlungsplan zur Kostenkontrolle
-- Pflichten des Bauherren vor Vertragsabschluss
-- Unterlagen beim Hausbau vor Vertragsabschluss
- Bauherrenhilfe nach Vertragsabschluss
-- Bauantrag bei Behörden
-- Bau-Genehmigungsverfahren bei Baubehörden
-- Bauspezifische Versicherungen
-- Bauzeitenplan
-- Baubeginn - die Letzten Pflichten der Bauherrschaft
- Bauherrenhilfe während der Bauzeit
- Gewährleistungsansprüche
- Bauabnahme
Baufinanzierung
- Baufinanzierung - Allgemeine Fragen
- Kreditarten
- Kredit-Konditionen
- Bausparen
- Staatliche Förderungen
- Verkehrswert
- Haushaltsrechnung und Bonität
Hausbau Planung
- Haustypen
- Hausbau Vorbereitungsarbeiten
- Das Baugrundstück
- Baugrund beim Hausbau
- Baurecht
- Gebäudeschutz
- Erdarbeiten und Wasserhaltung
- Stützmauern
- Einfriedung
- Untergeschoss
- Kanalisation
- Tragende Elemente
- Nichttragende Innenwände
- Fundation / Fundament
- Deckenkonstruktionen
- Dächer
- Kaminanlagen
- Treppen Rampen Leitern
- Dachbeläge und Spengler
- Fenster
- Sonnen und Wetterschutz
- Aussenputze
- Einbauten, Küchen, Türen
- Bodenbeläge und Unterlagsböden
- Parkett
- Gips, Wand, Decke
Haustechnik und Energie
- Heiztechnik
- Lüftung und Klimatechnik
- Sanitärtechnik
- Elektrotechnik
- Erneuerbare Energie
Whirlpools / Jacuzzi
Hausbau Magazin
- Baufinanzierung trotz Krise?
- Das Blockhaus
- Moderne Dämmstoffe im Vergleich
- Erker Vor- und Nachteile
- Glasflächen beim Hausbau
- Günstig ein Haus Bauen
- Mediterraner Hausbaustil
- Mehrgenerationenhaus
- Moderne Architektur
- Gartengestaltung leicht gemacht
- Traditioneller Ziegelbau
- Villa als höchster Traum
- Im Eigenheim Ruhestand geniessen
- Altbau sanieren
- Kauf einer Holzgarage
- Immobilienmakler
- Arbeitshandschuhe für den Winter
- Zuhause verschönern
- Outdoor-Plissees
- Schlafzimmer planen
- Terrassenüberdachung
- Wohngebäudeversicherung
- Girokonto für Bauherren finden
- Hauseingang gestalten
- Zaunarten und Eigenschaften
- Der perfekte Grundriss
- Sparsamer heizen im Altbau
- Einfamilienhaus smart finanzieren
- Planung einer PV-Anlage
- Neues Haus
- Immobilienfinanzierung
- Installation einer Photovoltaikanlage
- Asbest erkennen und entfernen
- Gartenpflege im Frühling – worauf achten
- Sauna im Fokus - Wellness zuhause
- Erfolgreich vermieten
- Die perfekte Winterbekleidung
- Das Niedrigenergiehaus
- Der April und seine Stürme
- Architektonische Vielfalt
- Ökologisch und nachhaltig bauen
- Das perfekte Schlafzimmer
- Nachhaltige Energieversorgung
- Zukunftsorientiert bauen
- Nachhaltigkeit beim Hausbau
- Tiny Houses
- Wärmepumpen als nachhaltige Heizvariante
- Maßgeschneiderten Kleiderschrank
- Der richtige Baukredit
- Ratgeber für erfolgreichen Hausbau
- Haus als Altersvorsorge
Do-it-yourself Anleitungen
- Verlegeanleitung für Bodenbeläge und Parkett
- Bodenbeläge und Parkett reinigen und pflegen
- Malerarbeiten am Haus
- Garten Tipps
- Umzug und Reinigung

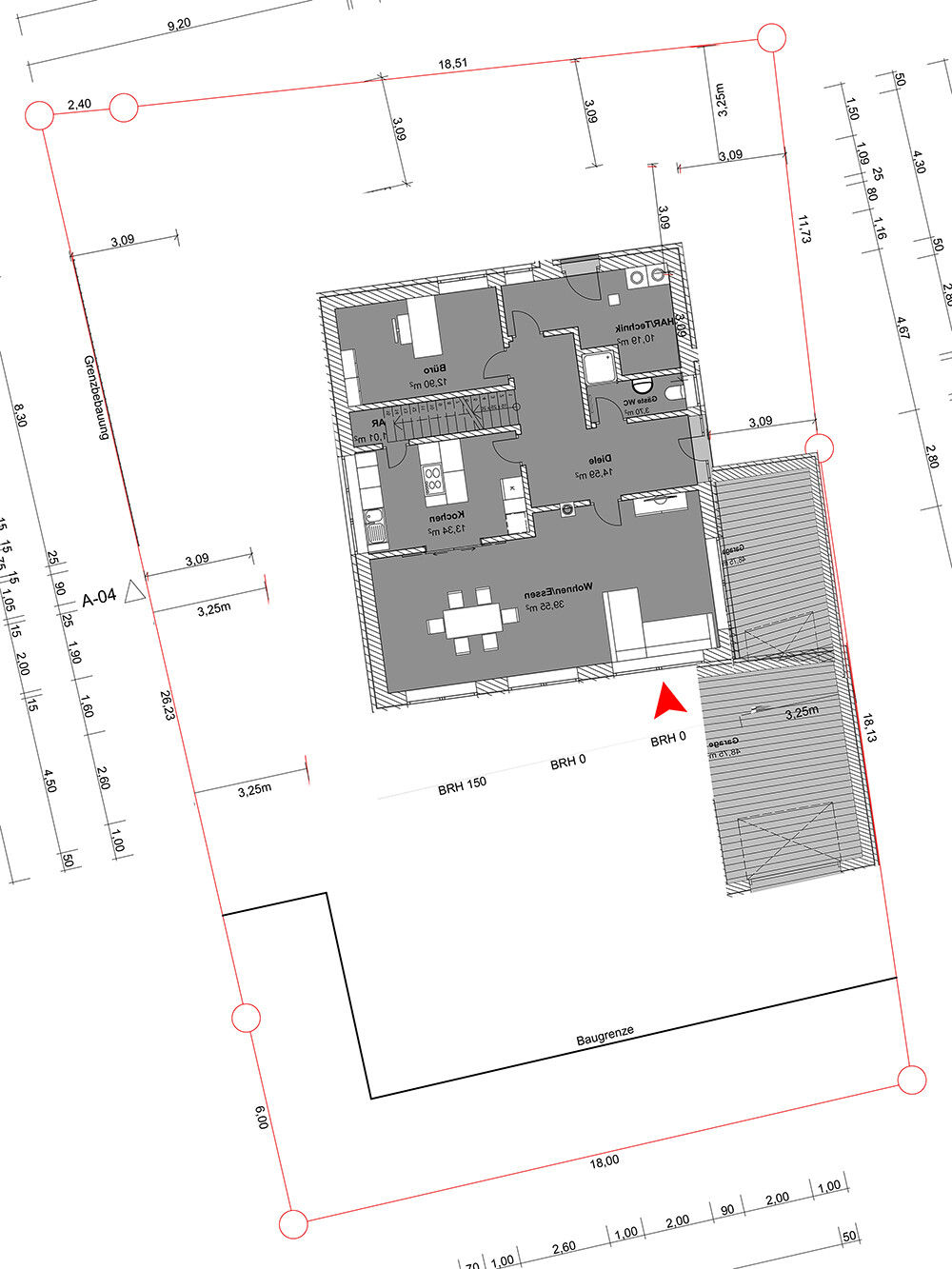
ᐅ Stadtvilla 190m² mit Einfahrt & Garten zur Südseite

Erstellt am: 25.04.18 16:10
O
Oguretz
Bebauungsplan/Einschränkungen
Größe des Grundstücks: 598m²
Hang: nein
Grundflächenzahl: 0,4
Geschossflächenzahl: 2
Baufenster, Baulinie und –grenze: Nur im Süden
Randbebauung: nur Garage
Geschossigkeit: 2
Dachform: Walmdach
Stilrichtung: Stadtvilla

Anforderungen der Bauherren
Stilrichtung, Dachform, Gebäudetyp: modern, Walmdach, Stadtvilla
Keller, Geschosse: kein Keller
Anzahl der Personen, Alter: 2 Erw. (24, 27) 1 Kind (2)
Raumbedarf im EG: 95m², OG: 95m²
Büro: Arbeitsplatz
geschlossene Architektur
moderne Bauweise
keine offene Küche, Kochinsel
Anzahl Essplätze im Wohnzimmer: 6 in der Küche keine
Kamin: ja
Musik/Stereowand: nein
Balkon, Dachterrasse: nein
Garage, Carport: Garage (46m², muss auch so groß bleiben)
Nutzgarten, Treibhaus: nein
weitere Wünsche/Besonderheiten/Tagesablauf, gern auch Begründungen, warum dieses oder das nicht sein soll

Hausentwurf
Von wem stammt die Planung:
-Do-it-Yourself
Was gefällt besonders? Warum? Gerade Treppe, AR darunter möglich
Was gefällt nicht? Warum? Küche zu klein, da keine Essplätze in der Küche möglich.
Preisschätzung lt Architekt/Planer:
Persönliches Preislimit fürs Haus, inkl Ausstattung:
favorisierte Heiztechnik:

Wenn Ihr verzichten müsst, auf welche Details/Ausbauten
-könnt Ihr verzichten: Gartenteil im Norden
-könnt Ihr nicht verzichten: Büro

Warum ist der Entwurf so geworden, wie er jetzt ist? ZB
Entwurf wurde selber gestaltet, das Problem daran: Man fährt von der Süd-/Westseite in die Garage d. h. Eingang ist seitlich und jeder kann in den Garten schauen. Dieser ist nämlich genauso auf der Südseite. Norden ist keine Option (da keine Sonne dort hinkommen wird). Westen oder Osten wäre eine Option, ist aber leider nicht möglich, da links und rechts vom Haus bzw. Garage kein Platz mehr ist (3m Abstand zum Nachbarn einhalten).

Da das Haus + Garage schon viel Grundstücksfläche in Anspruch nimmt, ist der Garten auch nicht so groß (ca. 110m² nur vorne bei der Terrasse). Im Norden hätten wir noch einen Teil grün (der ziemlich unnötig erscheint). Nebenan haben wir allerdings einen Spielplatz.
Büro MUSS bleiben, da Selbstständigkeit. Küche könnte auch im Norden sein und etwas größer.
Hauswirtschaftsraum zur Garage ist auch ein Muss.

Ist/War jemand schon mal in der gleichen Situation und könnte ein paar Änderungsvorschläge geben?

Dankeschön schon mal.
Zweistöckiges modernes Haus mit dunklem Dach, Carport, geparktes Auto und Garten.

Isometrische Darstellung eines modernen, dunklen zweistöckigen Hauses mit Anbau auf grünem Grundstück.
11ant26.04.18 14:16
Oguretz schrieb:
Grundflächenzahl: 0,4
Geschossflächenzahl: 2
Da stimmt wohl etwas nicht. Falls da "0,4 / II" stehen sollte, ist 0,4 schlimmstenfalls sogar die Geschossflächenzahl ! - berichte mal genau, was da steht. Üblicherweise ist die Nutzungsschablone (einmal für alle Bereiche des Planes) erläutert. Deutlich seltener als Grundflächenzahl und Geschossflächenzahl wird eine Baumassenzahl angegeben.
https://www.instagram.com/11antgmxde/
https://www.linkedin.com/company/bauen-jetzt/
Y
ypg
26.04.18 14:53
11ant schrieb:
Da stimmt wohl etwas nicht. Falls da "0,4 / II" stehen sollte, ist 0,4 schlimmstenfalls sogar die Geschossflächenzahl ! - berichte mal genau, was da steht. Üblicherweise ist die Nutzungsschablone (einmal für alle Bereiche des Planes) erläutert. Deutlich seltener als Grundflächenzahl und Geschossflächenzahl wird eine Baumassenzahl angegeben.

Ja, das glaube ich auch.
Y
ypg
26.04.18 15:27
ypg schrieb:
Garage in die SO-Ecke?!

Und ich korrigiere: im Garten hast Du auch im Norden Sonne, gerade auch abends.
Wie viel Sonne durch welches Fenster kommt, ist eine andere Sache: da gilt Süd, bzw. dass im Norden fast gar nichts ins Haus kommt.
Das muss man entkoppelt betrachten.
Man kann einen großen Allraum sehr gut mit SW-Fenstern belichten, während die Terrasse im NW zu begehen ist.

Nochmal zum Sonnenstand:
wir haben vor zwei Wochen, also Mitte April in unserem Nord-Bad ab ca. 18 Uhr Sonne bekommen. Zwar nur seitlich, aber das zum Sonnen-Saison-Beginn finde ich das schon beachtlich und nennenswert zum Thema "es gibt nur im Süden Sonne"

Ich würde wie schon gesagt die Garage in den SO verlegen und die Auffahrt etwas mit einer Hecke vom Westgarten abtrennen, sodass auch im SW eine Terrasse gut angelegt ist.
Das Haus würde ich schmaler machen, dass es sich auf das Grundstück fügt und im Westen etwas mehr Platz bietet.
Aber das wären nur Gedankenabsätze, die sich ergeben, wenn man mal mit Bleistift auf Karopapier zeichnet und die Grundflächenzahl-Frage durch das Bauamt/ Bebauungsplan abgesegnet ist
O
Oguretz
26.04.18 15:45
kbt09 schrieb:
Zu den JPGs musst du aber eine Lupe mitliefern. Beschneide die mal um den ganzen weißen Rand .

Zum Grundriss:
  • Der Gartenschuppen im Rahmen der Garage ist ja nun weitestmöglichst vom Hauptgarten entfernt
  • Warum nicht Kochen/Essen zusammenpacken, wenn Essplatz bei Küche gewünscht?
  • Die Türen zu den Zimmern sehen mehr als schmal aus
  • Freiraum beim Hochkommen von der Treppe ist doch Max. 1 m - oder?
  • Im Bad könnte man Dusche und WC/Bidet? samt Fenster tauschen und das West-Fenster etwas schmaler machen, dann erhält die Dusche auch natürliches Licht.
  • Schlafzimmer/Ankleide finde ich ungünstig verteilt. Wenn einer schon aufsteht, muss er immer 2 mal am Bett vorbei. Außerdem hat der Raum die Schokoladenseite, während z. B. das dritte Kinderzimmer nur morgens Sonne hat.
  • Es sind wohl noch 2 weitere Kinder geplant? Warum dann so ungleichmäßige Kinderzimmergrößen?
  • Gibt es Kundenbesuch im Büro?
Muss die Garage in den Westen?
kaho67426.04.18 15:48
Also etwa so?


Lageplan: roter Rand, Innenraum mit Küche, Essbereich, Treppe.


Oder noch weiter nördlich?
Haus lieber noch länger und schmaler, oder?
Wobei die "Innereien" natürlich komplett neu müssten.
O
Oguretz
26.04.18 15:55
kbt09 schrieb:
Zu den JPGs musst du aber eine Lupe mitliefern. Beschneide die mal um den ganzen weißen Rand .

Zum Grundriss:
  • Der Gartenschuppen im Rahmen der Garage ist ja nun weitestmöglichst vom Hauptgarten entfernt
  • Warum nicht Kochen/Essen zusammenpacken, wenn Essplatz bei Küche gewünscht?
  • Die Türen zu den Zimmern sehen mehr als schmal aus
  • Freiraum beim Hochkommen von der Treppe ist doch Max. 1 m - oder?
  • Im Bad könnte man Dusche und WC/Bidet? samt Fenster tauschen und das West-Fenster etwas schmaler machen, dann erhält die Dusche auch natürliches Licht.
  • Schlafzimmer/Ankleide finde ich ungünstig verteilt. Wenn einer schon aufsteht, muss er immer 2 mal am Bett vorbei. Außerdem hat der Raum die Schokoladenseite, während z. B. das dritte Kinderzimmer nur morgens Sonne hat.
  • Es sind wohl noch 2 weitere Kinder geplant? Warum dann so ungleichmäßige Kinderzimmergrößen?
  • Gibt es Kundenbesuch im Büro?
Muss die Garage in den Westen?


Die Küche sollte möglichst geschlossen sein, wegen Gerüchen.

Es waren tatsächlich zu schmale Türen. Habe da leider die Falschen gewählt.

Ja leider ist bei der Treppe wenn man hoch kommt nicht viel Platz. Gefällt mir eigentlich auch nicht besonders.

Das mit der Dusche und dem Bidet tauschen ist eine gute Idee.

Das dritte "Kinderzimmer" soll ein Bügelraum werden, da eigentlich nur 2 Kinder geplant sind. Habe es leider falsch bezeichnet.

Es wird auch 1x in der Woche Kundenbesuch kommen.

Nein die Garage muss auch nicht unbedingt im Westen sein. Ist nur nicht so schlecht, da links neben dem Grundstück, wo 6m gekennzeichnet sind, 5 öffentliche Parkplätze gebaut werden und man beim raus fahren somit wenigstens links eine einigermaßen freie Sicht hat.
geschossflächenzahlgrundflächenzahlgaragegrundstück