ypg schrieb:
Ich korrigiere noch mal meinen Post #23. Ich bin beim 2-Geschosser von einer Zeltdachvariante ausgegangen. Diese soll mW nach eifrigem Lesen günstiger als Satteldach sein...Das kann ich so nicht bestätigen. Wir konnten unser Haus von der Grundfläche her größer bauen, als wir von Zelt- auf Satteldach umgeplant haben.
Beim Zeltdach lagen wir bei einer Grundfläche von 8,84 x 9,44, mit Satteldach haben wir jetzt 8,84 x 10,64 - bei gleichem Preis.
L
LiquidSky06.04.14 22:12@Wanderdüne: Durch den Bebauungsplan sind die Bauflächen ja vorgegeben und so lange ich mich daran halte, sollten auch die Abstandsflächen kein Problem sein.
Änderungen am Bebauungsplan müssen wir uns aber wohl leider abschminken. Wir hätten gerne das Baufenster für die Garage 3-4 m weiter hinter aufs Grundstück gesetzt. Das haben wir über den Architekten beim zuständigen Amt anfragen lassen. Der Sachbearbeiter hatte sich aber völlig stur gestellt. Es soll keine Ausnahmen geben, außer der Bau an sich ist z.B. wegen Geländegegebenheiten nicht möglich.
__________________________________
Wir müssen laut Bebauungsplan sowieso mit Satteldach bauen.
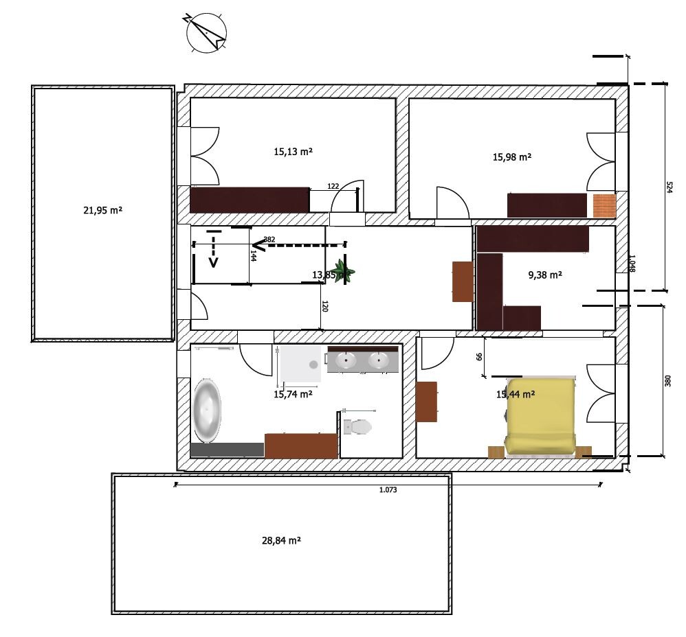
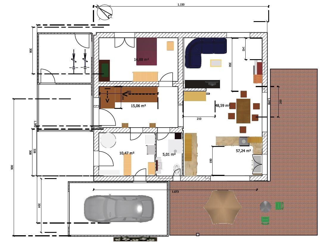
Ich habe mir am Wochenende nochmal ein paar Gedanken gemacht wie wir die Terrasse etwas abschirmen können und trotzdem in der 13m Lücke des Baufenster zu bleiben um nicht tiefer ins Grundstück rücken zu müssen.
Die Idee wird zwar noch ein paar Tausender für das Dach über der Garage extra kosten, aber so sieht die Garage nicht wie danebengesetzt aus und schirmt die Terrasse etwas ab. Gleichzeitig sparen wir beim Hauswirtschaftsraum etwas Geld weil die Leitungen kürzer werden. Aber schaut selbst (beim 3D Modell fehlen die Dächer und die Dachschräge soll gerade durchgehen) und gebt mir gerne Feedback.



Änderungen am Bebauungsplan müssen wir uns aber wohl leider abschminken. Wir hätten gerne das Baufenster für die Garage 3-4 m weiter hinter aufs Grundstück gesetzt. Das haben wir über den Architekten beim zuständigen Amt anfragen lassen. Der Sachbearbeiter hatte sich aber völlig stur gestellt. Es soll keine Ausnahmen geben, außer der Bau an sich ist z.B. wegen Geländegegebenheiten nicht möglich.
__________________________________
Wir müssen laut Bebauungsplan sowieso mit Satteldach bauen.
Ich habe mir am Wochenende nochmal ein paar Gedanken gemacht wie wir die Terrasse etwas abschirmen können und trotzdem in der 13m Lücke des Baufenster zu bleiben um nicht tiefer ins Grundstück rücken zu müssen.
Die Idee wird zwar noch ein paar Tausender für das Dach über der Garage extra kosten, aber so sieht die Garage nicht wie danebengesetzt aus und schirmt die Terrasse etwas ab. Gleichzeitig sparen wir beim Hauswirtschaftsraum etwas Geld weil die Leitungen kürzer werden. Aber schaut selbst (beim 3D Modell fehlen die Dächer und die Dachschräge soll gerade durchgehen) und gebt mir gerne Feedback.
Ähnliche Themen