Hallo Forumsmitglieder,
unsere Hausplanung nimmt langsam Formen an.
Gerne würde ich eure Meinung zu unseren aktuellen Entwürfen hören.
Hintergrund:
2 Erwachsene 29 und 30
Familienplanung ist noch nicht abgeschlossen.
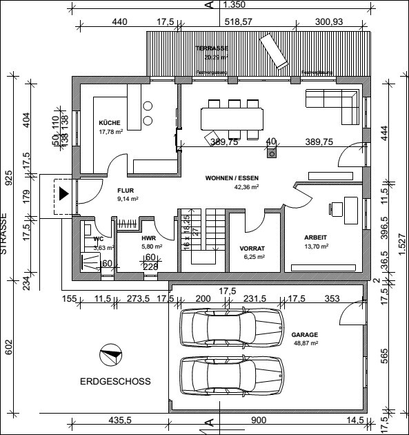
Baufenster ist 15x15 + 6x12 für Garage - kaum bauliche Beschränkungen seitens des Bebauungsplanes.
Nord-West Garten, Pultdach mit Süd-Ausrichtung.
Über eine Bauhausform und Satteldach sind wir beim Pultdach gelandet.
Außen- sowie Dachform ist uns nahezu egal, die Funktionen der Wohnbereiche stand bei uns neben dem Budget im Mittelpunkt.
Es war uns wichtig, da ohne Keller (aus Kostengründen) genug Abstellfläche zu haben. (Vorratsraum, Technik mit Zugang unter die Treppe, Arbeitszimmer, Hauswirtschaftsraum im DG)
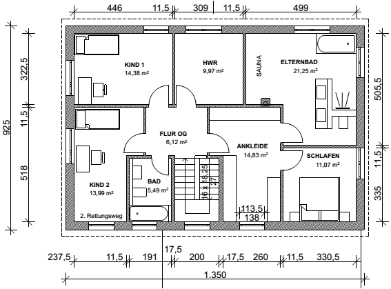
Weiterhin sollten der Kinder und Elternbereich etwas von einander getrennt sein.
Bei den Fenstern und vor allem den Fensterstulpen sind wir uns noch nicht wirklich einig. Die Wand mit der Tür ins Arbeitszimmer soll einen 45 Grad Winkel bekommen, das sieht noch ordentlich aus, dennoch kann man vor dem Kamin ins Wohnzimmer.
Gerne beantworte ich weitere Fragen. Hoffe auf euer Feedback und Anregungen.
Alex




unsere Hausplanung nimmt langsam Formen an.
Gerne würde ich eure Meinung zu unseren aktuellen Entwürfen hören.
Hintergrund:
2 Erwachsene 29 und 30
Familienplanung ist noch nicht abgeschlossen.
Baufenster ist 15x15 + 6x12 für Garage - kaum bauliche Beschränkungen seitens des Bebauungsplanes.
Nord-West Garten, Pultdach mit Süd-Ausrichtung.
Über eine Bauhausform und Satteldach sind wir beim Pultdach gelandet.
Außen- sowie Dachform ist uns nahezu egal, die Funktionen der Wohnbereiche stand bei uns neben dem Budget im Mittelpunkt.
Es war uns wichtig, da ohne Keller (aus Kostengründen) genug Abstellfläche zu haben. (Vorratsraum, Technik mit Zugang unter die Treppe, Arbeitszimmer, Hauswirtschaftsraum im DG)
Weiterhin sollten der Kinder und Elternbereich etwas von einander getrennt sein.
Bei den Fenstern und vor allem den Fensterstulpen sind wir uns noch nicht wirklich einig. Die Wand mit der Tür ins Arbeitszimmer soll einen 45 Grad Winkel bekommen, das sieht noch ordentlich aus, dennoch kann man vor dem Kamin ins Wohnzimmer.
Gerne beantworte ich weitere Fragen. Hoffe auf euer Feedback und Anregungen.
Alex
Stimmt der Nordpfeil, also Norden planlinks? Gibt es auch einen Lageplan des Grundstücks?
Dann solltet ihr die Lage der Kinderzimmer nochmal überdenken. Ihr gönnt euch schon fast 50 qm und die Südseite und den Kindern schmale Räume Richtung Norden, wo man noch nicht mal einen Kleiderschrank richtig stellen kann 🙁
Im Elternschlafzimmer darf aber kein Bett mit mehr als 180 cm Matratzenbreite stehen, sonst wird es planrechts und -links sehr eng.
Die Elternbad-Entwässerung geht dann durch das Wohnzimmer.
EG Wohnzimmer.. zeichnet mal einen Kaminofen so ein, wie er tatsächlich stehen soll.
EG Flur .. eigentlich schön großzügig, auch die Treppe gefällt mir, allerdings nur ca. 100 cm Garderobe für dann 4 Leute incl. aller Schuhe etc.? Da würde ich auch neu nachdenken.
EG Gästebad .. erscheint mir alles recht eng. Wie soll der Duschzugang erfolgen?
EG Küche .. da bietet sich bei der Raumgröße eher eine richtige Insel an.
Dann solltet ihr die Lage der Kinderzimmer nochmal überdenken. Ihr gönnt euch schon fast 50 qm und die Südseite und den Kindern schmale Räume Richtung Norden, wo man noch nicht mal einen Kleiderschrank richtig stellen kann 🙁
Im Elternschlafzimmer darf aber kein Bett mit mehr als 180 cm Matratzenbreite stehen, sonst wird es planrechts und -links sehr eng.
Die Elternbad-Entwässerung geht dann durch das Wohnzimmer.
EG Wohnzimmer.. zeichnet mal einen Kaminofen so ein, wie er tatsächlich stehen soll.
EG Flur .. eigentlich schön großzügig, auch die Treppe gefällt mir, allerdings nur ca. 100 cm Garderobe für dann 4 Leute incl. aller Schuhe etc.? Da würde ich auch neu nachdenken.
EG Gästebad .. erscheint mir alles recht eng. Wie soll der Duschzugang erfolgen?
EG Küche .. da bietet sich bei der Raumgröße eher eine richtige Insel an.
Vielen Dank für die schnelle und konstruktive Rückmeldungen. Ich versuche Punkt für Punkt durchzugehen.
Nordpfeil stimmt nicht, die Kinderzimmer sind nach Süd-Westen ausgerichtet, Terrasse nach Nord-West (FeierabendTerrasse). Grundstück werde ich morgen nachliefern.
Das Haus ist tatsächlich auf zwei Personen, ohne vorrangigen Kinderwunsch ausgerichtet. Ohne Kinderzimmer wäre das Haus kaum zu verkaufen und wie schon geschrieben ist die Familienplanung nicht ganz abgeschlossen.
Das 1,80 Bett ist geplant. Das Schlafzimmer würde uns ausreichen, da Bad und Ankleide ausreichend groß und die Ankleide nicht schmaler werden soll.
Elternbad-Entwässerung und noch interessanter wird der Hauswirtschaftsraum, da weiß ich nicht, ob man das ganze bis zum Arbeitszimmer ziehen kann?? Gläserner Abfluss mitten im Raum wäre auch interessant, vielleicht beim nächsten Haus 🙂
Kamin nach oben, Tisch wird gedreht, Durchgang zum Wohnzimmer soll am Arbeitszimmer vorbei führen.
Garderobe soll jeweils ein bis zwei Jacken und ein Paar Schuhe von mir und der restliche Platz mit Schuhen von meiner Frau voll gepackt werden. Ggf. kann ein Schrank, Sideboard für Schuhe, oder eine freie Garderobe hinzukommen.
Gästebad ist eng, haben uns ein gleich großes Bad in echt angeschaut und die größen fast exakt übernommen.
Richtige Insel steht zur Debatte, das wirddann im Küchenstudio entschieden.
Vorrat ist kein Speisezimmer, hier ist die Küche groß genug. Hier sollen die Jacken und die Schuhe gelagert werden.
Mitten im Wohnzimmer alleine wegen dem dort zur verfügung stehendem Platz und nicht notwendigem Fenster.
Technik und Hauswirtschaftsraum sind geteilt. Unten nur Technik. Haben uns gedacht, dass unten Technik und Platz unter der Treppe für die Anschlüsse reicht, was meint ihr?
Kind zwei sehr schlauchig, Bad zwischen die K-Zimmer schieben und K-2 nach unten?
Danke vielmals, schönen Abend!
Alexej
Nordpfeil stimmt nicht, die Kinderzimmer sind nach Süd-Westen ausgerichtet, Terrasse nach Nord-West (FeierabendTerrasse). Grundstück werde ich morgen nachliefern.
Das Haus ist tatsächlich auf zwei Personen, ohne vorrangigen Kinderwunsch ausgerichtet. Ohne Kinderzimmer wäre das Haus kaum zu verkaufen und wie schon geschrieben ist die Familienplanung nicht ganz abgeschlossen.
Das 1,80 Bett ist geplant. Das Schlafzimmer würde uns ausreichen, da Bad und Ankleide ausreichend groß und die Ankleide nicht schmaler werden soll.
Elternbad-Entwässerung und noch interessanter wird der Hauswirtschaftsraum, da weiß ich nicht, ob man das ganze bis zum Arbeitszimmer ziehen kann?? Gläserner Abfluss mitten im Raum wäre auch interessant, vielleicht beim nächsten Haus 🙂
Kamin nach oben, Tisch wird gedreht, Durchgang zum Wohnzimmer soll am Arbeitszimmer vorbei führen.
Garderobe soll jeweils ein bis zwei Jacken und ein Paar Schuhe von mir und der restliche Platz mit Schuhen von meiner Frau voll gepackt werden. Ggf. kann ein Schrank, Sideboard für Schuhe, oder eine freie Garderobe hinzukommen.
Gästebad ist eng, haben uns ein gleich großes Bad in echt angeschaut und die größen fast exakt übernommen.
Richtige Insel steht zur Debatte, das wirddann im Küchenstudio entschieden.
Vorrat ist kein Speisezimmer, hier ist die Küche groß genug. Hier sollen die Jacken und die Schuhe gelagert werden.
Mitten im Wohnzimmer alleine wegen dem dort zur verfügung stehendem Platz und nicht notwendigem Fenster.
Technik und Hauswirtschaftsraum sind geteilt. Unten nur Technik. Haben uns gedacht, dass unten Technik und Platz unter der Treppe für die Anschlüsse reicht, was meint ihr?
Kind zwei sehr schlauchig, Bad zwischen die K-Zimmer schieben und K-2 nach unten?
Danke vielmals, schönen Abend!
Alexej
Das WC im EG finde ich trotzdem zu klein, das Duschen dort wird eher eine Turnübung. Ich begreife nicht, warum man ein geräumiges Haus bauen möchte, aber dann so ein Murkel-WC akzeptiert.
Die Flur-Wohnzimmer-Situation finde ich persönlich grauslich. Wenn man am Esstisch sitzt, schaut man im Zweifel auf die Treppe, hat aber auch die Vorratskammertür und die Arbeitszimmertür im Blick. Mit ein bisschen rutschen, ist sogar die Hauswirtschaftsraum-Tür und die Garderobe drin.
Außerdem dringen alle Geräusche aus dem Wohnzimmer wunderbar nach oben. Wobei, ein Kinderwunsch existiert ja nicht so richtig, dann ist es eigentlich auch egal 🙂
Übrigens gibt es sehr wohl Paare, die nach Häusern schauen, die für 2 Personen ausgelegt sind.
Vielleicht solltet ihr das Ganze nochmal überdenken und eher tatsächlich für 2 Personen planen. Dann oben eher nur ein großes Arbeitszimmer planen, das später (falls doch mal Kinder da sind) sinnvoll teilbar ist. 😎
Die Flur-Wohnzimmer-Situation finde ich persönlich grauslich. Wenn man am Esstisch sitzt, schaut man im Zweifel auf die Treppe, hat aber auch die Vorratskammertür und die Arbeitszimmertür im Blick. Mit ein bisschen rutschen, ist sogar die Hauswirtschaftsraum-Tür und die Garderobe drin.
Außerdem dringen alle Geräusche aus dem Wohnzimmer wunderbar nach oben. Wobei, ein Kinderwunsch existiert ja nicht so richtig, dann ist es eigentlich auch egal 🙂
Übrigens gibt es sehr wohl Paare, die nach Häusern schauen, die für 2 Personen ausgelegt sind.
Vielleicht solltet ihr das Ganze nochmal überdenken und eher tatsächlich für 2 Personen planen. Dann oben eher nur ein großes Arbeitszimmer planen, das später (falls doch mal Kinder da sind) sinnvoll teilbar ist. 😎
Ähnliche Themen