Hausbau - Ratgeber
Bauherrenhilfe
- Bauherrenhilfe vor Vertragsabschluss
-- Warum einen unabhängigen Baubetreuer?
-- Vertragsgrundlagen
-- Bausumme
-- Zahlungsplan zur Kostenkontrolle
-- Pflichten des Bauherren vor Vertragsabschluss
-- Unterlagen beim Hausbau vor Vertragsabschluss
- Bauherrenhilfe nach Vertragsabschluss
-- Bauantrag bei Behörden
-- Bau-Genehmigungsverfahren bei Baubehörden
-- Bauspezifische Versicherungen
-- Bauzeitenplan
-- Baubeginn - die Letzten Pflichten der Bauherrschaft
- Bauherrenhilfe während der Bauzeit
- Gewährleistungsansprüche
- Bauabnahme
Baufinanzierung
- Baufinanzierung - Allgemeine Fragen
- Kreditarten
- Kredit-Konditionen
- Bausparen
- Staatliche Förderungen
- Verkehrswert
- Haushaltsrechnung und Bonität
Hausbau Planung
- Haustypen
- Hausbau Vorbereitungsarbeiten
- Das Baugrundstück
- Baugrund beim Hausbau
- Baurecht
- Gebäudeschutz
- Erdarbeiten und Wasserhaltung
- Stützmauern
- Einfriedung
- Untergeschoss
- Kanalisation
- Tragende Elemente
- Nichttragende Innenwände
- Fundation / Fundament
- Deckenkonstruktionen
- Dächer
- Kaminanlagen
- Treppen Rampen Leitern
- Dachbeläge und Spengler
- Fenster
- Sonnen und Wetterschutz
- Aussenputze
- Einbauten, Küchen, Türen
- Bodenbeläge und Unterlagsböden
- Parkett
- Gips, Wand, Decke
Haustechnik und Energie
- Heiztechnik
- Lüftung und Klimatechnik
- Sanitärtechnik
- Elektrotechnik
- Erneuerbare Energie
Whirlpools / Jacuzzi
Hausbau Magazin
- Baufinanzierung trotz Krise?
- Das Blockhaus
- Moderne Dämmstoffe im Vergleich
- Erker Vor- und Nachteile
- Glasflächen beim Hausbau
- Günstig ein Haus Bauen
- Mediterraner Hausbaustil
- Mehrgenerationenhaus
- Moderne Architektur
- Gartengestaltung leicht gemacht
- Traditioneller Ziegelbau
- Villa als höchster Traum
- Im Eigenheim Ruhestand geniessen
- Altbau sanieren
- Kauf einer Holzgarage
- Immobilienmakler
- Arbeitshandschuhe für den Winter
- Zuhause verschönern
- Outdoor-Plissees
- Schlafzimmer planen
- Terrassenüberdachung
- Wohngebäudeversicherung
- Zaunarten und Eigenschaften
- Hauseingang gestalten
- Der perfekte Grundriss
- Sparsamer heizen im Altbau
- Einfamilienhaus smart finanzieren
- Planung einer PV-Anlage
- Neues Haus
- Immobilienfinanzierung
- Installation einer Photovoltaikanlage
- Asbest erkennen und entfernen
- Gartenpflege im Frühling – worauf achten
- Sauna im Fokus - Wellness zuhause
- Erfolgreich vermieten
- Die perfekte Winterbekleidung
- Das Niedrigenergiehaus
- Der April und seine Stürme
- Architektonische Vielfalt
- Ökologisch und nachhaltig bauen
- Das perfekte Schlafzimmer
- Nachhaltige Energieversorgung
- Zukunftsorientiert bauen
- Nachhaltigkeit beim Hausbau
- Tiny Houses
- Wärmepumpen als nachhaltige Heizvariante
- Maßgeschneiderten Kleiderschrank
- Der richtige Baukredit
- Ratgeber für erfolgreichen Hausbau
- Haus als Altersvorsorge
Do-it-yourself Anleitungen
- Verlegeanleitung für Bodenbeläge und Parkett
- Bodenbeläge und Parkett reinigen und pflegen
- Malerarbeiten am Haus
- Garten Tipps
- Umzug und Reinigung

ᐅ Planung der Garagenlage am Einfamilienhaus

Erstellt am: 06.07.15 15:21
T
tagil
T
tagil
06.07.15 15:21
Hallo zusammen,

wir haben vor ein Einfamilienhaus zu bauen. Wir befinden uns am Anfang unserer Planung, doch schon jetzt kommt es zu einer wichtigen Entscheidung. Hierbei geht es um die Positionierung der Garage.

Das Grundstück Nr. 441 hat eine Hanglage vom Westen zum Osten, wir sprechen hier von ca über 70 cm.
Setzen wir die Garage zum Osten hin, so ist ein Freistellungsantrag notwendig

Die Frage die sich nun stellt, wo ist der bessere Platz für die Garage?
Im Westen oder im Osten des Grundstücks?


Danke für Eure Meinung/Ideen



Bebauungsplan/Einschränkungen
Größe des Grundstücks: 570qm
Hang: West>Ost
Grundflächenzahl: 0,4
Baufenster: 14 m x 12 m
Anzahl Stellplatz: 2
Geschossigkeit: 1,5
Dachform: Satteldach

Anzahl der Personen, 4
Büro: Familiennutzung oder Homeoffice: JA
offene Küche, Kochinsel: NEIN
Anzahl Essplätze 2
Kamin: JA
Musik/Stereowand: Nein
Balkon, Dachterrasse: Nein
Garage, Carport: JA Doppelgarage


Hausentwurf
Von wem stammt die Planung:
-Architekt: JA

Lageplan mit grundstuecken, grundrissen und gelben markern im baugebiet
M
marv45
06.07.15 19:05
Ich würde den Osten vorziehen. Das Ding ist auf den Ansichten/Zeichnungen aber ein ziemlicher Trumm, so im Verhältnis zum Haus. Habt ihr mal über ein "luftiges" Carport nachgedacht ?
T
tagil
06.07.15 20:23
Hallo marv45,

Die Garage ist mit 6 x 7 m eigentlich noch zu klein! Ich würde gerne 6,5 x 9 m haben wollen. Man brauch ja Stauraum, wenn man ohne Keller baut.

Ich würde auch lieber die garage im Osten sehen! Jedoch möchte ich das Grundstück hinter dem Haus dann auffüllen! Das würde bedeuten das ich eine kleine Stufe benötige, wenn ich aus der Garage auf die Terrasse raus will. An sich eigentlich kein Problem, nur wie sieht es dann mit dem Regenwasser aus!?
T
tagil
08.07.15 14:34
Hallo zusammen,

die Entscheidung ist nun gefallen, die Garage kommt in den Osten hin.

Ich würde gerne Eure Meinung zu der Planung/Aufteilung der Räumlichkeiten hören
Was ist hierbei gut oder schlecht, was kann man anders oder besser machen.

Danke für Eure Anregung

Gruß
Tagil

3D-Hausmodell eines Einfamilienhauses mit Satteldach, Garage und Eingangsbereich


3D-Ansicht eines modernen Einfamilienhauses mit Backsteinmittelteil und dunklem Dach


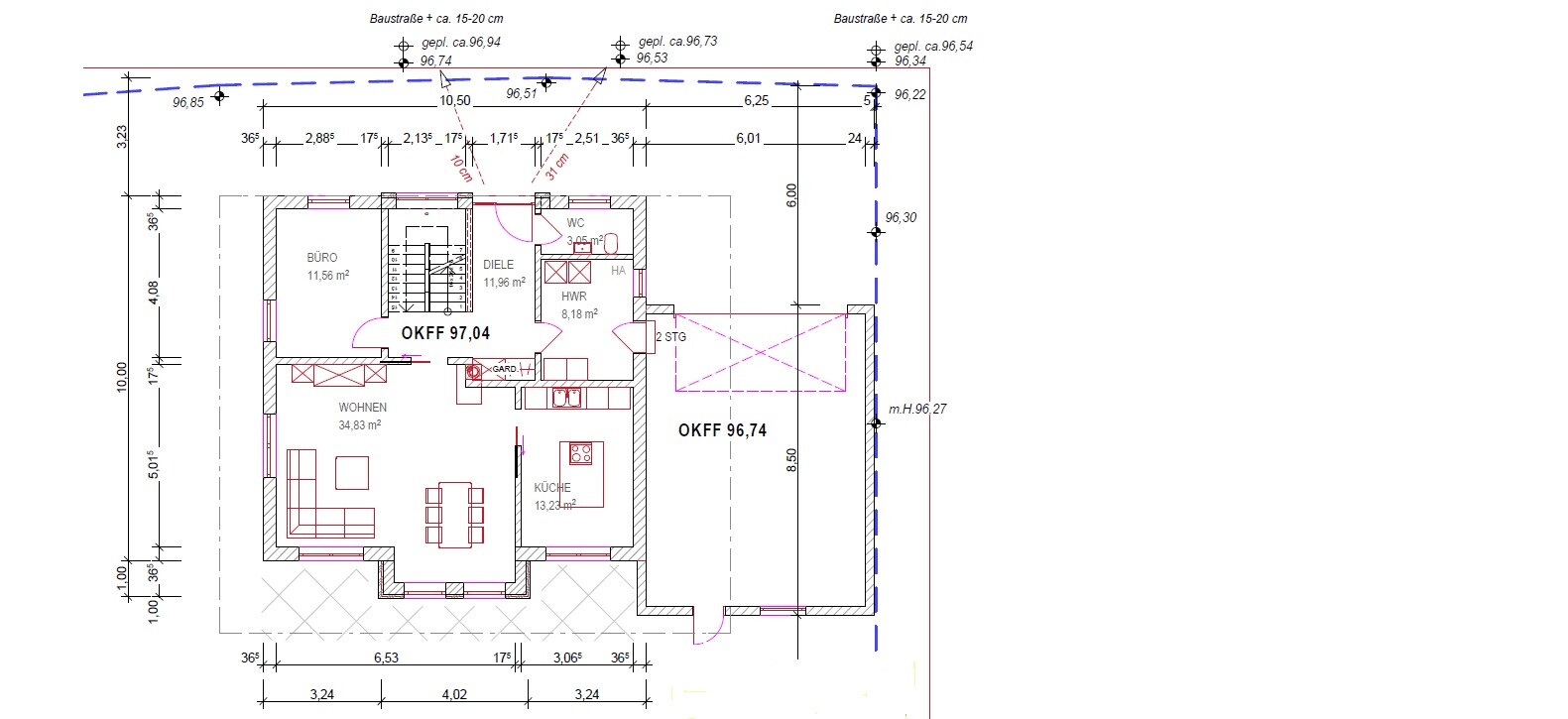
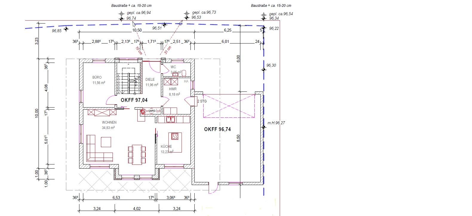
Detaillierter 2D-Grundriss eines Hauses mit Wohnzimmer, Küche, Diele und WC


Architekten-Grundriss eines Hauses mit Eltern- und Kinderzimmern, Bad und Treppe
Y
ypg
08.07.15 17:27
tagil schrieb:
offene Küche, Kochinsel: NEIN

hm, ja was denn?

Ich finde den Grundriss gar nicht schlecht. Allerdings muss die Küche mal näher geplant werden: so wie sie dargestellt wird, gibbet keinen Kühlschrank oder sonstigen Hochschrank.
Ich persönlich würde den Eingang in den Wohnbereich eher mit der Garderobe tauschen -> kürzerer Weg von Küche zu allen anderen Bereichen. Allerdings müsste der Schornstein und dieser Knotenpunkt Hauswirtschaftsraum/Küche/Ess neu vermittelt werden.
Im Hauswirtschaftsraum drauf achten, dass an die eine Wand keine Technik kommt, damit dort eine Schrankzeile für Abstellmöglichkeiten eingebaut werden kann. Davon gibt es nämlich nicht ausreichend. Wo soll denn Gewaschen werden? Wo kommen Saisonklamotten hin? Da seh ich etwas rot (oder in manchen Gegenden auch gern schwarz 😉)

Gruss Yvonne
T
tagil
08.07.15 20:31
ypg schrieb:
hm, ja was denn?
Sehr gut aufgepasst;),die Kochinsel sollte eigentlich weg, die Küche bleibt geschlossen.
ypg schrieb:

Allerdings muss die Küche mal näher geplant werden: so wie sie dargestellt wird, gibbet keinen Kühlschrank oder sonstigen Hochschrank.
Stimmt, doch wenn die Kochinsel weg fällt, dann kann man die Wand zur Garage hin mit weiteren Küchen Komponenten ausstatten
und den Esstisch zur Wohnzimmerwand hinstellen
ypg schrieb:

Im Hauswirtschaftsraum drauf achten, dass an die eine Wand keine Technik kommt, damit dort eine Schrankzeile für Abstellmöglichkeiten eingebaut werden kann. Davon gibt es nämlich nicht ausreichend. Wo soll denn gewaschen werden? Wo kommen Saisonklamotten hin?
Welche Wand meinst du?
Was die Haustechnik angeht, da habe ich vor eine Luftwärmepumpe und Photovoltaik für Warmwasser zu verbauen!
Gewaschen sollte im Hauswirtschaftsraum werden! Den Punkt mit den Saisonklamotten hatten ich ehrlich gesagt gar nicht auf dem Schirm gehabt

Oder wird es da zu eng im Hauswirtschaftsraum?

Gruß
garageküchehauswirtschaftsraumkochinselgrundstückcarport