N
Neubau202020.11.19 16:08Bebauungsplan/Einschränkungen
Größe des Grundstücks: 630 m²
Hang: leichtes Gefälle zur Straße hin
Grundflächenzahl 0,35
Geschossflächenzahl 1,0
Randbebauung: Mittig in einer Sackgasse in einem Neubaugebiet (Erschließung findet ab nächstem Jahr statt), Sackgasse endet nördlich, reines Wohngebiet mit wenig Verkehr, da ein kleiner Ort (<2.000 Einwohner)
Anzahl Stellplatz
Geschossigkeit E+1+D als Höchstgrenze
Dachform Satteldach
Stilrichtung
Ausrichtung Ost-West
Maximale Höhen/Begrenzungen 7,0m +/-0,3m
weitere Vorgaben
Anforderungen der Bauherren
Keller, Geschosse: Kein Keller; 2 Geschosse plus Spitzboden (gewünschte Drempelhöhe im OG noch unklar)
Anzahl der Personen, Alter 4-köpfige Familie - zwei Kinder (bei Einzug 2 und 5)
Raumbedarf im EG, OG
Büro: Familiennutzung oder Homeoffice? Familiennutzung
Schlafgäste pro Jahr: selten
offene Küche, Kochinsel
Anzahl Essplätze 4
Kamin: ja (mittig im Wohnzimmer mit innenliegendem Kamin oder an der Außenwand?)
Musik/Stereowand
Balkon, Dachterrasse: evtl. Garagendach als Terrasse; außerdem Terrasse auf der Südseite ans Wohnzimmer
Garage, Carport:
Nutzgarten, Treibhaus: Nutzgarten
Photovoltaik, Zisterne für den Garten (evtl. auch zur Toilettennutzung => Preisfrage, noch unklar)
Hausentwurf
Von wem stammt die Planung:
-Do-it-Yourself: Ja
Was gefällt besonders? Warum? Großes Wohnzimmer zur Südseite
Was gefällt nicht? Warum?
Preisschätzung lt Architekt/Planer: 400.000 Euro schlüsselfertig als KFW 55 Standard Fertighaus mit Luft-Wasser-Wärmepumpe (ohne Garage; incl Bodenplatte)
Persönliches Preislimit fürs Haus, inkl Ausstattung: 500.000 Euro incl. Baunebenkosten
favorisierte Heiztechnik: Wärmepumpe mit Ringgrabenkollektor
Wenn Ihr verzichten müsst, auf welche Details/Ausbauten
-könnt Ihr verzichten: Große Garage
-könnt Ihr nicht verzichten:
Warum ist der Entwurf so geworden, wie er jetzt ist? ZB
Anhand diverser Fertighäuser haben wir unseren eigenen Grundriss entworfen. Arbeitszimmer im EG soll groß genug sein, um es evtl auch als Schlafzimmer benutzen zu können. Das Wohnzimmer soll zum Süden hin, die Kinderzimmer gleich groß sein. Ob in den Abstellraum würden wir die Waschmaschine stellen
Was ist die wichtigste/grundlegende Frage zum Grundriss in 130 Zeichen zusammengefasst?
Allgemeine Raumaufteilung und -Lage? Welche Drempelhöhe (1m; 1,2m, 1,6m) wäre optimal bzgl. Platzgewinn und Kostenersparnis sowie Lichteinfall im OG
Hallo,
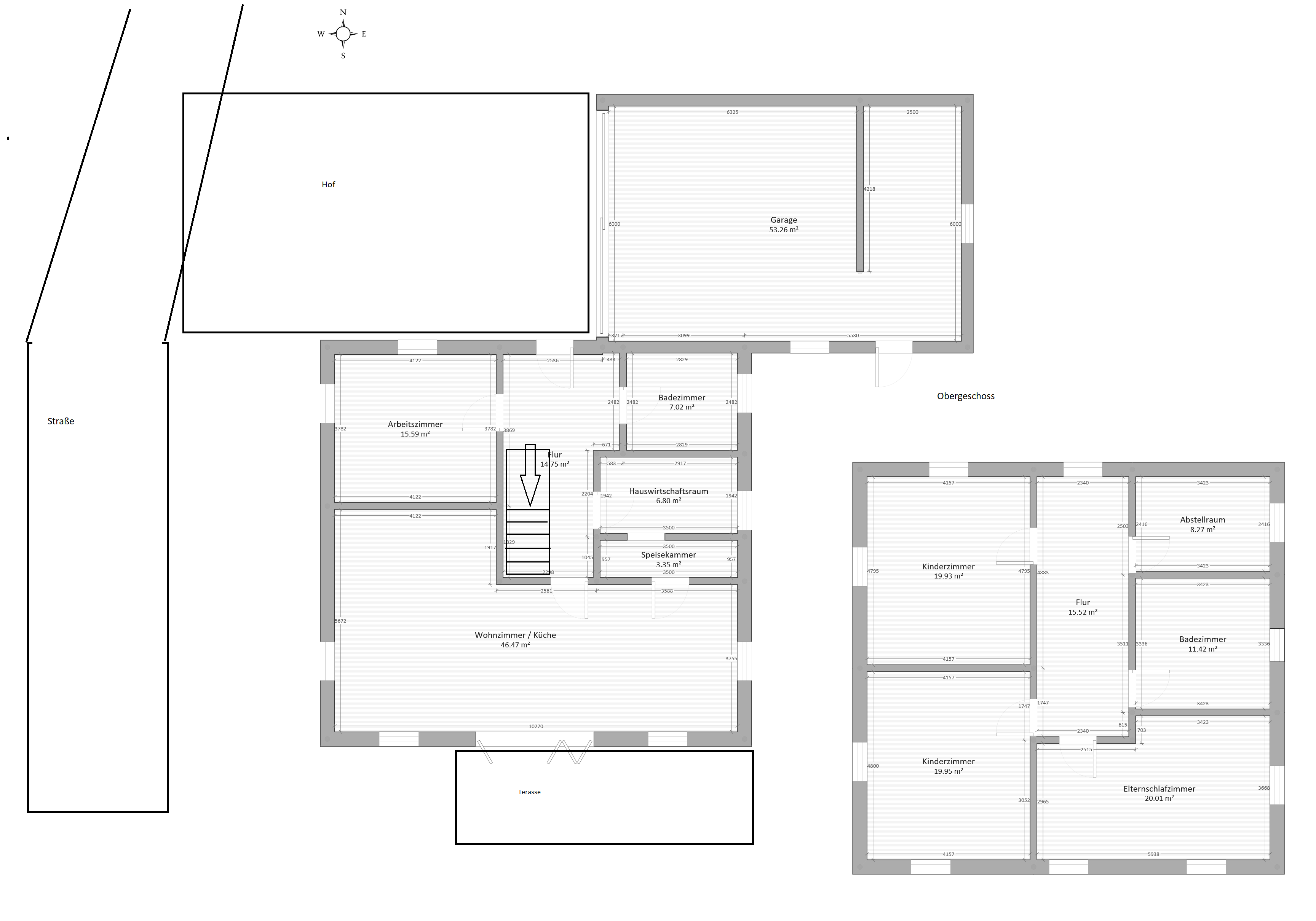
ich hoffe, die Ausführungen auf den Zeichnungen sind lesbar und nachvollziehbar.
Laut Bebauungsplan ist lediglich eine Drempelhöhe von 50cm vorgesehen, nach telefonischer Auskunft werden aber Abweichungen genehmigt, sofern die Max. Firsthöhe nicht überschritten wird.
In der Zeichnung bekomme ich keine Einrichtungsgegenstände angezeigt.
Die Treppe soll im Flur geradlinig verlaufen auf der Westseite, sodass man ob vor den beiden Türen /Kinderzimmer und EZi ankommt.
Im Wohnzimmer zur Südseite sollen bodentiefe Fenster rein, alle anderen Fenster "normal".
Die Küche ist in die Südostecke des Hauses geplant, daher der Durchgang zur Speisekammer. Urpsünglich war keine Speisekammer vorgesehen, sondern der große Haustechnikraum. Auf anraten des Hausverkäufers/Beraters wurde dort eine Wand eingezogen, damit man von der Küche nicht direkt in den Technikraum spaziert.
Ein Kamin entweder im WZ neben die WZ-Türe oder an die Westwand.
Die Einrichtungsgegenstände wurden beim Export leider nicht übernommen:
Treppe geradlinig im Flur rechts (vom Hauseingang aus gesehen, sodass man im OG an den Türen Kinderzimmer/Elternschlafzimmer ankommt)
Der aktuelle Grundriss basiert auf einem Außenmaß von 10,50m auf 11m.
Bei Unklarheiten bitte ich um Nachfrage, ansonsten bitte Feuer frei mit Nachfragen und Kritik, ich bin ja nicht hier, um mich loben zu lassen (natürlich auch, aber das ist ja nicht der Zweck der Übung)



Größe des Grundstücks: 630 m²
Hang: leichtes Gefälle zur Straße hin
Grundflächenzahl 0,35
Geschossflächenzahl 1,0
Randbebauung: Mittig in einer Sackgasse in einem Neubaugebiet (Erschließung findet ab nächstem Jahr statt), Sackgasse endet nördlich, reines Wohngebiet mit wenig Verkehr, da ein kleiner Ort (<2.000 Einwohner)
Anzahl Stellplatz
Geschossigkeit E+1+D als Höchstgrenze
Dachform Satteldach
Stilrichtung
Ausrichtung Ost-West
Maximale Höhen/Begrenzungen 7,0m +/-0,3m
weitere Vorgaben
Anforderungen der Bauherren
Keller, Geschosse: Kein Keller; 2 Geschosse plus Spitzboden (gewünschte Drempelhöhe im OG noch unklar)
Anzahl der Personen, Alter 4-köpfige Familie - zwei Kinder (bei Einzug 2 und 5)
Raumbedarf im EG, OG
Büro: Familiennutzung oder Homeoffice? Familiennutzung
Schlafgäste pro Jahr: selten
offene Küche, Kochinsel
Anzahl Essplätze 4
Kamin: ja (mittig im Wohnzimmer mit innenliegendem Kamin oder an der Außenwand?)
Musik/Stereowand
Balkon, Dachterrasse: evtl. Garagendach als Terrasse; außerdem Terrasse auf der Südseite ans Wohnzimmer
Garage, Carport:
Nutzgarten, Treibhaus: Nutzgarten
Photovoltaik, Zisterne für den Garten (evtl. auch zur Toilettennutzung => Preisfrage, noch unklar)
Hausentwurf
Von wem stammt die Planung:
-Do-it-Yourself: Ja
Was gefällt besonders? Warum? Großes Wohnzimmer zur Südseite
Was gefällt nicht? Warum?
Preisschätzung lt Architekt/Planer: 400.000 Euro schlüsselfertig als KFW 55 Standard Fertighaus mit Luft-Wasser-Wärmepumpe (ohne Garage; incl Bodenplatte)
Persönliches Preislimit fürs Haus, inkl Ausstattung: 500.000 Euro incl. Baunebenkosten
favorisierte Heiztechnik: Wärmepumpe mit Ringgrabenkollektor
Wenn Ihr verzichten müsst, auf welche Details/Ausbauten
-könnt Ihr verzichten: Große Garage
-könnt Ihr nicht verzichten:
Warum ist der Entwurf so geworden, wie er jetzt ist? ZB
Anhand diverser Fertighäuser haben wir unseren eigenen Grundriss entworfen. Arbeitszimmer im EG soll groß genug sein, um es evtl auch als Schlafzimmer benutzen zu können. Das Wohnzimmer soll zum Süden hin, die Kinderzimmer gleich groß sein. Ob in den Abstellraum würden wir die Waschmaschine stellen
Was ist die wichtigste/grundlegende Frage zum Grundriss in 130 Zeichen zusammengefasst?
Allgemeine Raumaufteilung und -Lage? Welche Drempelhöhe (1m; 1,2m, 1,6m) wäre optimal bzgl. Platzgewinn und Kostenersparnis sowie Lichteinfall im OG
Hallo,
ich hoffe, die Ausführungen auf den Zeichnungen sind lesbar und nachvollziehbar.
Laut Bebauungsplan ist lediglich eine Drempelhöhe von 50cm vorgesehen, nach telefonischer Auskunft werden aber Abweichungen genehmigt, sofern die Max. Firsthöhe nicht überschritten wird.
In der Zeichnung bekomme ich keine Einrichtungsgegenstände angezeigt.
Die Treppe soll im Flur geradlinig verlaufen auf der Westseite, sodass man ob vor den beiden Türen /Kinderzimmer und EZi ankommt.
Im Wohnzimmer zur Südseite sollen bodentiefe Fenster rein, alle anderen Fenster "normal".
Die Küche ist in die Südostecke des Hauses geplant, daher der Durchgang zur Speisekammer. Urpsünglich war keine Speisekammer vorgesehen, sondern der große Haustechnikraum. Auf anraten des Hausverkäufers/Beraters wurde dort eine Wand eingezogen, damit man von der Küche nicht direkt in den Technikraum spaziert.
Ein Kamin entweder im WZ neben die WZ-Türe oder an die Westwand.
Die Einrichtungsgegenstände wurden beim Export leider nicht übernommen:
Treppe geradlinig im Flur rechts (vom Hauseingang aus gesehen, sodass man im OG an den Türen Kinderzimmer/Elternschlafzimmer ankommt)
Der aktuelle Grundriss basiert auf einem Außenmaß von 10,50m auf 11m.
Bei Unklarheiten bitte ich um Nachfrage, ansonsten bitte Feuer frei mit Nachfragen und Kritik, ich bin ja nicht hier, um mich loben zu lassen (natürlich auch, aber das ist ja nicht der Zweck der Übung)
N
Neubau202020.11.19 16:17Ja.
Das hier ist meine Grundrisszeichnung, die der Verkäufer bekommen hat, daraufhin hat der Bauzeichner des Anbieters einen professionelleren Entwurf angefertigt, den ich allerdings nicht vorliegen habe, sondern mir nur zur Ansicht gezeigt wurde.
Ums kurz zu machen: Ja, die Treppenlänge und rum in die Tür geht
Das hier ist meine Grundrisszeichnung, die der Verkäufer bekommen hat, daraufhin hat der Bauzeichner des Anbieters einen professionelleren Entwurf angefertigt, den ich allerdings nicht vorliegen habe, sondern mir nur zur Ansicht gezeigt wurde.
Ums kurz zu machen: Ja, die Treppenlänge und rum in die Tür geht
desixtor schrieb:
Hi, klappt das mit der Treppe und Tür zum südlichen Kinderzimmer?
H
hampshire20.11.19 16:47Ein klarer Entwurf mit Mauern, die nicht übereinanderstehen - das muss ein Statiker beurteilen. Die Faltanlage (wenn das in der Zeichnung eine ist) zum Garten nach Süden werdet ihr lieben! Die Kinder würde ich beide in den Süden legen. Sie sind auf Dauer tagsüber viel mehr in ihren Zimmern und können das Licht besser gebrauchen als ein Schlafzimmer der Eltern. Das mit der gleichen Größe bekommt man ja trotzdem gut hin. Ich finde diesen Gleichgroß-Gedanken sehr gut.
Meinst Du mit Unklarer Drempelhöhe im OG das Dachgeschoss / Spitzboden?
Ich denke, dass man in dem Haus gut wohnen kann.
Meinst Du mit Unklarer Drempelhöhe im OG das Dachgeschoss / Spitzboden?
Ich denke, dass man in dem Haus gut wohnen kann.
N
Neubau202020.11.19 16:58Danke für die Antwort.
Zimmertausch werde ich mal ausprobieren. Ist es bei einem Fertighaus überhaupt von Relevanz, ob die Innenwände übereinander stehen?
Bzgl. deiner Rückfrage:
Es geht um das 1.OG, in dem sich die Schlafzimmer befinden.
Da zwei Vollgeschosse plus Dach erlaubt (aber nicht vorgeschrieben sind), haben wir überlegt, ob man das auch so baut und dann das DG als Stauraum ohne Drempel baut. Aber erstens brauchen wir keine gesamte Grundfläche als Stauraum und zweitens wird das ja dann noch mal teurer, wodurch man dann die Außenmaße reduzieren müsste)
Ob Faltanlage oder Doppelflügeltür sei mal dahingestellt, ist dann auch eine Kostenfrage, wichtig ist uns viel Licht aus dieser Richtung.
Jetzt fragen wir uns, welche Drempelhöhe mehr Vorteile bietet:
Eher 1,60m => weniger Dachschräge in den Zimmern, dann sind aber die Dachfenster auch ziemlich weit oben und ich habe "dunkle Wände", da dann in die Außenwand (Süden) ja keine Fenster können.
eher 1m => weniger Kosten, Dachfenster weiter unten und dadurch besser erreichbar.
Weiß jemand, wie viel man überhaupt einsparen kann, wenn man den Drempel um 0,50m reduziert?
Beim Außenmaß wurde mir bereits mehrmals eine Spanne von ca. 20.000 - 25.000 Euro pro Meter genannt, gibt es so einen Richtwert auch für die Höhe?
Zimmertausch werde ich mal ausprobieren. Ist es bei einem Fertighaus überhaupt von Relevanz, ob die Innenwände übereinander stehen?
Bzgl. deiner Rückfrage:
Es geht um das 1.OG, in dem sich die Schlafzimmer befinden.
Da zwei Vollgeschosse plus Dach erlaubt (aber nicht vorgeschrieben sind), haben wir überlegt, ob man das auch so baut und dann das DG als Stauraum ohne Drempel baut. Aber erstens brauchen wir keine gesamte Grundfläche als Stauraum und zweitens wird das ja dann noch mal teurer, wodurch man dann die Außenmaße reduzieren müsste)
Ob Faltanlage oder Doppelflügeltür sei mal dahingestellt, ist dann auch eine Kostenfrage, wichtig ist uns viel Licht aus dieser Richtung.
Jetzt fragen wir uns, welche Drempelhöhe mehr Vorteile bietet:
Eher 1,60m => weniger Dachschräge in den Zimmern, dann sind aber die Dachfenster auch ziemlich weit oben und ich habe "dunkle Wände", da dann in die Außenwand (Süden) ja keine Fenster können.
eher 1m => weniger Kosten, Dachfenster weiter unten und dadurch besser erreichbar.
Weiß jemand, wie viel man überhaupt einsparen kann, wenn man den Drempel um 0,50m reduziert?
Beim Außenmaß wurde mir bereits mehrmals eine Spanne von ca. 20.000 - 25.000 Euro pro Meter genannt, gibt es so einen Richtwert auch für die Höhe?
hampshire schrieb:
Ein klarer Entwurf mit Mauern, die nicht übereinanderstehen - das muss ein Statiker beurteilen. Die Faltanlage (wenn das in der Zeichnung eine ist) zum Garten nach Süden werdet ihr lieben! Die Kinder würde ich beide in den Süden legen. Sie sind auf Dauer tagsüber viel mehr in ihren Zimmern und können das Licht besser gebrauchen als ein Schlafzimmer der Eltern. Das mit der gleichen Größe bekommt man ja trotzdem gut hin. Ich finde diesen Gleichgroß-Gedanken sehr gut.
Meinst Du mit Unklarer Drempelhöhe im OG das Dachgeschoss / Spitzboden?
Ich denke, dass man in dem Haus gut wohnen kann.
H
hampshire20.11.19 17:21Vollgeschoss und Spitzboden ohne Drempel erscheint mir die lebenspraktischste Lösung zu sein und eine gute Investition. Etwas Dachschräge ab 2m Höhe stört nicht mehr und erfordert auch kein Dachfenster.
Einsparpotenzial ist immer die Garage - sie kann man auch später bauen oder durch einen Carport ersetzen.
Beziehe in die Überlegung ein, dass Kinder ihre Fahrzeuge zum Spielen bewegen und in der Praxis bei der Lage der Garage zwei nebeneinander parkende Fahrzeuge im Weg stehen und sicher nicht kratzfrei bleiben. Auch ist eine Doppelgarage in der Praxis für 2 Fahrzeuge UND Kinderfahrzeuge nicht ausreichend. Daher ist die Doppelgarage m.E. nicht nur eine teure, sondern auch eine schlechte Lösung.
Ob Faltanlage oder große Flügel - eine große Öffnung zum Garten ist herrlich.
Einsparpotenzial ist immer die Garage - sie kann man auch später bauen oder durch einen Carport ersetzen.
Beziehe in die Überlegung ein, dass Kinder ihre Fahrzeuge zum Spielen bewegen und in der Praxis bei der Lage der Garage zwei nebeneinander parkende Fahrzeuge im Weg stehen und sicher nicht kratzfrei bleiben. Auch ist eine Doppelgarage in der Praxis für 2 Fahrzeuge UND Kinderfahrzeuge nicht ausreichend. Daher ist die Doppelgarage m.E. nicht nur eine teure, sondern auch eine schlechte Lösung.
Ob Faltanlage oder große Flügel - eine große Öffnung zum Garten ist herrlich.
Ähnliche Themen